1. AnbieterArrow Icon
  2. RENSCH-HAUSArrow Icon
  3. Twinline R Matera
Slide 1
Slide 2
Slide 3
Slide 4
no description
RENSCH-HAUSTwinline R Matera
homeKlassische Familienhäuser
livingArea171 m²
energyStandardEffizienzhaus 40
Preis anfragen
Katalog bestellen

Twinline R Matera

Einfamilienhaus mit „Mini-Einliegerwohnung“ - Eigene Maßstäbe in Sachen Flexibilität

Dieses Konzept ist optimal für individuelle Nutzungsmöglichkeiten geeignet. Die geschickte Anordnung sowie die Größe der Einliegerwohnung ist ideal für Senioren mit Familienanschluss oder auch für erwachsene Kinder, die ihren eigenen kleinen Freiraum benötigen. Teil der Familie sein, aber trotzdem einen eigenen Rückzugsort zu haben, ist für viele Lebenssituationen die Idealform.

Auch auf neue und zukunftsorientierte Arbeitsweisen lässt sich mit diesem Konzept hervorragend reagieren, denn ein vom Rest des Hauses separiertes und eigenständiges Homeoffice mit Kaffeeküche und eigenem WC ist ohne Weiteres realisierbar. Ebenso denkbar ist die Nutzung als eigenständiger Schlaf- oder sogar Gästebereich. Wer diesen Bereich dahingehend nutzen möchte, der könnte auch das gesamte Dachgeschoss den Kindern zur Verfügung stellen und bei Bedarf sogar drei bis vier Kinderzimmer einrichten.

Hausdaten

Hausart Icon
HausartZweifamilienhaus
Bauweise Icon
BauweiseHolz-Tafelbau
Baustil Icon
BaustilKlassische Familienhäuser
Fassade Icon
FassadePutz
Außenmaße Icon
Außenmaße11.39 m x 9.14 m
Wohnfläche Icon
Wohnfläche171 m²
Dachform Icon
DachformSattel-/Giebeldach
Etagen Icon
Etagen2
Energiestandard Icon
EnergiestandardEffizienzhaus 40
Immobilientyp Icon
ImmobilientypPlanungsidee
Dachneigung Icon
Dachneigung25°
Kniestock Icon
Kniestock2.25 m
Hauseigenschaften Icon
HauseigenschaftenEinliegerwohnung
Hausdämmstoff Icon
HausdämmstoffMineralfaser (Glaswolle, Steinwolle)
Heizungsart Icon
HeizungsartWärmepumpe (Luft, Wasser, oder beides)
Pfeil nach unten linksWir schaffen Platz für Ihre Träume

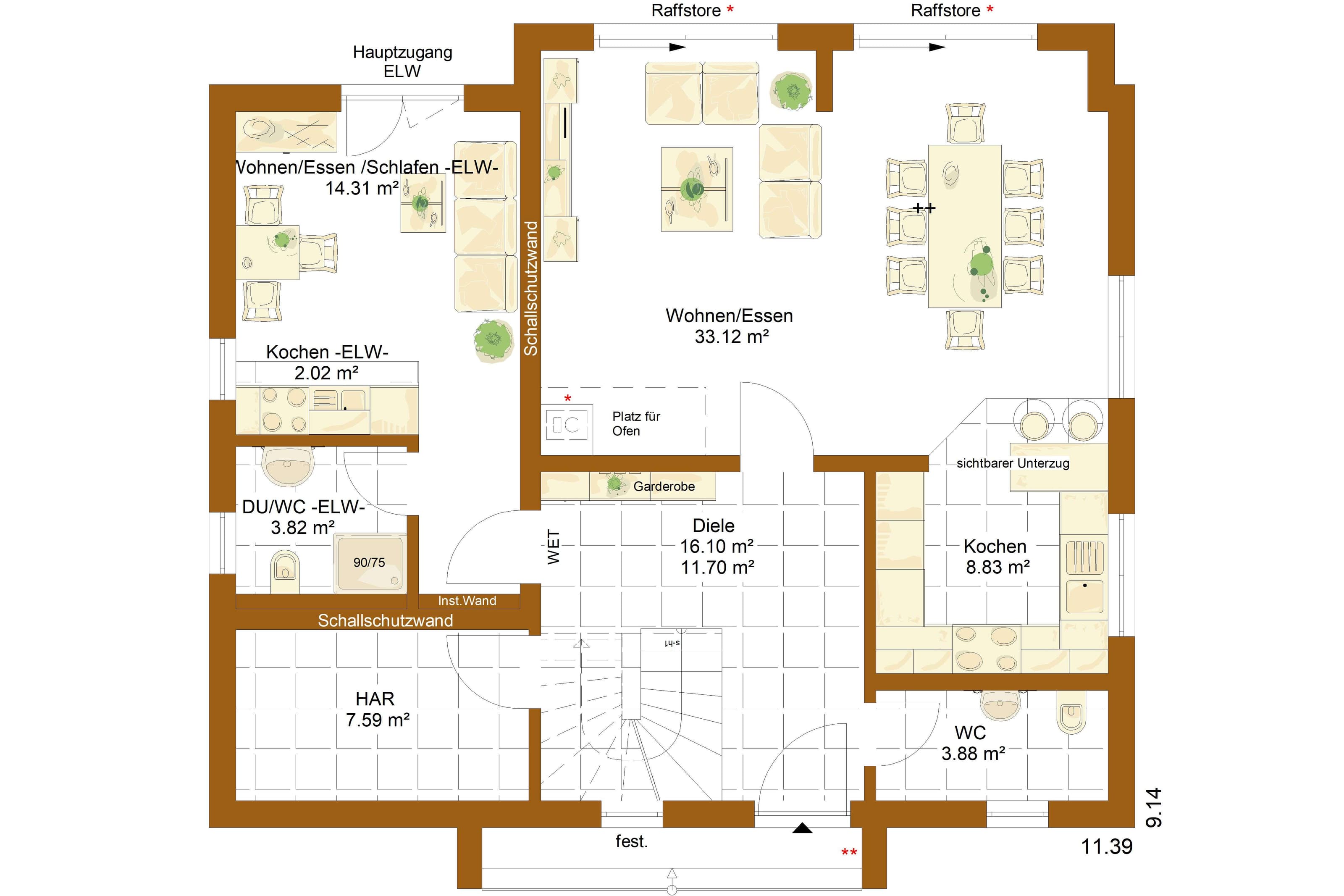
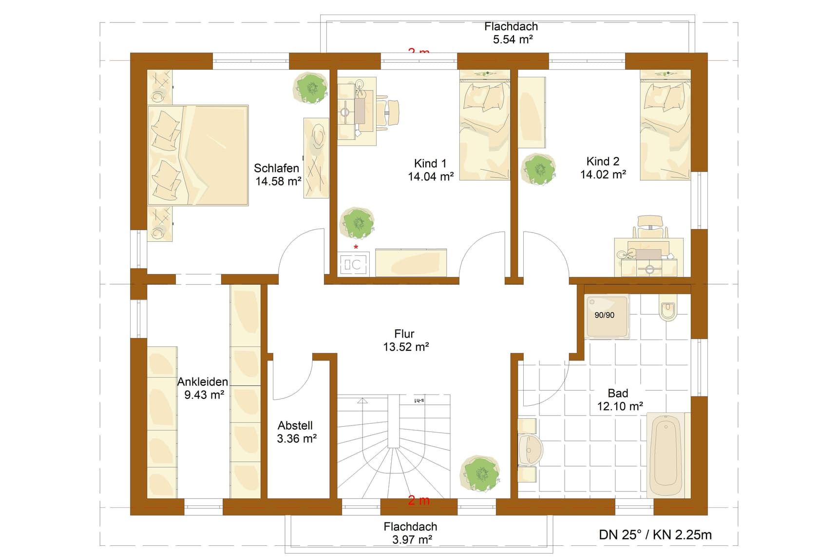
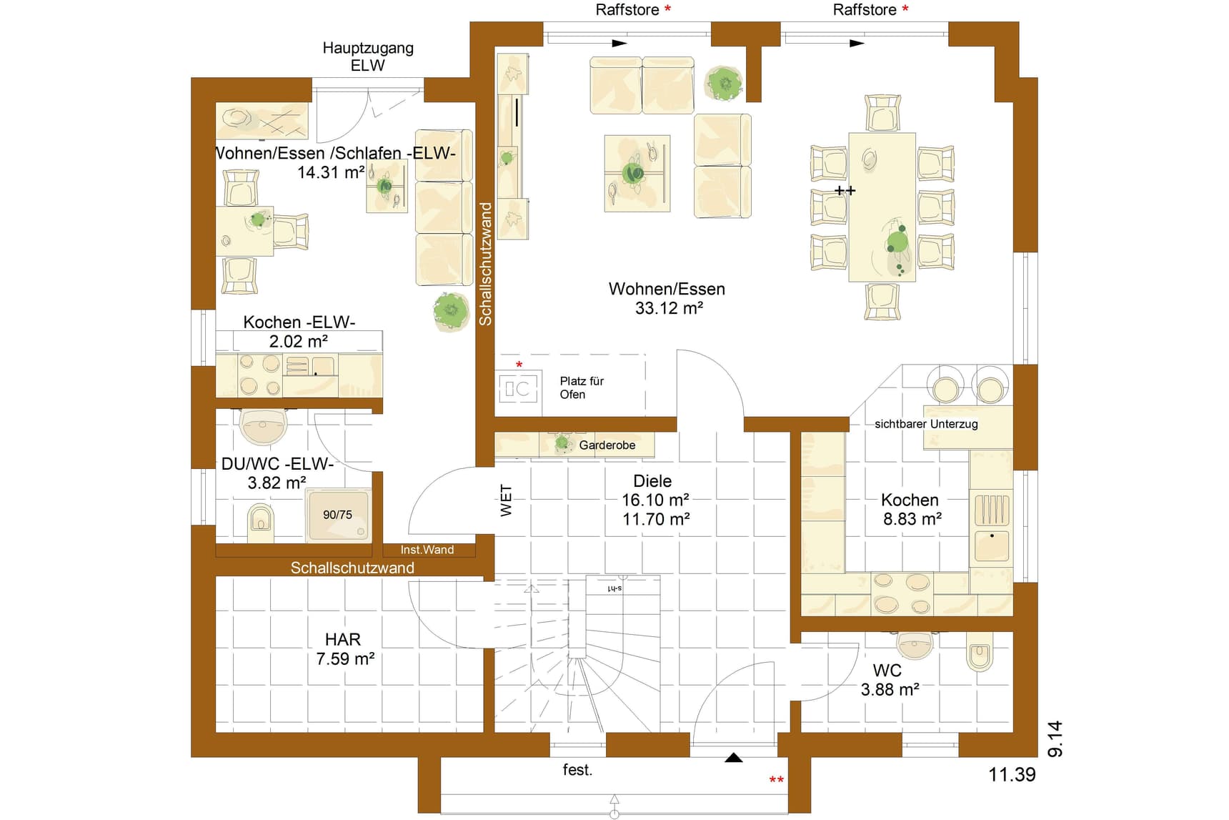
Grundriss

no description
Twinline R Matera Grundriss (EG)Wohnfläche EG: 90 m²
no description
Twinline R Matera Grundriss (DG)Wohnfläche DG: 81 m²

Kataloge

RENSCH-HAUS: Hauskatalog
RENSCH-HAUS

RENSCH-HAUS: Hauskatalog


House and TreeParksHouse and PinMusterhausHouse on HandAnbieter