1. AnbieterArrow Icon
  2. RENSCH-HAUSArrow Icon
  3. Life 159
Slide 1
Slide 2
no description
RENSCH-HAUSLife 159
homeKlassische Familienhäuser
livingArea161 m²
energyStandardEffizienzhaus 40 EE
Preis anfragen
Katalog bestellen

Life 159

So sieht Satteldacharchitektur heute aus

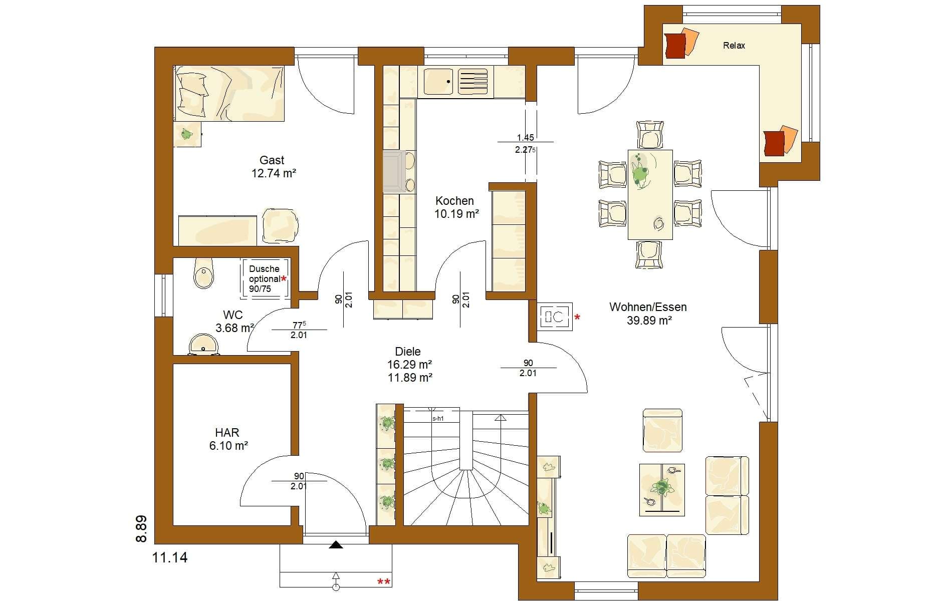
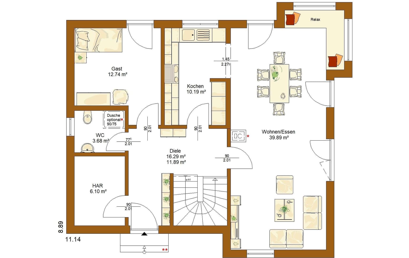
Die Anbauteilvarianten "Wohnraumerker" und "Relaxerker" vergrößern den Wohn- und Essbereich dieses modernen Einfamilienhauses und bilden auch von außen einen attraktiven Blickfang. Neben der offenen Küche befinden sich im Erdgeschoss auch noch ein Gästezimmer und ein WC.

Das Dachgeschoss bietet Platz für zwei gleich große Kinderzimmer, das Elternschlafzimmer mit Ankleidebereich sowie das Bad.

Verschiedene Grundrissvarianten und Architekturelemente sind möglich. Abgebildete Anbauteile gegebenenfalls gegen Aufpreis. Sprechen Sie bitte mit Ihrem Fachberater.

Hausdaten

Hausart Icon
HausartEinfamilienhaus
Bauweise Icon
BauweiseHolz-Tafelbau
Baustil Icon
BaustilKlassische Familienhäuser
Fassade Icon
FassadePutz
Außenmaße Icon
Außenmaße889 m x 1114 m
Wohnfläche Icon
Wohnfläche161.49 m²
Dachform Icon
DachformSattel-/Giebeldach
Energiestandard Icon
EnergiestandardEffizienzhaus 40 EE
Immobilientyp Icon
ImmobilientypPlanungsidee
Dachneigung Icon
Dachneigung25°
Kniestock Icon
Kniestock2.25 m
Hauseigenschaften Icon
HauseigenschaftenGästezimmer
Hausdämmstoff Icon
HausdämmstoffMineralfaser (Glaswolle, Steinwolle)
Heizungsart Icon
HeizungsartLüftungsheizung
Pfeil nach unten linksWir schaffen Platz für Ihre Träume

Grundriss

no description
Life 159 Grundriss (EG)Wohnfläche EG: 84,49 m²
no description
Life 159 Grundriss (DG)Wohnfläche DG: 77 m²

Kataloge

RENSCH-HAUS: Hauskatalog
RENSCH-HAUS

RENSCH-HAUS: Hauskatalog


House and TreeParksHouse and PinMusterhausHouse on HandAnbieter