1. AnbieterArrow Icon
  2. RENSCH-HAUSArrow Icon
  3. Life 156
Slide 1
Slide 2
Slide 3
Slide 4
no description
RENSCH-HAUSLife 156
homeKlassische Familienhäuser
livingArea150 m²
energyStandardEffizienzhaus 40 EE
Preis anfragen
Katalog bestellen

Life 156

Großzügige und intelligente Raumaufteilung

Im Life 156 wird der weite Wohn- und Essbereich mit offen angeschlossener Küche durch die Anbauteilvariante "Wohnraumerker" noch mehr vergrößert. Im Erdgeschoss findet sich außerdem noch Platz für ein Gästezimmer.

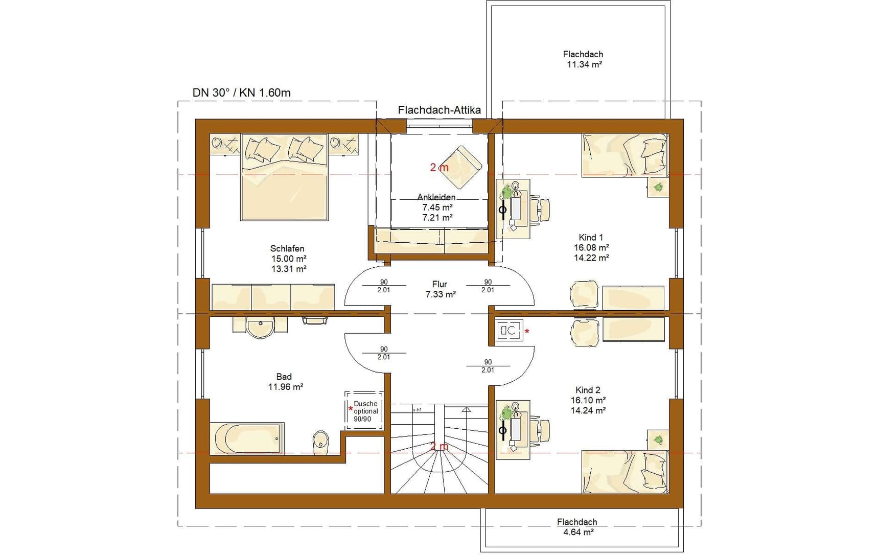
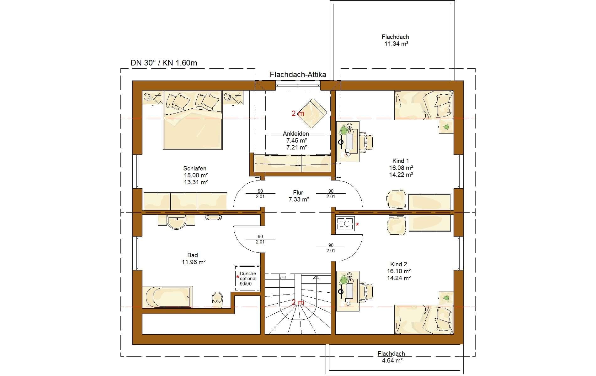
Das Dachgeschoss bietet Raum für das Familienbad, die beiden Kinderzimmer und das Elternschlafzimmer mit begehbarer Ankleide in der Attika.

Verschiedene Grundrissvarianten und Architekturelemente sind möglich. Abgebildete Anbauteile gegebenenfalls gegen Aufpreis. Sprechen Sie bitte mit Ihrem Fachberater.

Hausdaten

Hausart Icon
HausartEinfamilienhaus
Bauweise Icon
BauweiseHolz-Tafelbau
Baustil Icon
BaustilKlassische Familienhäuser
Fassade Icon
FassadePutz
Außenmaße Icon
Außenmaße889 m x 1114 m
Wohnfläche Icon
Wohnfläche149.61 m²
Dachform Icon
DachformSattel-/Giebeldach
Energiestandard Icon
EnergiestandardEffizienzhaus 40 EE
Immobilientyp Icon
ImmobilientypPlanungsidee
Dachneigung Icon
Dachneigung30°
Kniestock Icon
Kniestock1.6 m
Hauseigenschaften Icon
HauseigenschaftenGästezimmer
Hausdämmstoff Icon
HausdämmstoffMineralfaser (Glaswolle, Steinwolle)
Heizungsart Icon
HeizungsartLüftungsheizung
Pfeil nach unten linksWir schaffen Platz für Ihre Träume

Grundriss

no description
Life 156 Grundriss (EG)Wohnfläche EG: 81,34 m²
no description
Life 156 Grundriss (DG)Wohnfläche DG: 68,27 m²

Kataloge

RENSCH-HAUS: Hauskatalog
RENSCH-HAUS

RENSCH-HAUS: Hauskatalog


House and TreeParksHouse and PinMusterhausHouse on HandAnbieter