1. AnbieterArrow Icon
  2. RENSCH-HAUSArrow Icon
  3. CLOU 156
Slide 1
Slide 2
no description
RENSCH-HAUSCLOU 156
homeKlassische Familienhäuser
livingArea151 m²
energyStandardEffizienzhaus 40 EE
Preis anfragen
Katalog bestellen

CLOU 156

Variante mit Panorama-Cube

Die Anbauteilvariante Panorama-Cube vergrößert den Wohnraum unseres CLOU 156. Davon profitiert der großzügige Wohn-/Essbereich, an den die Küche offen angeschlossen ist. Ein Gästezimmer ist bereits im Erdgeschoss vorgesehen. Das Dachgeschoss bietet ausreichend Platz für zwei Kinderzimmer, das Bad, das Elternschlafzimmer und einen integrierten Ankleidebereich.

Verschiedene Grundrissvarianten und Architekturelemente sind möglich. Abgebildete Anbauteile gegebenenfalls gegen Aufpreis. Sprechen Sie bitte mit Ihrem Fachberater.

Hausdaten

Hausart Icon
HausartEinfamilienhaus
Bauweise Icon
BauweiseHolz-Tafelbau
Baustil Icon
BaustilKlassische Familienhäuser
Fassade Icon
FassadePutz
Außenmaße Icon
Außenmaße1114 m x 889 m
Wohnfläche Icon
Wohnfläche151.07 m²
Dachform Icon
DachformSattel-/Giebeldach
Energiestandard Icon
EnergiestandardEffizienzhaus 40 EE
Immobilientyp Icon
ImmobilientypPlanungsidee
Kniestock Icon
Kniestock0.9 m
Hausdämmstoff Icon
HausdämmstoffMineralfaser (Glaswolle, Steinwolle)
Heizungsart Icon
HeizungsartLüftungsheizung
Pfeil nach unten linksWir schaffen Platz für Ihre Träume

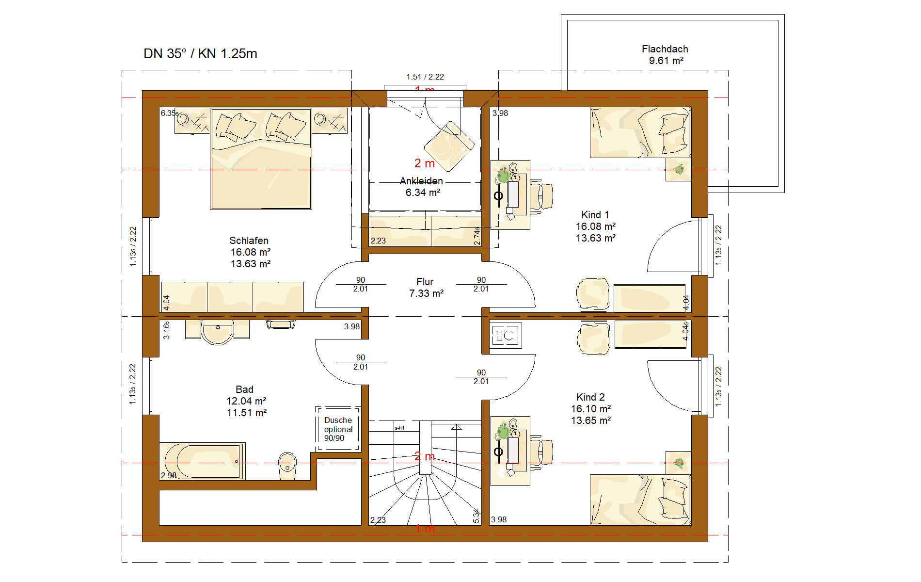
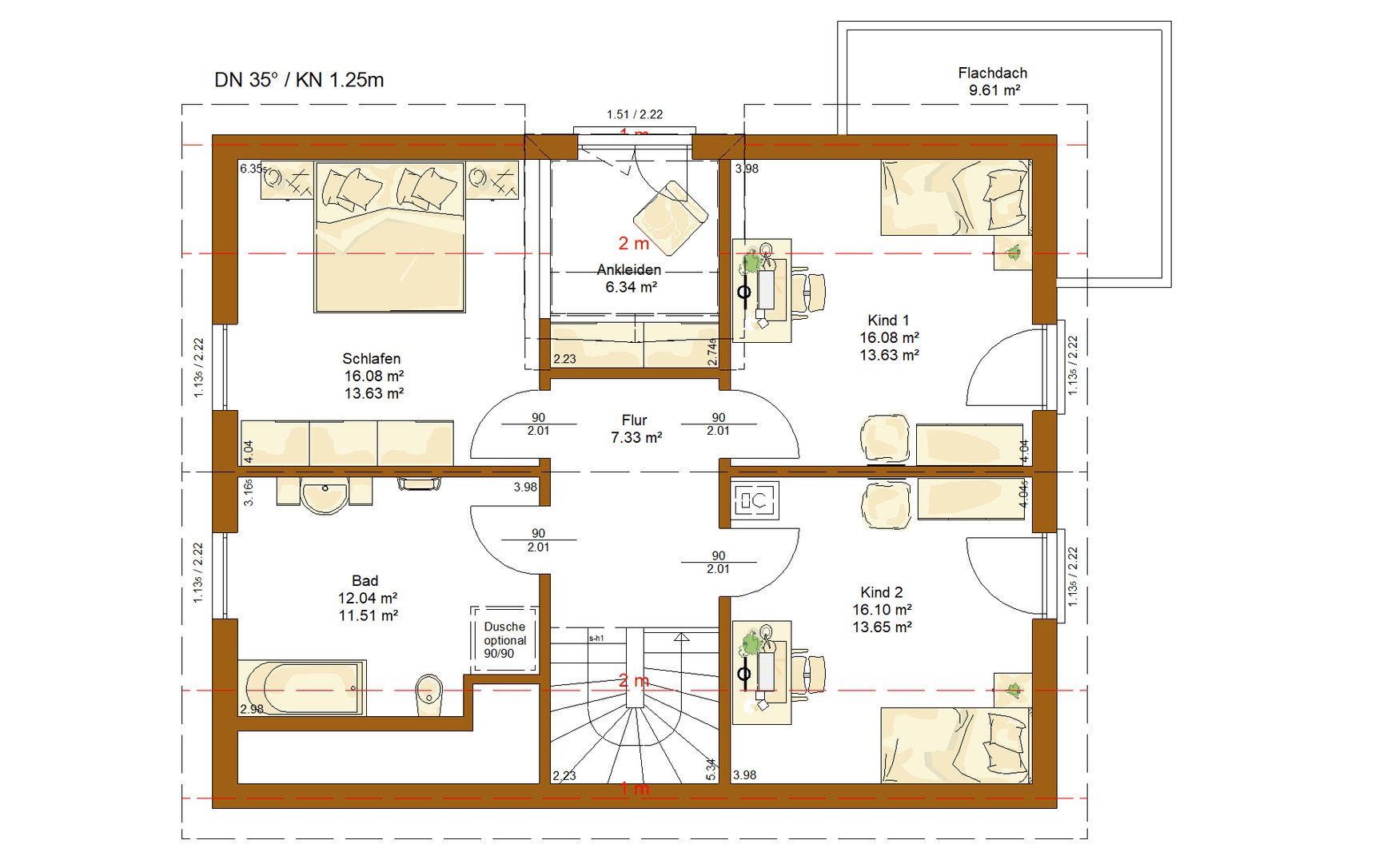
Grundriss

no description
CLOU 156 Grundriss (EG)Wohnfläche EG: 84,98 m²
no description
CLOU 156 Grundriss (DG)Wohnfläche DG: 66,09 m²

Kataloge

RENSCH-HAUS: Hauskatalog
RENSCH-HAUS

RENSCH-HAUS: Hauskatalog


House and TreeParksHouse and PinMusterhausHouse on HandAnbieter