1. AnbieterArrow Icon
  2. RENSCH-HAUSArrow Icon
  3. CLOU 140 (Variante 2)
Slide 1
Slide 2
Slide 3
Slide 4
no description
RENSCH-HAUSCLOU 140 (Variante 2)
homeKlassische Familienhäuser
livingArea144 m²
energyStandardEffizienzhaus 40 EE
Preis anfragen
Katalog bestellen

CLOU 140 (Variante 2)

Variante mit „Technikerker“, „Eingangsüberdachung“ und „Komforterker mit Terrassenüberdachung“ (optional gegen Aufpreis)

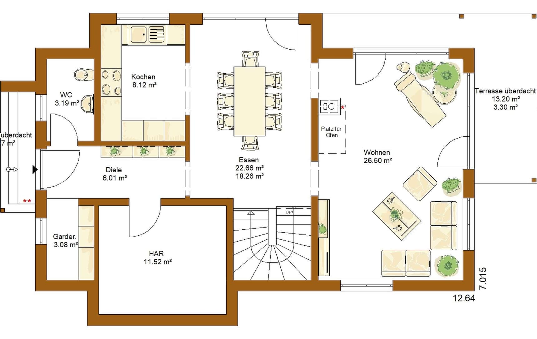
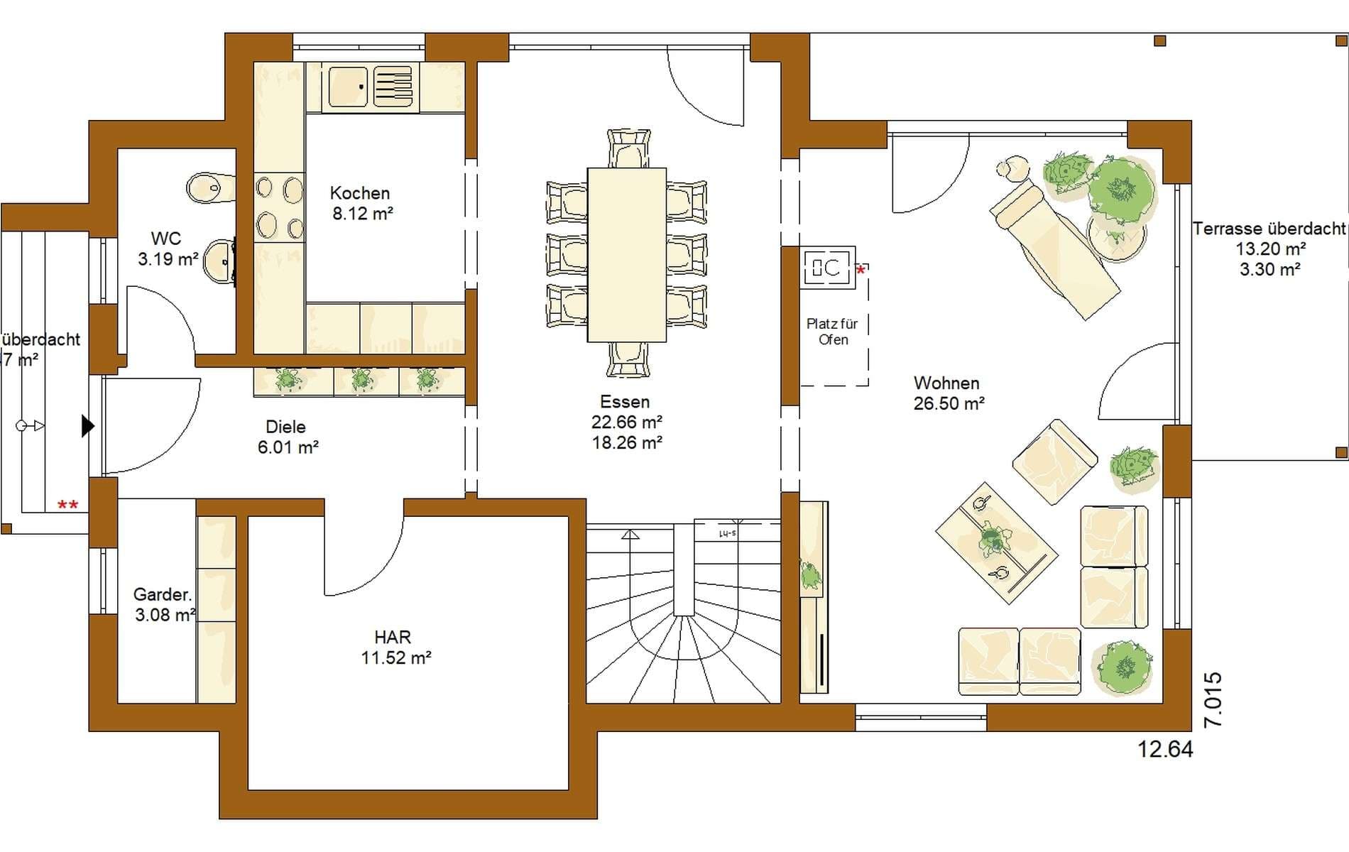
Dieses Haus bietet viel Raum für kreative Wohnideen. Der Essbereich ist als Zentrum des Hauses angelegt, das großzügige Wohnzimmer bietet den Zugang zur Terrasse. Im Dachgeschoss sind Eltern- und Kinderbad durch eine Schiebetür getrennt, wobei auch die gleichzeitige Nutzung möglich ist. Clever gelöst: Der Komforterker in Kombination mit der Terrassenüberdachung für mehr wetterunabhängigen Platz. CLOU 140 (Variante 2) ist das optimale Wohnkonzept für schmale Grundstücke.

Verschiedene Grundrissvarianten und Architekturelemente sind möglich. Abgebildete Anbauteile gegebenenfalls gegen Aufpreis. Sprechen Sie bitte mit Ihrem Fachberater.

Hausdaten

Hausart Icon
HausartEinfamilienhaus
Bauweise Icon
BauweiseHolz-Tafelbau
Baustil Icon
BaustilKlassische Familienhäuser
Fassade Icon
FassadePutz
Außenmaße Icon
Außenmaße12.64 m x 7.01 m
Wohnfläche Icon
Wohnfläche143.68 m²
Dachform Icon
DachformSattel-/Giebeldach
Energiestandard Icon
EnergiestandardEffizienzhaus 40 EE
Immobilientyp Icon
ImmobilientypPlanungsidee
Dachneigung Icon
Dachneigung25°
Kniestock Icon
Kniestock2.25 m
Hausdämmstoff Icon
HausdämmstoffMineralfaser (Glaswolle, Steinwolle)
Heizungsart Icon
HeizungsartLüftungsheizung
Pfeil nach unten linksWir schaffen Platz für Ihre Träume

Grundriss

no description
CLOU 140 (Variante 2) Grundriss (EG)Wohnfläche EG: 76,68 m²
no description
CLOU 140 (Variante 2) Grundriss (DG)Wohnfläche DG: 67 m²

Kataloge

RENSCH-HAUS: Hauskatalog
RENSCH-HAUS

RENSCH-HAUS: Hauskatalog


House and TreeParksHouse and PinMusterhausHouse on HandAnbieter