1. AnbieterArrow Icon
  2. RENSCH-HAUSArrow Icon
  3. CLOU 140.1
Slide 1
Slide 2
Slide 3
Slide 4
no description
RENSCH-HAUSCLOU 140.1
homeKlassische Familienhäuser
livingArea135 m²
energyStandardEffizienzhaus 40 EE
Preis anfragen
Katalog bestellen

CLOU 140.1

Variante mit „Eingangsüberdachung“ (optional gegen Aufpreis)

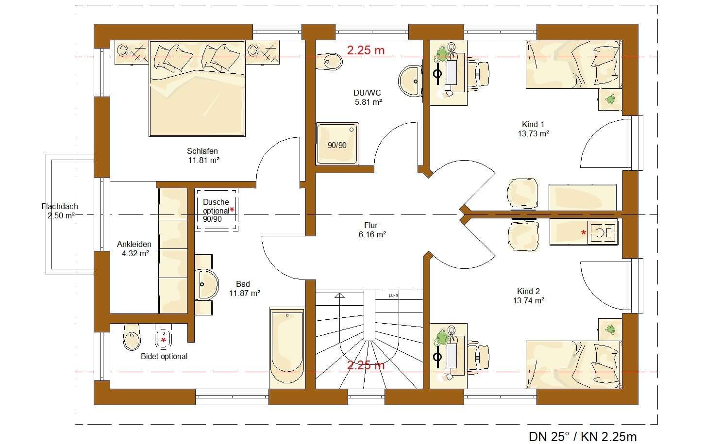
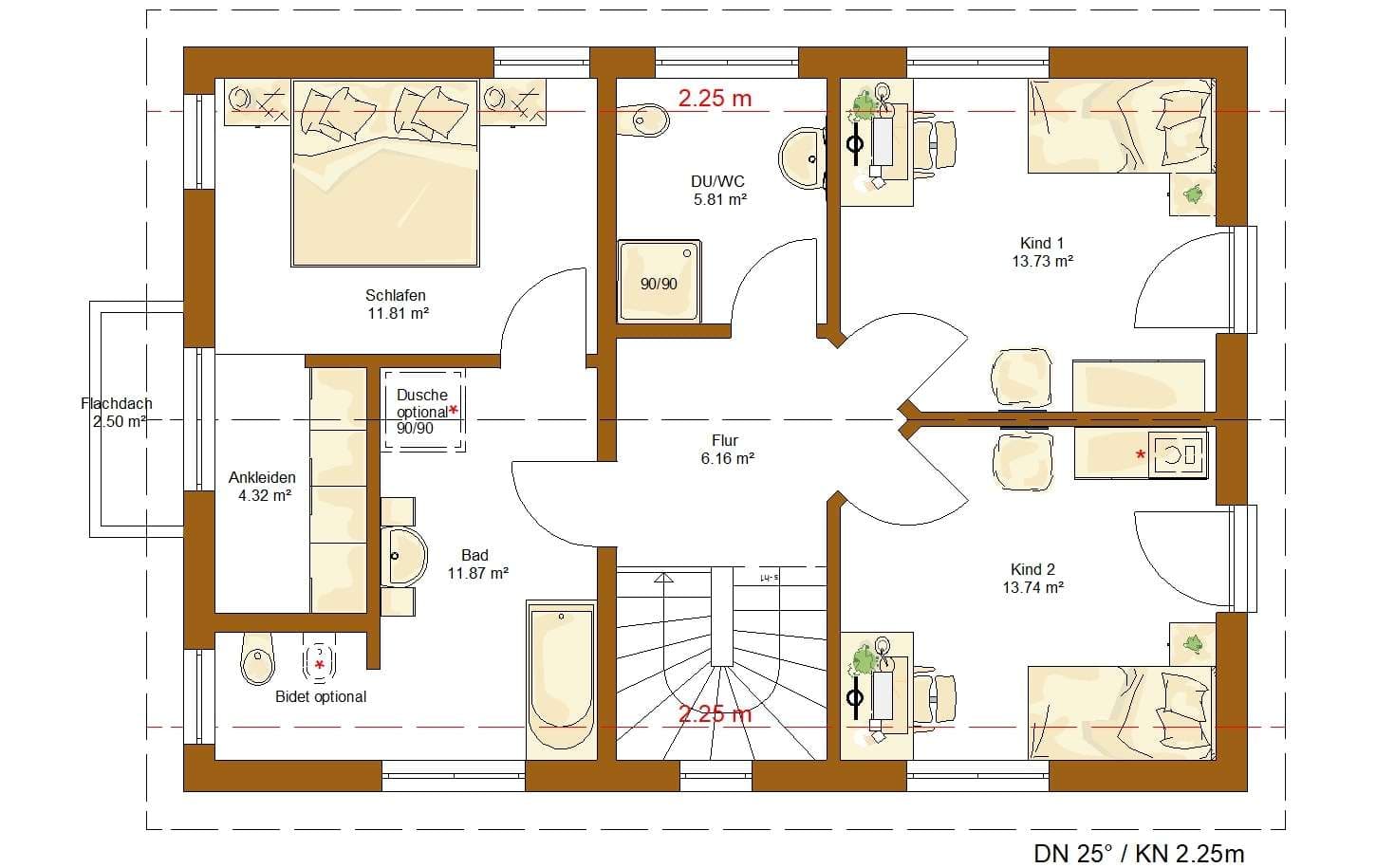
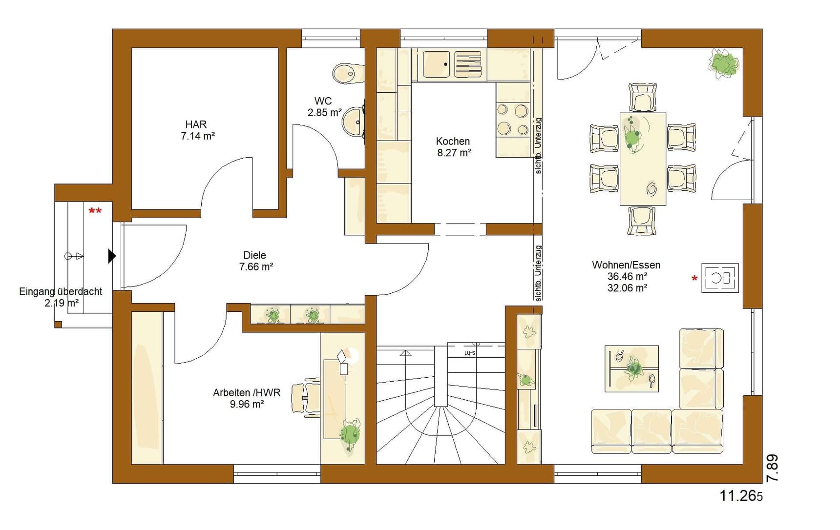
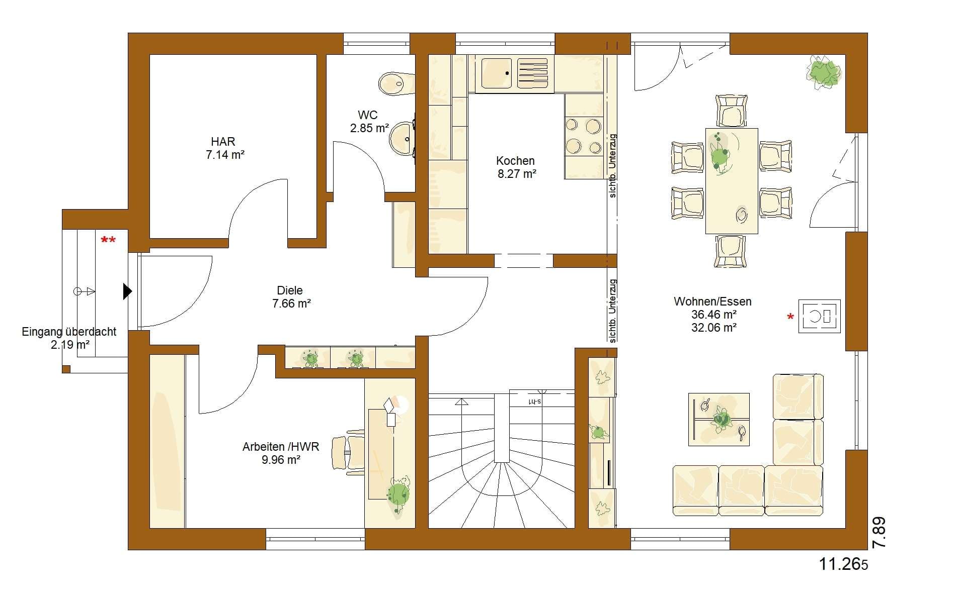
Von außen hat das CLOU 140.1 einen eher traditionellen Charakter. Innen beweist es eine sehr moderne Bauform. Kochen und Essen sind eine großzügige Einheit, der Wohnraum mit integrierter Treppe, die in das Dachgeschoss führt, ist separat. Im Dachgeschoss sind zwei gleich große Kinderzimmer integriert, ein Elternschlafzimmer mit Ankleide und ein modernes Bad gehören dazu. Auch CLOU 140.1 eignet sich besonders für schmale Grundstücke.

Verschiedene Grundrissvarianten und Architekturelemente sind möglich. Abgebildete Anbauteile gegebenenfalls gegen Aufpreis. Sprechen Sie bitte mit Ihrem Fachberater.

Hausdaten

Hausart Icon
HausartEinfamilienhaus
Bauweise Icon
BauweiseHolz-Tafelbau
Baustil Icon
BaustilKlassische Familienhäuser
Fassade Icon
FassadePutz
Außenmaße Icon
Außenmaße11.26 m x 7.89 m
Wohnfläche Icon
Wohnfläche135.38 m²
Dachform Icon
DachformSattel-/Giebeldach
Energiestandard Icon
EnergiestandardEffizienzhaus 40 EE
Immobilientyp Icon
ImmobilientypPlanungsidee
Dachneigung Icon
Dachneigung25°
Hausdämmstoff Icon
HausdämmstoffMineralfaser (Glaswolle, Steinwolle)
Heizungsart Icon
HeizungsartLüftungsheizung
Pfeil nach unten linksWir schaffen Platz für Ihre Träume

Grundriss

no description
CLOU 140.1 Grundriss (EG)Wohnfläche EG: 67,94 m²
no description
CLOU 140.1 Grundriss (DG)Wohnfläche DG: 67,44 m²

Kataloge

RENSCH-HAUS: Hauskatalog
RENSCH-HAUS

RENSCH-HAUS: Hauskatalog


House and TreeParksHouse and PinMusterhausHouse on HandAnbieter