1. AnbieterArrow Icon
  2. RENSCH-HAUSArrow Icon
  3. CLOU 138
Slide 1
Slide 2
Slide 3
no description
RENSCH-HAUSCLOU 138
homeKlassische Familienhäuser
livingArea138 m²
energyStandardEffizienzhaus 40 EE
Preis anfragen
Katalog bestellen

CLOU 138

Variante mit „Living-Space“ und „Eingangsüberdachung“ (optional gegen Aufpreis)

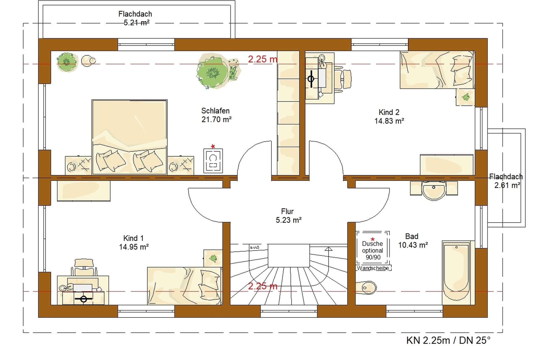
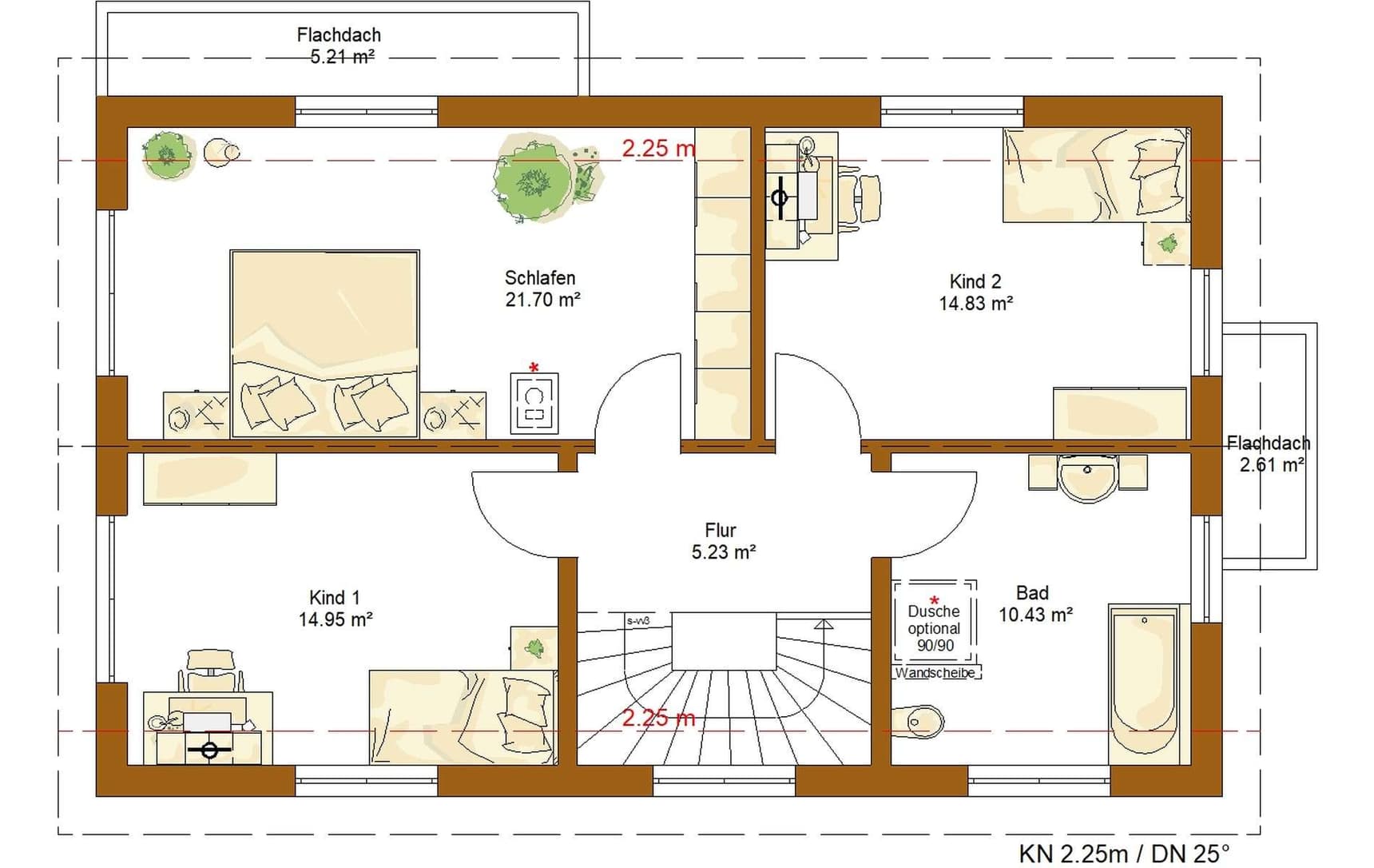
Dank Living-Space erstrecken sich im Erdgeschoss des CLOU 138 allein das kombinierte Wohnen und Essen auf über 35 m2 Wohnraum. Im Dachgeschoss erwarten die Bewohner ein extragroßes Schlafzimmer, zwei fast gleich große Kinderzimmer und das gemeinsame Familienbad. CLOU 138 empfiehlt sich auch für schmale Grundstücke.

Verschiedene Grundrissvarianten und Architekturelemente sind möglich. Abgebildete Anbauteile gegebenenfalls gegen Aufpreis. Sprechen Sie bitte mit Ihrem Fachberater.

Hausdaten

Hausart Icon
HausartEinfamilienhaus
Bauweise Icon
BauweiseHolz-Tafelbau
Baustil Icon
BaustilKlassische Familienhäuser
Fassade Icon
FassadePutz
Außenmaße Icon
Außenmaße11.89 m x 7.39 m
Wohnfläche Icon
Wohnfläche138.32 m²
Dachform Icon
DachformSattel-/Giebeldach
Energiestandard Icon
EnergiestandardEffizienzhaus 40 EE
Immobilientyp Icon
ImmobilientypPlanungsidee
Dachneigung Icon
Dachneigung25°
Kniestock Icon
Kniestock2.25 m
Hauseigenschaften Icon
HauseigenschaftenErker
Hausdämmstoff Icon
HausdämmstoffMineralfaser (Glaswolle, Steinwolle)
Heizungsart Icon
HeizungsartLüftungsheizung
Pfeil nach unten linksWir schaffen Platz für Ihre Träume

Grundriss

no description
CLOU 138 Grundriss (EG)Wohnfläche EG: 71,18 m²
no description
CLOU 138 Grundriss (DG)Wohnfläche DG: 67,14 m²

Kataloge

RENSCH-HAUS: Hauskatalog
RENSCH-HAUS

RENSCH-HAUS: Hauskatalog


House and TreeParksHouse and PinMusterhausHouse on HandAnbieter