1. AnbieterArrow Icon
  2. RENSCH-HAUSArrow Icon
  3. CLOU 135 Walmdach
Slide 1
Slide 2
Slide 3
Slide 4
no description
RENSCH-HAUSCLOU 135 Walmdach
homeStadtvillen
livingArea139 m²
energyStandardEffizienzhaus 40 EE
Preis anfragen
Katalog bestellen

CLOU 135 Walmdach

Variante mit "Living-Space" inklusive Balkon und Eingangsvordach auf Stützen

Das CLOU 135 mit Walmdach erinnert an die großzügigen Stadtvillen in den Dörfern und Städten am Mittelmeer. Küche und Essbereich werden mit dem Anbaumodul Living-Space ergänzt. Vom Wohnzimmer aus geht es direkt auf die überdachte Terrasse, die bei jedem Wetter eine Wohlfühloase ist. Zwei geräumige Kinderzimmer, Familienbad, Elternschlafzimmer mit integrierter Ankleide finden im Obergeschoss ihren Platz. Der große Balkon auf der Gartenseite
ist der absolute Ehrenplatz.

Verschiedene Grundrissvarianten und Architekturelemente sind möglich. Abgebildete Anbauteile gegebenenfalls gegen Aufpreis. Sprechen Sie bitte mit Ihrem Fachberater.

Hausdaten

Hausart Icon
HausartEinfamilienhaus
Bauweise Icon
BauweiseHolz-Tafelbau
Baustil Icon
BaustilStadtvillen
Fassade Icon
FassadePutz
Außenmaße Icon
Außenmaße87.65 m x 97.65 m
Wohnfläche Icon
Wohnfläche138.96 m²
Dachform Icon
DachformWalm-/Zeltdach
Energiestandard Icon
EnergiestandardEffizienzhaus 40 EE
Immobilientyp Icon
ImmobilientypPlanungsidee
Dachneigung Icon
Dachneigung25°
Hauseigenschaften Icon
HauseigenschaftenTerasse
Hausdämmstoff Icon
HausdämmstoffMineralfaser (Glaswolle, Steinwolle)
Heizungsart Icon
HeizungsartLüftungsheizung
Pfeil nach unten linksWir schaffen Platz für Ihre Träume

Grundriss

no description
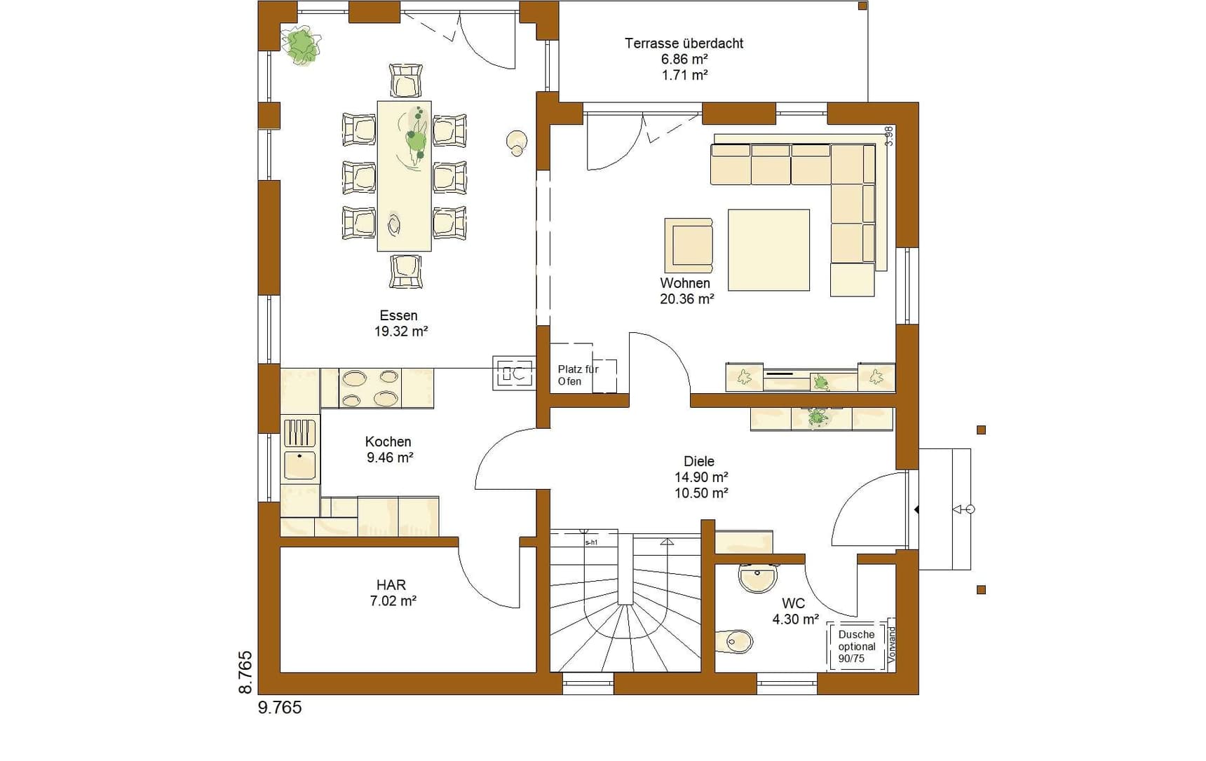
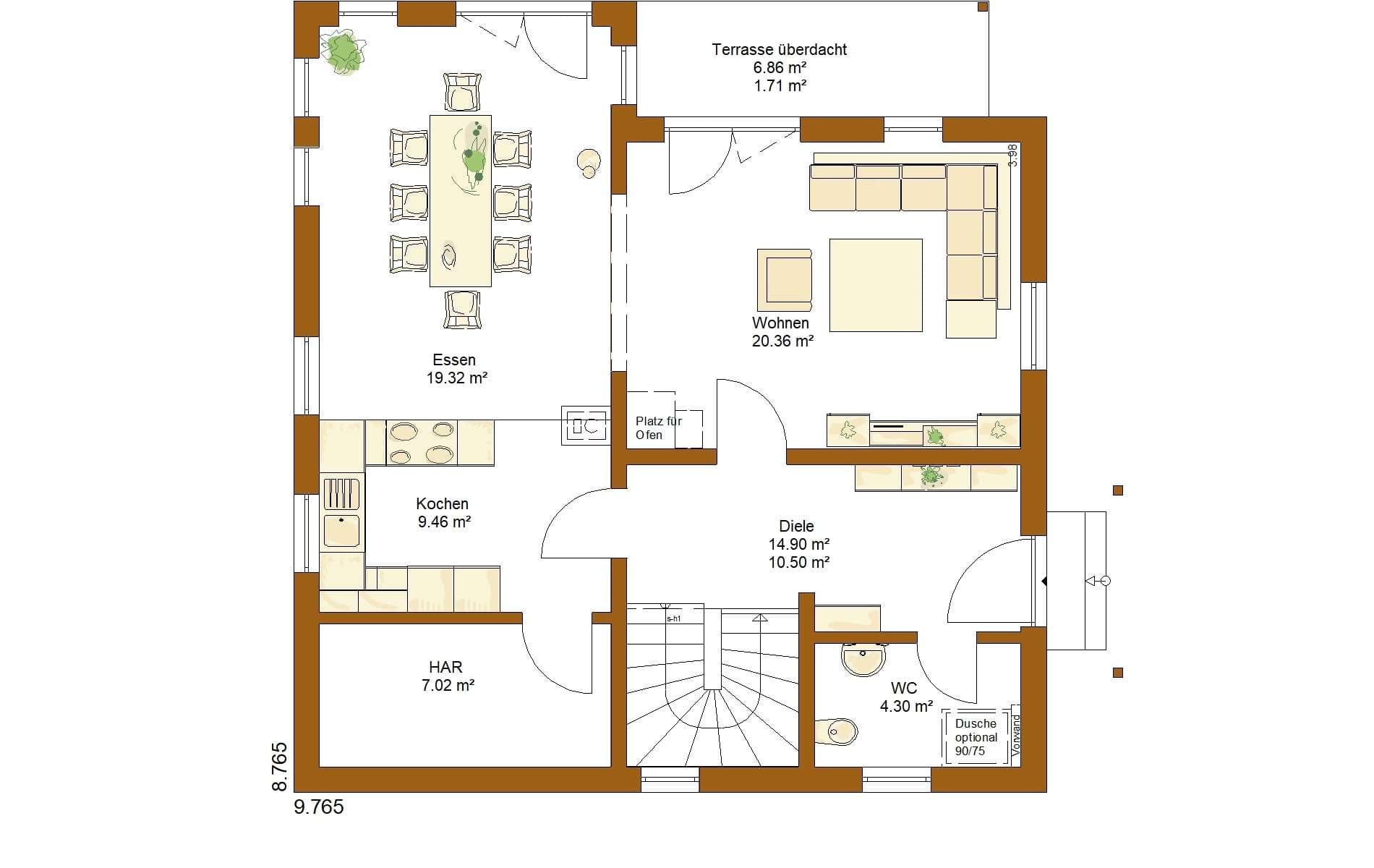
CLOU 135 Walmdach Grundriss (EG)Wohnfläche EG: 70,96 m²
no description
CLOU 135 Walmdach Grundriss (OG)

Kataloge

RENSCH-HAUS: Hauskatalog
RENSCH-HAUS

RENSCH-HAUS: Hauskatalog


House and TreeParksHouse and PinMusterhausHouse on HandAnbieter