1. AnbieterArrow Icon
  2. RENSCH-HAUSArrow Icon
  3. CLOU 135 Satteldach
Slide 1
Slide 2
Slide 3
Slide 4
no description
RENSCH-HAUSCLOU 135 Satteldach
homeStadtvillen
livingArea131 m²
energyStandardEffizienzhaus 40 EE
Preis anfragen
Katalog bestellen

CLOU 135 Satteldach

Variante mit Satteldach

Überzeugend stilsicher und puristisch präsentiert sich das CLOU 135 mit Satteldach.

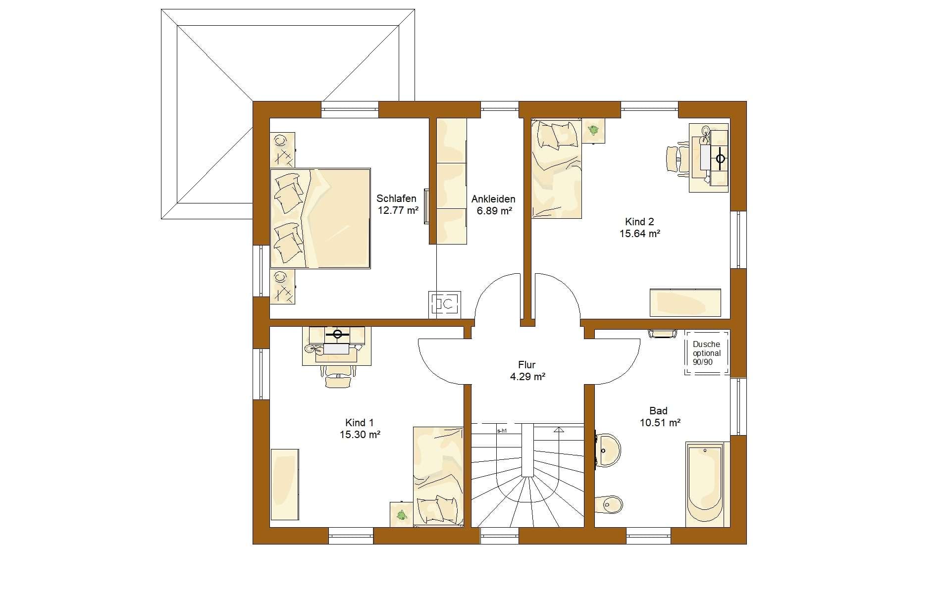
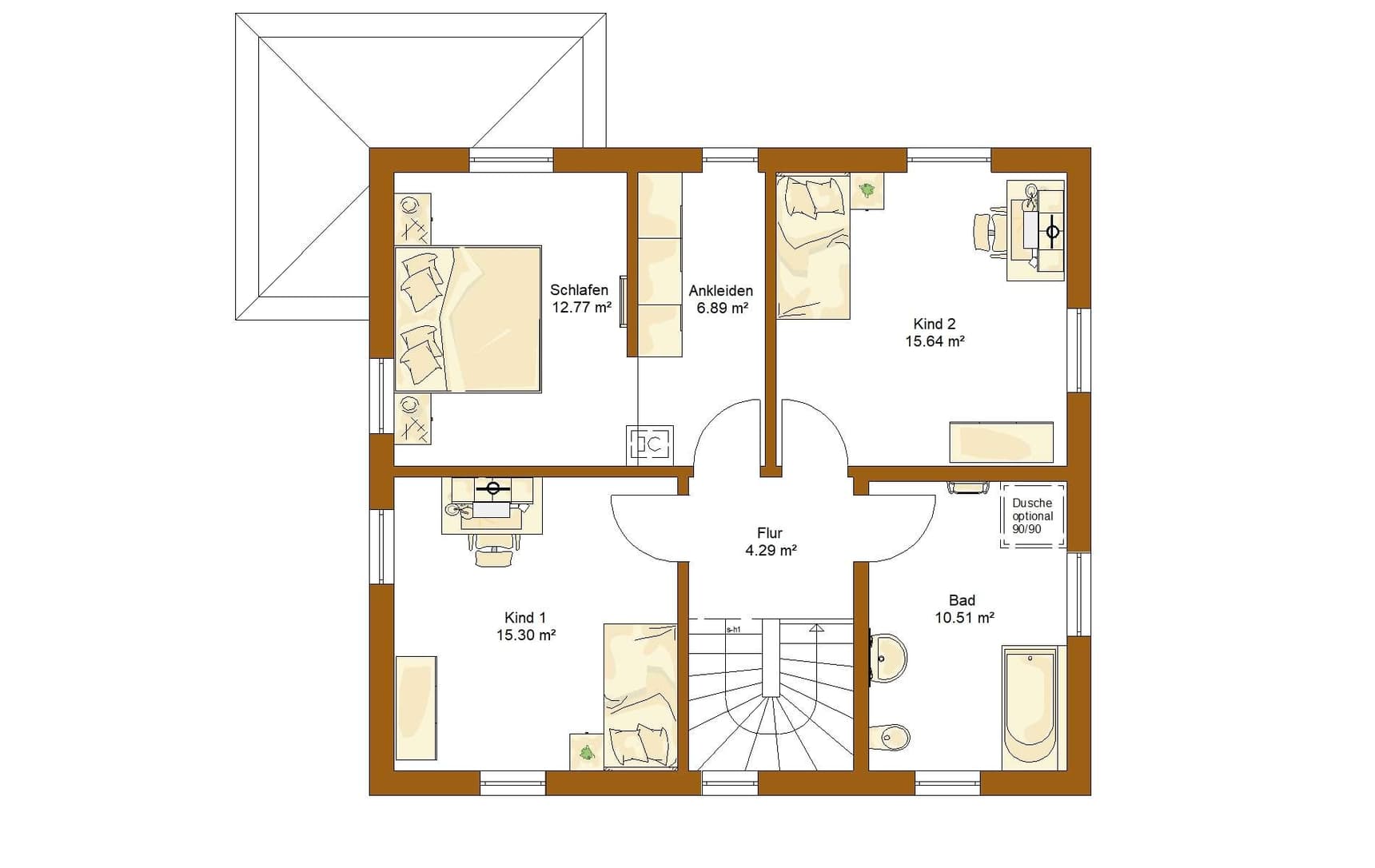
Kochen und Essen auf über 23 m² und in direktem Anschluss das Wohnzimmer mit weiteren 20 m² schaffen Platz für die ganze Familie. Im Obergeschoss findet sich Platz für zwei geräumige Kinderzimmer, das Bad und das Elternschlafzimmer mit integrierter Ankleide.

Verschiedene Grundrissvarianten und Architekturelemente sind möglich. Abgebildete Anbauteile gegebenenfalls gegen Aufpreis. Sprechen Sie bitte mit Ihrem Fachberater.

Hausdaten

Hausart Icon
HausartEinfamilienhaus
Bauweise Icon
BauweiseHolz-Tafelbau
Baustil Icon
BaustilStadtvillen
Fassade Icon
FassadePutz
Außenmaße Icon
Außenmaße87.65 m x 97.65 m
Wohnfläche Icon
Wohnfläche130.96 m²
Dachform Icon
DachformSattel-/Giebeldach
Energiestandard Icon
EnergiestandardEffizienzhaus 40 EE
Immobilientyp Icon
ImmobilientypPlanungsidee
Dachneigung Icon
Dachneigung25°
Hauseigenschaften Icon
HauseigenschaftenErker
Hausdämmstoff Icon
HausdämmstoffMineralfaser (Glaswolle, Steinwolle)
Heizungsart Icon
HeizungsartLüftungsheizung
Pfeil nach unten linksWir schaffen Platz für Ihre Träume

Grundriss

no description
CLOU 135 Satteldach Grundriss (EG)Wohnfläche EG: 65,28 m²
no description
CLOU 135 Satteldach Grundriss (OG)

Kataloge

RENSCH-HAUS: Hauskatalog
RENSCH-HAUS

RENSCH-HAUS: Hauskatalog


House and TreeParksHouse and PinMusterhausHouse on HandAnbieter