1. AnbieterArrow Icon
  2. RENSCH-HAUSArrow Icon
  3. CLOU 135.1
Slide 1
Slide 2
Slide 3
Slide 4
no description
RENSCH-HAUSCLOU 135.1
homeKlassische Familienhäuser
livingArea137 m²
energyStandardEffizienzhaus 40 EE
Preis anfragen
Katalog bestellen

CLOU 135.1

Variante mit „Technikerker“ und „Living-Space“ (optional gegen Aufpreis)

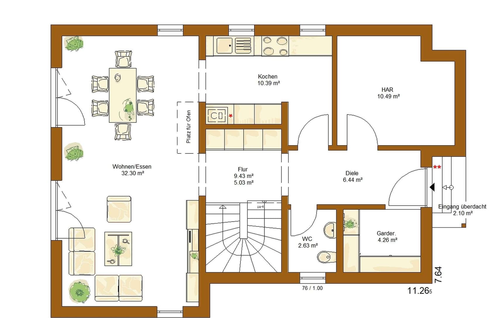
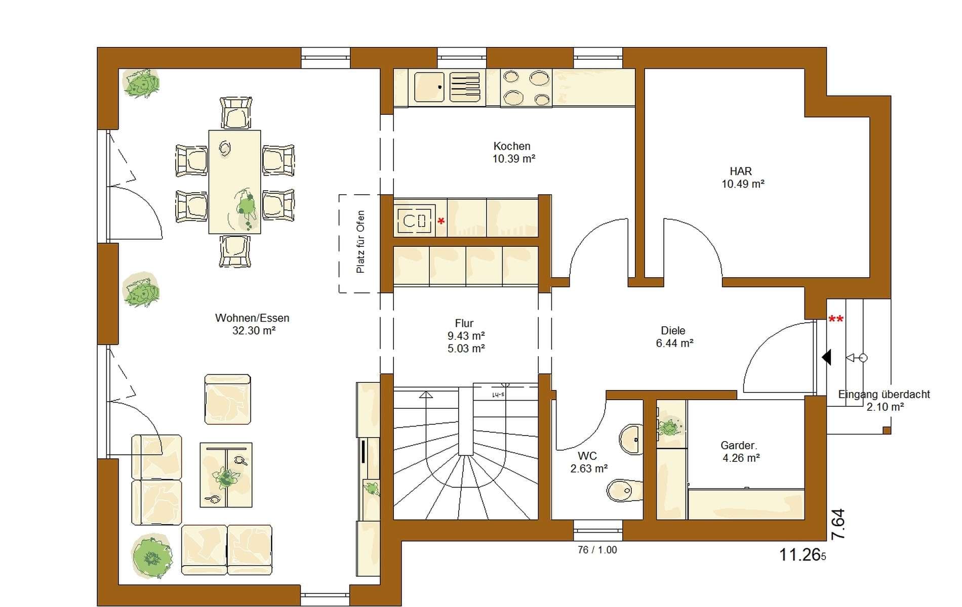
Der Living-Space und der Technikerker bei CLOU 135.1 erzeugen eine pfiffige, moderne Optik und schaffen gleichzeitig praktischen Nutzen. Die Eingangsüberdachung schützt vor Regen. Ein Mehr bietet CLOU 135.1 im Wohn- und Essbereich mit über 32 m2, was die Großzügigkeit des Hauses unterstreicht. Der Flur bietet viel Platz für einen großen Abstellschrank und eine separate Garderobe.

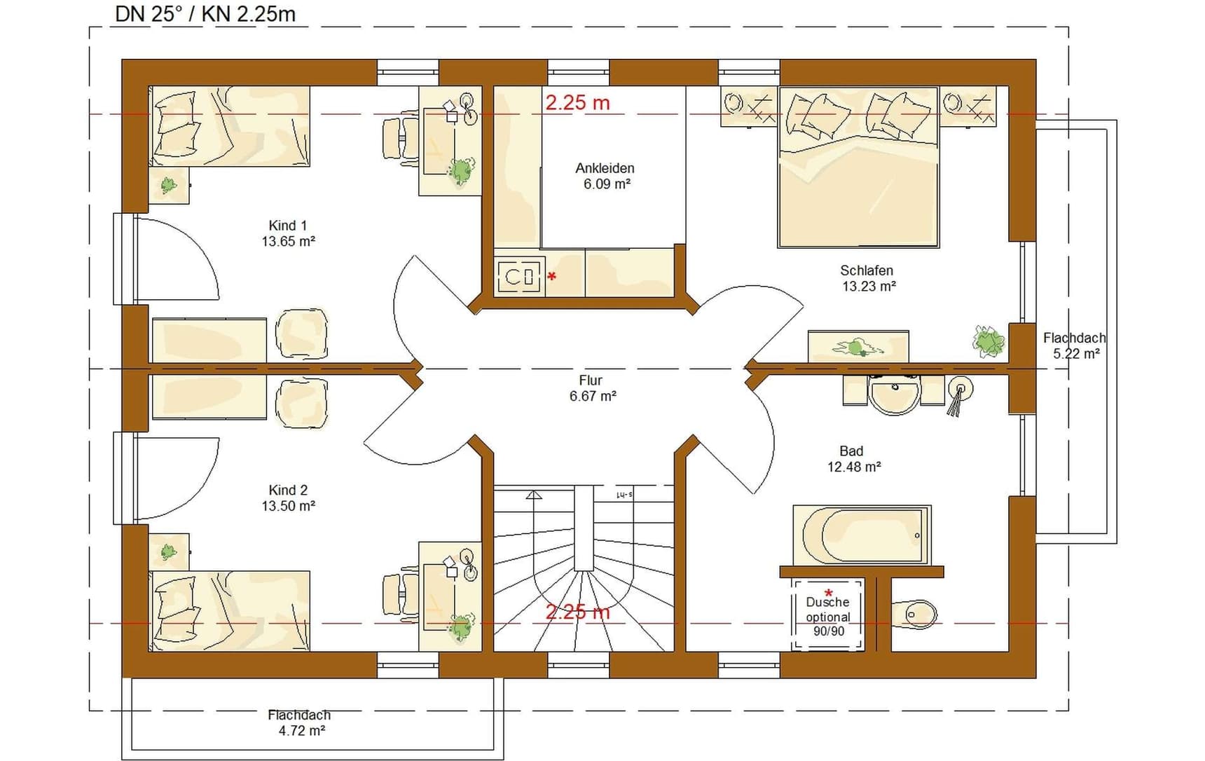
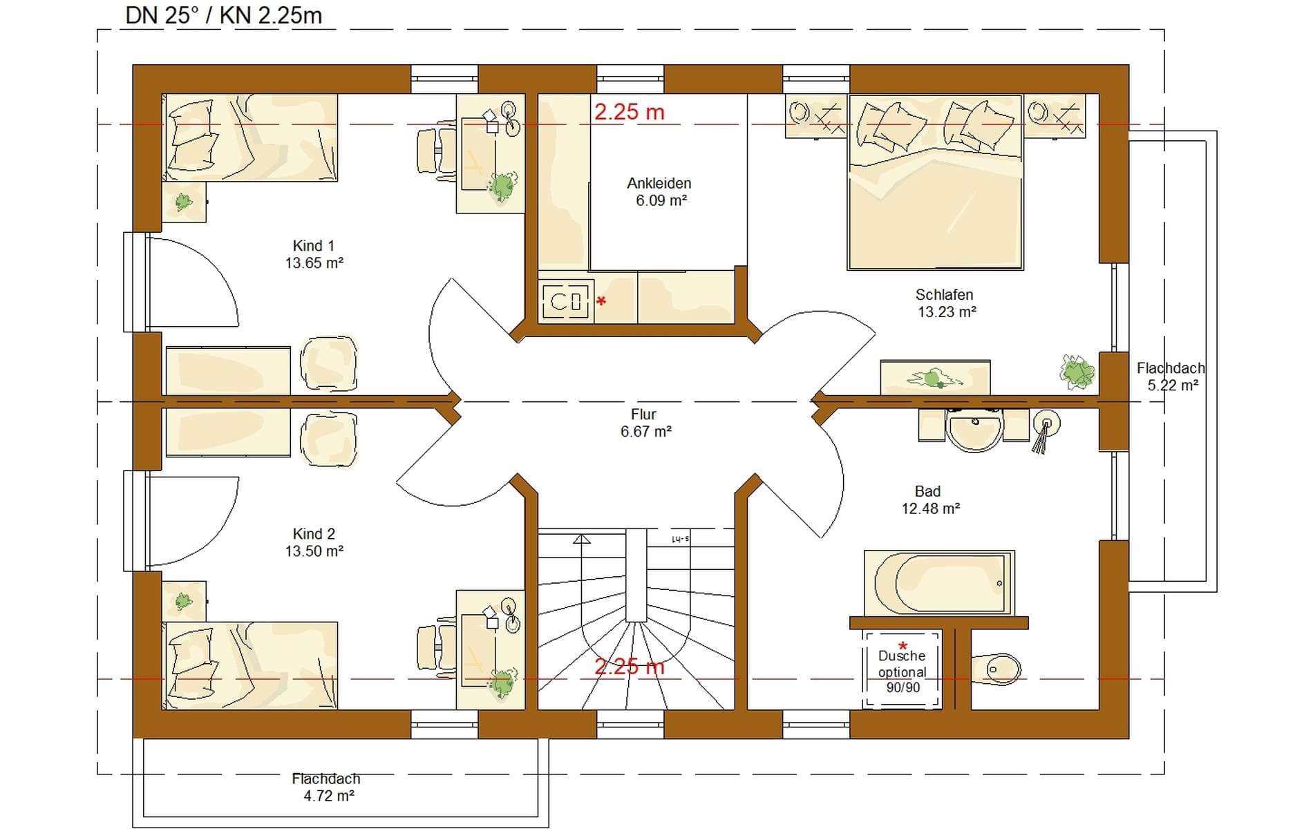
Im Obergeschoss erwartet die Bewohner zwei geräumige Kinderzimmer, ein Bad, das Elternschlafzimmer mit integrierter Ankleide. CLOU 135.1 eignet sich optimal für schmale Grundstücke.

Verschiedene Grundrissvarianten und Architekturelemente sind möglich. Abgebildete Anbauteile gegebenenfalls gegen Aufpreis. Sprechen Sie bitte mit Ihrem Fachberater.

Hausdaten

Hausart Icon
HausartEinfamilienhaus
Bauweise Icon
BauweiseHolz-Tafelbau
Baustil Icon
BaustilKlassische Familienhäuser
Fassade Icon
FassadePutz
Außenmaße Icon
Außenmaße11.26 m x 7.64 m
Wohnfläche Icon
Wohnfläche137.16 m²
Dachform Icon
DachformSattel-/Giebeldach
Energiestandard Icon
EnergiestandardEffizienzhaus 40 EE
Immobilientyp Icon
ImmobilientypPlanungsidee
Dachneigung Icon
Dachneigung25°
Kniestock Icon
Kniestock2.25 m
Hauseigenschaften Icon
HauseigenschaftenErker
Hausdämmstoff Icon
HausdämmstoffMineralfaser (Glaswolle, Steinwolle)
Heizungsart Icon
HeizungsartLüftungsheizung
Pfeil nach unten linksWir schaffen Platz für Ihre Träume

Grundriss

no description
CLOU 135.1 Grundriss (EG)Wohnfläche EG: 71,54 m²
no description
CLOU 135.1 Grundriss (DG)Wohnfläche DG: 65,62 m²

Kataloge

RENSCH-HAUS: Hauskatalog
RENSCH-HAUS

RENSCH-HAUS: Hauskatalog


House and TreeParksHouse and PinMusterhausHouse on HandAnbieter