1. AnbieterArrow Icon
  2. RENSCH-HAUSArrow Icon
  3. CLOU 123.1
Slide 1
Slide 2
Slide 3
Slide 4
no description
RENSCH-HAUSCLOU 123.1
homeKlassische Familienhäuser
livingArea122 m²
energyStandardEffizienzhaus 40 EE
Preis anfragen
Katalog bestellen

CLOU 123.1

Kompakte Außenmaße und innen viel Platz für die Familie

Besonderes Highlight ist im Erdgeschoss das Wohn- und Esszimmer, welches sich über die gesamte Hausbreite erstreckt und direkt an die offene Küche anschließt. Optionale Anbauten sorgen hier für noch mehr Platz und ganz nebenbei für eine moderne Optik. Durch den hohen Kniestock ist das Dachgeschoss ein wahres Raumwunder, denn neben den beiden Kinderzimmern, dem Schlafzimmer und dem Bad wird die Etage durch eine Ankleide vollendet.

Verschiedene Grundrissvarianten und Architekturelemente sind möglich. Abgebildete Anbauteile gegebenenfalls gegen Aufpreis. Sprechen Sie bitte mit Ihrem Fachberater.

Hausdaten

Hausart Icon
HausartEinfamilienhaus
Bauweise Icon
BauweiseHolz-Tafelbau
Baustil Icon
BaustilKlassische Familienhäuser
Fassade Icon
FassadePutz
Außenmaße Icon
Außenmaße8.26 m x 9.51 m
Wohnfläche Icon
Wohnfläche122.31 m²
Dachform Icon
DachformSattel-/Giebeldach
Energiestandard Icon
EnergiestandardEffizienzhaus 40 EE
Immobilientyp Icon
ImmobilientypPlanungsidee
Dachneigung Icon
Dachneigung25°
Kniestock Icon
Kniestock2.25 m
Hauseigenschaften Icon
HauseigenschaftenTerasse
Hausdämmstoff Icon
HausdämmstoffMineralfaser (Glaswolle, Steinwolle)
Heizungsart Icon
HeizungsartLüftungsheizung
Pfeil nach unten linksWir schaffen Platz für Ihre Träume

Grundriss

no description
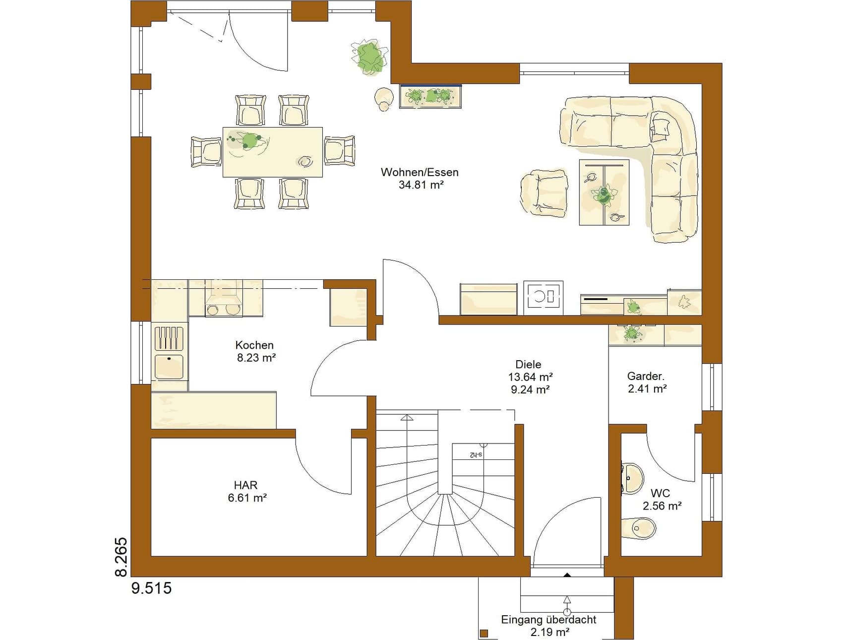
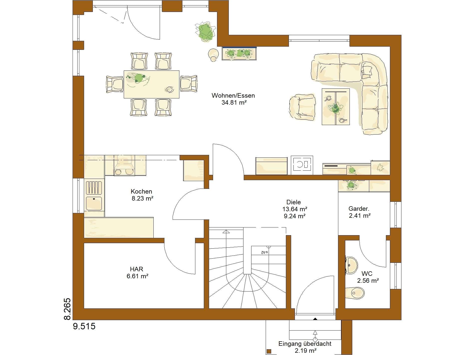
CLOU 123.1 Grundriss (EG)Wohnfläche EG: 63,86 m²
no description
CLOU 123.1 Grundriss (DG)Wohnfläche DG: 58,45 m²

Kataloge

RENSCH-HAUS: Hauskatalog
RENSCH-HAUS

RENSCH-HAUS: Hauskatalog


House and TreeParksHouse and PinMusterhausHouse on HandAnbieter