1. AnbieterArrow Icon
  2. RENSCH-HAUSArrow Icon
  3. CLOU 119.1
Slide 1
Slide 2
Slide 3
Slide 4
no description
RENSCH-HAUSCLOU 119.1
homeKlassische Familienhäuser
livingArea125 m²
energyStandardEffizienzhaus 40 EE
Preis anfragen
Katalog bestellen

CLOU 119.1

Ein kompaktes und modernes Haus mit tollem Raumprogramm

Das flache Satteldach mit hohem Kniestock schenkt diesem beliebten Einfamilienhaus eine großzügige und attraktive Atmosphäre. Der mehr als 40 m² große Wohn-, Essen und Kochbereich wird für die ganze Familie zu einem sehr geräumigen Wohlfühlbereich. Zwei große Kinderzimmer, das Elternschlafzimmer und das gemeinsame Familienbad schaffen bei dieser Dachgeschosslösung viel Platz.

Verschiedene Grundrissvarianten und Architekturelemente sind möglich. Abgebildete Anbauteile gegebenenfalls gegen Aufpreis. Sprechen Sie bitte mit Ihrem Fachberater.

Hausdaten

Hausart Icon
HausartEinfamilienhaus
Bauweise Icon
BauweiseHolz-Tafelbau
Baustil Icon
BaustilKlassische Familienhäuser
Fassade Icon
FassadePutz
Außenmaße Icon
Außenmaße8.01 m x 9.51 m
Wohnfläche Icon
Wohnfläche124.75 m²
Dachform Icon
DachformSattel-/Giebeldach
Energiestandard Icon
EnergiestandardEffizienzhaus 40 EE
Immobilientyp Icon
ImmobilientypPlanungsidee
Dachneigung Icon
Dachneigung25°
Kniestock Icon
Kniestock2.25 m
Hauseigenschaften Icon
HauseigenschaftenTerasse
Hausdämmstoff Icon
HausdämmstoffMineralfaser (Glaswolle, Steinwolle)
Heizungsart Icon
HeizungsartLüftungsheizung
Pfeil nach unten linksWir schaffen Platz für Ihre Träume

Grundriss

no description
CLOU 119.1 Grundriss (EG)Wohnfläche EG: 67,45 m²
no description
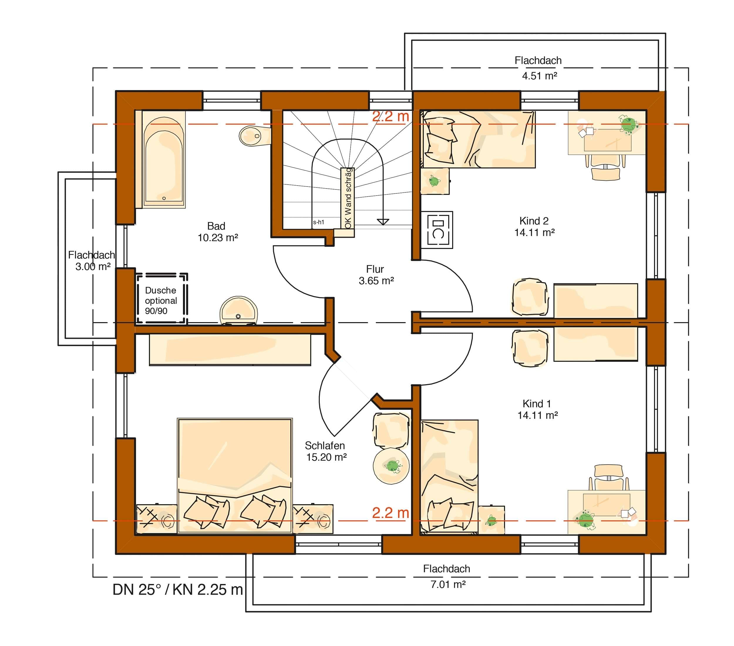
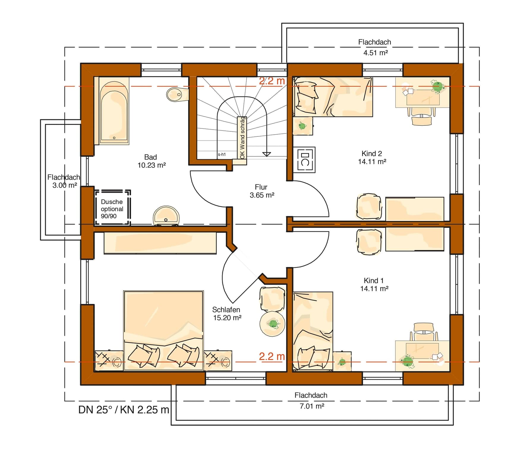
CLOU 119.1 Grundriss (DG)Wohnfläche DG: 57,3 m²

Kataloge

RENSCH-HAUS: Hauskatalog
RENSCH-HAUS

RENSCH-HAUS: Hauskatalog


House and TreeParksHouse and PinMusterhausHouse on HandAnbieter