1. AnbieterArrow Icon
  2. RENSCH-HAUSArrow Icon
  3. Twinline R Catania
Slide 1
Slide 2
Slide 3
Slide 4
no description
RENSCH-HAUSTwinline R Catania
homeKlassische Familienhäuser
livingArea127 m²
energyStandardEffizienzhaus 40
Preis anfragen
Katalog bestellen

Twinline R Catania

Moderne, zeitlose Formen, die nie langweilig werden

Das Doppelhaus Catania präsentiert ein unverwechselbares Zusammenspiel moderner Formen, wie die über die Dachfläche geführten Attikagiebel und die gegenläufig zueinander angeordneten Pultdächer. Die jeweiligen Gebäudeabschlusswände der beiden Haushälften sind zusätzlich über die Fassade hinausgezogen und dienen sowohl im Eingangs- als auch im Terrassenbereich als Sichtschutz.

Im Inneren des Hauses wartet ein ideales Raumprogramm für eine vierköpfige Familie. Das Erdgeschoss ist ganz und gar dem gemeinsamen Familienleben gewidmet und bietet für Kochen, Essen und Wohnen über 52 m² Platz. Selbst eine gemütliche Leseecke direkt vor dem Kamin ist für Sie geplant.

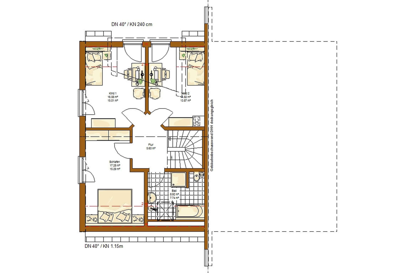
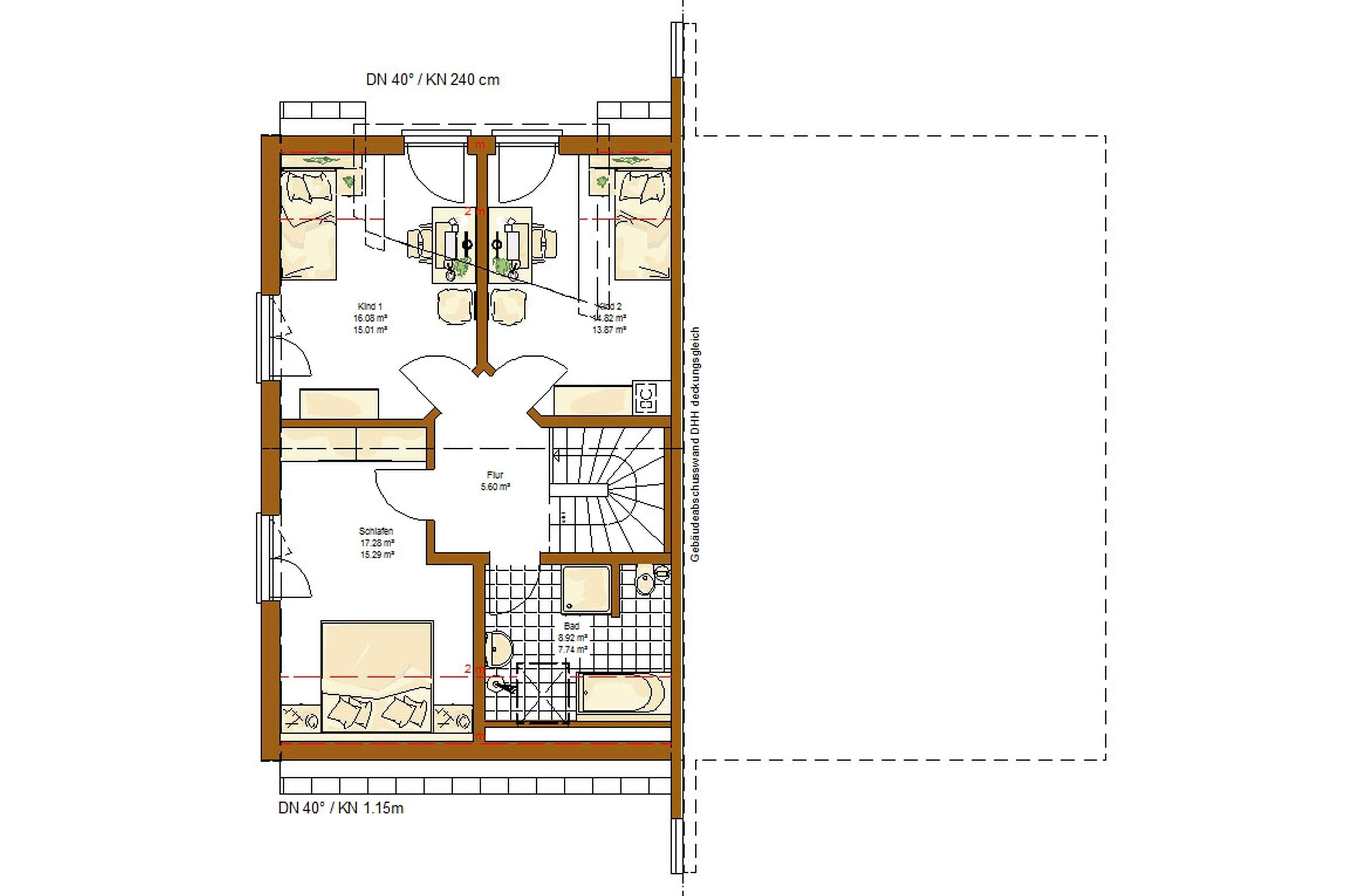
Im Dachgeschoss profitieren die beiden großzügigen Kinderzimmer vom dritten Giebel mit Pultdach. Der bringt noch mehr Licht und noch mehr Raum in die Welt der Kinder. Gegenüberliegend sind das Elternschlafzimmer und das gemeinsame Familienbad untergebracht.

Hausdaten

Hausart Icon
HausartDoppelhaus
Bauweise Icon
BauweiseHolz-Tafelbau
Baustil Icon
BaustilKlassische Familienhäuser
Fassade Icon
FassadePutz
Außenmaße Icon
Außenmaße7.5 m x 11.14 m
Wohnfläche Icon
Wohnfläche127 m²
Dachform Icon
DachformSattel-/Giebeldach
Etagen Icon
Etagen2
Energiestandard Icon
EnergiestandardEffizienzhaus 40
Immobilientyp Icon
ImmobilientypPlanungsidee
Dachneigung Icon
Dachneigung40°
Kniestock Icon
Kniestock1.15 m
Hauseigenschaften Icon
HauseigenschaftenTerasse
Hausdämmstoff Icon
HausdämmstoffMineralfaser (Glaswolle, Steinwolle)
Heizungsart Icon
HeizungsartWärmepumpe (Luft, Wasser, oder beides)
Pfeil nach unten linksWir schaffen Platz für Ihre Träume

Grundriss

no description
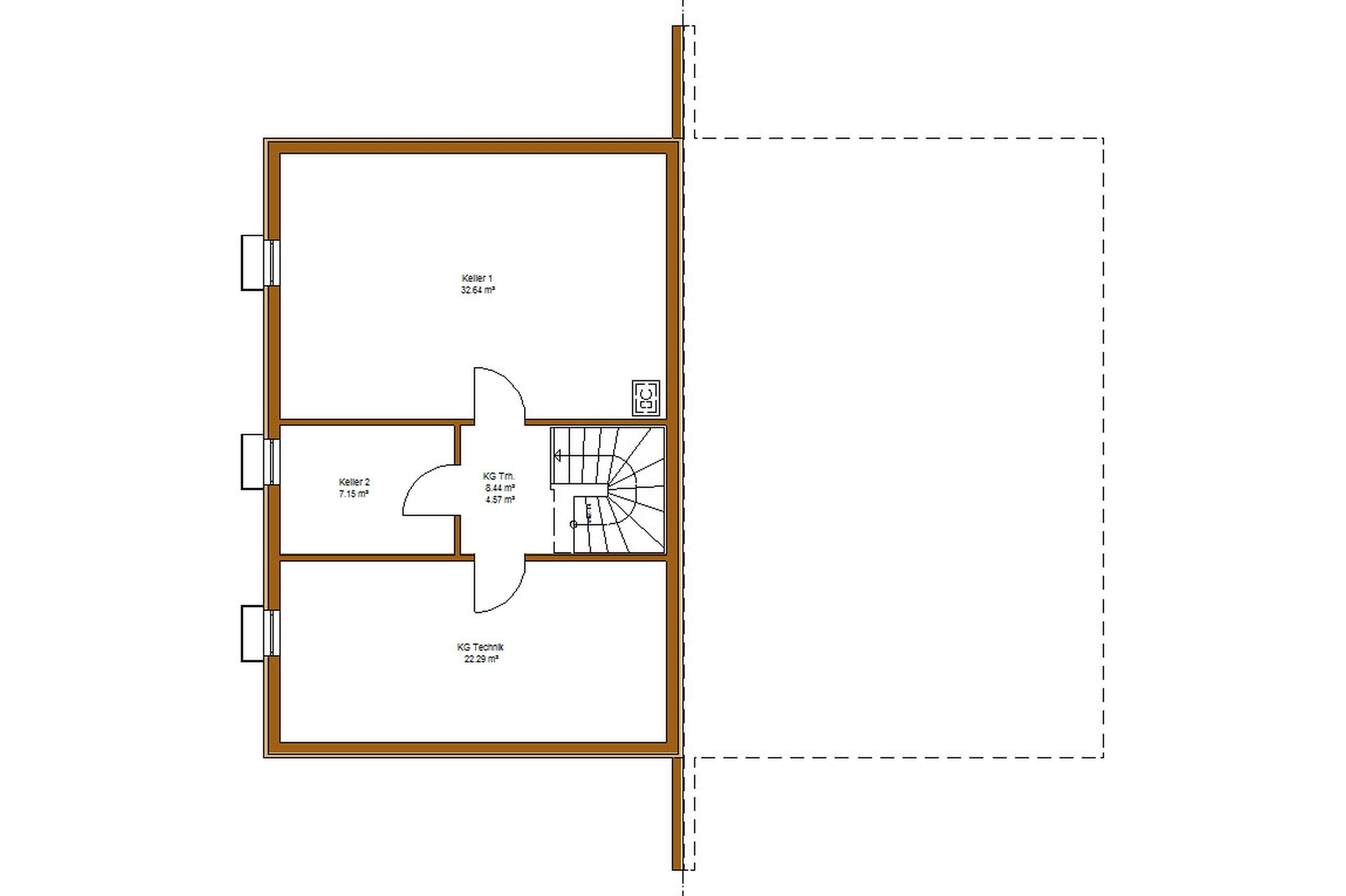
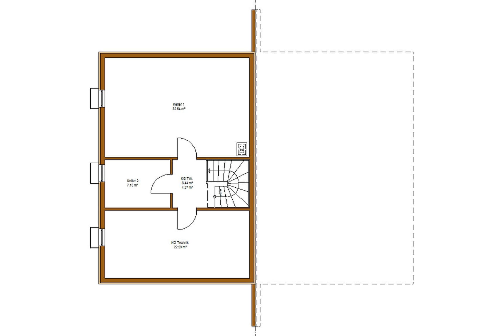
Twinline R Catania Grundriss (Keller)
no description
Twinline R Catania Grundriss (EG)Wohnfläche EG: 64 m²
no description
Twinline R Catania Grundriss (DG)Wohnfläche DG: 63 m²

Kataloge

RENSCH-HAUS: Hauskatalog
RENSCH-HAUS

RENSCH-HAUS: Hauskatalog


House and TreeParksHouse and PinMusterhausHouse on HandAnbieter