1. AnbieterArrow Icon
  2. RENSCH-HAUSArrow Icon
  3. Bungalow Monaco XL
Slide 1
Slide 2
no description
RENSCH-HAUSBungalow Monaco XL
homeBungalow
livingArea125 m²
energyStandardEffizienzhaus 40 EE
Preis anfragen
Katalog bestellen

Bungalow Monaco XL

Moderner Flachdach-Bungalow

Beim Bungalow Monaco haben Sie einen gemütlichen Terrassenbereich, auf dem Sie Entspannung und Ruhe finden. Durch diese überdachte Terrasse wird ein nahtloser Übergang vom modernen Wohnraum zu Ihrer grünen Gartenoase geschaffen.

Nutzen Sie unsere Ideen beim Bungalow Monaco als Inspiration für Ihre persönlichen Wohnwünsche - klassisch mit Walm- oder modern mit Flachdach.

Hausdaten

Hausart Icon
HausartEinfamilienhaus
Bauweise Icon
BauweiseHolz-Tafelbau
Baustil Icon
BaustilBungalow
Fassade Icon
FassadePutz
Außenmaße Icon
Außenmaße13.64 m x 10.01 m
Wohnfläche Icon
Wohnfläche125 m²
Dachform Icon
DachformFlachdach
Etagen Icon
Etagen1
Energiestandard Icon
EnergiestandardEffizienzhaus 40 EE
Immobilientyp Icon
ImmobilientypPlanungsidee
Hauseigenschaften Icon
HauseigenschaftenGästezimmer
Hausdämmstoff Icon
HausdämmstoffMineralfaser (Glaswolle, Steinwolle)
Heizungsart Icon
HeizungsartWärmepumpe (Luft, Wasser, oder beides)
Pfeil nach unten linksWir schaffen Platz für Ihre Träume

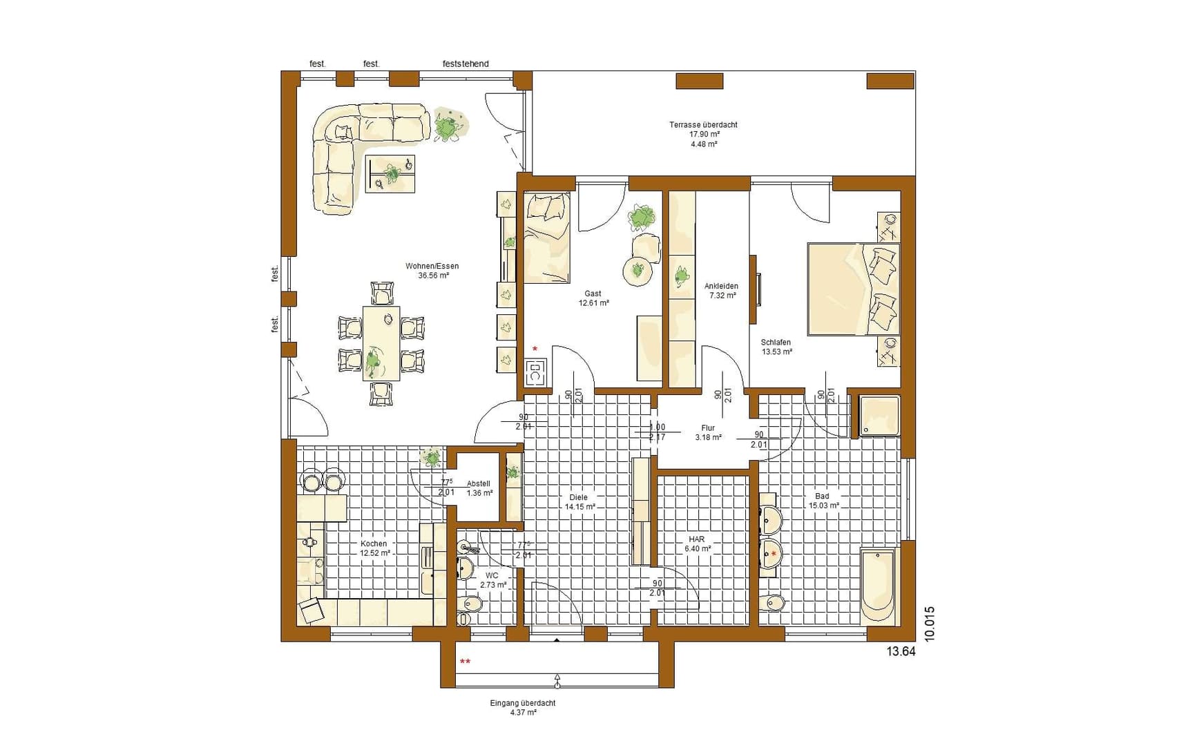
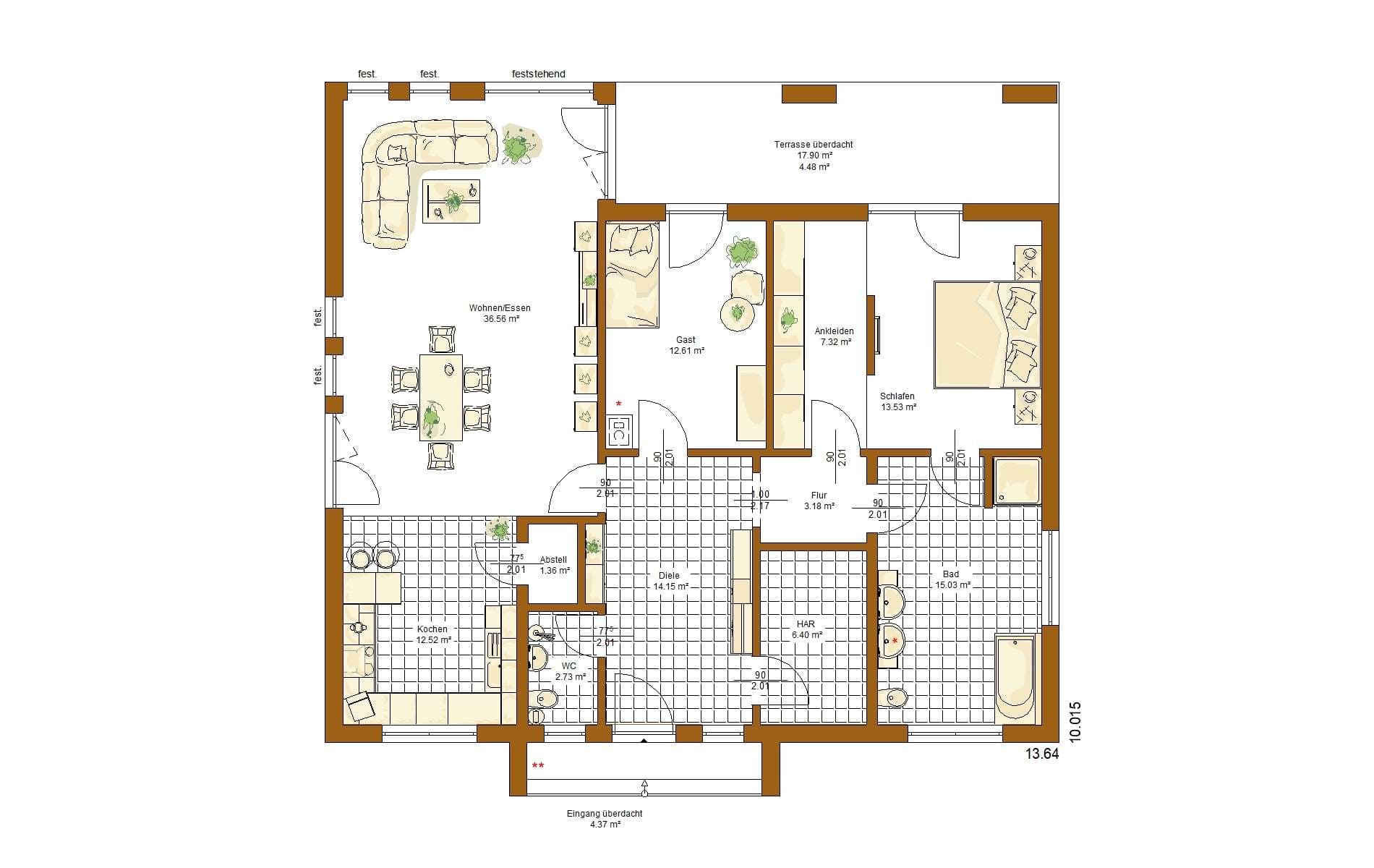
Grundriss

no description
Bungalow Monaco XL Grundriss (EG)Wohnfläche EG: 125 m²

Kataloge

RENSCH-HAUS: Hauskatalog
RENSCH-HAUS

RENSCH-HAUS: Hauskatalog


House and TreeParksHouse and PinMusterhausHouse on HandAnbieter