1. AnbieterArrow Icon
  2. RENSCH-HAUSArrow Icon
  3. CLOU 111
Slide 1
Slide 2
Slide 3
Slide 4
no description
RENSCH-HAUSCLOU 111
homeBungalow
livingArea112 m²
energyStandardEffizienzhaus 40 EE
Preis anfragen
Katalog bestellen

CLOU 111

Wohnen auf einer Ebene, Leben mit Weitblick

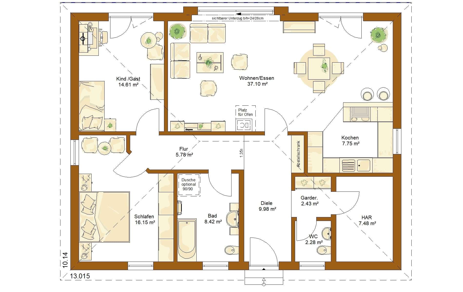
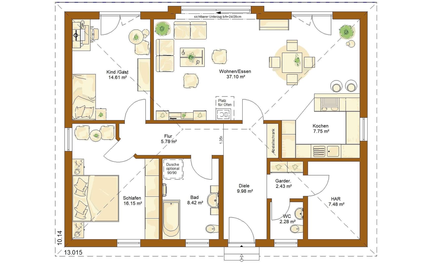
Der Bungalow CLOU 111 ist mehr als ein Haus – er ist ein Lebensraum für Menschen, die Klarheit, Komfort und Flexibilität schätzen. Auf rund 111 m² Wohnfläche entfaltet sich ein durchdachtes Raumkonzept, das Offenheit und Rückzug harmonisch vereint.
Im Mittelpunkt steht der großzügige Wohn-, Ess- und Kochbereich mit rund 40 m², der durch seine offene Gestaltung zum Herzstück des Hauses wird – ideal für gemeinsame Zeit mit Familie oder Freunden. Große Fensterflächen sorgen für ein helles, freundliches Ambiente.
Das Schlafzimmer mit fast 15 m² bietet Ruhe und Privatsphäre, während das Kinder- oder Gästezimmer mit 12 m² flexibel nutzbar bleibt – ob als Rückzugsort, Homeoffice oder Hobbyraum. Ein modernes Bad, separates WC und ein praktischer Flur runden das Raumangebot ab.
CLOU 111 steht für barrierearmes Wohnen mit Stil – auf einer Ebene, ohne Kompromisse. Perfekt für alle, die heute schon an morgen denken.

Hausdaten

Hausart Icon
HausartEinfamilienhaus
Bauweise Icon
BauweiseHolz-Tafelbau
Baustil Icon
BaustilBungalow
Fassade Icon
FassadePutz
Außenmaße Icon
Außenmaße1014 m x 1301 m
Wohnfläche Icon
Wohnfläche112 m²
Dachform Icon
DachformWalm-/Zeltdach
Energiestandard Icon
EnergiestandardEffizienzhaus 40 EE
Immobilientyp Icon
ImmobilientypPlanungsidee
Dachneigung Icon
Dachneigung25°
Hauseigenschaften Icon
HauseigenschaftenGästezimmer
Hausdämmstoff Icon
HausdämmstoffMineralfaser (Glaswolle, Steinwolle)
Heizungsart Icon
HeizungsartLüftungsheizung
Pfeil nach unten linksWir schaffen Platz für Ihre Träume

Grundriss

no description
CLOU 111 Grundriss (EG)Wohnfläche EG: 112 m²

Kataloge

RENSCH-HAUS: Hauskatalog
RENSCH-HAUS

RENSCH-HAUS: Hauskatalog


House and TreeParksHouse and PinMusterhausHouse on HandAnbieter