1. AnbieterArrow Icon
  2. RENSCH-HAUSArrow Icon
  3. CLOU 155
Slide 1
Slide 2
Slide 3
Slide 4
no description
RENSCH-HAUSCLOU 155
homeKlassische Familienhäuser
livingArea163 m²
energyStandardEffizienzhaus 40
Preis anfragen
Katalog bestellen

CLOU 155

Klassiker mit modernen Stilelementen.

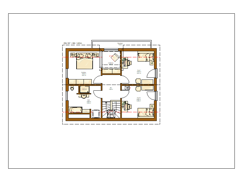
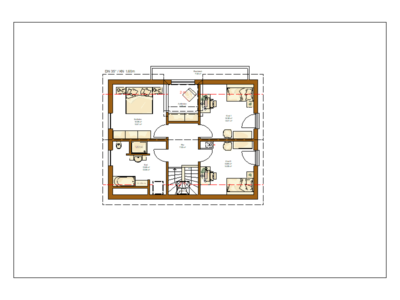
Das CLOU 155 ist Sinnbild für klassische Satteldacharchitektur in Verbindung mit trendigen Flachdachkomponenten. Die wichtigsten Räume des täglichen Lebens sind zu einer offenen Einheit zusammengefasst und gemeinsam zur Gartenseite hin ausgerichtet. Der „Livingspace-Plus“, mit großzügig dimensionierten Glaselementen, sorgt hier für ein lebendiges Flair und liefert reichlich Tageslicht. Ein ebenso interessantes Stilelement ist das „Panoramafenster“, welches als hausinterner Kräutergarten von Nutzen ist. Unter dem Dach, mit 1,60 m hohem Kniestock, komplettiert sich das Raumprogramm. Hier befindet sich das wunderschöne Familienbad, die beiden gleich großen Kinderzimmer und das Elternschlafzimmer mit Ankleidebereich.

Variante mit „Livingspace-Plus“, Panoramafenster, Abstellraum unter Treppe, Badvariante T-Lösung, Kniestock 1,60 m, Dachüberstand 40 cm umlaufend (optional gegen Aufpreis)
Verschiedene Grundrissvarianten und Architekturelemente sind möglich. Sprechen Sie bitte mit Ihrem Fachberater.

Hausdaten

Hausart Icon
HausartEinfamilienhaus
Bauweise Icon
BauweiseHolz-Tafelbau
Anzahl Räume Icon
Anzahl Räume7
Baustil Icon
BaustilKlassische Familienhäuser
Wohnfläche Icon
Wohnfläche163 m²
Dachform Icon
DachformSattel-/Giebeldach
Etagen Icon
Etagen2
Energiestandard Icon
EnergiestandardEffizienzhaus 40
Immobilientyp Icon
ImmobilientypPlanungsidee
Dachneigung Icon
Dachneigung35°
Kniestock Icon
Kniestock1.25 m
Pfeil nach unten linksWir schaffen Platz für Ihre Träume

Grundriss

Clou 155_EG.png
CLOU 155 Grundriss (EG)Wohnfläche EG: 88 m²
Clou 155_DG.png
CLOU 155 Grundriss (OG)Wohnfläche OG: 75 m²

Kataloge

RENSCH-HAUS: Hauskatalog
RENSCH-HAUS

RENSCH-HAUS: Hauskatalog


House and TreeParksHouse and PinMusterhausHouse on HandAnbieter