1. AnbieterArrow Icon
  2. RENSCH-HAUSArrow Icon
  3. Innoavation R- Bad Vilbel XL
Slide 1
Slide 2
Slide 3
Slide 4
no description
RENSCH-HAUSInnoavation R- Bad Vilbel XL
homeKlassische Familienhäuser
livingArea171 m²
energyStandardEffizienzhaus 40 EE
Preis anfragen
Katalog bestellen

Innoavation R- Bad Vilbel XL

Harmonie der Kontraste.

Bitte eintreten und frei fühlen! Denn das ohnehin großzügige Treppenhaus wird durch einen Erker noch einmal zusätzlich vergrößert. Doch damit nicht genug, denn den gleichen Erker finden Sie im Wohnbereich noch einmal.

Insgesamt stehen Ihnen 174 m² Wohnfläche zur Verfügung. Da verzichtet man doch gern auf einen Keller, da diese Hausvariante auf einer Bodenplatte basiert. Für ebenso große Begeisterung dürften auch Windfang/Garderobe und der Hausanschlussraum sorgen - weitere wertvolle Beiträge für mehr Platz und weniger Energieverbrauch.

Um einen spannenden Kontrast zu erleben, richten Sie Ihren Blick am besten nach oben. Denn durch die Kombination des Satteldachs mit Flachdachbauteilen trifft traditionelle Architektur auf moderne Gestaltungselemente.

Und eine weitere gelungene Verbindung finden Sie gleich vor dem Fertighaus, das durch einen Terrassenrahmen zu einer harmonischen Einheit mit dem Garten verschmilzt.

Hausdaten

Hausart Icon
HausartEinfamilienhaus
Bauweise Icon
BauweiseHolz-Tafelbau
Baustil Icon
BaustilKlassische Familienhäuser
Fassade Icon
FassadePutz
Außenmaße Icon
Außenmaße11.14 m x 9.39 m
Wohnfläche Icon
Wohnfläche171 m²
Dachform Icon
DachformSattel-/Giebeldach
Energiestandard Icon
EnergiestandardEffizienzhaus 40 EE
Immobilientyp Icon
ImmobilientypPlanungsidee
Dachneigung Icon
Dachneigung25°
Kniestock Icon
Kniestock2.25 m
Hauseigenschaften Icon
HauseigenschaftenTerasse
Hausdämmstoff Icon
HausdämmstoffMineralfaser (Glaswolle, Steinwolle)
Heizungsart Icon
HeizungsartWärmepumpe (Luft, Wasser, oder beides)
Pfeil nach unten linksWir schaffen Platz für Ihre Träume

Grundriss

no description
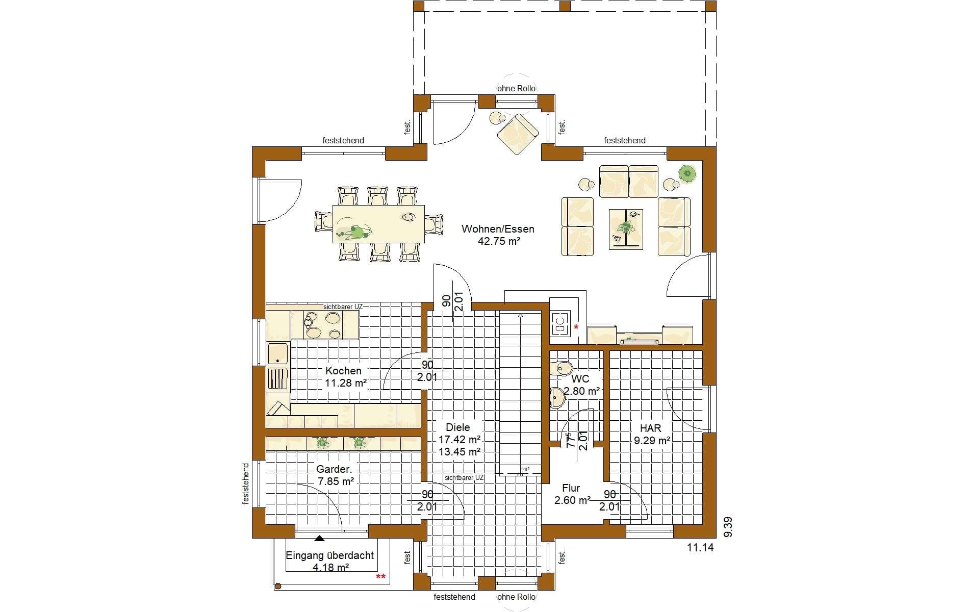
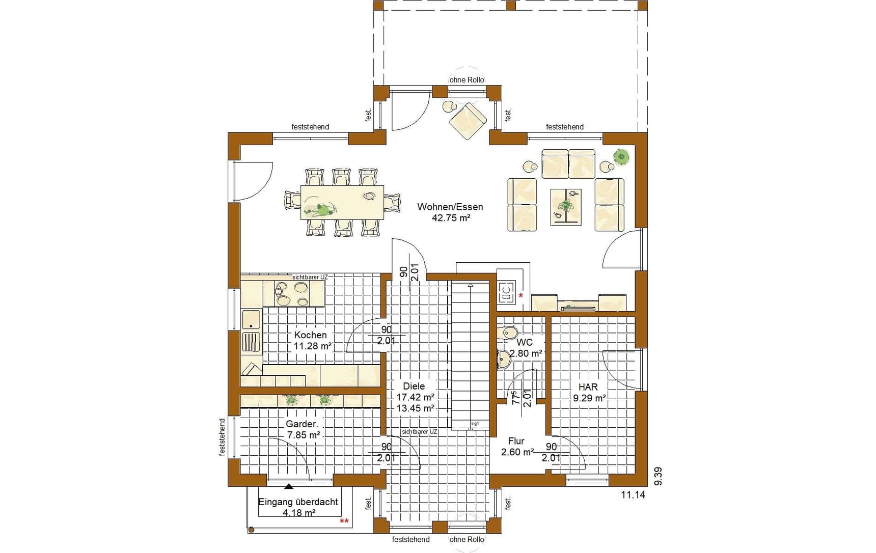
Innoavation R- Bad Vilbel XL Grundriss (EG)Wohnfläche EG: 86 m²
no description
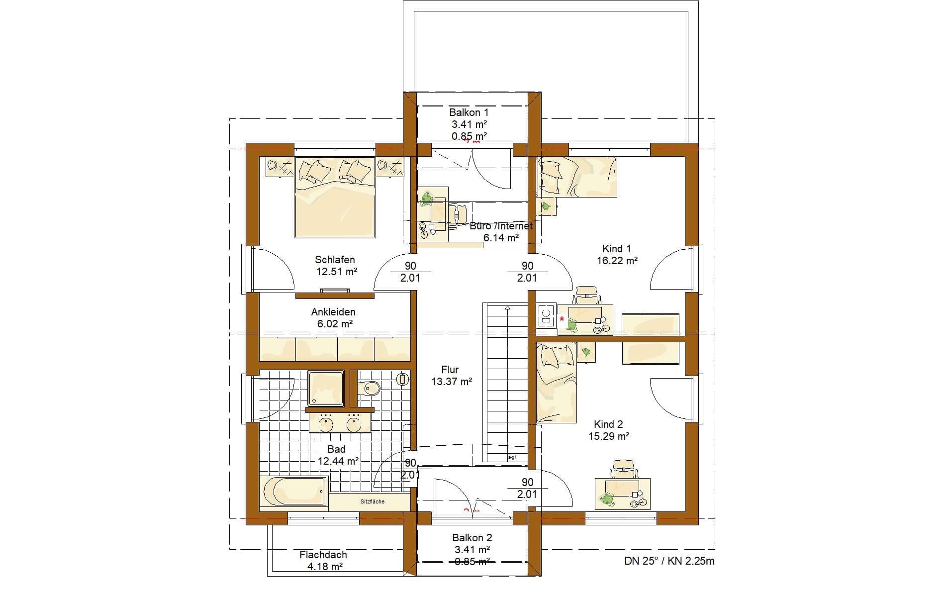
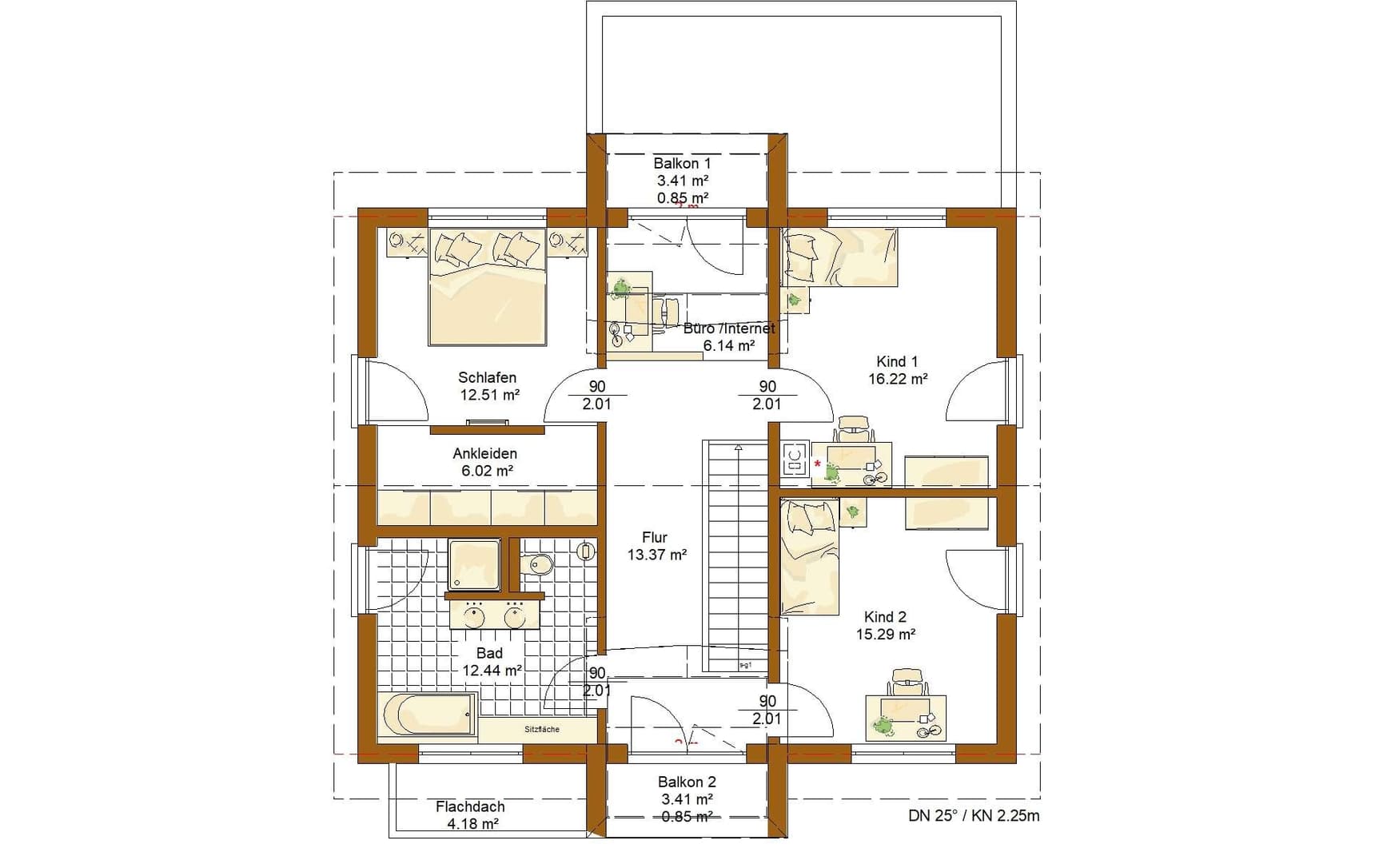
Innoavation R- Bad Vilbel XL Grundriss (DG)Wohnfläche DG: 85 m²

Kataloge

RENSCH-HAUS: Hauskatalog
RENSCH-HAUS

RENSCH-HAUS: Hauskatalog


House and TreeParksHouse and PinMusterhausHouse on HandAnbieter