1. AnbieterArrow Icon
  2. RENSCH-HAUSArrow Icon
  3. Bungalow Athen
Slide 1
Slide 2
Slide 3
Slide 4
Slide 5
Slide 6
no description
RENSCH-HAUSBungalow Athen
homeBungalow
livingArea145 m²
energyStandardEffizienzhaus 40
Preis anfragen
Katalog bestellen

Bungalow Athen

Statement in Sachen Geschmack und Architektur.

Einfach so vorbeigehen? Bei diesem Haus unmöglich, denn der Bungalow Athen ist ein Statement in Sachen Geschmack und Architektur. Die harmonische und außergewöhnliche Dachlandschaft zieht unweigerlich alle Blicke auf sich. Egal ob mit Satteldach oder Pultdach ausgestattet, die besondere Optik ist einfach überzeugend.
Auch bei der Raumaufteilung hält das Haus was es schon von außen verspricht.
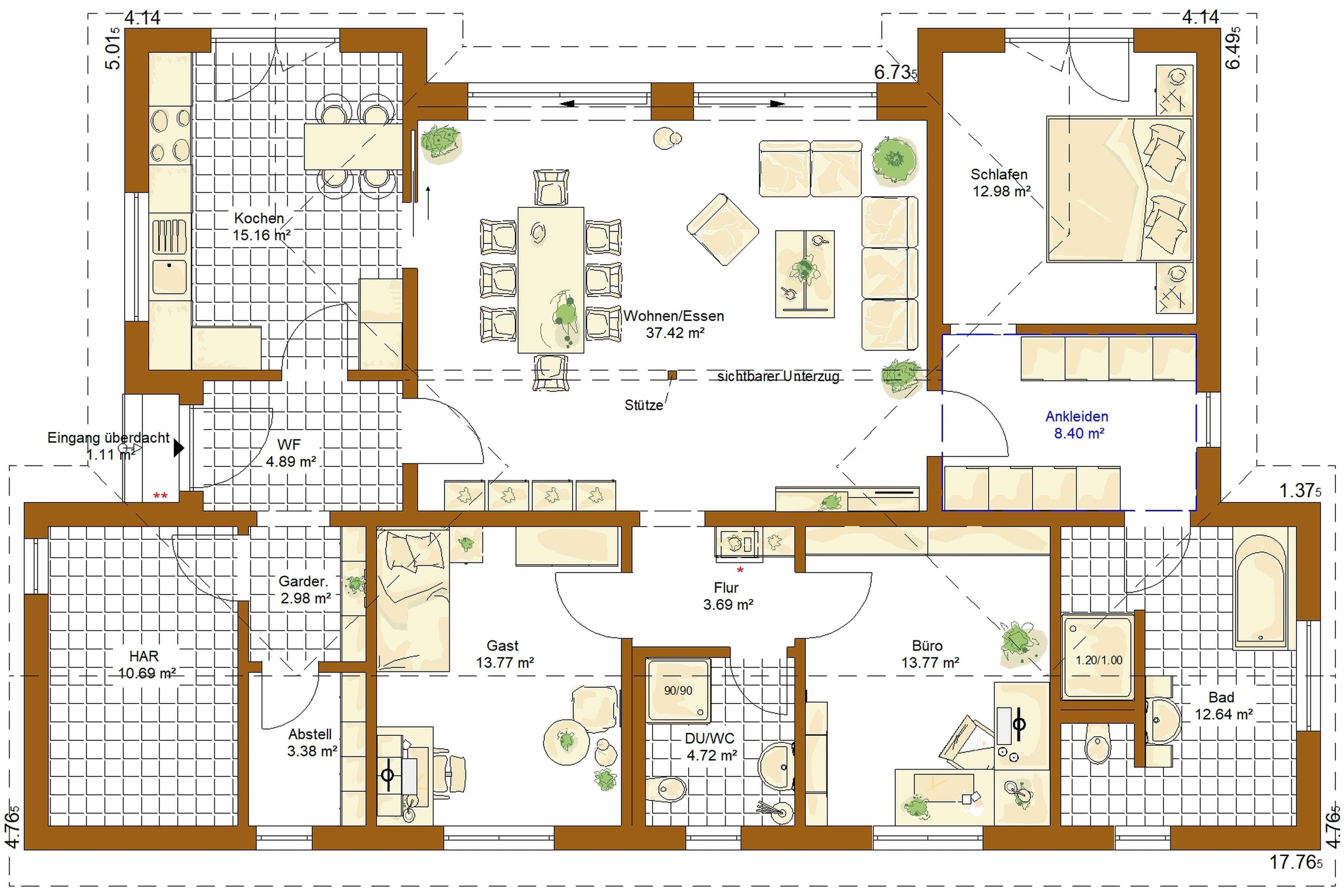
Das Zentrum bildet das große Wohn-Esszimmer, von hier aus gelangt man in den Schlafbereich mit Ankleide und Bad sowie in einen Bereich mit zwei weiteren Zimmern und DU/WC. Diese Zimmer können ganz individuell als Büro, Gast oder Kinderzimmer genutzt werden. Ein modernes, geschmackvolles und in jeder Hinsicht außergewöhnliches Haus

Hausdaten

Hausart Icon
HausartEinfamilienhaus
Bauweise Icon
BauweiseHolz-Tafelbau
Baustil Icon
BaustilBungalow
Fassade Icon
FassadePutz
Außenmaße Icon
Außenmaße17.76 m x 11.25 m
Wohnfläche Icon
Wohnfläche145 m²
Dachform Icon
DachformWalm-/Zeltdach
Etagen Icon
Etagen1
Energiestandard Icon
EnergiestandardEffizienzhaus 40
Immobilientyp Icon
ImmobilientypPlanungsidee
Hauseigenschaften Icon
HauseigenschaftenGästezimmer
Hausdämmstoff Icon
HausdämmstoffMineralfaser (Glaswolle, Steinwolle)
Heizungsart Icon
HeizungsartWärmepumpe (Luft, Wasser, oder beides)
Pfeil nach unten linksWir schaffen Platz für Ihre Träume

Grundriss

no description
Bungalow Athen Grundriss (EG)Wohnfläche EG: 145 m²

Kataloge

RENSCH-HAUS: Hauskatalog
RENSCH-HAUS

RENSCH-HAUS: Hauskatalog


House and TreeParksHouse and PinMusterhausHouse on HandAnbieter