1. AnbieterArrow Icon
  2. RENSCH-HAUSArrow Icon
  3. Bungalow Arles
Slide 1
Slide 2
Slide 3
Slide 4
no description
RENSCH-HAUSBungalow Arles
homeBungalow
livingArea97 m²
energyStandardEffizienzhaus 40
Preis anfragen
Katalog bestellen

Bungalow Arles

Elegand und einladend

Seinen ländlichen Charme verdankt dieses Haus einem traditionellen Satteldach in Verbindung mit der beliebten Winkelform des Grundrisses.

Elegant und einladend präsentiert sich der überdachte, auf Säulen und Wandscheiben ruhende Eingangsbereich mit einem weiteren dekorativen Giebel. Ein Ort, an dem man gerne verweilt, ist die gemütliche, blick- und windgeschützte Terasse auf der Gartenseite.

Das Raumprogramm ist so geschickt angelegt, dass lange Zugangswege zu den einzelnen Räumen gänzlich entfallen. Der Ankleidebereich ist direkt vom gemütlichen Wohnzimmer aus erreichbar und von hier aus gelangt man wiederrum in die Räume Schlafen und Bad.

Die wichtigsten Bereiche des täglichen Lebens, die Küche und das Wohn- und Esszimmer verschmelzen mithilfe eines offenen Durchganges zu einer über 44 m² großen Einheit. Bemerkenswert ist auch die in der Küche integrierte und praktisch angeordnete Speisekammer. Direkt nach dem Betreten der Küche können sämtliche Einkäufe hier verstaut werden. Ein klassisches und gemütliches Zuhause mit praktischem Raumprogramm.

Hausdaten

Hausart Icon
HausartEinfamilienhaus
Bauweise Icon
BauweiseHolz-Tafelbau
Baustil Icon
BaustilBungalow
Fassade Icon
FassadePutz
Außenmaße Icon
Außenmaße11.51 m x 9.26 m
Wohnfläche Icon
Wohnfläche97 m²
Dachform Icon
DachformSattel-/Giebeldach
Etagen Icon
Etagen1
Energiestandard Icon
EnergiestandardEffizienzhaus 40
Immobilientyp Icon
ImmobilientypPlanungsidee
Hauseigenschaften Icon
HauseigenschaftenTerasse
Hausdämmstoff Icon
HausdämmstoffMineralfaser (Glaswolle, Steinwolle)
Heizungsart Icon
HeizungsartWärmepumpe (Luft, Wasser, oder beides)
Pfeil nach unten linksWir schaffen Platz für Ihre Träume

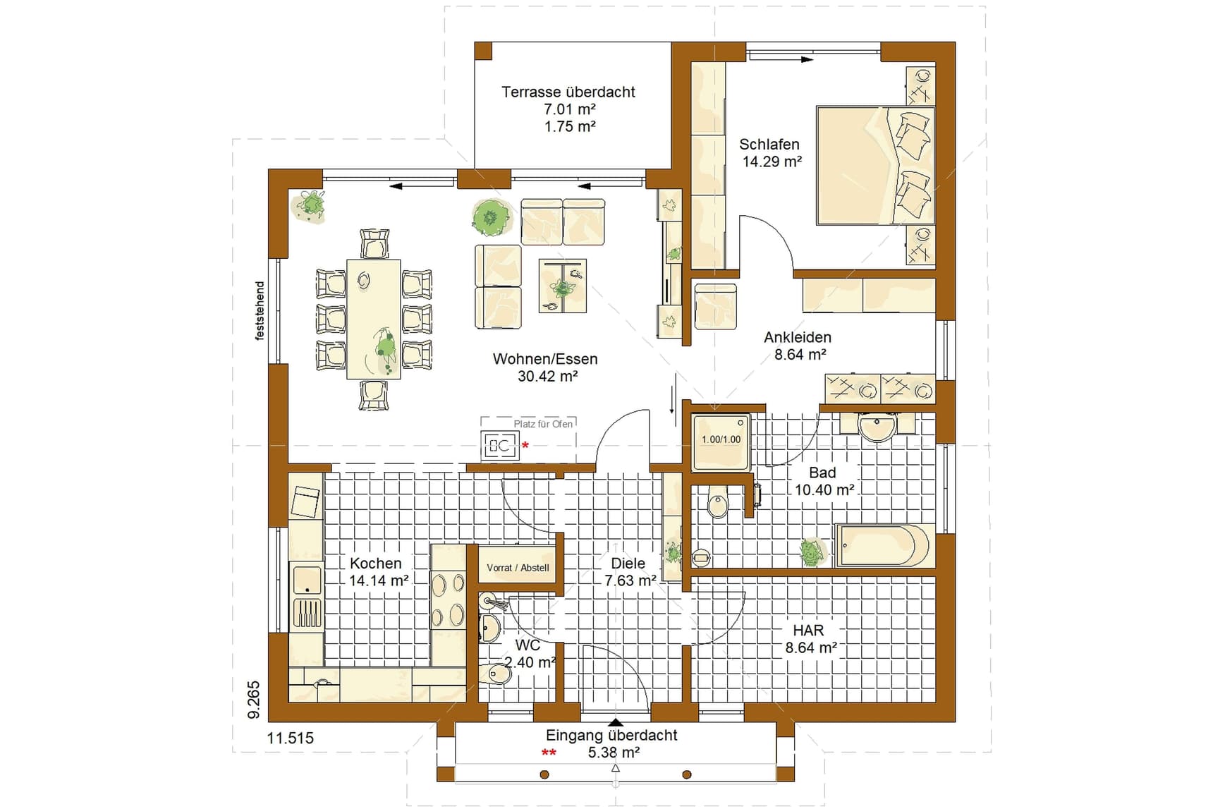
Grundriss

no description
Bungalow Arles Grundriss (EG)Wohnfläche EG: 97 m²

Kataloge

RENSCH-HAUS: Hauskatalog
RENSCH-HAUS

RENSCH-HAUS: Hauskatalog


House and TreeParksHouse and PinMusterhausHouse on HandAnbieter