1. AnbieterArrow Icon
  2. Partner-HausArrow Icon
  3. Doppelhaus
Slide 1
Slide 2
Slide 3
Slide 4
Slide 5
Logo PH.jpg
Partner-HausDoppelhaus
homeKlassische Familienhäuser
livingArea145 m²
energyStandardEffizienzhaus 40
Preis anfragen
Katalog bestellen

Doppelhaus

Doppelhaus: gemeinsames bauen, individuelles planen und gemütliches wohnen

Doppelhäuser bieten zwei Familien ein neues und gemütliches Zuhause. Die verschiedensten und individuellsten Wohnkonzepte erwarten Sie, ob Generationenhaus, Doppelhaushälfte, Haus mit Einliegerwohnung oder als Kapitalanlage.
Obwohl Sie gemeinsam bauen, haben Sie durch die individuellen Grundrisse und der intelligenten Architektur die freie Entscheidung bei der Gestaltung Ihrer Haushälfte.
Von außen wirkt es, wie ein klassisches Einfamilienhaus, dennoch bietet es ein Nutzungskonzept für ein Zweifamilienhaus mit vielen Optionen und mit der idealen Raumausstattung.

Durch das offene Wohn- und Esszimmer wirkt das Erdgeschoss groß und geräumig, dennoch sorgt es für Gemütlichkeit. Dazu gibt es noch einen Abstellraum und ein Gäste-WC in dem unteren Bereich des Hauses.
Im Dachgeschoss befinden sich das Schlafzimmer und ein großes Bad. Bei weiterem Raumwunsch, kann man dies in der individuellen Planung berücksichtigen.

Das Wohnen im Doppelhaus bringt einen auf der einen Seite näher zusammen und auf der anderen bietet es ausreichend Platz und Freiräume für jeden Einzelnen.

Hausdaten

Hausart Icon
HausartDoppelhaus
Bauweise Icon
BauweiseHolz-Tafelbau
Anzahl Räume Icon
Anzahl Räume8
Baustil Icon
BaustilKlassische Familienhäuser
Fassade Icon
FassadePutz
Außenmaße Icon
Außenmaße11.85 m x 9.25 m
Wohnfläche Icon
Wohnfläche145.04 m²
Dachform Icon
DachformSattel-/Giebeldach
Etagen Icon
Etagen1.5
Energiestandard Icon
EnergiestandardEffizienzhaus 40
Immobilientyp Icon
ImmobilientypKundenhaus
Dachneigung Icon
Dachneigung40°
Kniestock Icon
Kniestock1 m
Hauseigenschaften Icon
HauseigenschaftenEinliegerwohnung
Hausdämmstoff Icon
HausdämmstoffMineralfaser (Glaswolle, Steinwolle)
Heizungsart Icon
HeizungsartWärmepumpe (Luft, Wasser, oder beides)
Pfeil nach unten linksWir schaffen Platz für Ihre Träume

Grundriss

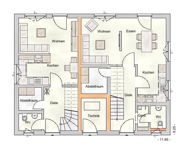
Erdgeschoss.JPG
Doppelhaus Grundriss (EG)Wohnfläche EG: 80,23 m²
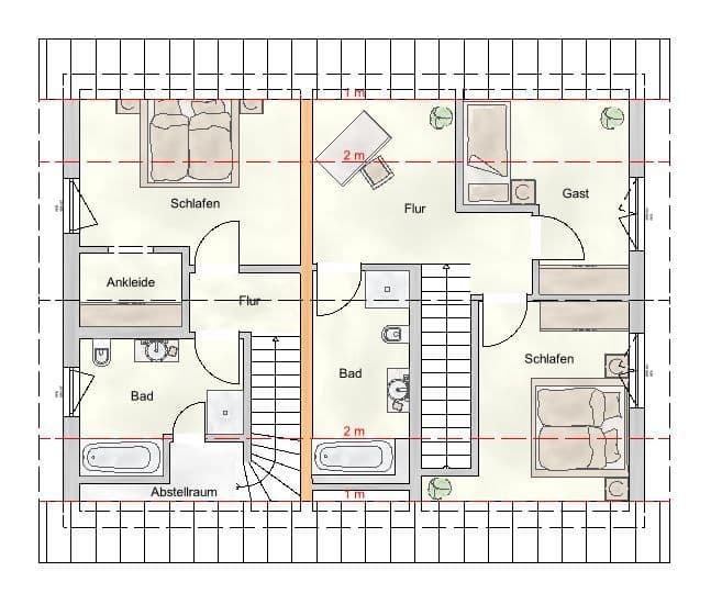
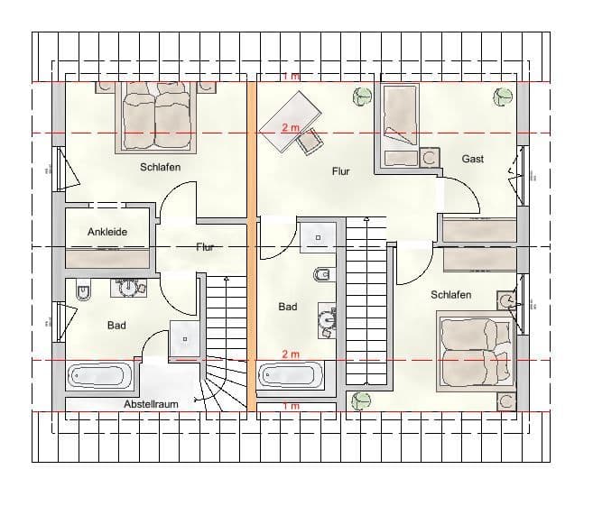
Dachgeschoss.JPG
Doppelhaus Grundriss (DG)Wohnfläche DG: 64,81 m²

Kataloge

Partner Haus - Hauskatalog
Partner-Haus

Partner Haus - Hauskatalog


Partner Haus - Bungalow
Partner-Haus

Partner Haus - Bungalow


Partner Haus - Magie
Partner-Haus

Partner Haus - Magie


Partner Haus - Linea
Partner-Haus

Partner Haus - Linea


House and TreeParksHouse and PinHäuser liveHouse on HandAnbieter