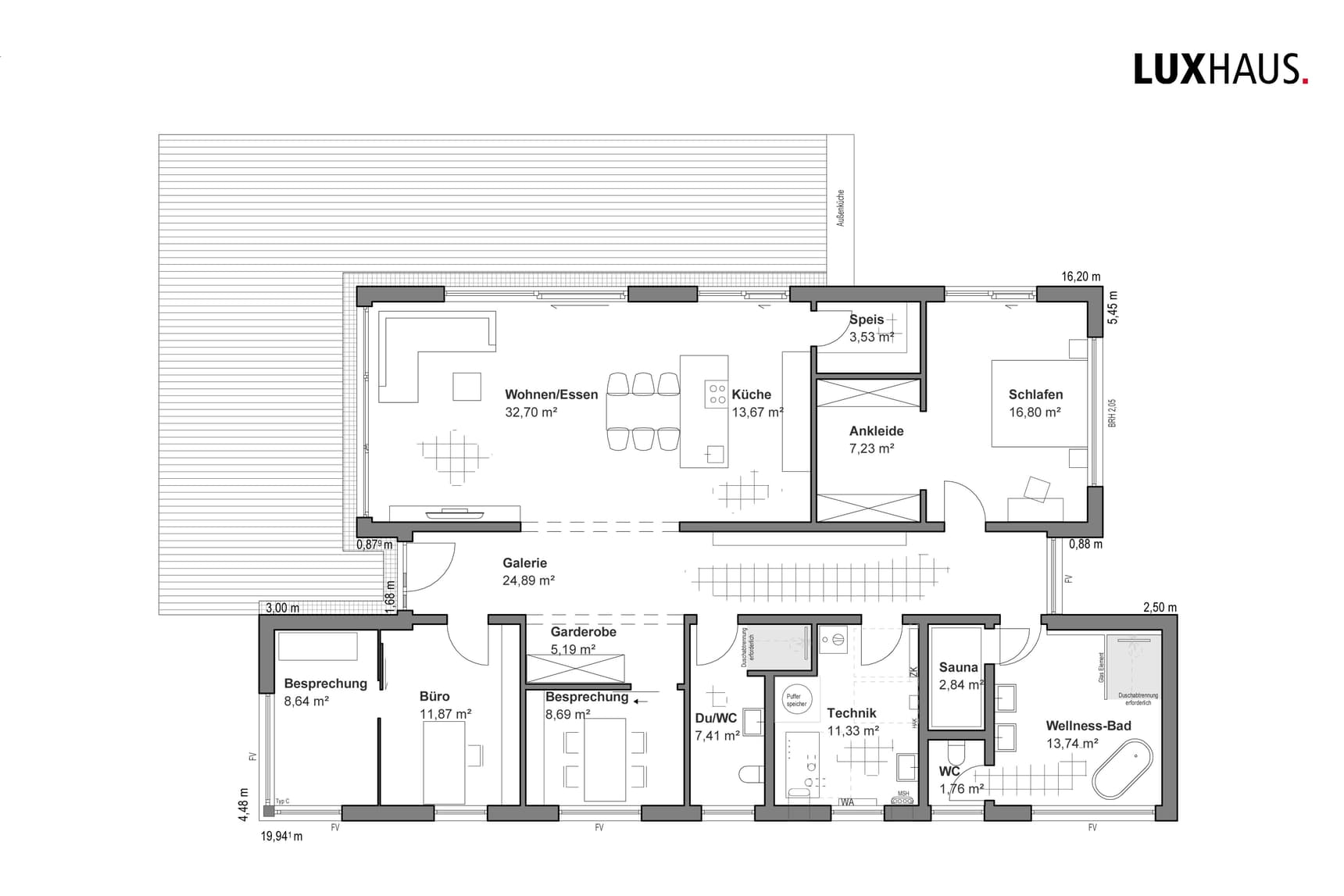
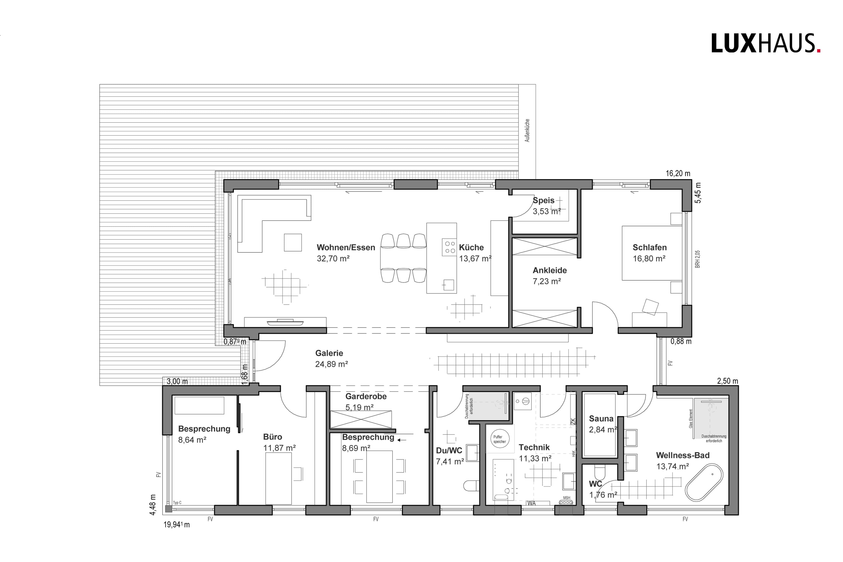
Der betont grafisch gehaltene Entwurf spielt mit zwei Baukörpern, die eine gläserne „Schattenfuge“ gleichermaßen trennt und verbindet. Eine dachintegrierte Photovoltaikanlage sowie Photovoltaikglas in der Überkopfverglasung sorgen für die energetische Versorgung des Plus-Energie-Hauses, das von einer Luft-Wasser-Wärmepumpe mit aktiver Kühlungsfunktion und kontrollierter Be- und Entlüftung mit Wärmerückgewinnung beheizt wird.
Der repräsentative Wohn-Ess-Kochbereich verfügt über eine Raumhöhe von über 4 Metern. Der breite Flur fungiert als ein Hybrid aus Atrium und Wintergarten. Schlafräume und Bäder sowie die im Musterhauskontext als Büros genutzten Zimmer liegen eher zurückgezogen, was bereits an der Fenstergestaltung ablesbar ist.
(öffnet Mittwoch um 12:00 Uhr)

