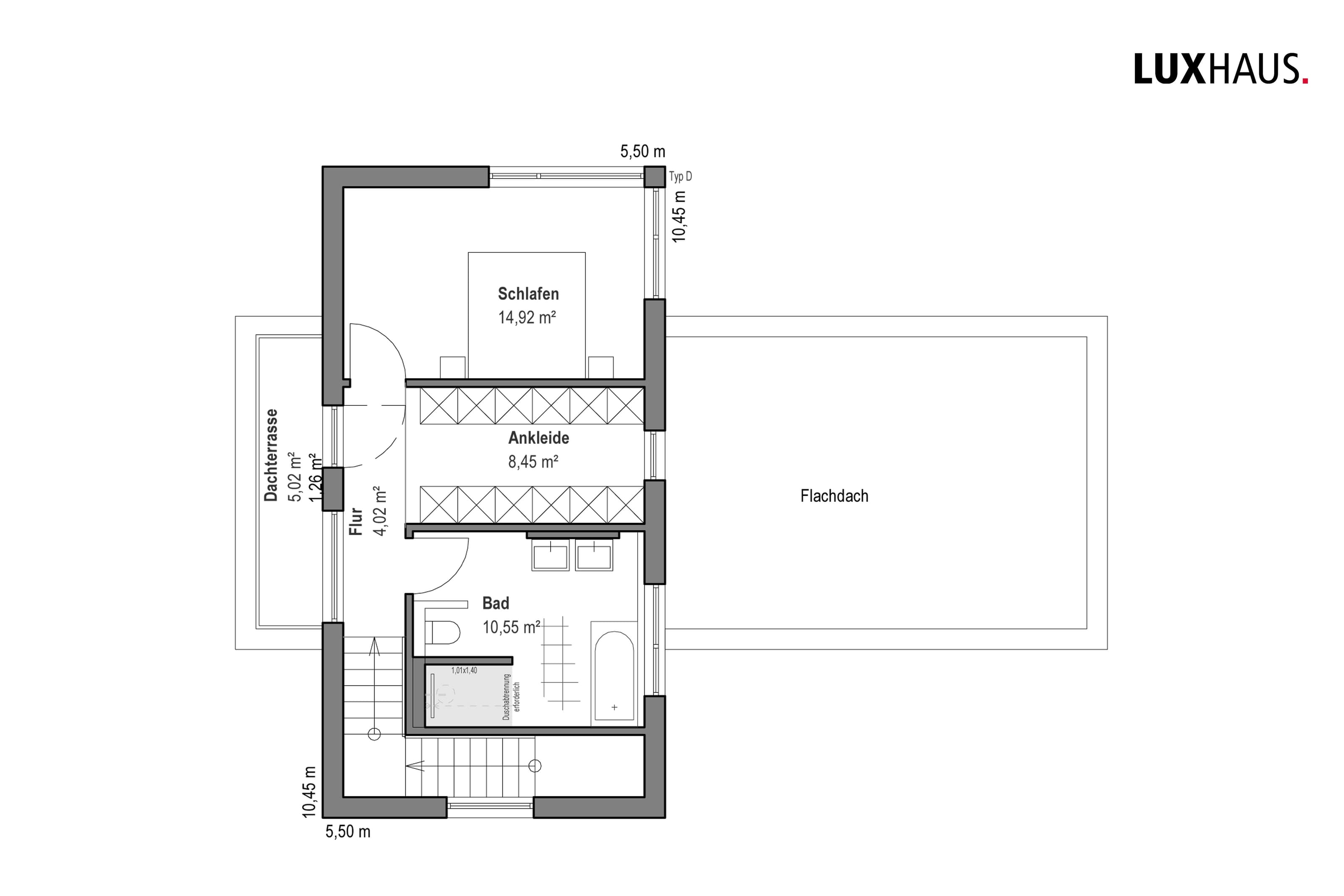
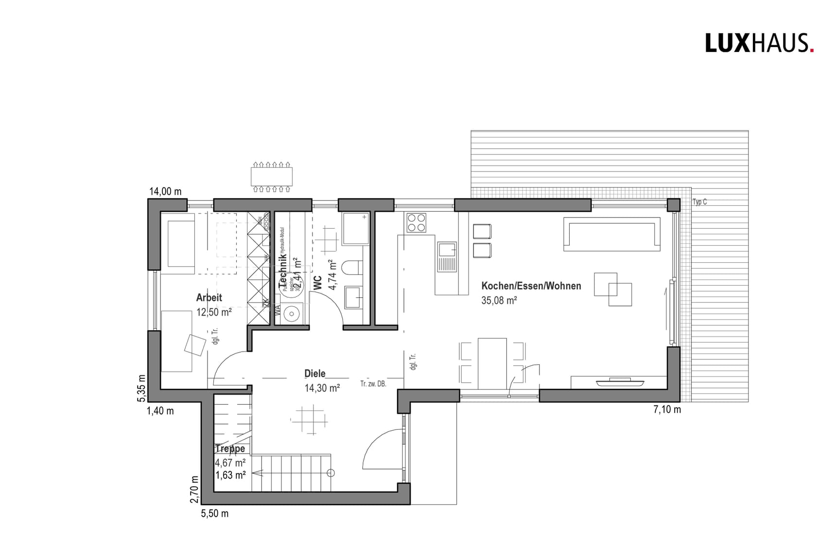
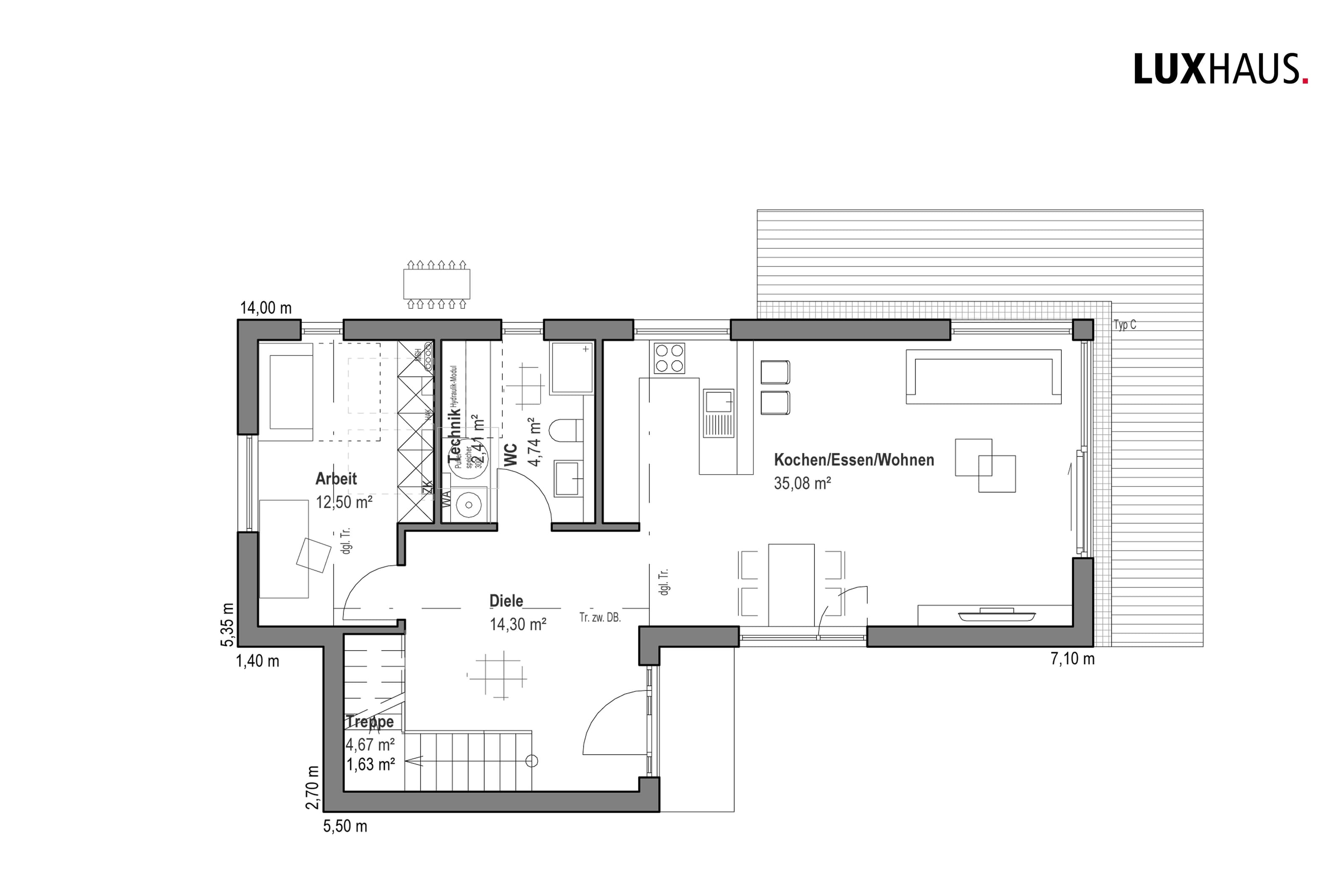
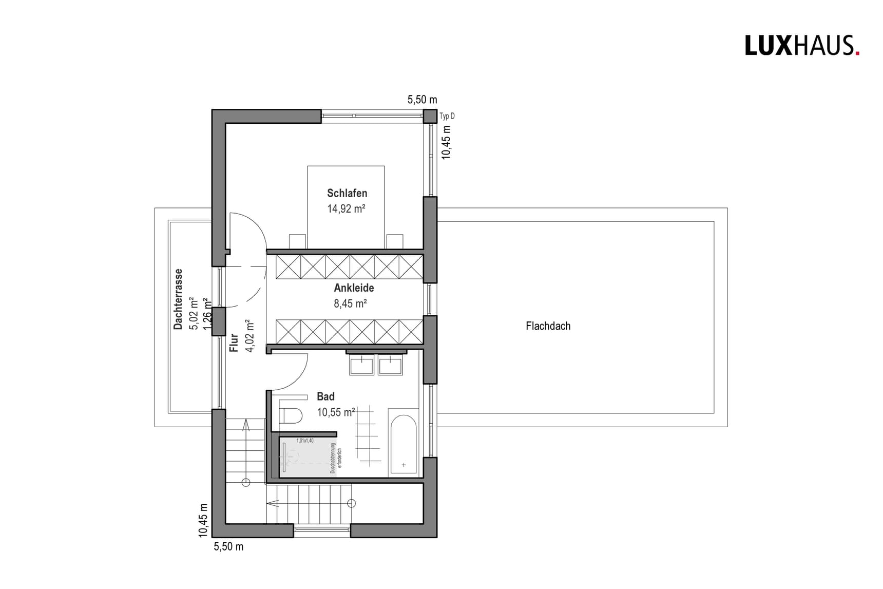
Der fränkische Anbieter ist ein hervorragendes Wohlfühlhaus aus Holz, das durch seine hohe Leistungsfähigkeit, Wohnqualität und hochmoderne Technik überzeugt. Mit dem Plus-Energie-Haus im Bauhausstil trägt LUXHAUS der Tendenz zu kleineren Grundstücken Rechnung, die speziell in urbanen Umfeldern immer kostbarer werden. Das Musterhaus LUXHAUS | Fein steht dabei für liebevolle Details, die filigrane Ausführung und die Feinsinnigkeit der Gestaltung. Auf einer Wohn-Nutzfläche von 113 m² vereinen sich repräsentative Ansprüche und individuelle Rückzugsorte. Das Haus ist für ein Paar konzipiert, mit der Möglichkeit, einen Raum als Kinder- bzw. Babyzimmer zu schaffen. Gästezimmer mit separater Dusche und Toilette zu nutzen oder ein Büro einzurichten.
(öffnet Donnerstag um 12:00 Uhr)


