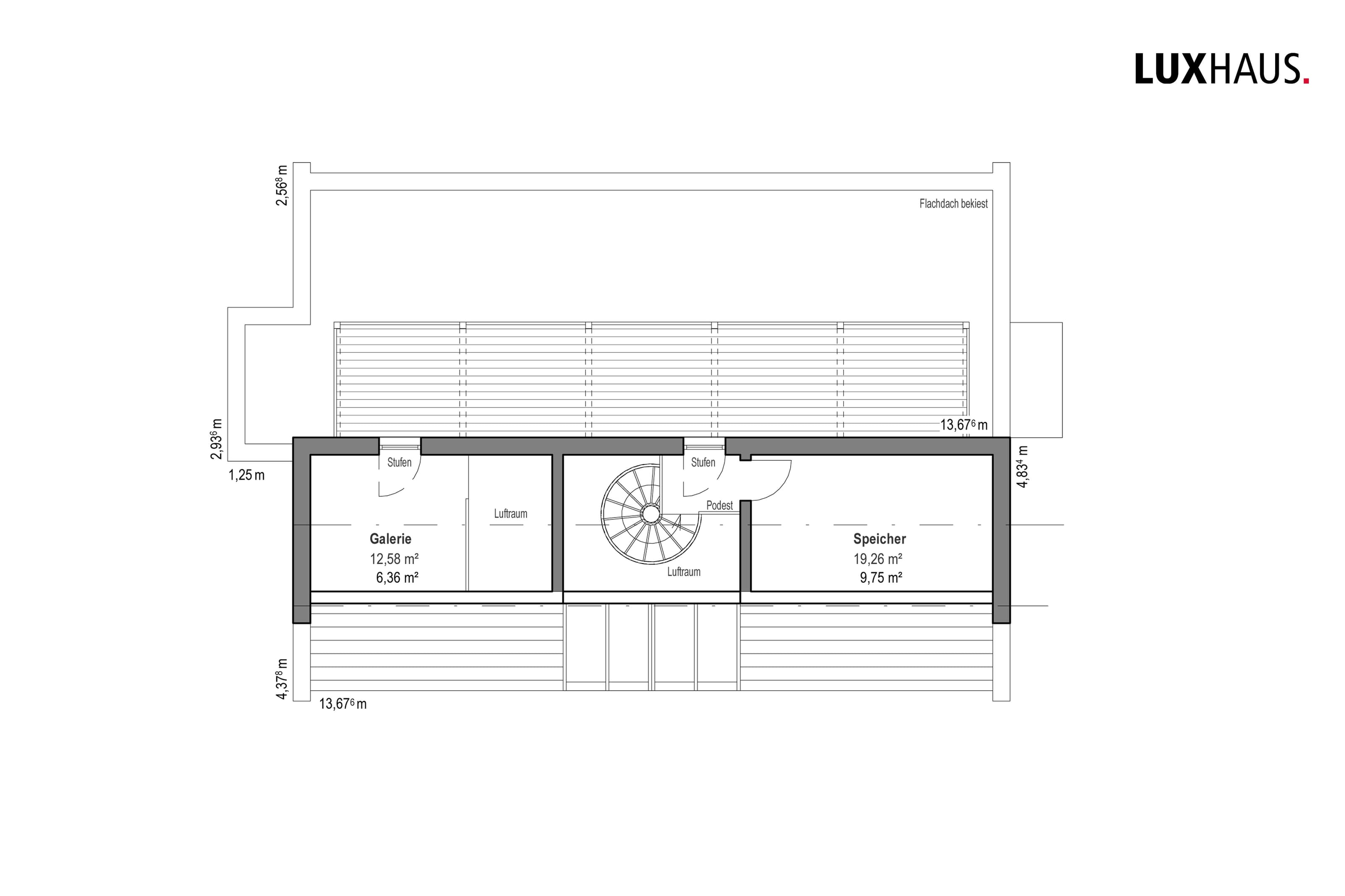
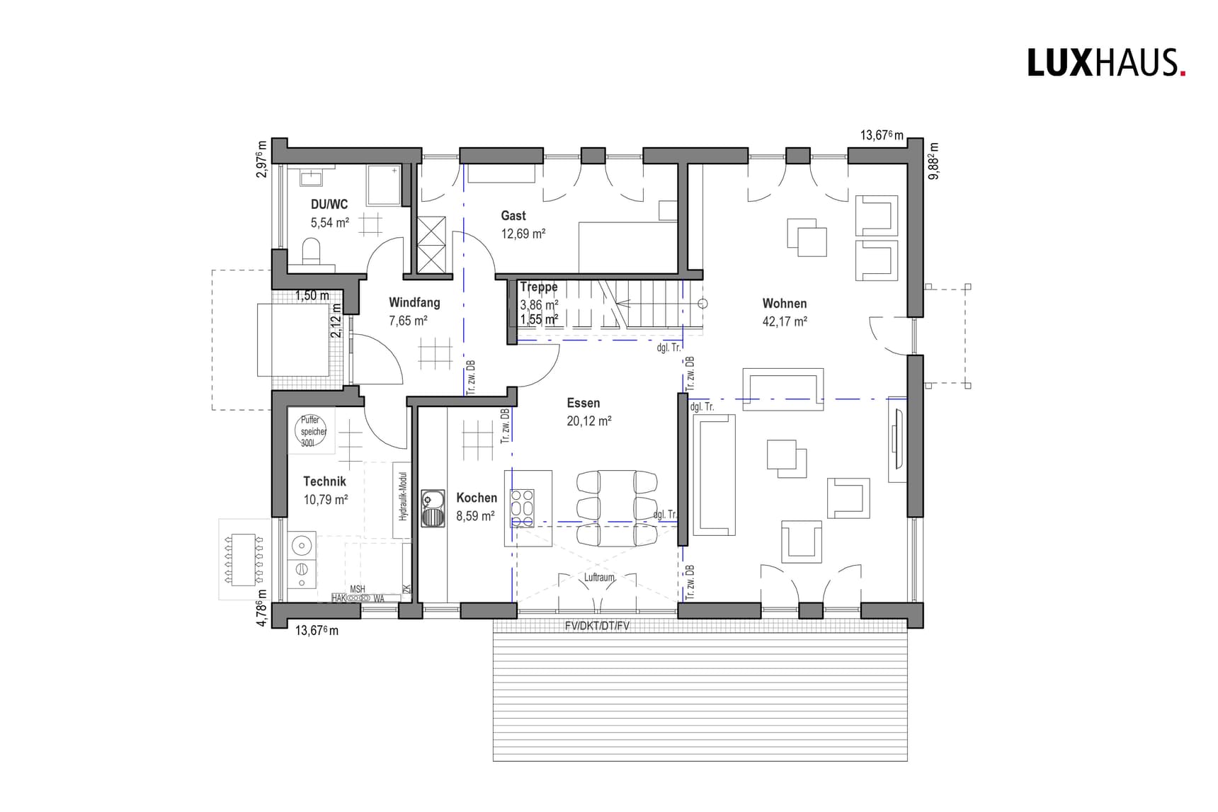
Dieses designorientierte Doppelhaus bietet zahlreiche Nutzungsmöglichkeiten – vom Wohnen und Arbeiten bis zum Mehrgenerationenhaus. Der Reiz der modernen, aber nicht unterkühlten Architektur steckt im Detail. Der auffällige rote Kubus verfügt über eine Badewanne mit Panoramablick. Die Fensterbänder auf der Südseite lassen hier viel Tageslicht herein.
(öffnet Donnerstag um 11:00 Uhr)

