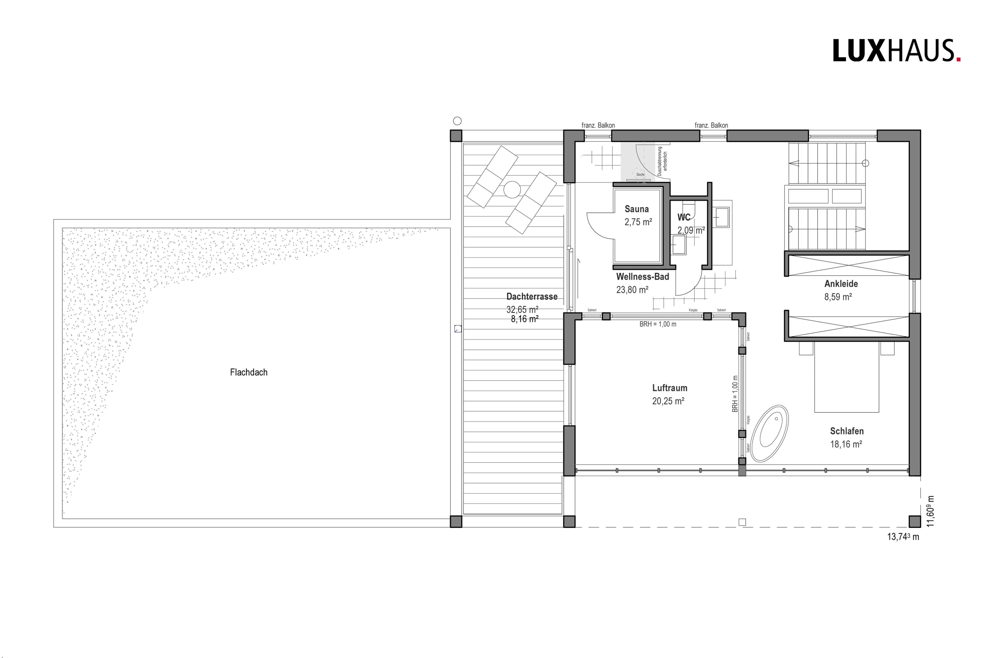
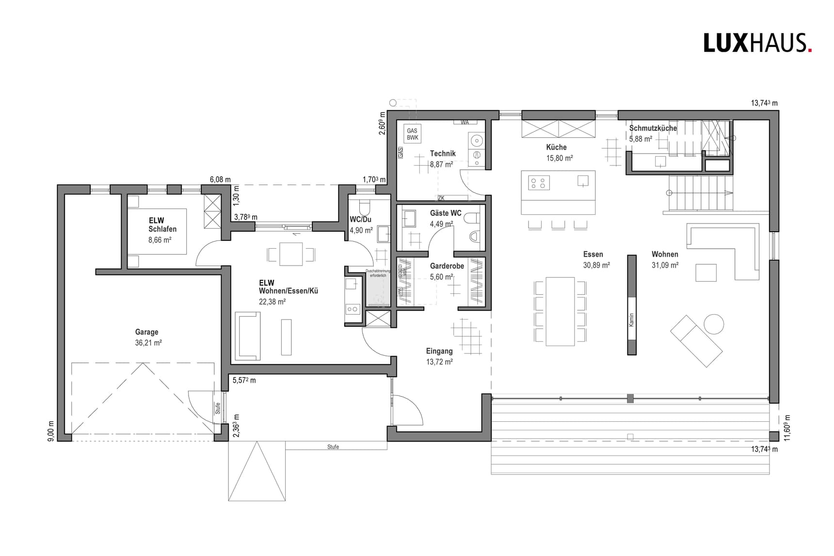
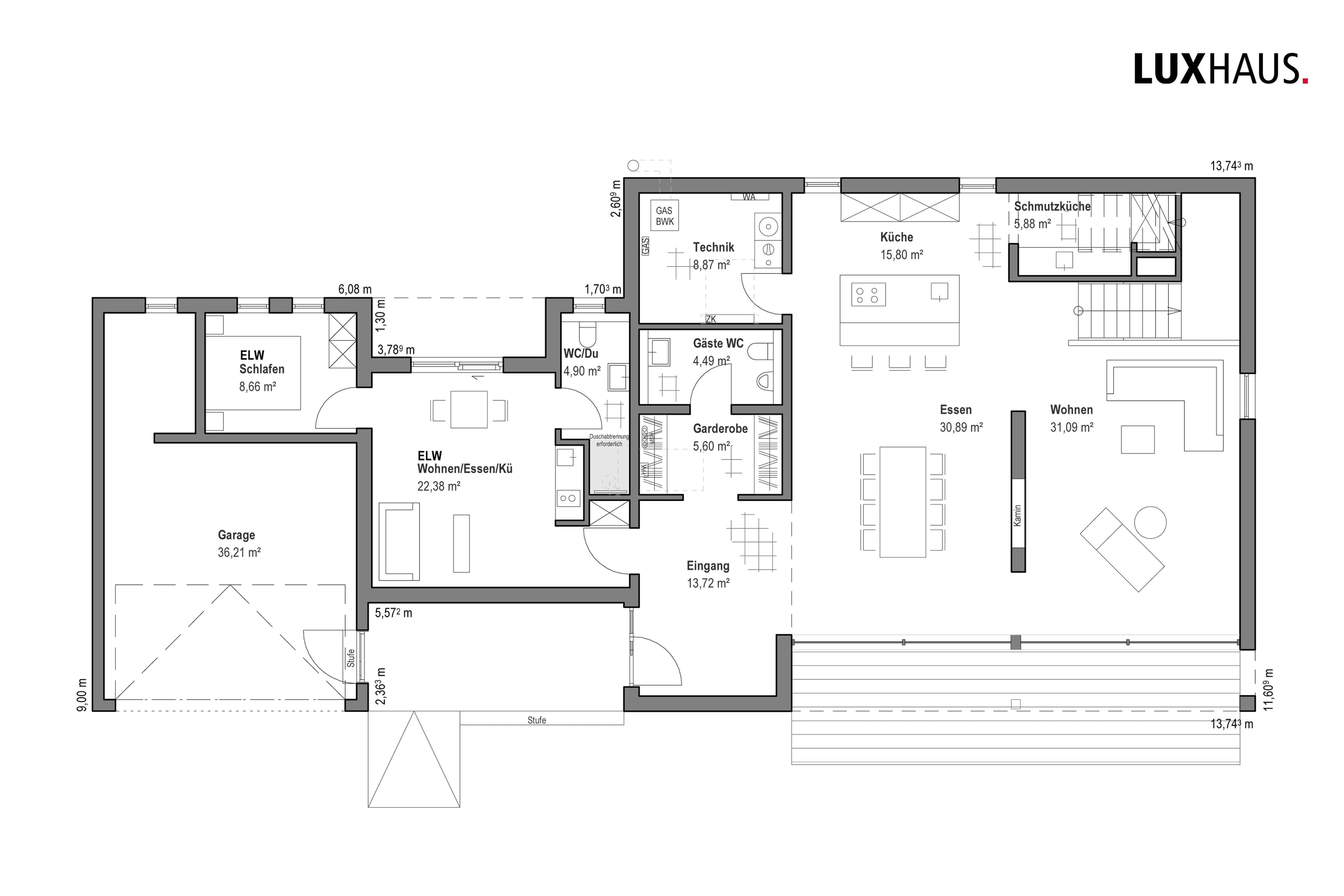
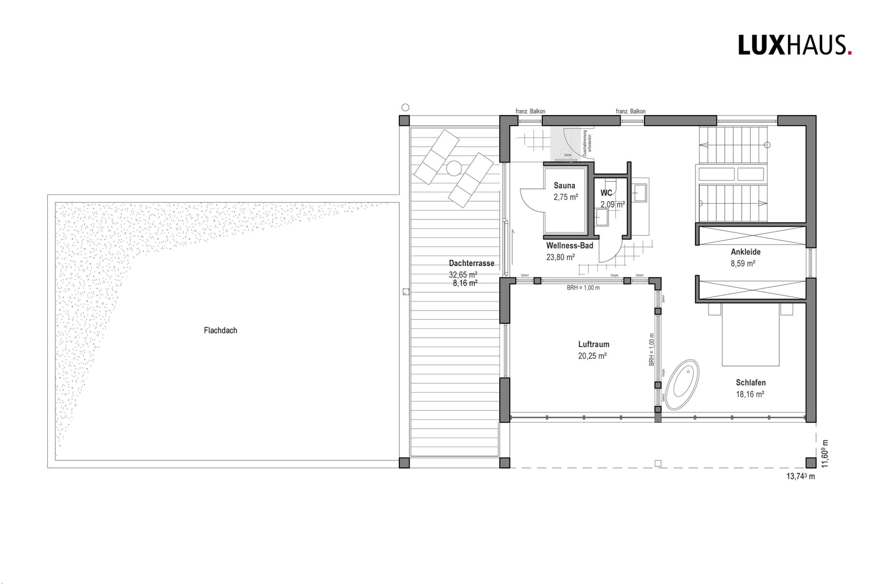
Bei diesem Plus-Energie-Haus trifft modernste Technik auf Bauhauszitate. Schmale Stützen, die das auskragende Dach tragen, der sich um die Glasfassade schmiegende Rahmen und die großzügige überdachte Dachterrasse verleihen dem sonst schlichten Baukörper Raffinesse und Eleganz. Seine ausgefeilte Haustechnik ermöglicht es über Photovoltaik mehr Energietrag als -verbrauch zu erwirtschaften. Ein zukunftsorientiertes Haus von zeitloser Ästhetik.
(öffnet Donnerstag um 12:00 Uhr)



