1. AnbieterArrow Icon
  2. LUXHAUSArrow Icon
  3. Satteldach Landhaus 223
Slide 1
Slide 2
Slide 3
Slide 4
Slide 5
Slide 6
Slide 7
Slide 8
no description
LUXHAUSSatteldach Landhaus 223
homeKlassische Familienhäuser
livingArea223 m²
energyStandardEffizienzhaus 40
Preis anfragen
Katalog bestellen

Satteldach Landhaus 223

Das Mehrgenerationenhaus, eine Bestandserweiterung im Allgäuer Baustil, vereint Präzision und Flexibilität. Die harmonische Verbindung von alter und neuer Bausubstanz spricht für sich. 

Der Wohn-Ess-Kochbereich im Erdgeschoss ist dabei das Herzstück, im Erdgeschoss liegen außerdem ein Büro und ein Schlafzimmer mit großem Badezimmer sowie ein gesondertes Gäste-WC. Im Obergeschoss befindet sich neben den 2 Kinderzimmern, einem Schlafzimmer und einem Dusch-Bad eine vollwertige Wohnung. Durch diese Aufteilung ist ebenerdiges Wohnen im Alter ebenso möglich wie eigenständiges Wohnen in einem eigenen Bereich, treffen können sich Familienmitglieder und Gäste im Wohn-Essbereich, in dem insbesondere die gute Stube durch Großzügigkeit besticht. 

Hausdaten

Hausart Icon
HausartEinfamilienhaus
Bauweise Icon
BauweiseHolz-Tafelbau
Anzahl Räume Icon
Anzahl Räume8
Baustil Icon
BaustilKlassische Familienhäuser
Fassade Icon
FassadePutz, Holz
Außenmaße Icon
Außenmaße11.09 m x 12.83 m
Wohnfläche Icon
Wohnfläche222.85 m²
Dachform Icon
DachformSattel-/Giebeldach
Etagen Icon
Etagen3
Energiestandard Icon
EnergiestandardEffizienzhaus 40
Immobilientyp Icon
ImmobilientypKundenhaus
Dachneigung Icon
Dachneigung28°
Mittlerer U-Wert Icon
Mittlerer U-Wert0.12 W/m²K
Hauseigenschaften Icon
HauseigenschaftenEinliegerwohnung, Balkon, Terasse
Hausdämmstoff Icon
HausdämmstoffHolzfaser- und Zellulosedämmstoffe
Heizungsart Icon
HeizungsartWärmepumpe (Luft, Wasser, oder beides)
Pfeil nach unten linksWir schaffen Platz für Ihre Träume

Grundriss

no description
Satteldach Landhaus 223 Grundriss (EG)Wohnfläche EG: 117 m²
Grundriss_SD-Landhaus-223-OG.jpg
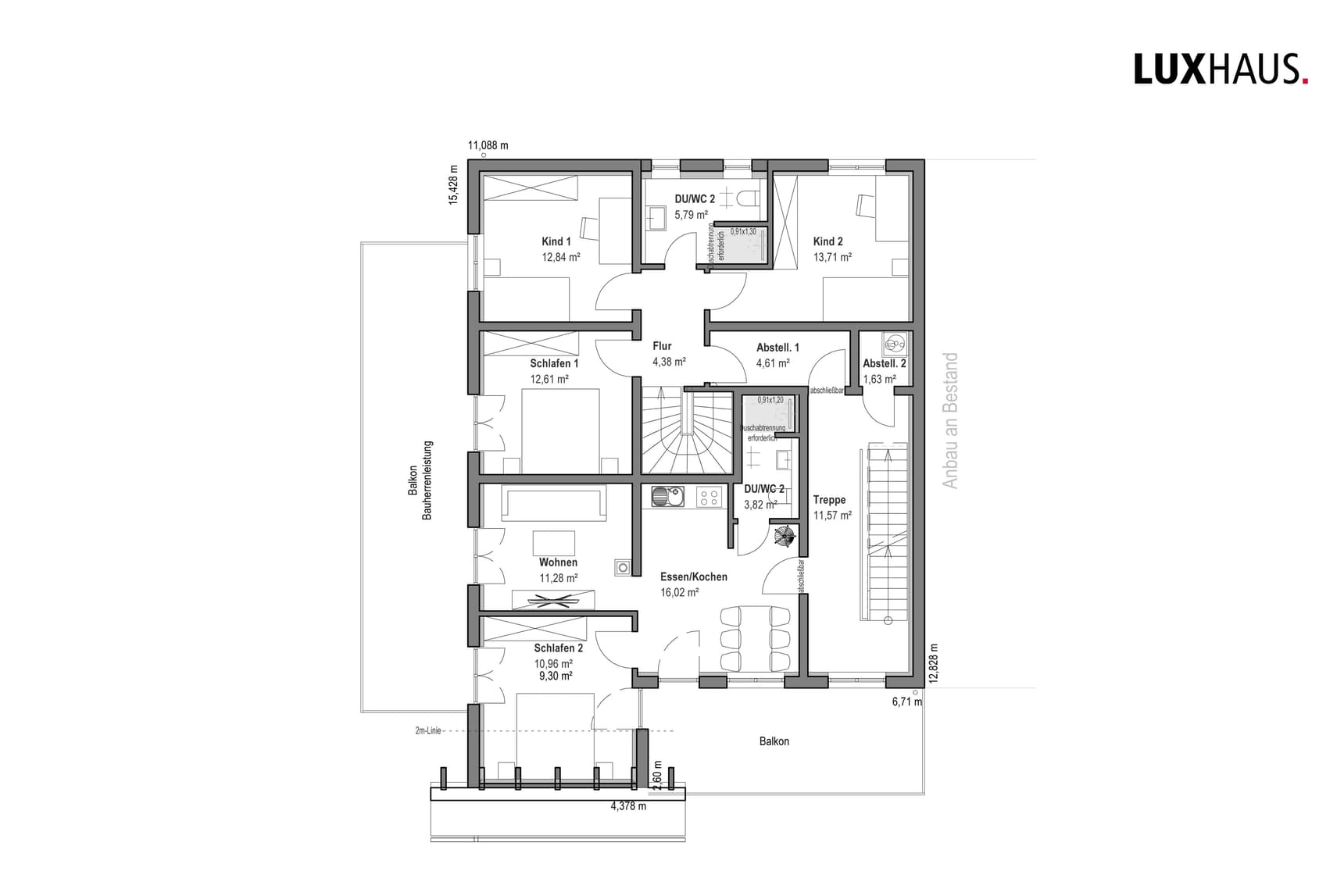
Satteldach Landhaus 223 Grundriss (OG)Wohnfläche OG: 105,9 m²
Grundriss_SD-Landhaus-223-DG.jpg
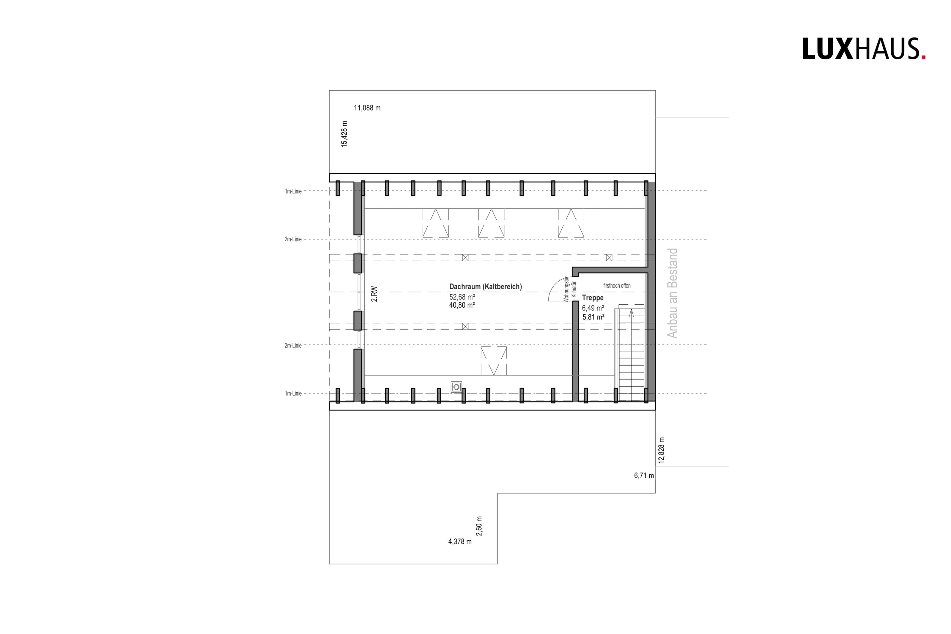
Satteldach Landhaus 223 Grundriss (DG)

Unser Team vor Ort

LUXHAUSFachberater*in bei LUXHAUS
Default Avatar
Wir beraten Sie gerne!Arrow Icon

Kataloge

LUXHAUS: Climatic Wand
LUXHAUS

LUXHAUS: Climatic Wand


LUXHAUS: Garagen
LUXHAUS

LUXHAUS: Garagen


LUXHAUS: Mehrwerte
LUXHAUS

LUXHAUS: Mehrwerte


LUXHAUS: Kundenhäuser
LUXHAUS

LUXHAUS: Kundenhäuser


House and TreeParksHouse and PinHäuser liveHouse on HandAnbieter