1. AnbieterArrow Icon
  2. LUXHAUSArrow Icon
  3. Satteldach Landhaus 192
Slide 1
Slide 2
Slide 3
Slide 4
Slide 5
Slide 6
Slide 7
Slide 8
no description
LUXHAUSSatteldach Landhaus 192
homeKlassische Familienhäuser
livingArea192 m²
energyStandardEffizienzhaus 40
Preis anfragen
Katalog bestellen

Satteldach Landhaus 192

Ein modernes Satteldachhaus mit Querhaus, das durch seine schwarz-weiß-Kontraste sehr klar wirkt. Dach und Fenster in anthrazit treten dezent in den Hintergrund. Die symmetrisch angeordneten Fenster schaffen zusätzliche Harmonie.

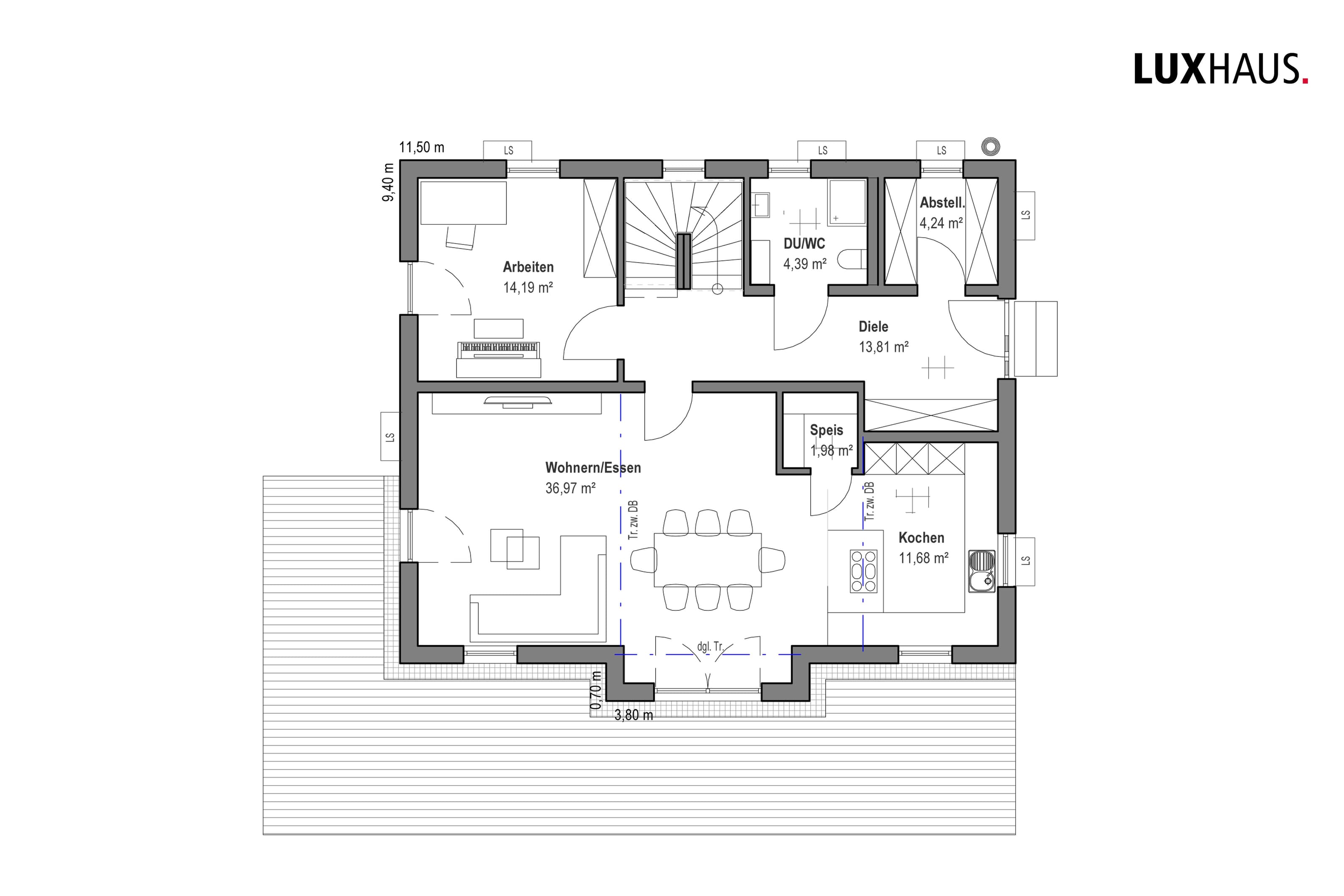
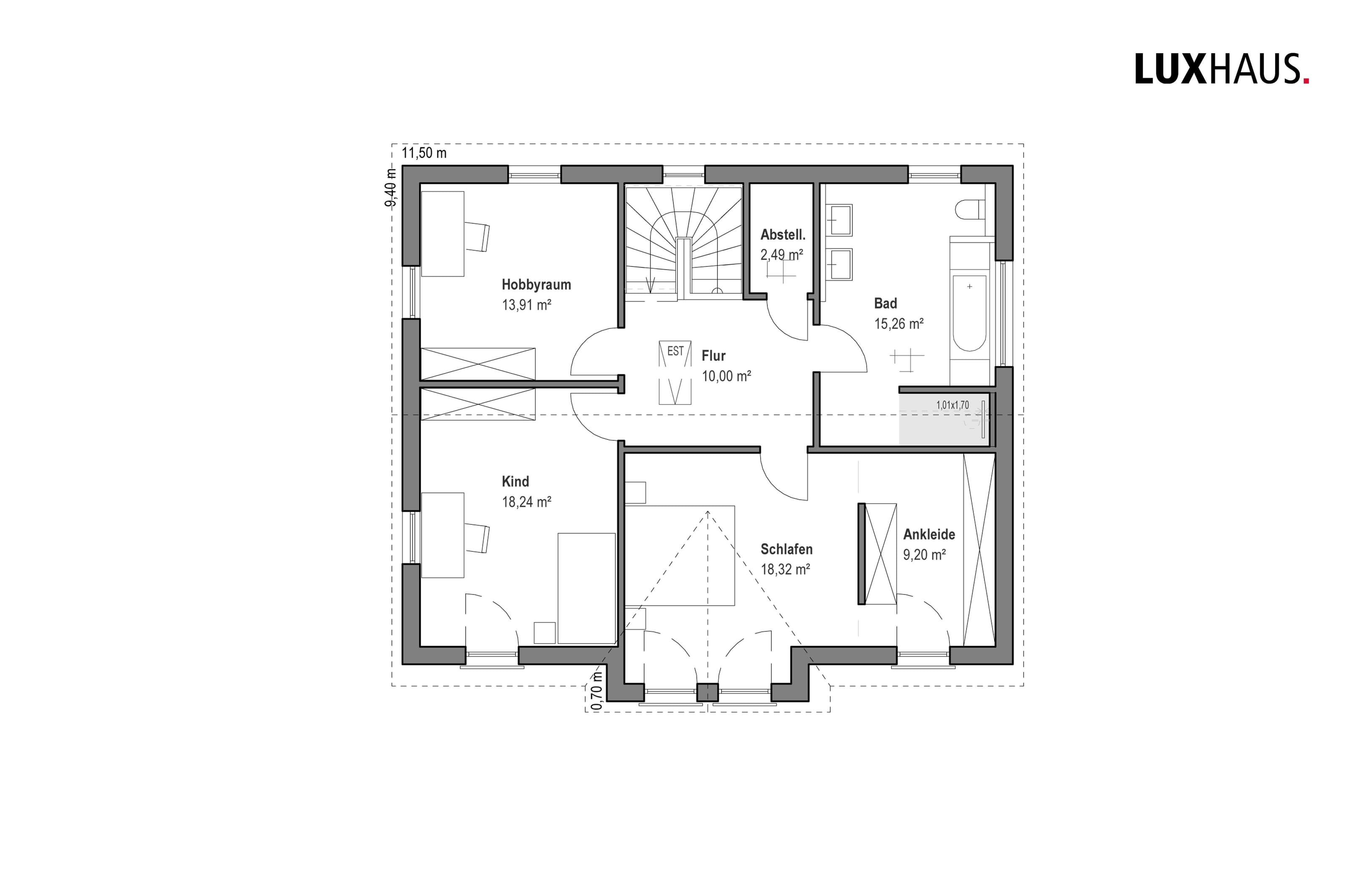
Ein großzügiger Wohn-, Essraum mit abtrennbarer Küche ist der zentrale Bereich des Hauses, der sich mit einer doppelflügligen Glastür zum Garten öffnet und durch eine großzügige Diele erschlossen wird. Im Obergeschoss liegen Kinderzimmer, Hobbyraum und gegenüber das Gemeinschaftsbad sowie das Schlafzimmer der Eltern mit anschließender Ankleide.

Hausdaten

Hausart Icon
HausartEinfamilienhaus
Bauweise Icon
BauweiseHolz-Tafelbau
Anzahl Räume Icon
Anzahl Räume5
Baustil Icon
BaustilKlassische Familienhäuser
Fassade Icon
FassadePutz
Außenmaße Icon
Außenmaße11.5 m x 9.4 m
Wohnfläche Icon
Wohnfläche191.79 m²
Dachform Icon
DachformSattel-/Giebeldach
Etagen Icon
Etagen2
Energiestandard Icon
EnergiestandardEffizienzhaus 40
Immobilientyp Icon
ImmobilientypKundenhaus
Dachneigung Icon
Dachneigung22°
Mittlerer U-Wert Icon
Mittlerer U-Wert0.12 W/m²K
Hauseigenschaften Icon
HauseigenschaftenKeller, Gästezimmer, Terasse
Hausdämmstoff Icon
HausdämmstoffHolzfaser- und Zellulosedämmstoffe
Heizungsart Icon
HeizungsartWärmepumpe (Luft, Wasser, oder beides)
Pfeil nach unten linksWir schaffen Platz für Ihre Träume

Grundriss

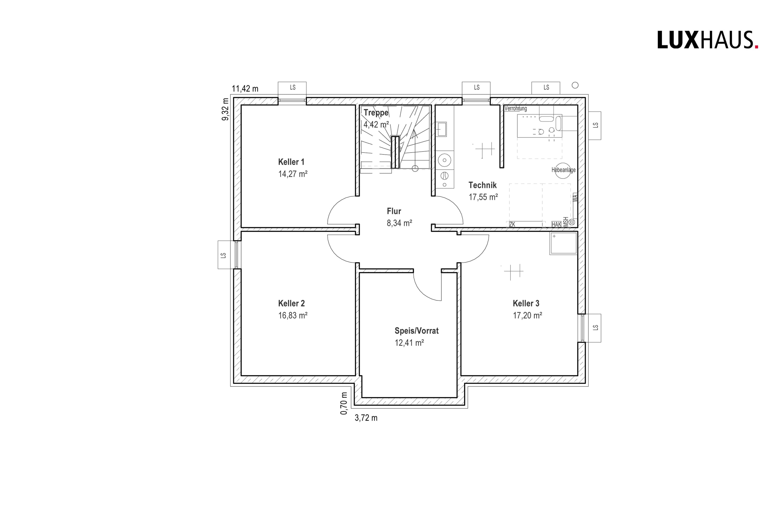
Grundriss_SD_LH_192_UG.jpg
Satteldach Landhaus 192 Grundriss (Keller)
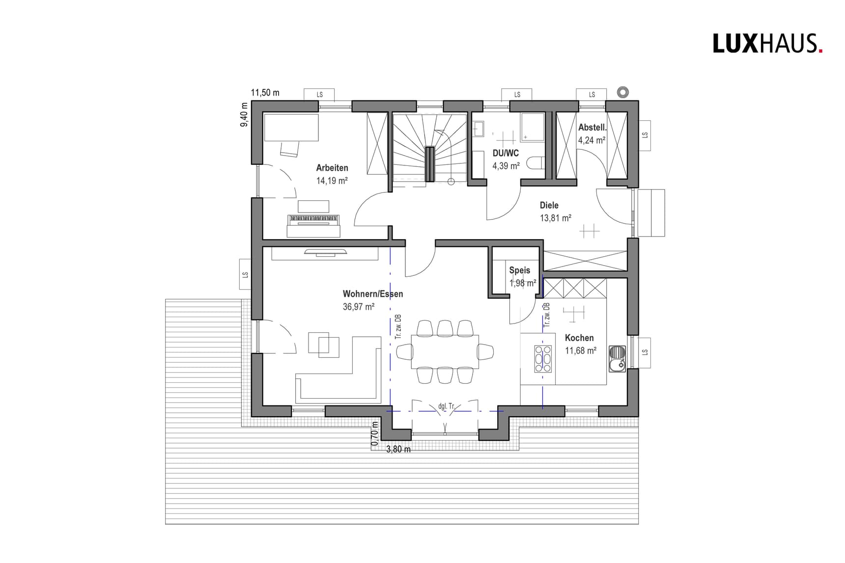
Grundriss_SD_LH_192_EG.jpg
Satteldach Landhaus 192 Grundriss (EG)Wohnfläche EG: 99,75 m²
Grundriss_SD_LH_192_DG.jpg
Satteldach Landhaus 192 Grundriss (DG)

Unser Team vor Ort

LUXHAUSFachberater*in bei LUXHAUS
Default Avatar
Wir beraten Sie gerne!Arrow Icon

Kataloge

LUXHAUS: Climatic Wand
LUXHAUS

LUXHAUS: Climatic Wand


LUXHAUS: Garagen
LUXHAUS

LUXHAUS: Garagen


LUXHAUS: Mehrwerte
LUXHAUS

LUXHAUS: Mehrwerte


LUXHAUS: Kundenhäuser
LUXHAUS

LUXHAUS: Kundenhäuser


House and TreeParksHouse and PinHäuser liveHouse on HandAnbieter