1. AnbieterArrow Icon
  2. LUXHAUSArrow Icon
  3. Satteldach Landhaus 171
Slide 1
Slide 2
Slide 3
Slide 4
Slide 5
Slide 6
Slide 7
Slide 8
no description
LUXHAUSSatteldach Landhaus 171
homeKlassische Familienhäuser
livingArea171 m²
energyStandardEffizienzhaus 40
Preis anfragen
Katalog bestellen

Satteldach Landhaus 171

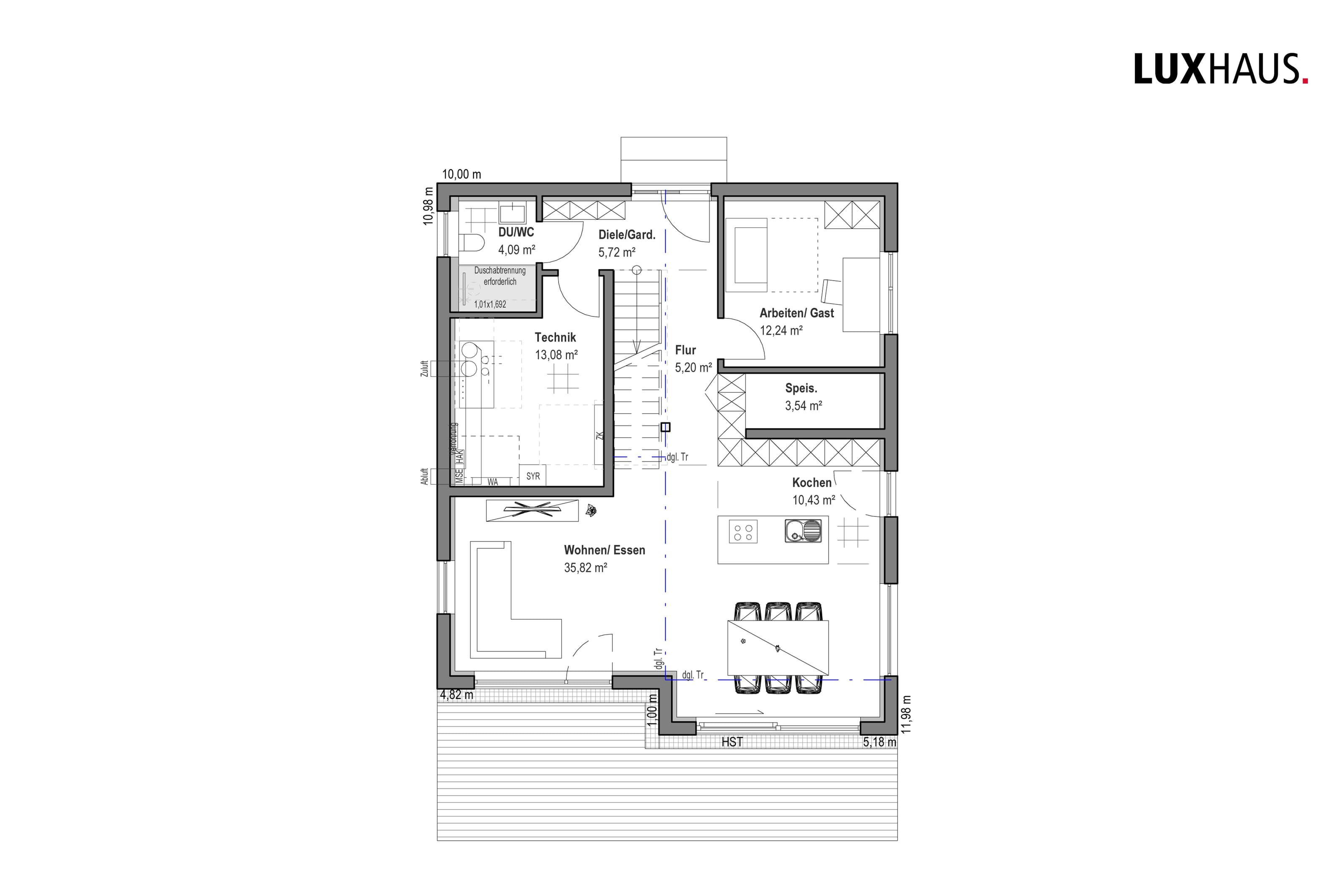
Das Satteldachhaus besticht durch seine kompakte Bauweise und präsentiert sich mit einer weißen Fassade und anthrazitfarbenen Fenstern im modernen Stil. Die Straßenseite umfasst den gleichen Winkel zwischen dem Haupthaus und der Garage, der einen internen Eingangsbereich schafft. Besonders ins Auge fällt das holzverschalte Seitenelement, das auf dem Klingel, der Sprechanlage und dem Briefkasten platziert sind. Die anthrazitfarbene Tür und die funktionalen Elemente setzen einen spannenden Kontrast zur weißen Fassade und verleihen dem Haus eine warme Note. Beim Betreten des Hauses befinden sich rechts die Garderobe und ein Gäste-WC mit Dusche sowie der Technikraum. Auf der linken Seite öffnet sich ein großzügiges Arbeits- oder Gästezimmer mit eigenem Badezimmer, was einen komfortablen Gästebereich schafft. Etwas weiter rechts, leicht versetzt zum Eingang, führt eine gerade Treppe ins Obergeschoss. Im Obergeschoss findet man den Elternbereich mit Knöchel- und Schlafzimmer, zwei identische Kinderzimmer, ein gemeinsames Badezimmer und einen Abstellraum, der Platz für Waschmaschine und Trockner bietet.

Hausdaten

Hausart Icon
HausartEinfamilienhaus
Bauweise Icon
BauweiseHolz-Tafelbau
Anzahl Räume Icon
Anzahl Räume5
Baustil Icon
BaustilKlassische Familienhäuser
Fassade Icon
FassadePutz
Außenmaße Icon
Außenmaße10.98 m x 10 m
Wohnfläche Icon
Wohnfläche171.4 m²
Dachform Icon
DachformSattel-/Giebeldach
Etagen Icon
Etagen2
Energiestandard Icon
EnergiestandardEffizienzhaus 40
Immobilientyp Icon
ImmobilientypKundenhaus
Dachneigung Icon
Dachneigung25°
Mittlerer U-Wert Icon
Mittlerer U-Wert0.12 W/m²K
Hauseigenschaften Icon
HauseigenschaftenTerasse, Gästezimmer
Hausdämmstoff Icon
HausdämmstoffHolzfaser- und Zellulosedämmstoffe
Heizungsart Icon
HeizungsartWärmepumpe (Luft, Wasser, oder beides)
Pfeil nach unten linksWir schaffen Platz für Ihre Träume

Grundriss

Grundriss_SD_LH_171_EG.jpg
Satteldach Landhaus 171 Grundriss (EG)Wohnfläche EG: 83,81 m²
Grundriss_SD_LH_171_DG.jpg
Satteldach Landhaus 171 Grundriss (DG)Wohnfläche DG: 81,59 m²

Unser Team vor Ort

LUXHAUSFachberater*in bei LUXHAUS
Default Avatar
Wir beraten Sie gerne!Arrow Icon

Kataloge

LUXHAUS: Climatic Wand
LUXHAUS

LUXHAUS: Climatic Wand


LUXHAUS: Garagen
LUXHAUS

LUXHAUS: Garagen


LUXHAUS: Mehrwerte
LUXHAUS

LUXHAUS: Mehrwerte


LUXHAUS: Kundenhäuser
LUXHAUS

LUXHAUS: Kundenhäuser


House and TreeParksHouse and PinMusterhausHouse on HandAnbieter