1. AnbieterArrow Icon
  2. LUXHAUSArrow Icon
  3. Satteldach Landhaus 162
Slide 1
Slide 2
Slide 3
Slide 4
Slide 5
Slide 6
Slide 7
Slide 8
no description
LUXHAUSSatteldach Landhaus 162
homeKlassische Familienhäuser
livingArea163 m²
energyStandardEffizienzhaus 40
Preis anfragen
Katalog bestellen

Satteldach Landhaus 162

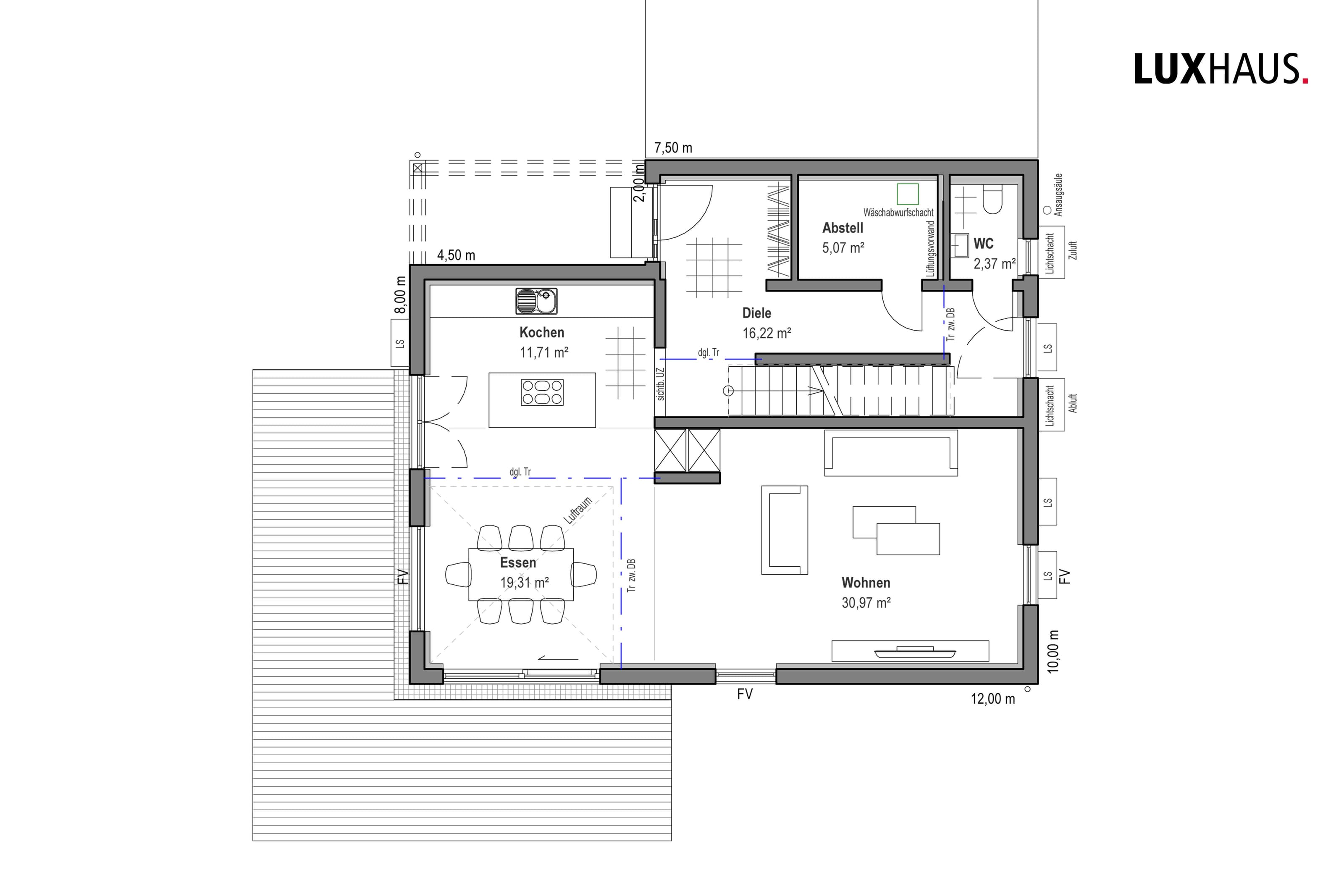
Das moderne Satteldachhaus mit Keller fällt bereits durch seine dunkelgraue Fassade ins Auge. Diese moderne Designästhetik setzt sich nahtlos im Inneren fort, wo Holz auf klare Linien und Anthrazit trifft. Ein Highlight ist der beeindruckende Luftraum im Esszimmer, der nicht nur für eine offene und luftige Atmosphäre sorgt, sondern auch viel Tageslicht hereinlässt.  
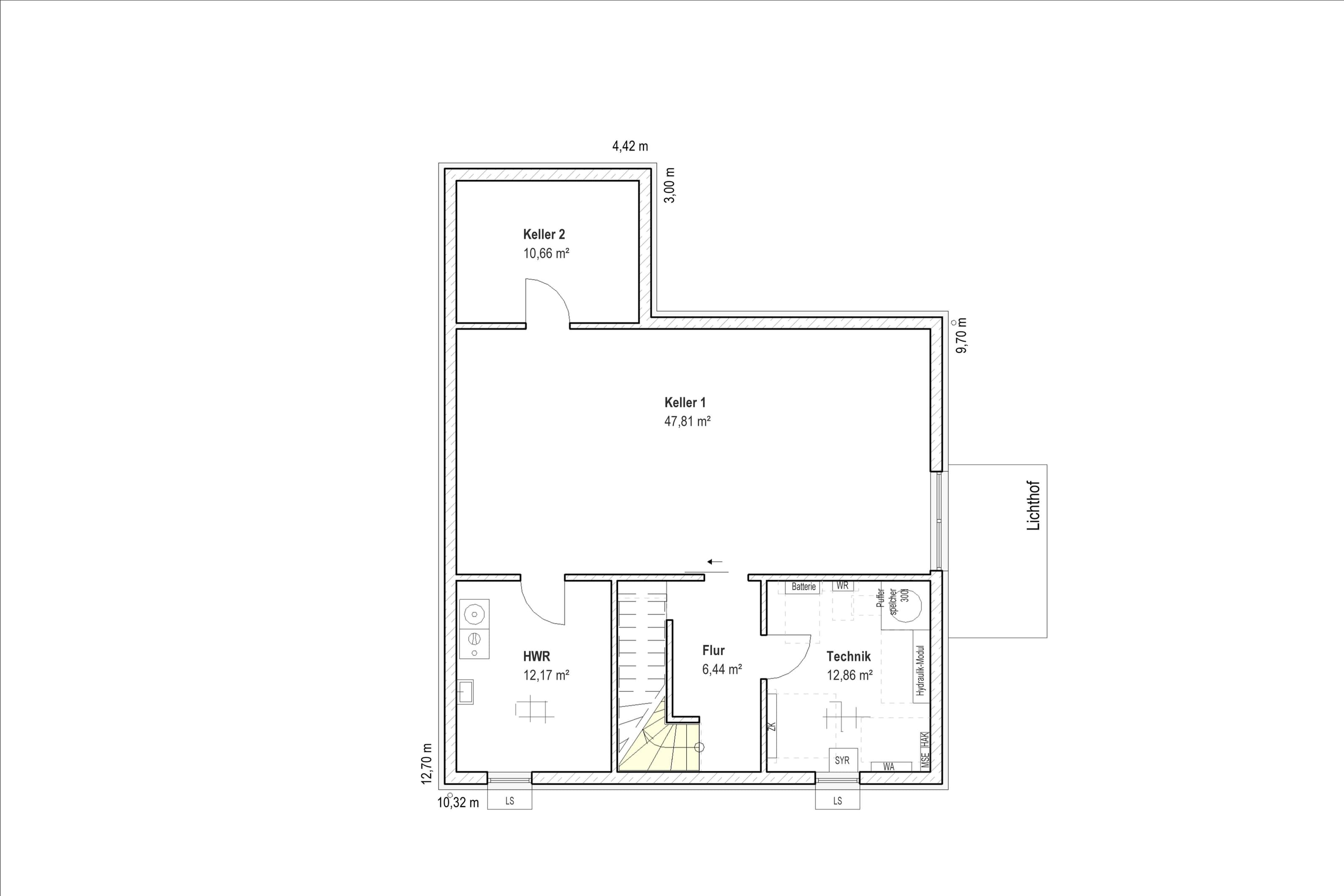
Dieses Satteldachhaus ist das Zuhause einer vierköpfigen Familie und bietet mit seinem Keller nicht nur Platz für die Haustechnik, sondern auch für zwei zusätzliche Räume, die eine Fülle von Stauraummöglichkeiten eröffnen.

Hausdaten

Hausart Icon
HausartEinfamilienhaus
Bauweise Icon
BauweiseHolz-Tafelbau
Anzahl Räume Icon
Anzahl Räume6
Baustil Icon
BaustilKlassische Familienhäuser
Fassade Icon
FassadePutz
Außenmaße Icon
Außenmaße12 m x 10 m
Wohnfläche Icon
Wohnfläche162.87 m²
Dachform Icon
DachformSattel-/Giebeldach
Etagen Icon
Etagen2
Energiestandard Icon
EnergiestandardEffizienzhaus 40
Immobilientyp Icon
ImmobilientypKundenhaus
Dachneigung Icon
Dachneigung32°
Mittlerer U-Wert Icon
Mittlerer U-Wert0.12 W/m²K
Hauseigenschaften Icon
HauseigenschaftenTerasse, Keller
Hausdämmstoff Icon
HausdämmstoffHolzfaser- und Zellulosedämmstoffe
Heizungsart Icon
HeizungsartWärmepumpe (Luft, Wasser, oder beides)
Pfeil nach unten linksWir schaffen Platz für Ihre Träume

Grundriss

no description
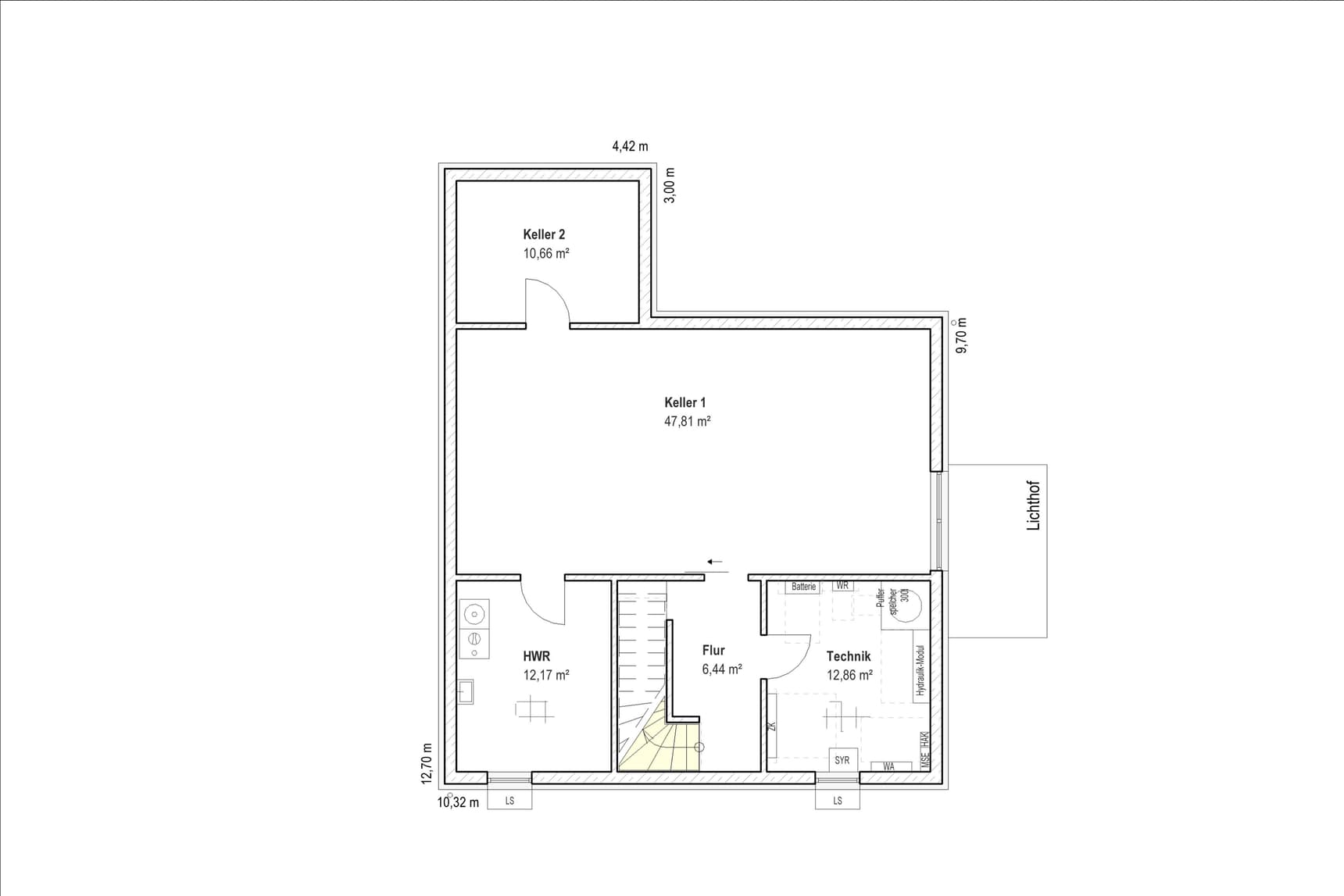
Satteldach Landhaus 162 Grundriss (Keller)
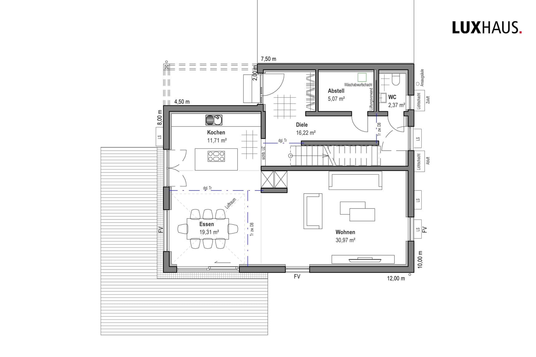
Grundriss_SD_LH_162_EG.jpg
Satteldach Landhaus 162 Grundriss (EG)Wohnfläche EG: 87,86 m²
Grundriss_SD_LH_162_DG.jpg
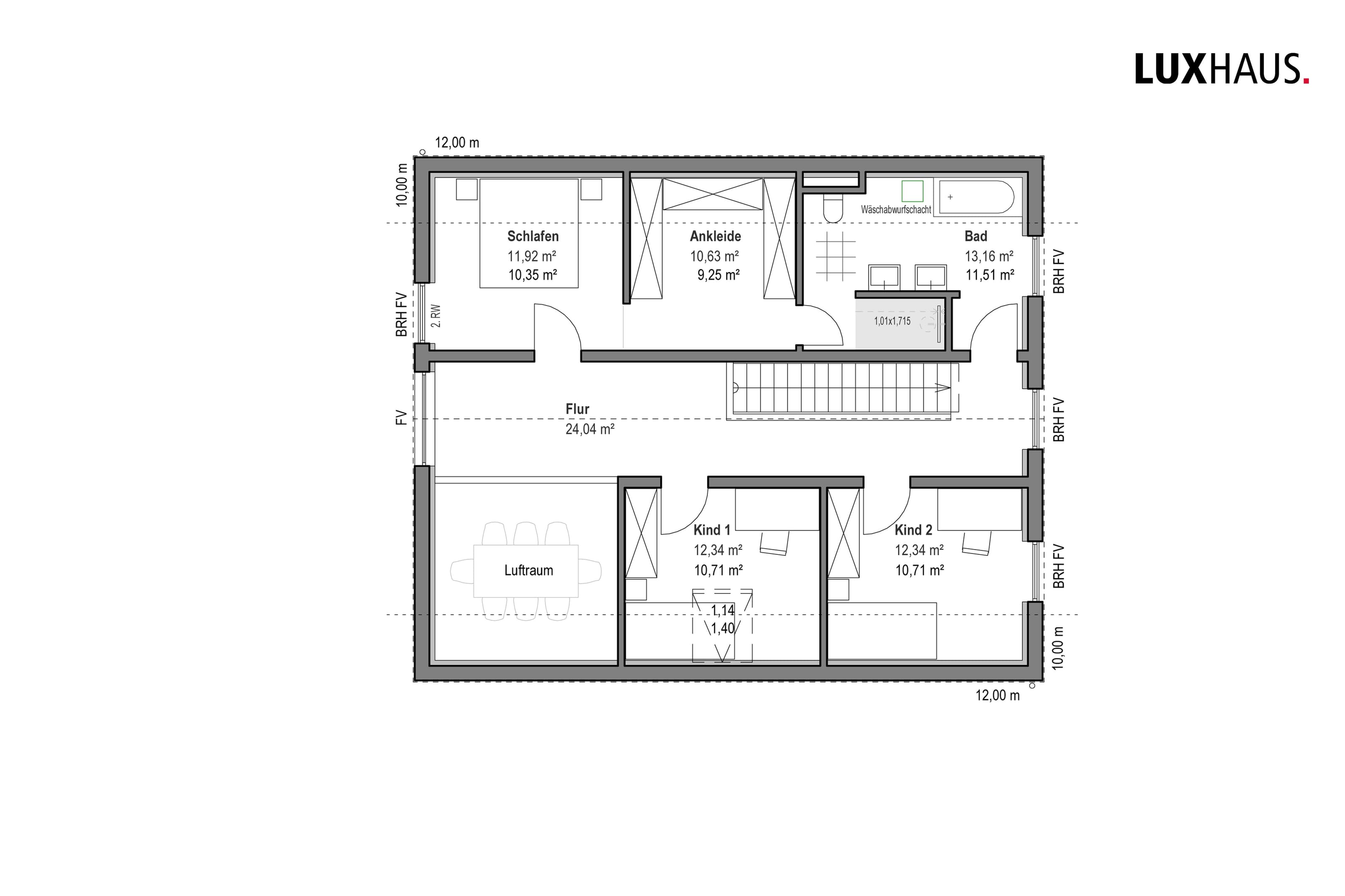
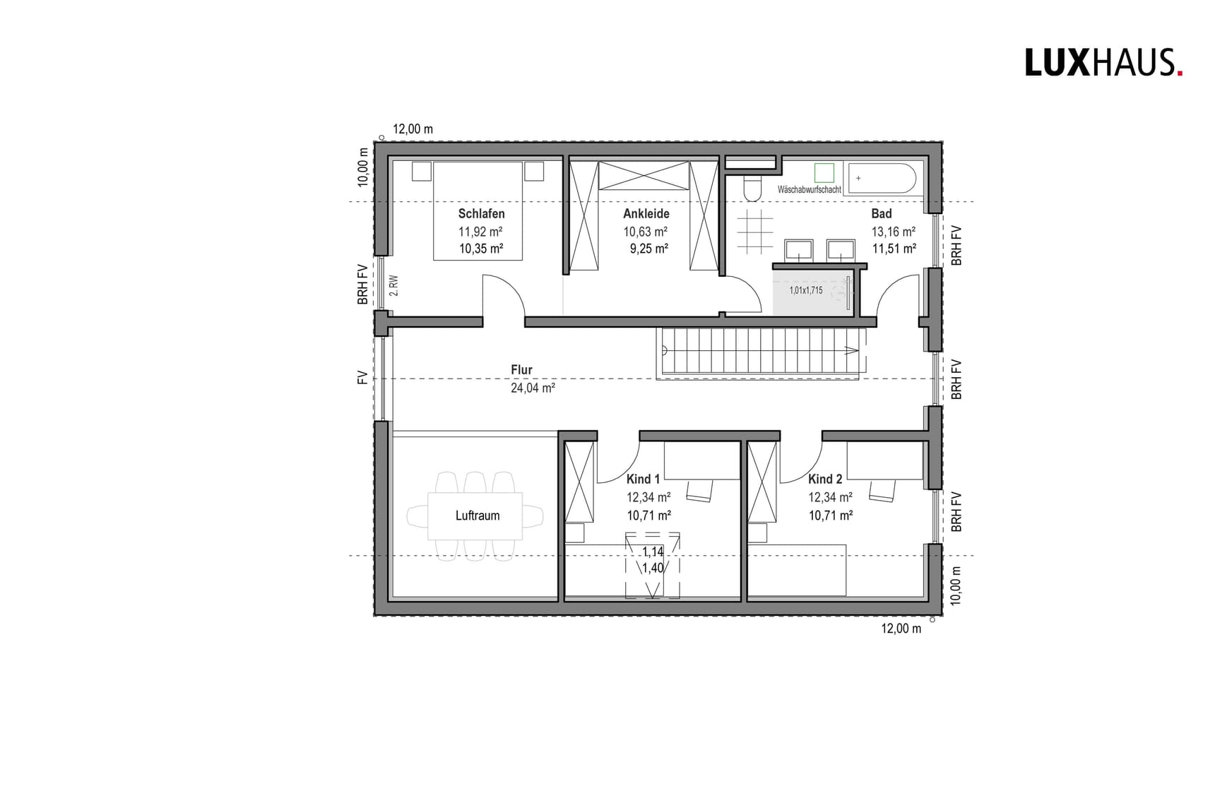
Satteldach Landhaus 162 Grundriss (DG)Wohnfläche DG: 75,01 m²

Unser Team vor Ort

LUXHAUSFachberater*in bei LUXHAUS
Default Avatar
Wir beraten Sie gerne!Arrow Icon

Kataloge

LUXHAUS: Climatic Wand
LUXHAUS

LUXHAUS: Climatic Wand


LUXHAUS: Garagen
LUXHAUS

LUXHAUS: Garagen


LUXHAUS: Mehrwerte
LUXHAUS

LUXHAUS: Mehrwerte


LUXHAUS: Kundenhäuser
LUXHAUS

LUXHAUS: Kundenhäuser


House and TreeParksHouse and PinHäuser liveHouse on HandAnbieter