1. AnbieterArrow Icon
  2. LUXHAUSArrow Icon
  3. Satteldach Landhaus 143
Slide 1
Slide 2
Slide 3
Slide 4
no description
LUXHAUSSatteldach Landhaus 143
homeKlassische Familienhäuser
livingArea143 m²
energyStandardEffizienzhaus 40
Preis anfragen
Katalog bestellen

Satteldach Landhaus 143

Auf den ersten Blick ein schlichtes Satteldachhaus, das aber mit zahlreichen gestalterischen Highlights aufwarten kann. Dazu die modernen, teilweise liegenden Fensterformate mit anthrazitfarbenen Rahmen und die jeweils in grau abgesetzten Anbauteile – der großzügigen, großartigen Querhäuser sowie der abgestützte Balkon. Im Innenraum dominieren Holz, Dunkelgrau und Weiß, eine Kombination, die gleichermaßen Schick und Wärme verbreitet.
 

Hausdaten

Hausart Icon
HausartEinfamilienhaus
Bauweise Icon
BauweiseHolz-Tafelbau
Anzahl Räume Icon
Anzahl Räume5
Baustil Icon
BaustilKlassische Familienhäuser
Fassade Icon
FassadePutz
Außenmaße Icon
Außenmaße10 m x 10.3 m
Wohnfläche Icon
Wohnfläche142.77 m²
Dachform Icon
DachformSattel-/Giebeldach
Etagen Icon
Etagen2
Energiestandard Icon
EnergiestandardEffizienzhaus 40
Immobilientyp Icon
ImmobilientypKundenhaus
Dachneigung Icon
Dachneigung25°
Mittlerer U-Wert Icon
Mittlerer U-Wert0.12 W/m²K
Hauseigenschaften Icon
HauseigenschaftenErker, Balkon, Keller
Hausdämmstoff Icon
HausdämmstoffHolzfaser- und Zellulosedämmstoffe
Heizungsart Icon
HeizungsartWärmepumpe (Luft, Wasser, oder beides)
Pfeil nach unten linksWir schaffen Platz für Ihre Träume

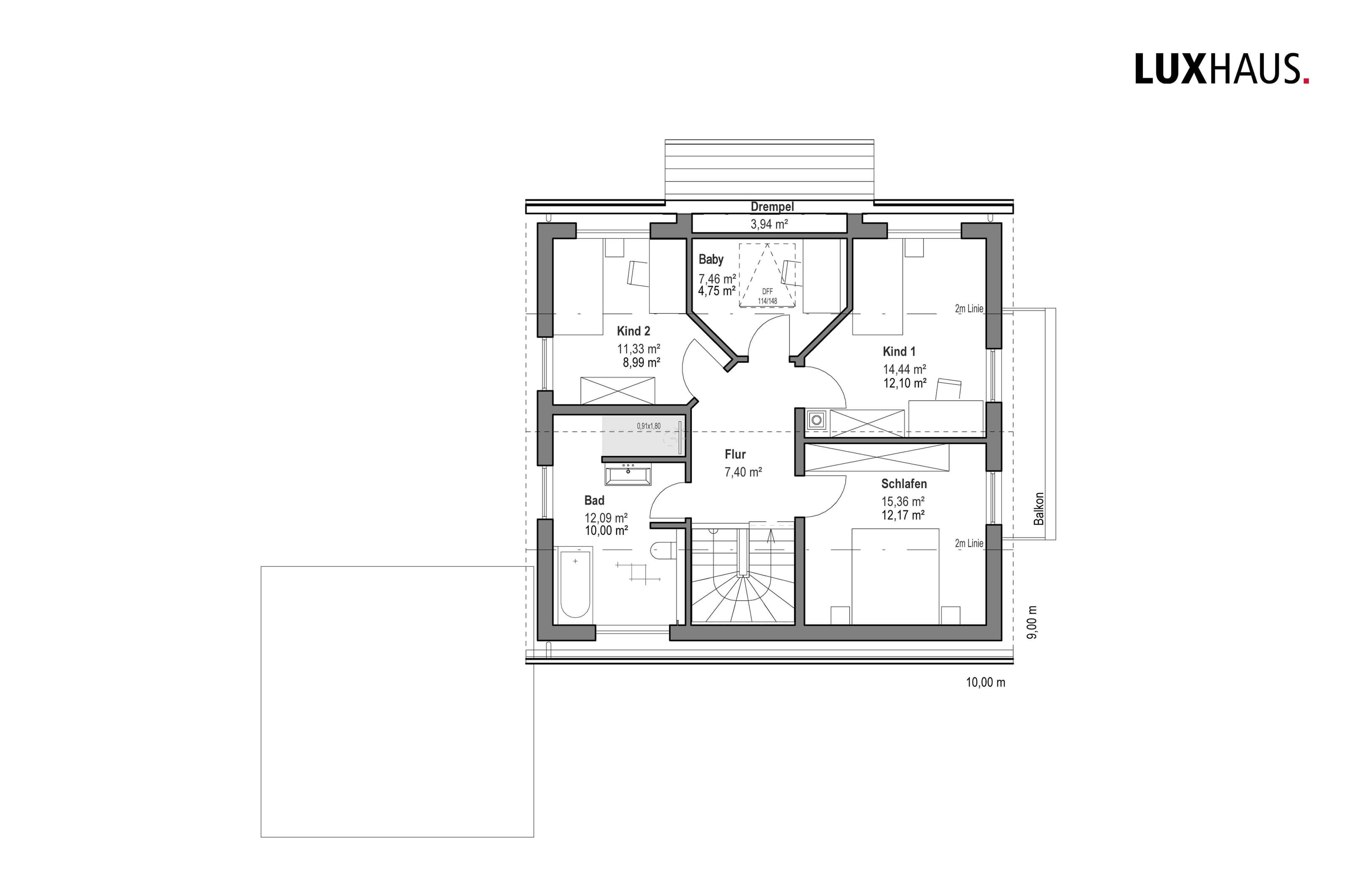
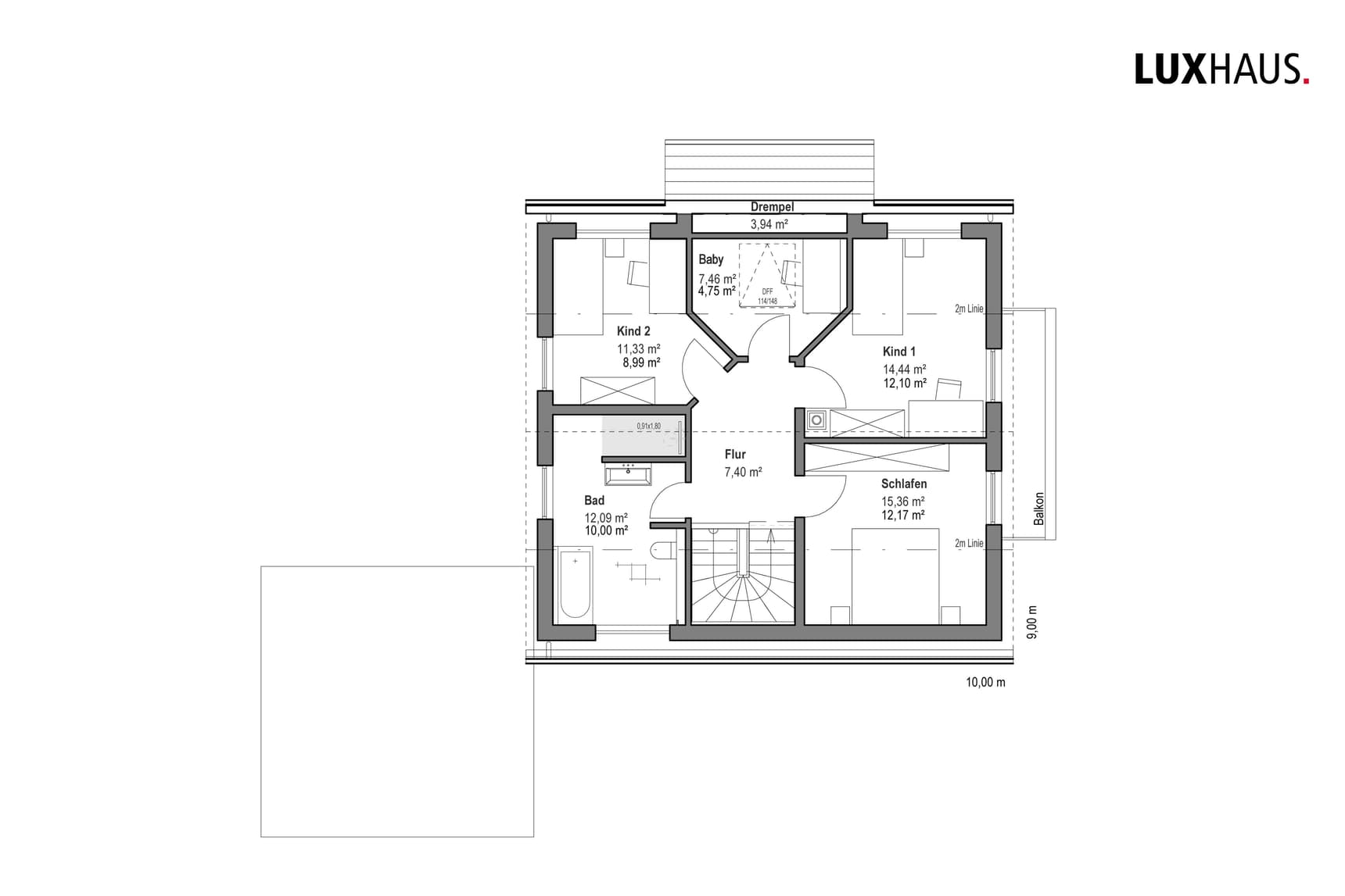
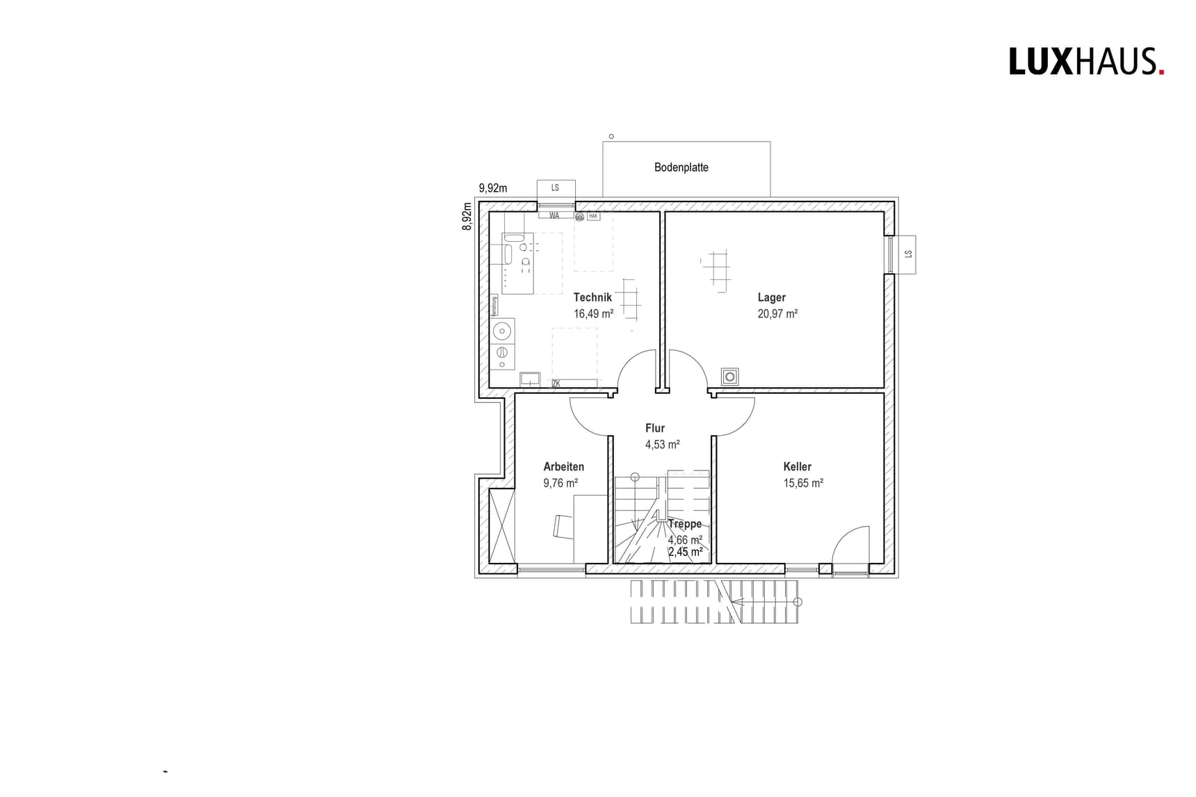
Grundriss

Grundriss_Satteldach-Landhaus-143-KG.jpg
Satteldach Landhaus 143 Grundriss (Keller)
Grundriss_Satteldach-Landhaus-143-EG.jpg
Satteldach Landhaus 143 Grundriss (EG)Wohnfläche EG: 75,52 m²
Grundriss_Satteldach-Landhaus-143-DG.jpg
Satteldach Landhaus 143 Grundriss (OG)

Unser Team vor Ort

LUXHAUSFachberater*in bei LUXHAUS
Default Avatar
Wir beraten Sie gerne!Arrow Icon

Kataloge

LUXHAUS: Climatic Wand
LUXHAUS

LUXHAUS: Climatic Wand


LUXHAUS: Garagen
LUXHAUS

LUXHAUS: Garagen


LUXHAUS: Mehrwerte
LUXHAUS

LUXHAUS: Mehrwerte


LUXHAUS: Kundenhäuser
LUXHAUS

LUXHAUS: Kundenhäuser


House and TreeParksHouse and PinHäuser liveHouse on HandAnbieter