1. AnbieterArrow Icon
  2. LUXHAUSArrow Icon
  3. Satteldach Landhaus 138
Slide 1
Slide 2
Slide 3
Slide 4
Slide 5
Slide 6
Slide 7
Slide 8
no description
LUXHAUSSatteldach Landhaus 138
homeKlassische Familienhäuser
livingArea138 m²
energyStandardEffizienzhaus 40
Preis anfragen
Katalog bestellen

Satteldach Landhaus 138

Das Einfamilienhaus Satteldach Landhaus 138 hat aufgrund der flachen Dachneigung und des hohen Kniestocks zwei Vollgeschosse, was ein Plus an Lebensraum bedeutet. Von außen präsentiert sich das Satteldachhaus in einem hellen Grau mit anthrazitfarbenen Fenstern und anthrazitfarbenem Dach. Sehr moderne Holzelemente verleihen dem Haus eine wohnliche Atmosphäre. Richtung Garten schaffen große Fenster die Voraussetzungen für lichtdurchflutete Räume.

Hausdaten

Hausart Icon
HausartEinfamilienhaus
Bauweise Icon
BauweiseHolz-Tafelbau
Anzahl Räume Icon
Anzahl Räume5
Baustil Icon
BaustilKlassische Familienhäuser
Fassade Icon
FassadePutz
Außenmaße Icon
Außenmaße10.8 m x 8.9 m
Wohnfläche Icon
Wohnfläche138.18 m²
Dachform Icon
DachformSattel-/Giebeldach
Etagen Icon
Etagen2
Energiestandard Icon
EnergiestandardEffizienzhaus 40
Immobilientyp Icon
ImmobilientypKundenhaus
Dachneigung Icon
Dachneigung22°
Mittlerer U-Wert Icon
Mittlerer U-Wert0.12 W/m²K
Hauseigenschaften Icon
HauseigenschaftenTerasse
Hausdämmstoff Icon
HausdämmstoffHolzfaser- und Zellulosedämmstoffe
Heizungsart Icon
HeizungsartWärmepumpe (Luft, Wasser, oder beides)
Pfeil nach unten linksWir schaffen Platz für Ihre Träume

Grundriss

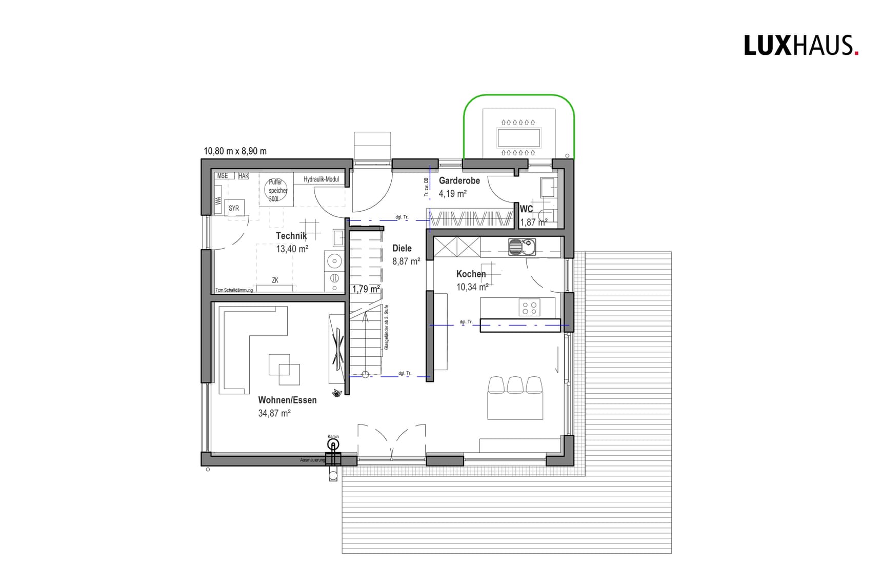
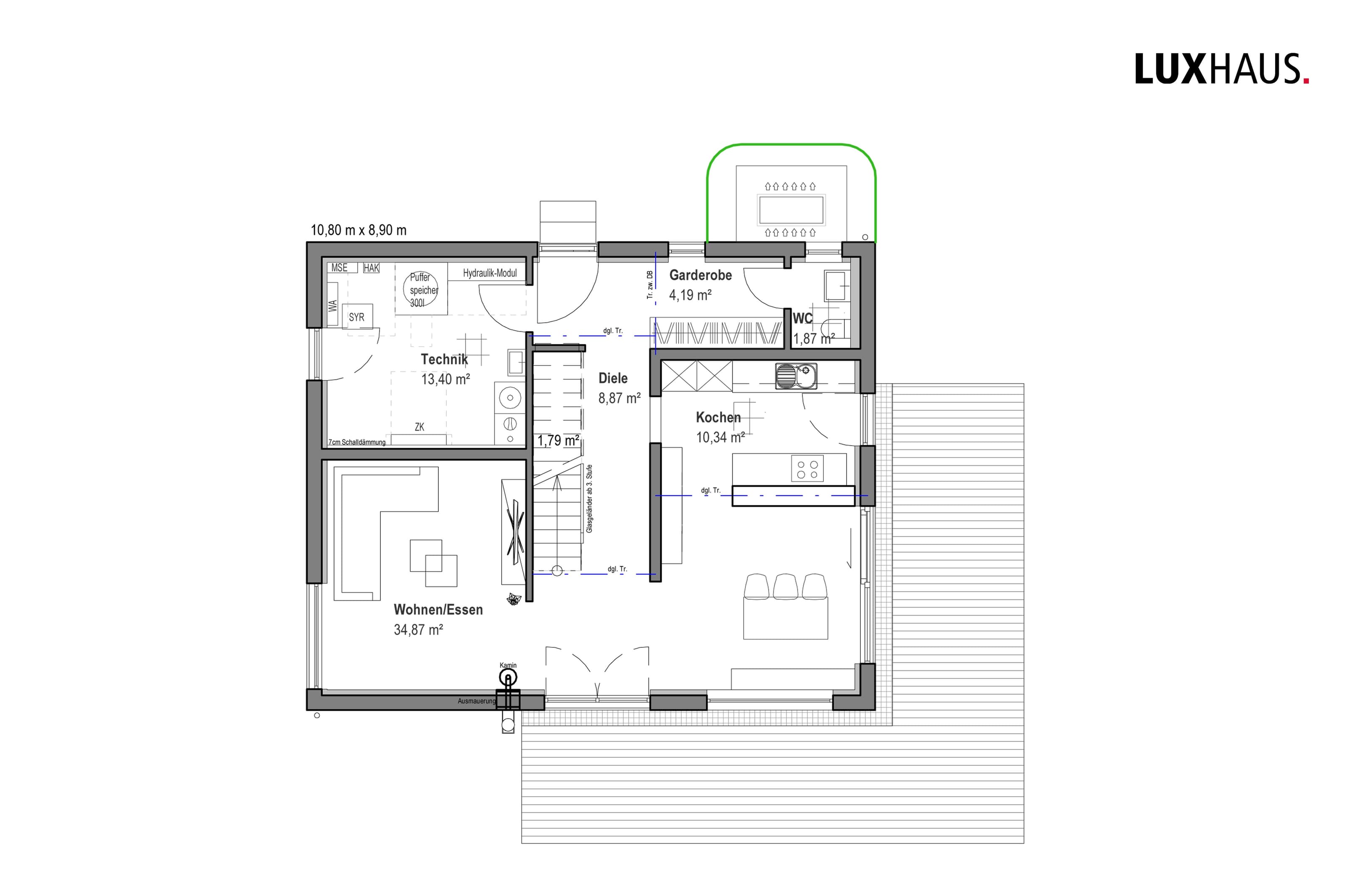
Grundriss_SD_LH_138_EG.jpg
Satteldach Landhaus 138 Grundriss (EG)Wohnfläche EG: 62,48 m²
Grundriss_SD_LH_138_DG.jpg
Satteldach Landhaus 138 Grundriss (DG)Wohnfläche DG: 75,7 m²

Unser Team vor Ort

LUXHAUSFachberater*in bei LUXHAUS
Default Avatar
Wir beraten Sie gerne!Arrow Icon

Kataloge

LUXHAUS: Climatic Wand
LUXHAUS

LUXHAUS: Climatic Wand


LUXHAUS: Garagen
LUXHAUS

LUXHAUS: Garagen


LUXHAUS: Mehrwerte
LUXHAUS

LUXHAUS: Mehrwerte


LUXHAUS: Kundenhäuser
LUXHAUS

LUXHAUS: Kundenhäuser


House and TreeParksHouse and PinHäuser liveHouse on HandAnbieter