1. AnbieterArrow Icon
  2. LUXHAUSArrow Icon
  3. Satteldach Landhaus 126
Slide 1
Slide 2
Slide 3
Slide 4
Slide 5
Slide 6
Slide 7
no description
LUXHAUSSatteldach Landhaus 126
homeKlassische Familienhäuser
livingArea126 m²
energyStandardEffizienzhaus 40
Preis anfragen
Katalog bestellen

Satteldach Landhaus 126

Eine klassische Satteldacharchitektur mit einem modernen Touch. Mut zur Reduktion macht dieses Haus zu etwas Besonderem. Wenige, wohl platzierte Fenster geben gezielt Einblick und schaffen Rückzug, wo er gewünscht ist. Die grauen Akzente strukturieren die Flächen und verleihen dem Haus etwas Filigranes. Im Innenbereich spielen Naturmaterialien, kombiniert mit klaren Linien, eine große Rolle, auch hier vorherrschendes Dunkelgrau, was für einen harmonischen Gesamteindruck sorgt.

Hausdaten

Hausart Icon
HausartEinfamilienhaus
Bauweise Icon
BauweiseHolz-Tafelbau
Anzahl Räume Icon
Anzahl Räume5
Baustil Icon
BaustilKlassische Familienhäuser
Fassade Icon
FassadePutz
Außenmaße Icon
Außenmaße10.34 m x 8.6 m
Wohnfläche Icon
Wohnfläche125.5 m²
Dachform Icon
DachformSattel-/Giebeldach
Etagen Icon
Etagen2
Energiestandard Icon
EnergiestandardEffizienzhaus 40
Immobilientyp Icon
ImmobilientypKundenhaus
Dachneigung Icon
Dachneigung30°
Kniestock Icon
Kniestock1.7 m
Mittlerer U-Wert Icon
Mittlerer U-Wert0.12 W/m²K
Hauseigenschaften Icon
HauseigenschaftenTerasse
Hausdämmstoff Icon
HausdämmstoffHolzfaser- und Zellulosedämmstoffe
Heizungsart Icon
HeizungsartWärmepumpe (Luft, Wasser, oder beides)
Pfeil nach unten linksWir schaffen Platz für Ihre Träume

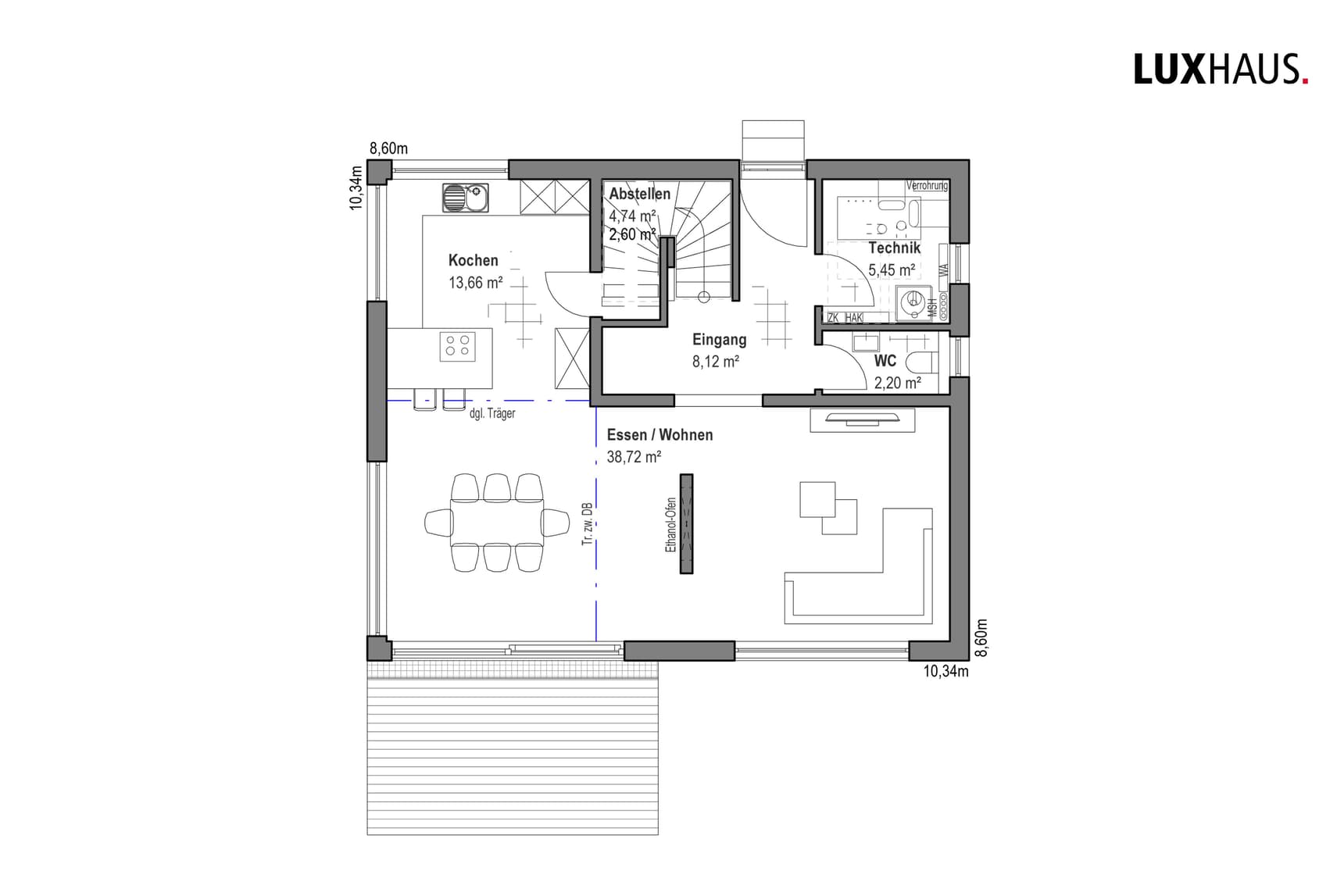
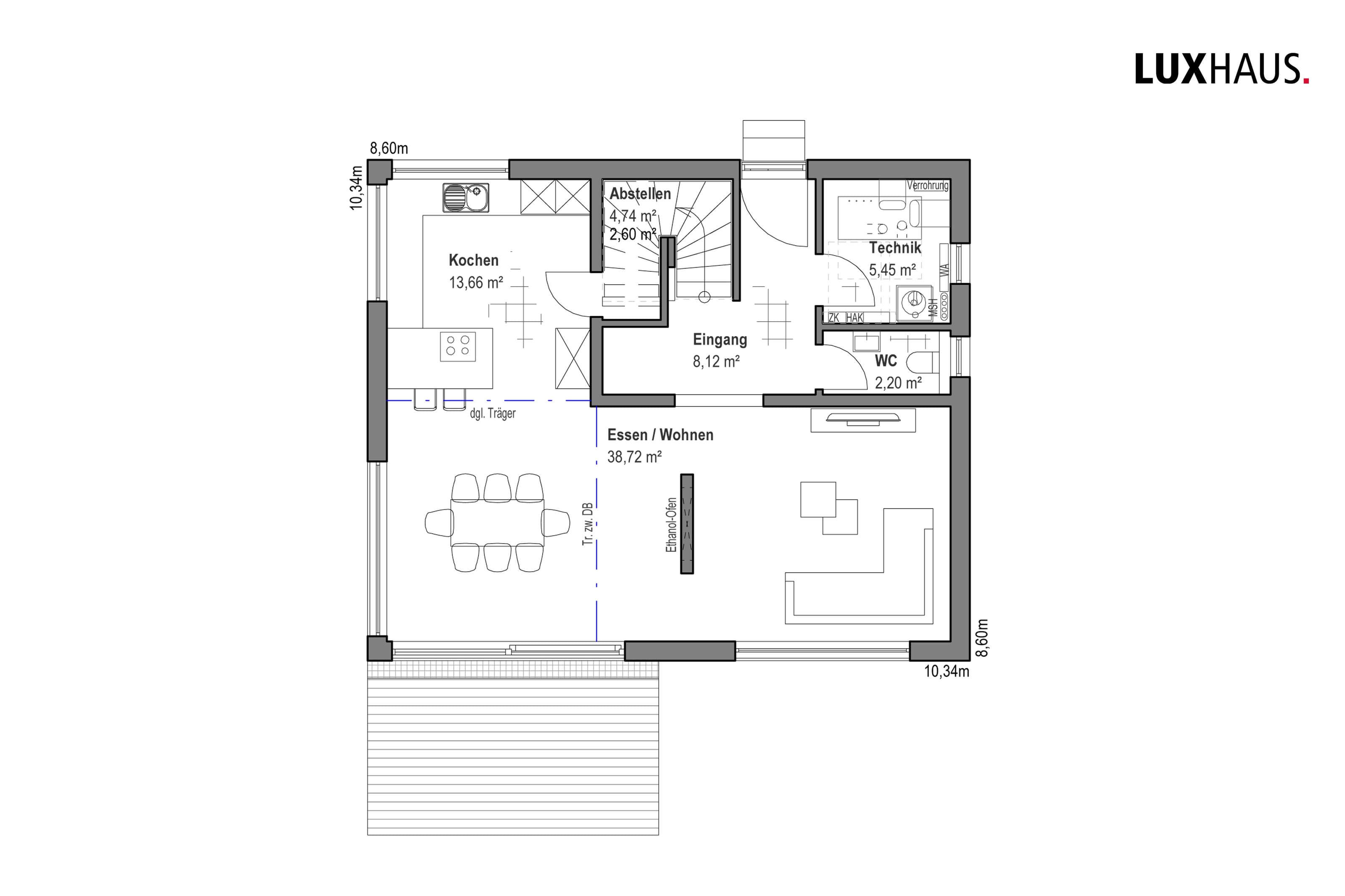
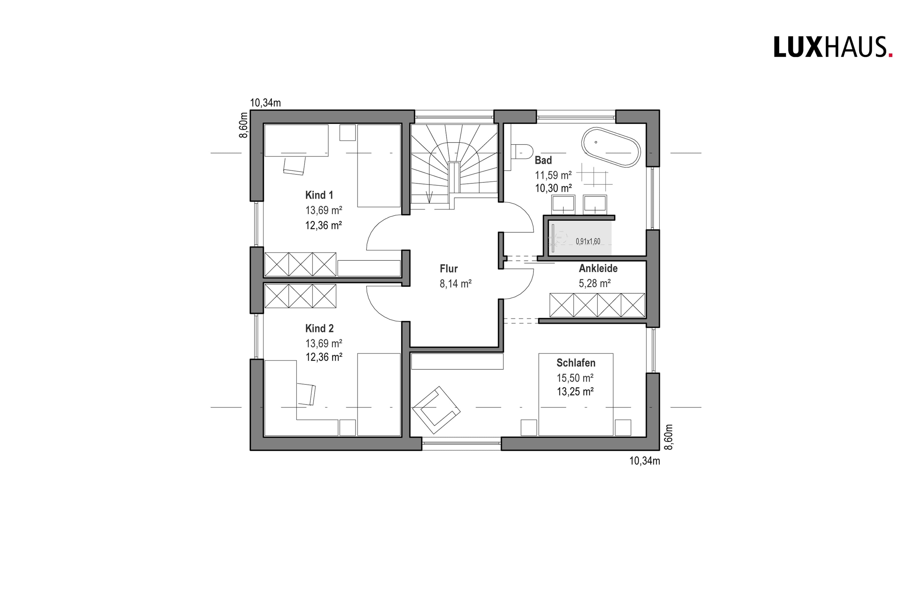
Grundriss

Grundriss_Satteldach_Landhaus_126_EG.jpg
Satteldach Landhaus 126 Grundriss (EG)Wohnfläche EG: 62,9 m²
Grundriss_Satteldach_Landhaus_126_DG.jpg
Satteldach Landhaus 126 Grundriss (OG)Wohnfläche OG: 62,6 m²

Unser Team vor Ort

LUXHAUSFachberater*in bei LUXHAUS
Default Avatar
Wir beraten Sie gerne!Arrow Icon

Kataloge

LUXHAUS: Climatic Wand
LUXHAUS

LUXHAUS: Climatic Wand


LUXHAUS: Garagen
LUXHAUS

LUXHAUS: Garagen


LUXHAUS: Mehrwerte
LUXHAUS

LUXHAUS: Mehrwerte


LUXHAUS: Kundenhäuser
LUXHAUS

LUXHAUS: Kundenhäuser


House and TreeParksHouse and PinHäuser liveHouse on HandAnbieter