1. AnbieterArrow Icon
  2. LUXHAUSArrow Icon
  3. Pultdach Klassik 229
Slide 1
Slide 2
Slide 3
Slide 4
Slide 5
Slide 6
Slide 7
no description
LUXHAUSPultdach Klassik 229
homeKlassische Familienhäuser
livingArea229 m²
energyStandardEffizienzhaus 40
Preis anfragen
Katalog bestellen

Pultdach Klassik 229

Eine Adaption des Musterhauses Georgensgmünd, die eine neue Nutzungsform des mit Lärchenholz verschalten Flachdachanbaus präsentiert. Hier ist die Garage untergebracht worden, so dass sich der Eingangsbereich in einem Art Hof öffnet und so für Ankommende einladend wirkt und für die Hausherren ein Gefühl von Ankunft vermittelt.

Hausdaten

Hausart Icon
HausartEinfamilienhaus
Bauweise Icon
BauweiseHolz-Tafelbau
Anzahl Räume Icon
Anzahl Räume7
Baustil Icon
BaustilKlassische Familienhäuser
Fassade Icon
FassadePutz
Außenmaße Icon
Außenmaße27.62 m x 15.25 m
Wohnfläche Icon
Wohnfläche229.25 m²
Dachform Icon
DachformPultdach
Etagen Icon
Etagen2
Energiestandard Icon
EnergiestandardEffizienzhaus 40
Immobilientyp Icon
ImmobilientypKundenhaus
Dachneigung Icon
Dachneigung
Mittlerer U-Wert Icon
Mittlerer U-Wert0.12 W/m²K
Hauseigenschaften Icon
HauseigenschaftenEinliegerwohnung, Terasse
Hausdämmstoff Icon
HausdämmstoffHolzfaser- und Zellulosedämmstoffe
Heizungsart Icon
HeizungsartWärmepumpe (Luft, Wasser, oder beides)
Pfeil nach unten linksWir schaffen Platz für Ihre Träume

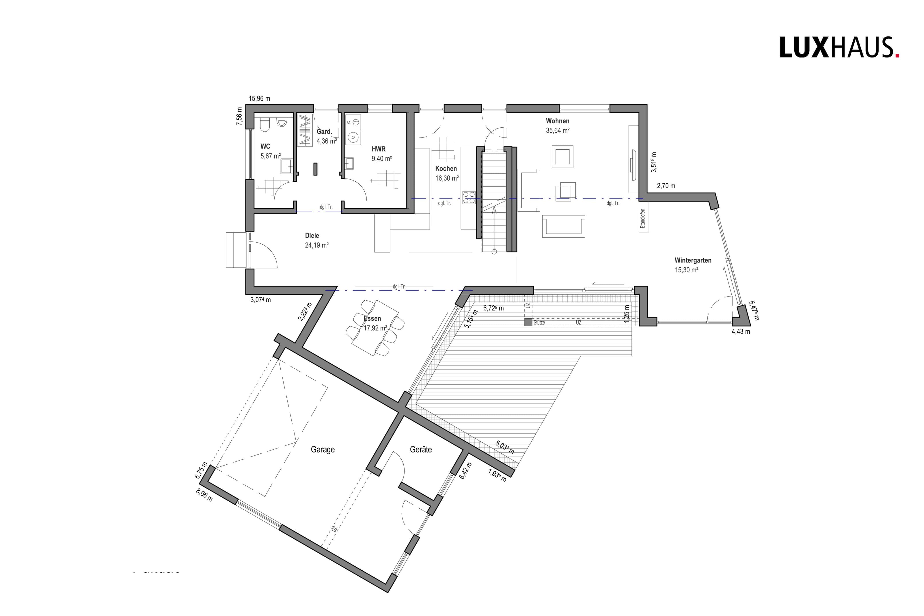
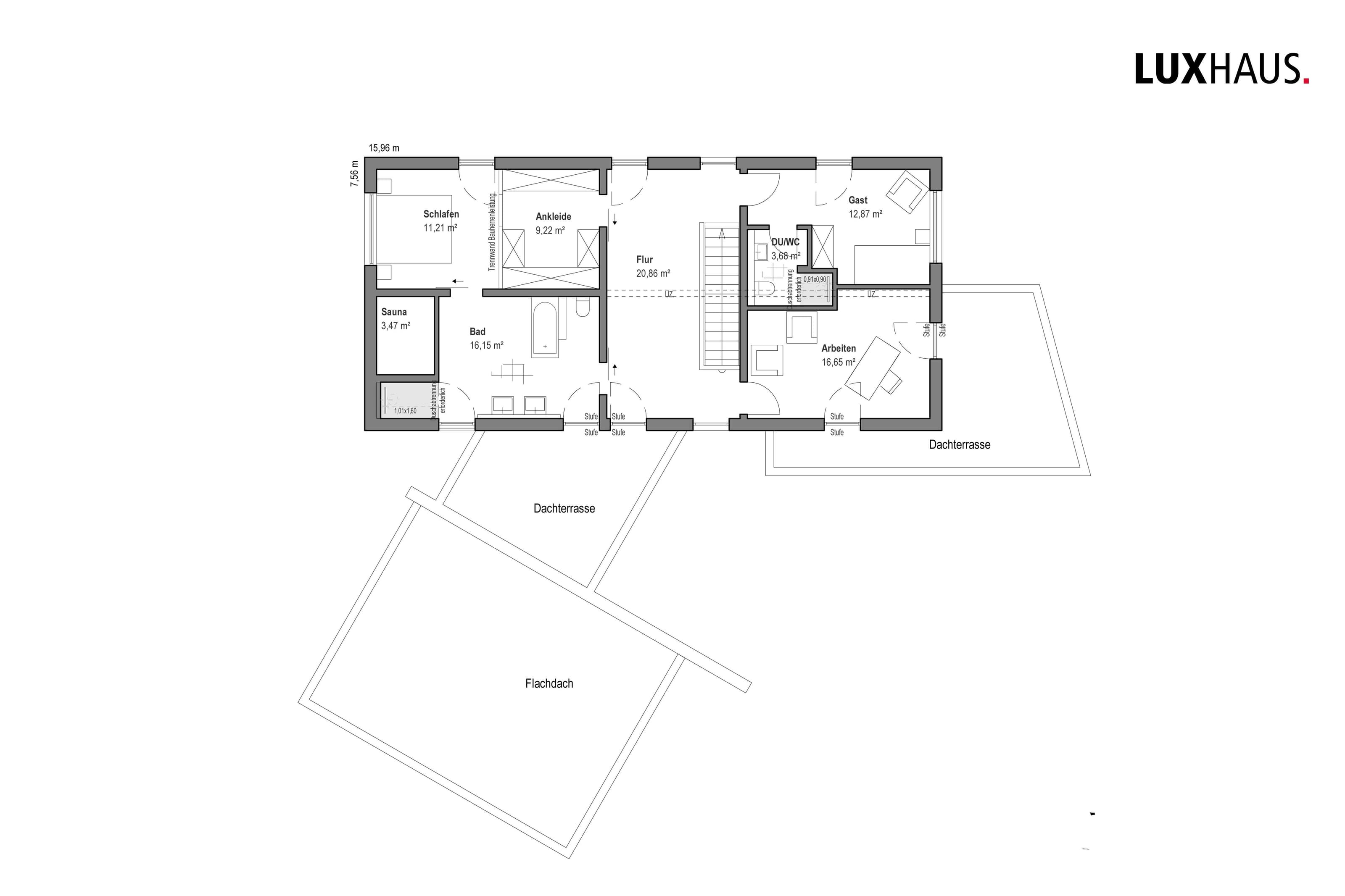
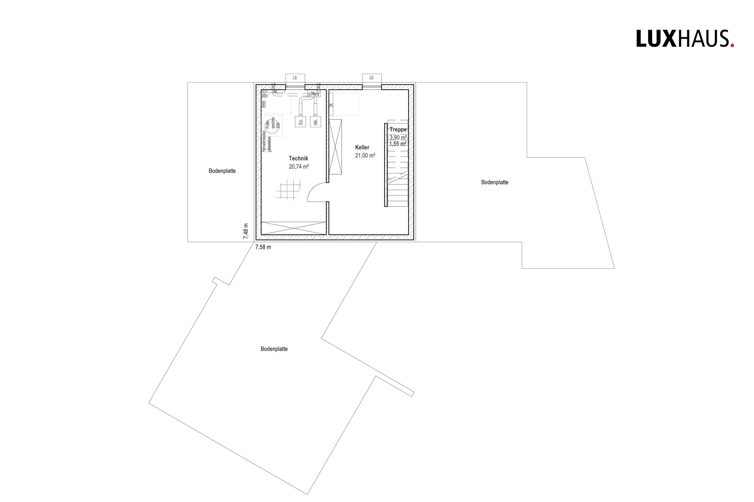
Grundriss

Grundirss_Pultdach_Klassik_229_UG.jpg
Pultdach Klassik 229 Grundriss (Keller)
Grundirss_Pultdach_Klassik_229_EG.jpg
Pultdach Klassik 229 Grundriss (EG)Wohnfläche EG: 125,78 m²
Grundirss_Pultdach_Klassik_229_OUG.jpg
Pultdach Klassik 229 Grundriss (OG)Wohnfläche OG: 103,47 m²

Unser Team vor Ort

LUXHAUSFachberater*in bei LUXHAUS
Default Avatar
Wir beraten Sie gerne!Arrow Icon

Kataloge

LUXHAUS: Climatic Wand
LUXHAUS

LUXHAUS: Climatic Wand


LUXHAUS: Garagen
LUXHAUS

LUXHAUS: Garagen


LUXHAUS: Mehrwerte
LUXHAUS

LUXHAUS: Mehrwerte


LUXHAUS: Kundenhäuser
LUXHAUS

LUXHAUS: Kundenhäuser


House and TreeParksHouse and PinHäuser liveHouse on HandAnbieter