1. AnbieterArrow Icon
  2. LUXHAUSArrow Icon
  3. Pultdach Klassik 166
Slide 1
Slide 2
Slide 3
Slide 4
Slide 5
Slide 6
Slide 7
Slide 8
no description
LUXHAUSPultdach Klassik 166
homeKlassische Familienhäuser
livingArea166 m²
energyStandardEffizienzhaus 40
Preis anfragen
Katalog bestellen

Pultdach Klassik 166

Cool und zeitlos - so lässt sich dieses moderne Pultdachhaus vermutlich am besten zusammenfassen.

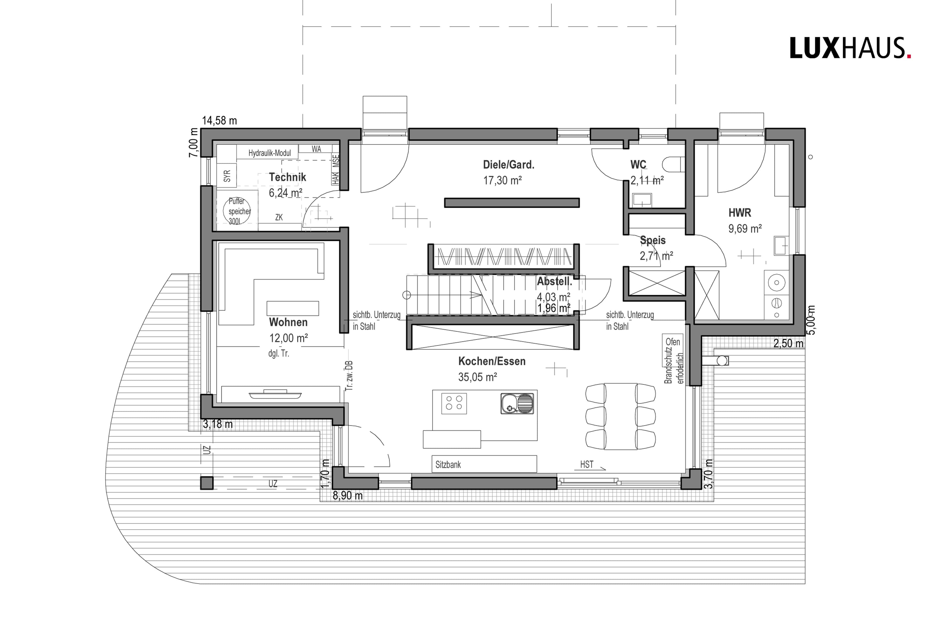
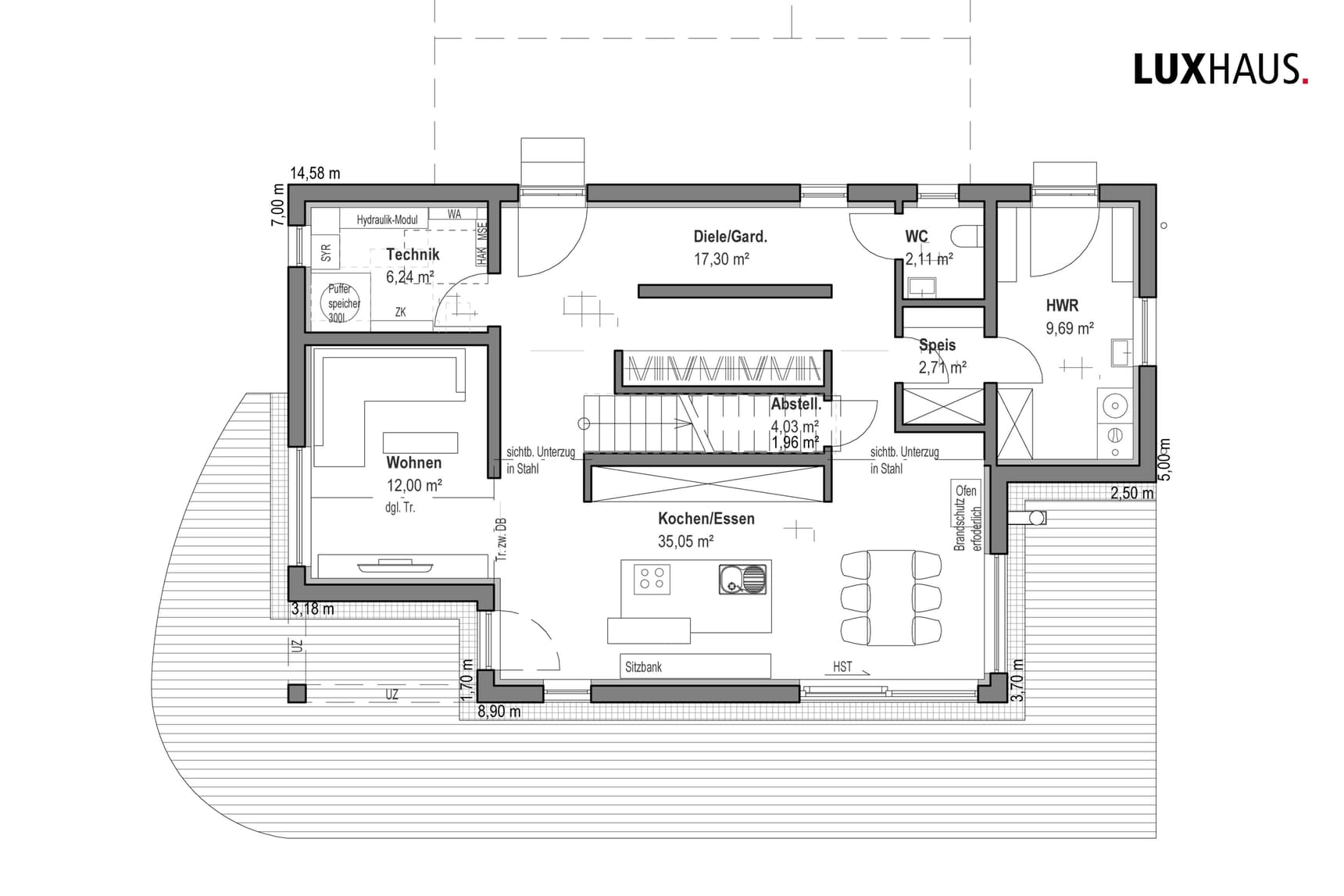
Zentrales Element dieses Pultdachhauses ist die geradläufige Treppe, die mit einem Abstellraum zusätzlichen Platz und dank der Betonoptik einen echten Blickfang schafft.

Auf Bodenplatte gebaut entsteht so, durch eine erweiterte Garage ergänzt, Stauraum für die Hausbewohner.

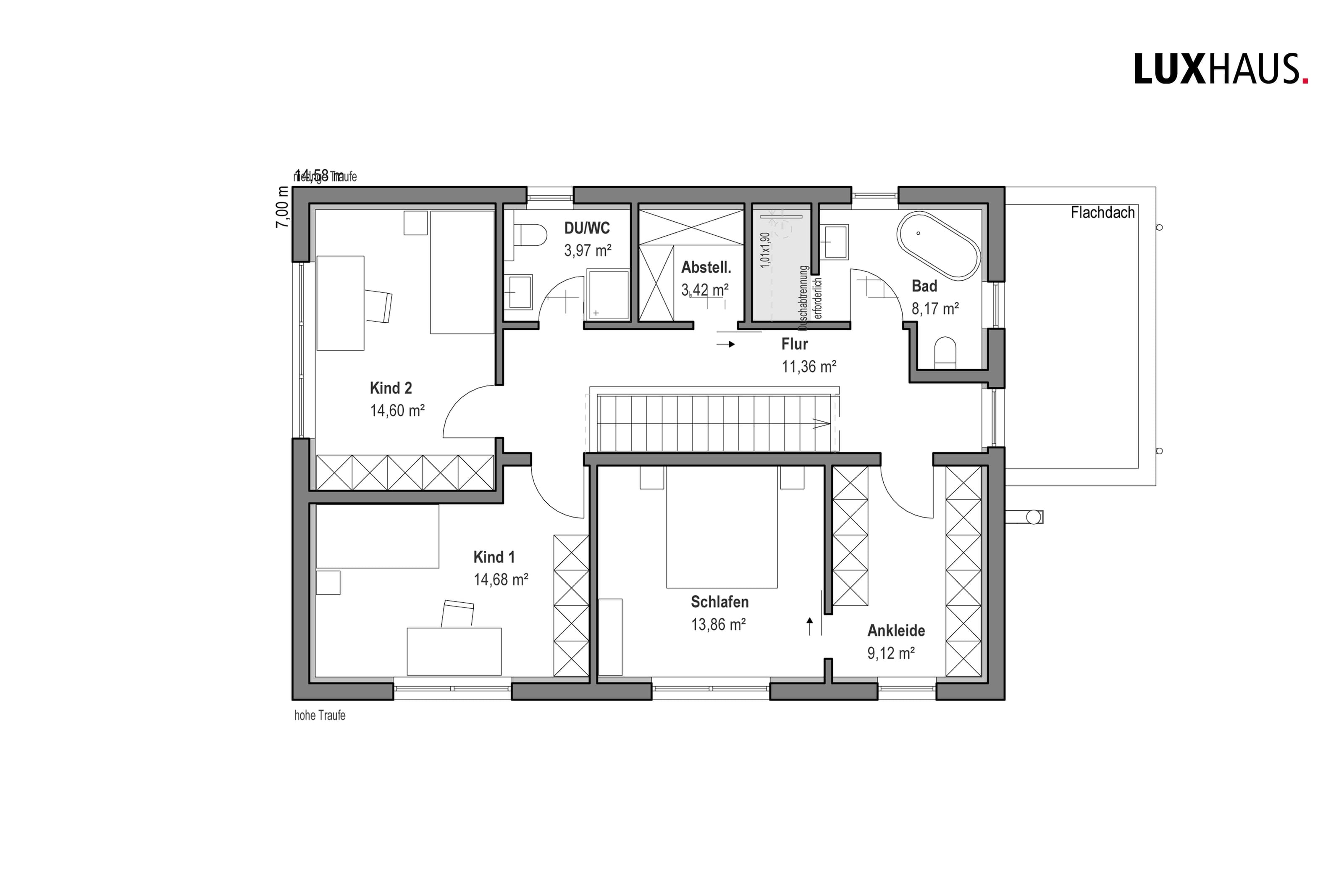
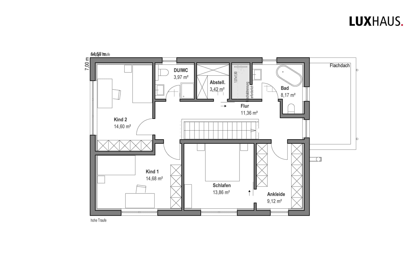
Die Treppe entkoppelt optisch den Eingangsbereich mit den Funktionsräumen Technikraum, WC und Speis vom Koch-Essbereich und dem etwas eigenständigeren Wohnzimmer. Geht man die Treppe hoch, kommt man im Elterntrakt mit Schlafzimmer, Ankleide und Bad an, ein Abstellraum bietet wiederum Stauraum und die zwei Kinderzimmer teilen sich ein Dusch-WC.

Ein Haus, das Platz für die ganze Familie und eine Menge Komfort bietet, dabei repräsentative Elemente und private Zurückgezogenheit kombiniert.

Hausdaten

Hausart Icon
HausartEinfamilienhaus
Bauweise Icon
BauweiseHolz-Tafelbau
Anzahl Räume Icon
Anzahl Räume5
Baustil Icon
BaustilKlassische Familienhäuser
Fassade Icon
FassadePutz
Außenmaße Icon
Außenmaße12.08 m x 8.7 m
Wohnfläche Icon
Wohnfläche166.19 m²
Dachform Icon
DachformPultdach
Etagen Icon
Etagen2
Energiestandard Icon
EnergiestandardEffizienzhaus 40
Immobilientyp Icon
ImmobilientypKundenhaus
Dachneigung Icon
Dachneigung
Mittlerer U-Wert Icon
Mittlerer U-Wert0.12 W/m²K
Hauseigenschaften Icon
HauseigenschaftenTerasse
Hausdämmstoff Icon
HausdämmstoffHolzfaser- und Zellulosedämmstoffe
Heizungsart Icon
HeizungsartWärmepumpe (Luft, Wasser, oder beides)
Pfeil nach unten linksWir schaffen Platz für Ihre Träume

Grundriss

Grundriss_PD_Klassik_166_EG.jpg
Pultdach Klassik 166 Grundriss (EG)Wohnfläche EG: 84,58 m²
Grundriss_PD_Klassik_166_OG.jpg
Pultdach Klassik 166 Grundriss (OG)Wohnfläche OG: 81,61 m²

Unser Team vor Ort

LUXHAUSFachberater*in bei LUXHAUS
Default Avatar
Wir beraten Sie gerne!Arrow Icon

Kataloge

LUXHAUS: Climatic Wand
LUXHAUS

LUXHAUS: Climatic Wand


LUXHAUS: Garagen
LUXHAUS

LUXHAUS: Garagen


LUXHAUS: Mehrwerte
LUXHAUS

LUXHAUS: Mehrwerte


LUXHAUS: Kundenhäuser
LUXHAUS

LUXHAUS: Kundenhäuser


House and TreeParksHouse and PinMusterhausHouse on HandAnbieter