1. AnbieterArrow Icon
  2. LUXHAUSArrow Icon
  3. Flachdach 170
Slide 1
Slide 2
Slide 3
Slide 4
Slide 5
no description
LUXHAUSFlachdach 170
homeVillen
livingArea170 m²
energyStandardEffizienzhaus 40
Preis anfragen
Katalog bestellen

Flachdach 170

Nähert man sich dem eingeschossigen Bau, wirkt er auf den ersten Blick schlicht und kubisch, doch bereits beim Eintreten wird man eines Besseren belehrt.

Eine Fülle an Details empfängt den Besucher, besonderer Blickfang ist die Aussicht auf die schneeweiße Terrasse und in den Garten durch eine spektakuläre umlaufende Glasfront.

Das Bürogebäude, das teilweise bereits als Wohnraum genutzt wird, aber darauf ausgelegt ist, irgendwann einmal vollständig als Wohnraum zu dienen, verströmt den Reiz des Besonderen und Luxus pur.

Hausdaten

Hausart Icon
HausartEinfamilienhaus
Bauweise Icon
BauweiseHolz-Tafelbau
Anzahl Räume Icon
Anzahl Räume4
Baustil Icon
BaustilVillen
Fassade Icon
FassadePutz
Außenmaße Icon
Außenmaße21.5 m x 20.29 m
Wohnfläche Icon
Wohnfläche170.17 m²
Dachform Icon
DachformFlachdach
Etagen Icon
Etagen1
Energiestandard Icon
EnergiestandardEffizienzhaus 40
Immobilientyp Icon
ImmobilientypKundenhaus
Mittlerer U-Wert Icon
Mittlerer U-Wert0.12 W/m²K
Hauseigenschaften Icon
HauseigenschaftenViel Glas
Hausdämmstoff Icon
HausdämmstoffHolzfaser- und Zellulosedämmstoffe
Heizungsart Icon
HeizungsartWärmepumpe (Luft, Wasser, oder beides)
Pfeil nach unten linksWir schaffen Platz für Ihre Träume

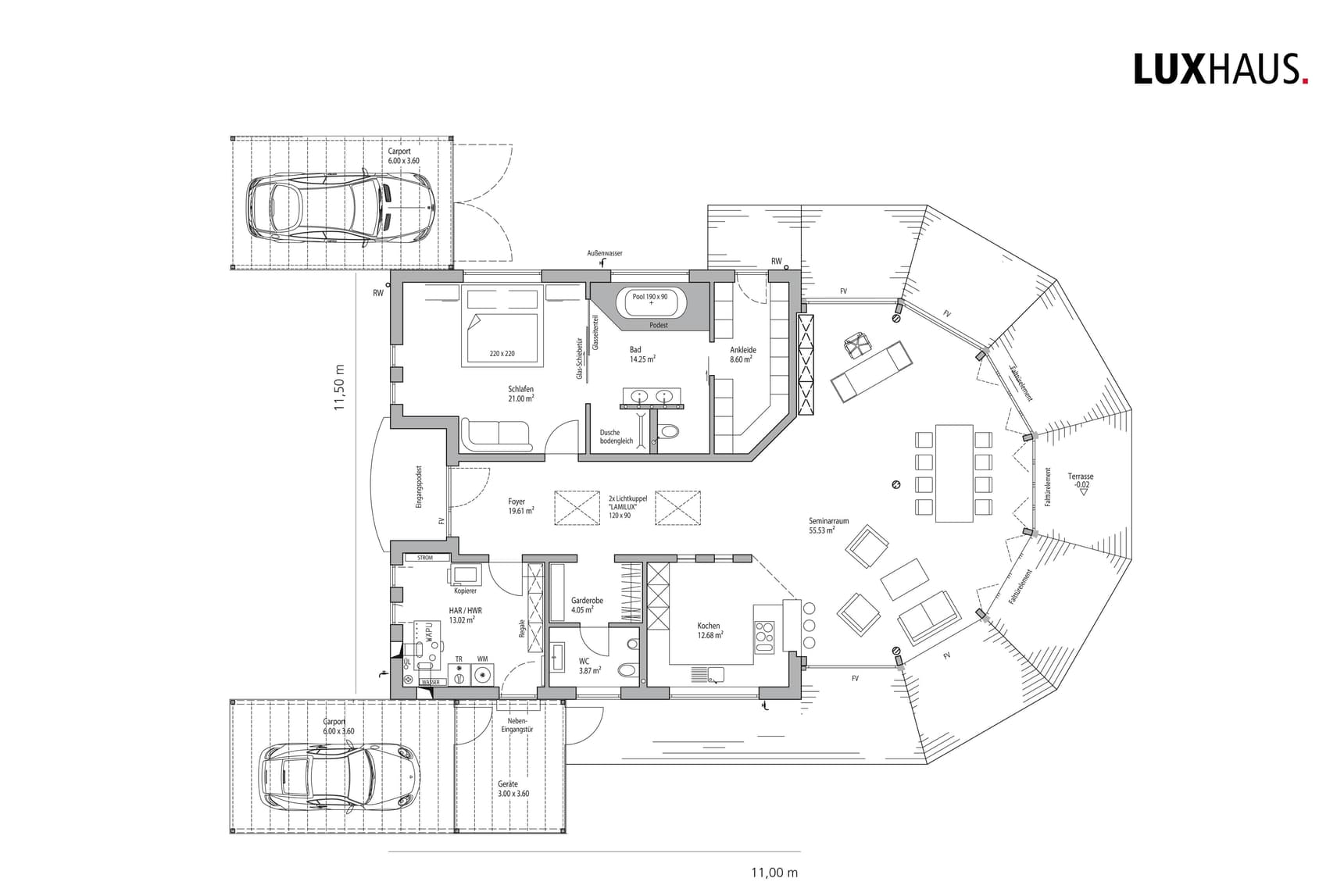
Grundriss

Grundriss_Flachdach_170_EG.jpg
Flachdach 170 Grundriss (EG)Wohnfläche EG: 170,17 m²

Unser Team vor Ort

LUXHAUSFachberater*in bei LUXHAUS
Default Avatar
Wir beraten Sie gerne!Arrow Icon

Kataloge

LUXHAUS: Climatic Wand
LUXHAUS

LUXHAUS: Climatic Wand


LUXHAUS: Garagen
LUXHAUS

LUXHAUS: Garagen


LUXHAUS: Mehrwerte
LUXHAUS

LUXHAUS: Mehrwerte


LUXHAUS: Kundenhäuser
LUXHAUS

LUXHAUS: Kundenhäuser


House and TreeParksHouse and PinHäuser liveHouse on HandAnbieter