1. AnbieterArrow Icon
  2. Keitel-HausArrow Icon
  3. Haus Wacholderheide
Slide 1
Slide 2
Slide 3
Slide 4
Slide 5
Slide 6
no description
Keitel-HausHaus Wacholderheide
homeKlassische Familienhäuser
livingArea154 m²
energyStandardEffizienzhaus 55
Preis anfragen
Katalog bestellen

Haus Wacholderheide

Neustart zu zweit

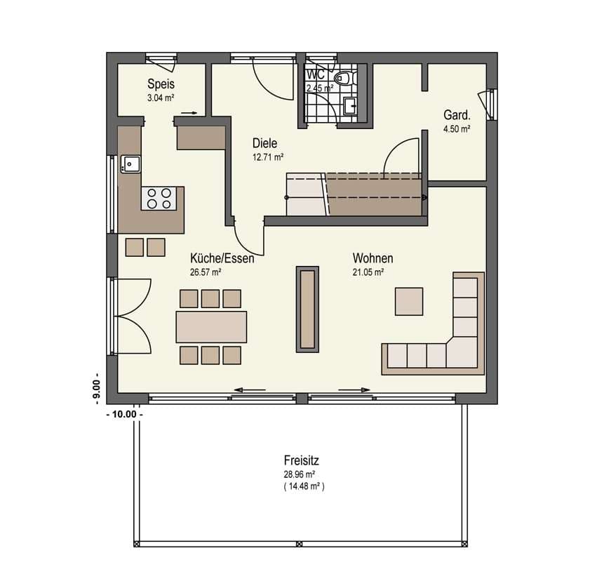
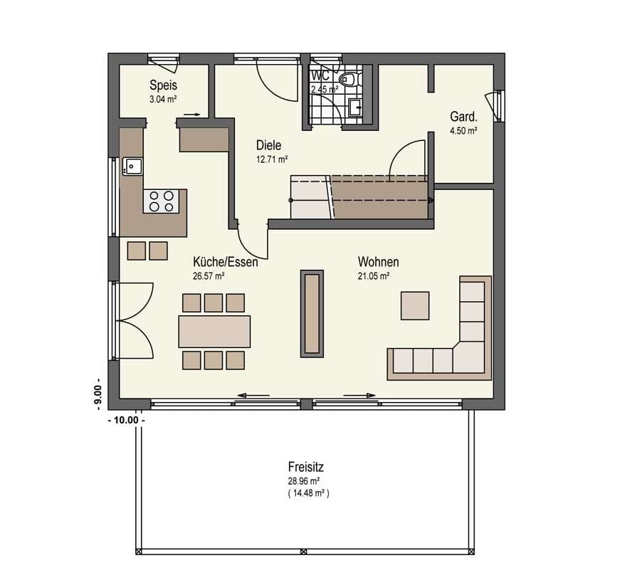
Mit 9,00 x 10,00 m eher kompakt geschnitten, ist Haus Wacholderheide von Keitel Haus für das Wohnen zu zweit konzipiert. Seine Bewohner verwöhnt es im Obergeschoss mit verschiedenen Wellness-Angeboten, im Erdgeschoss mit hellen, offenen Räumen und einem Raumteiler, in dem all die vielen Kleinigkeiten verschwinden, die beim Wohnen in einem puristischen Ambiente für störende Ablenkung sorgen. Für die erwachsenen Söhne gibt es zwei Zimmer plus Bad im Keller

Ideen für ihr neues Heim holten sich die beiden in einem Musterhauszentrum. Besonders angetan waren sie dabei vom guten Raumklima und der hohen Luftqualität in den Fertighäusern. „Nach einem ersten Rundgang gingen wir in alle Häuser, die uns optisch besonders gefielen“, rekapituliert Martina Heinl. Unter anderem besuchte das Ehepaar das Musterhaus der Firma Keitel, wo es ein derart angenehmes Gespräch mit dem Berater hatte, dass die Firma von Anfang an gut im Rennen war. In der Folge blieb man in Kontakt und vertiefte den positiven Eindruck. „Während wir bei den anderen Firmen das Gefühl hatten, dass die Berater in erster Linie verkaufen wollten, fühlten wir uns bei Keitel Haus rundum gut beraten“, Presseinformation PM: „Neustart zu zweit“ 2 entsinnt sich Stefan Heinl: „Der Berater präsentierte uns nicht ein fertiges Haus aus der Schublade, sondern ging auf unsere Wünsche ein, menschlich kamen wir dabei schnell auf eine Ebene. Das hat uns alles sehr behagt.“ Wichtig war der Familie auch, dass Keitel ihr ein diffusionsoffenes Haus bauen konnte: „Auch dass der Dämmstoff ein hohes Wärmespeichervermögen hatte, kam uns sehr entgegen. Das versprach kühle Temperaturen an heißen Tagen. Im Altbau hatten wir festgestellt, dass es im Sommer unter dem Dach sehr heiß werden kann.“ Schließlich sprachen auch die Größe und die räumliche Nähe für Keitel Haus: „Wir wollten mit einem mittelständischen Familienunternehmen bauen, das maximal 250 km von unserem Wohnsitz entfernt sein sollte.“ Nach einer Recherche im Internet sagten sich Martina und Stefan Heinl zur Betriebsbesichtigung in Rot am See an. Dabei lernten sie Keitel Haus als einen „gediegenen mittelständischen Betrieb“ kennen, „bei dem alles Hand in Hand lief. Nach der Führung mit dem Firmenchef hatten wir das gute Gefühl, hier ein Unternehmen gefunden zu haben, dem man bei einer derart großen Investition vertrauen kann. Also unterschrieben wir den Vertrag.“

Damals hatte das Ehepaar bereits einen Vorentwurf von Keitel Haus in der Tasche, in den seine Wünsche großenteils eingearbeitet waren. Ganz oben hatte dabei ein Wohnkonzept für zwei Personen mit besonderen Annehmlichkeiten im Obergeschoss gestanden. Dort gibt es neben Schlafraum und Ankleide einen separaten Fitnessraum und ein Bad mit Sauna, auch an einen Abstellraum wurde gedacht. Im Erdgeschoss finden sich eine gut geschnittene Diele mit separater Garderobe und ein großzügiger Wohnbereich mit erhöhten Decken. Die Küche wird durch eine praktische Speisekammer ergänzt, der Übergang vom Wohnbereich in den Garten ist dank großzügigen Glasschiebetüren fließend. Im Keller liegen zwei Zimmer und ein Bad für die erwachsenen Söhne des Ehepaars. Besondere Planungsdetails sind ein Raumteiler zwischen Wohnbereich und Essplatz,

Hausdaten

Hausart Icon
HausartEinfamilienhaus
Bauweise Icon
BauweiseHybridbauweise
Anzahl Räume Icon
Anzahl Räume4
Baustil Icon
BaustilKlassische Familienhäuser
Fassade Icon
FassadePutz
Außenmaße Icon
Außenmaße9 m x 10 m
Wohnfläche Icon
Wohnfläche154.36 m²
Dachform Icon
DachformPultdach
Energiestandard Icon
EnergiestandardEffizienzhaus 55
Immobilientyp Icon
ImmobilientypKundenhaus
Dachneigung Icon
Dachneigung12°
Kniestock Icon
Kniestock2 m
Hauseigenschaften Icon
HauseigenschaftenTerasse
Hausdämmstoff Icon
HausdämmstoffMineralfaser (Glaswolle, Steinwolle)
Heizungsart Icon
HeizungsartWärmepumpe (Luft, Wasser, oder beides)
Pfeil nach unten linksWir schaffen Platz für Ihre Träume

Grundriss

no description
Haus Wacholderheide Grundriss (EG)Wohnfläche EG: 84,8 m²
no description
Haus Wacholderheide Grundriss (DG)Wohnfläche DG: 69,56 m²

Kataloge

Keitel-Haus: Hauskatalog
Keitel-Haus

Keitel-Haus: Hauskatalog


House and TreeParksHouse and PinMusterhausHouse on HandAnbieter