1. AnbieterArrow Icon
  2. HolzHaus BonndorfArrow Icon
  3. HolzHaus am Bodensee
Slide 1
Slide 2
Slide 3
Slide 4
Slide 5
Slide 6
Slide 7
Slide 8
Slide 9
Slide 10
Slide 11
Slide 12
Holzhaus_Bonndorf_Logo.jpg
HolzHaus BonndorfHolzHaus am Bodensee
homeKlassische Familienhäuser
livingArea210 m²
energyStandardEffizienzhaus 40
Preis anfragen
Katalog bestellen

HolzHaus am Bodensee

Einfamilienhaus mit Holzschalung (Rhombus schiefergrau)

Holz schafft Atmosphäre. Holz liebt Design. Dieses wunderschöne HolzHaus am Bodensee durften wir inklusive komplettem Innenausbau fertigen. Ein besonderes Detail: Senkrechte Permanent-Holzlamellen vor den Fenstern, die vor Sonne und neugierigen Blicken schützen und eine besondere Atmosphäre im Inneren des Hauses schaffen.

Hausdaten

Hausart Icon
HausartEinfamilienhaus
Bauweise Icon
BauweiseHolz-Tafelbau
Baustil Icon
BaustilKlassische Familienhäuser
Fassade Icon
FassadeHolz
Wohnfläche Icon
Wohnfläche210 m²
Dachform Icon
DachformSattel-/Giebeldach
Etagen Icon
Etagen3
Energiestandard Icon
EnergiestandardEffizienzhaus 40
Immobilientyp Icon
ImmobilientypKundenhaus
Dachneigung Icon
Dachneigung45°
Kniestock Icon
Kniestock1.05 m
Hauseigenschaften Icon
HauseigenschaftenBalkon, Terasse, Gästezimmer
Hausdämmstoff Icon
HausdämmstoffHolzfaser- und Zellulosedämmstoffe
Heizungsart Icon
HeizungsartWärmepumpe (Luft, Wasser, oder beides)
Pfeil nach unten linksWir schaffen Platz für Ihre Träume

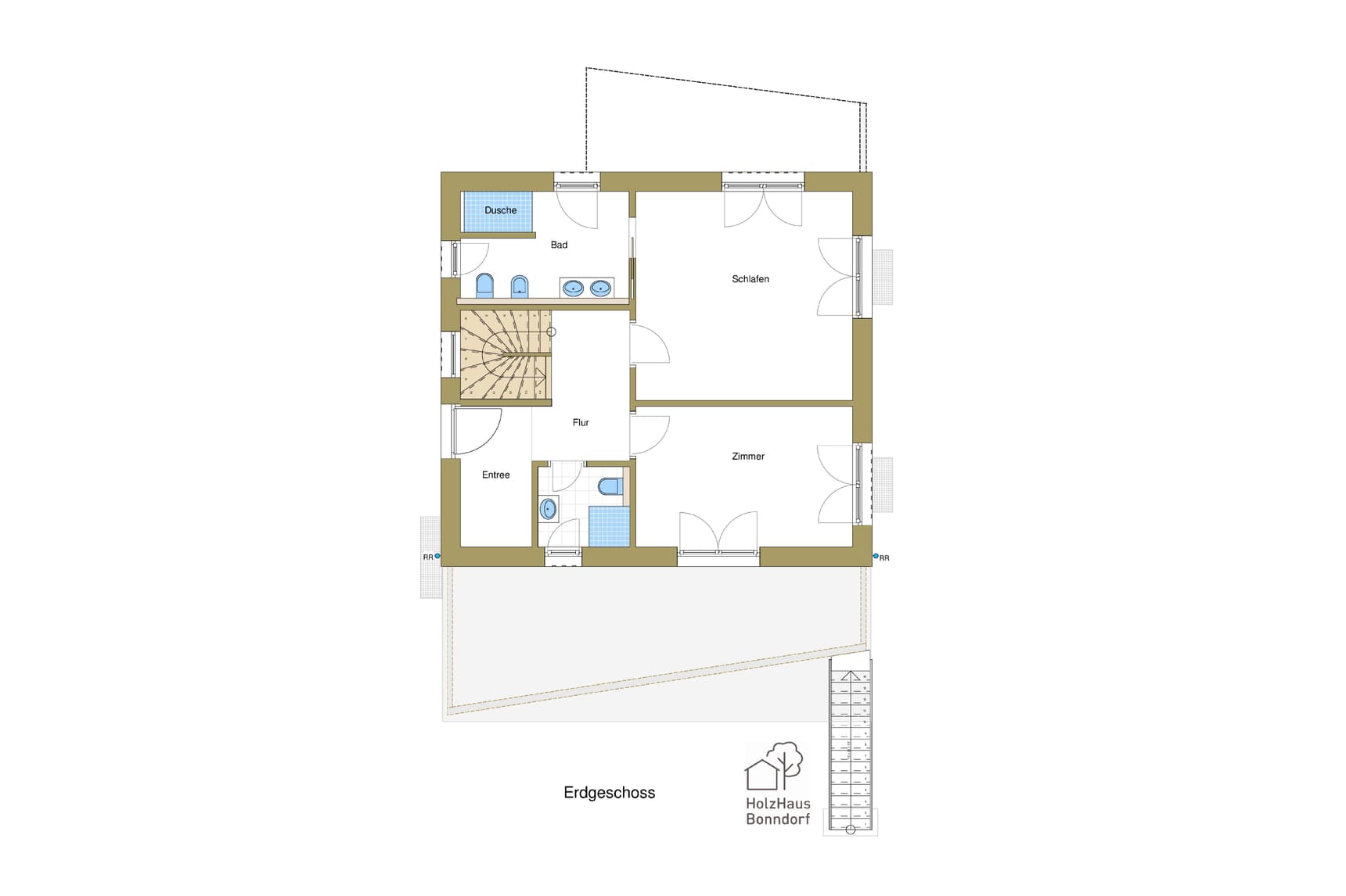
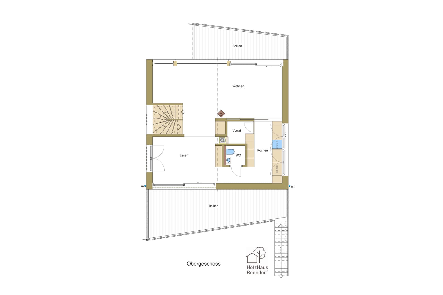
Grundriss

Holzhaus_Bonndorf_Einfamilienhaus_Bodensee20.jpg
HolzHaus am Bodensee Grundriss (EG)
Holzhaus_Bonndorf_Einfamilienhaus_Bodensee21.jpg
HolzHaus am Bodensee Grundriss (OG)
Holzhaus_Bonndorf_Einfamilienhaus_Bodensee22.jpg
HolzHaus am Bodensee Grundriss (DG)

Kataloge

Holzhaus Bonndorf: Hauskatalog
HolzHaus Bonndorf

Holzhaus Bonndorf: Hauskatalog


House and TreeParksHouse and PinMusterhausHouse on HandAnbieter