Bei dem Basis-Grundriss der Villa 174 handelt es sich um eine klassische Stadtvilla. Für unser Musterhaus im Schwarzwald haben wir ein Satteldach gewählt und es mit teilweise begrünten Pultdachanbauten kombiniert.
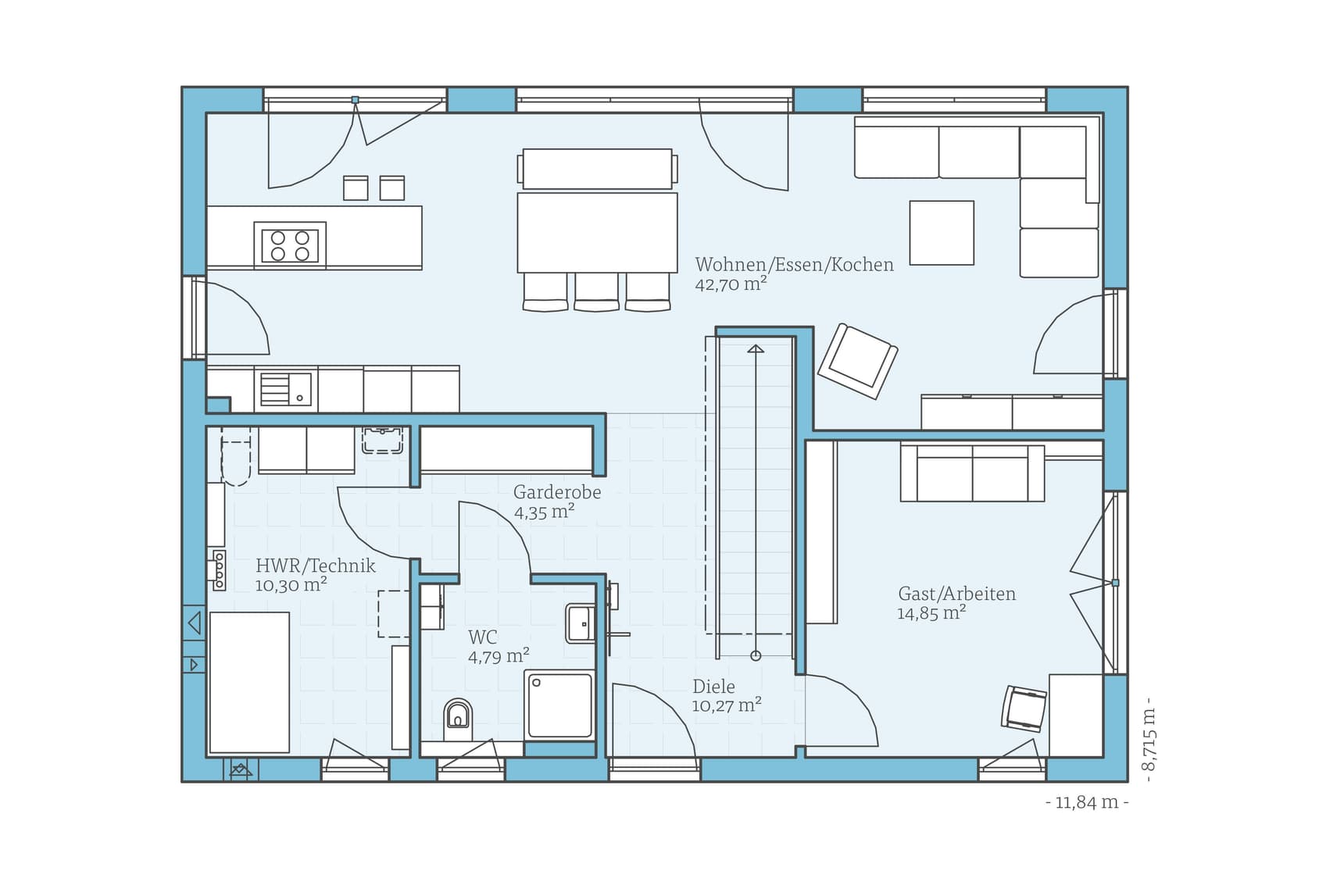
Betritt man die Villa, führt der Blick vorbei an der einläufigen, geraden Treppe bis hin zum Essbereich. In der Diele gegenüber des Gäste-WCs befindet sich eine funktionelle Garderobennische mit ausreichend Stauraum. Das Gästezimmer im Erdgeschoss kann auch als Schlafzimmer genutzt werden. Der Koch- und Essbereich ist sehr offen gestaltet, von der Küche aus gelangt man direkt in den Garten. Das Wohnzimmer ist durch die Treppe optisch etwas abgetrennt. Durch große Fenster an beiden Traufseiten fällt viel Licht in die Galerie im Obergeschoss, wo auch eine kleine Arbeitsnische Platz findet. Im Obergeschoss befinden sich zwei gleich große, lichtdurchflutete Kinderzimmer. Vom Elternschlafzimmer gelangt man durch die Ankleide in einen kleinen Hauswirtschaftsraum, von dort aus in das geräumige Badezimmer. Die Kinder können von der Diele aus das Familienbad betreten. Durch diese funktionelle Raumanordnung wird der Weg der Wäsche deutlich abgekürzt.


(öffnet Mittwoch um 13:00 Uhr)
