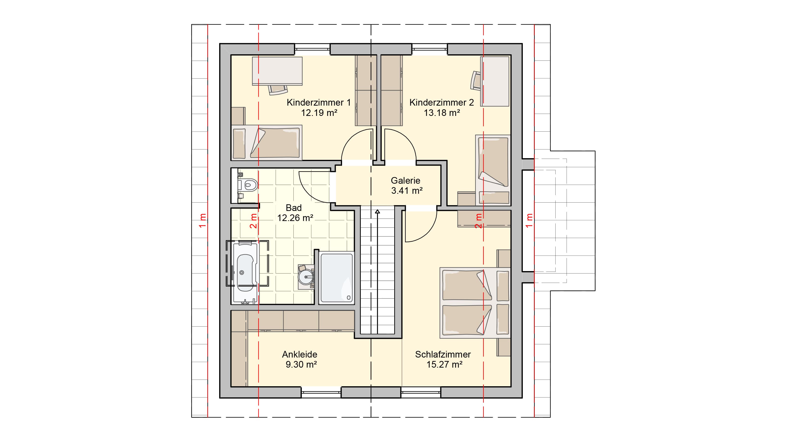
Jetzt auf Gesundheit bauen – morgen gut durchatmen: das raffinierte Satteldachhaus mit flexibel gestaltbarem Grundriss auf 140 m2 und drittem Giebel steht in seiner vollen Pracht für modernes gesundes Wohnen. Es verkörpert Wohlfühlen von innen nach außen: Neben seinem großzügigen, hellen Wohnbereich und Dachgeschossgemütlichkeit gewinnt das Haus die Herzen der Bewohner durch sein natürliches Raumklima. Und das wird erzeugt durch die Gebäudehülle ThermLiving. Dieses System ist weit mehr als eine Hülle: das Holzweichfaser-Wärmeverbundsystem auf Basis natürlicher Rohstoffe unterstützt behagliches, gesundes Leben … heute und in Zukunft.

