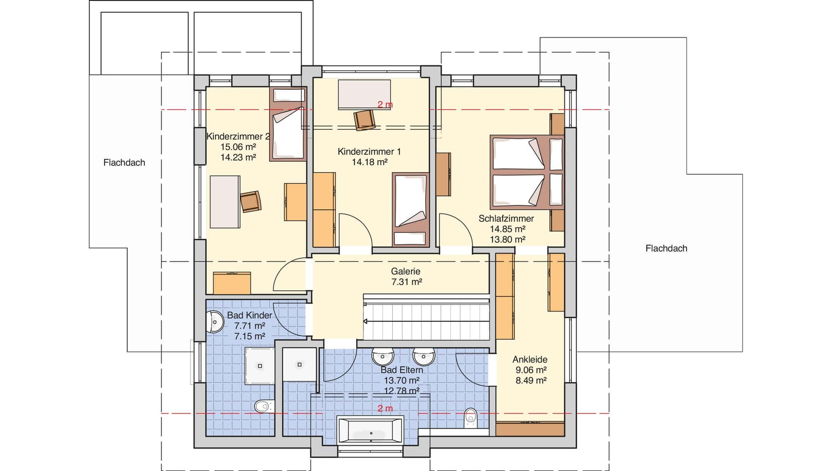
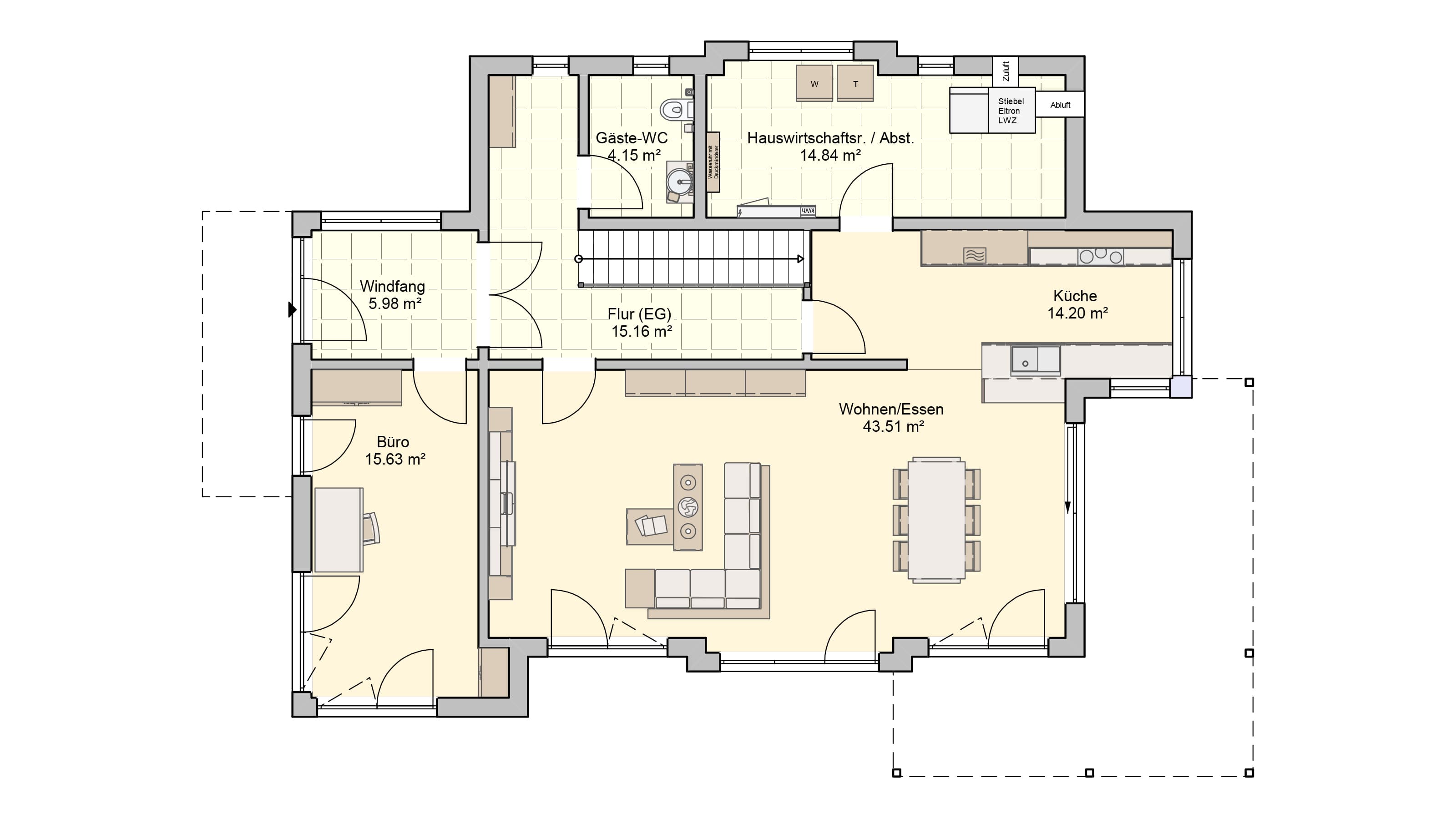
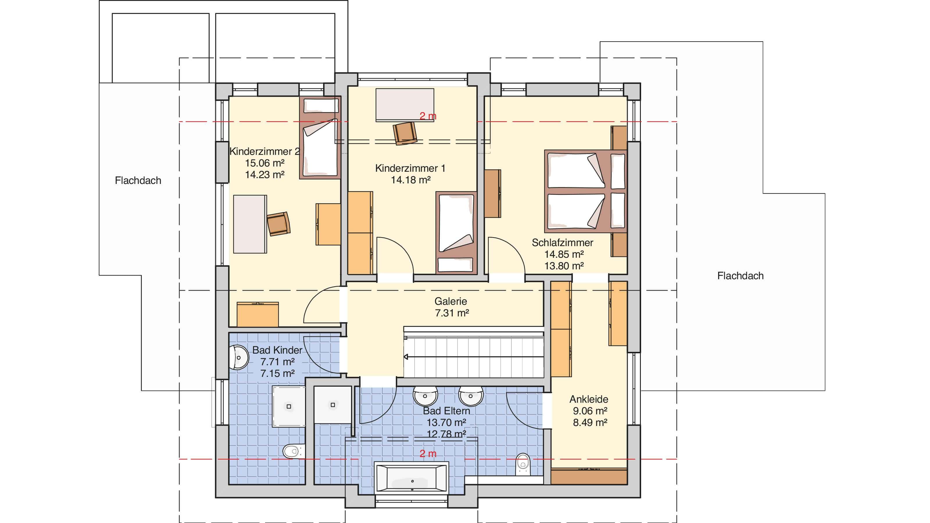
Unser Musterhaus Wuppertal - hierbei handelt es sich um ein EnergiePlus-Haus. Bedarfsgerecht und individuell maßgeschneidert für die Bewohner. Auf 188 m² findet jeder Bauinteressierte alle Vorzüge der ökonomischen und ökologischen Bauweise. Das Musterhaus kombiniert modernes und gemütliches Wohnen mit höchster Effizienz. Im Erdgeschoss wird so jeder Winkel genutzt. Von der Diele aus gelangt man in die lange Küche, die halb offen den Weg in den Wohn- und Essbereich eröffnet. Der Hauswirtschaftsraum kann durch den direkt Zugang durch die Küche als Abstellkammer für Haushaltsgeräte und Vorräte dienen. Ein zusätzliches Highlight ist die Pergola und die angeschlossenen Anbauten, die den Weg ins Grüne eröffnen. Auch ein Gäste-WC befindet sich ebenfalls im Erdgeschoss. Vom Windfang aus, gelangt man direkt in das Büro, wodurch diese Planung perfekt für das Konzept Home-Office gemacht ist. Im Dachgeschoss gelangt man von der Galerie aus in beide Kinderzimmer und das Kinderbadezimmer. Das elterliche Schlafzimmer ist durch die Ankleide mit dem Eltern-Bad verbunden. Diese Wohlfühloase bietet alles, was das Herz begehrt.


(öffnet Mittwoch um 13:00 Uhr)