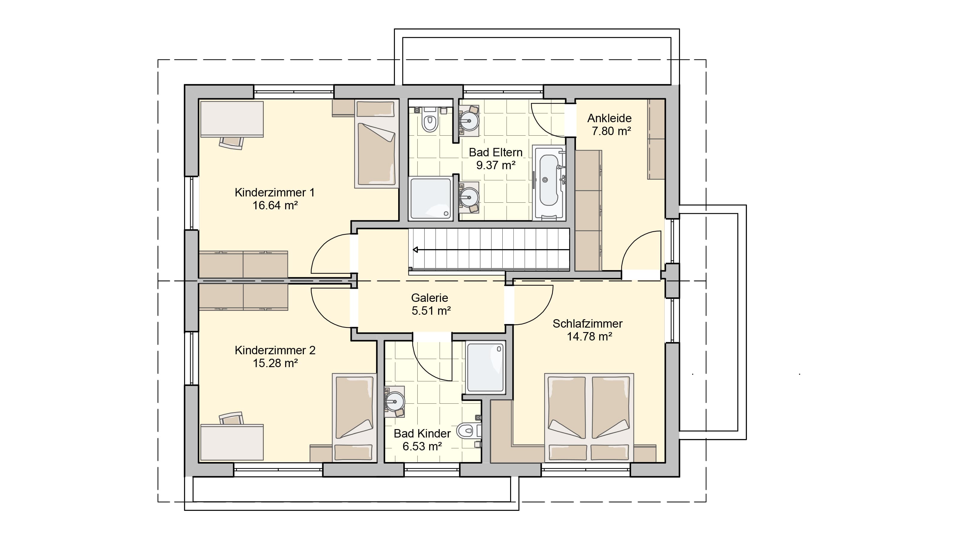
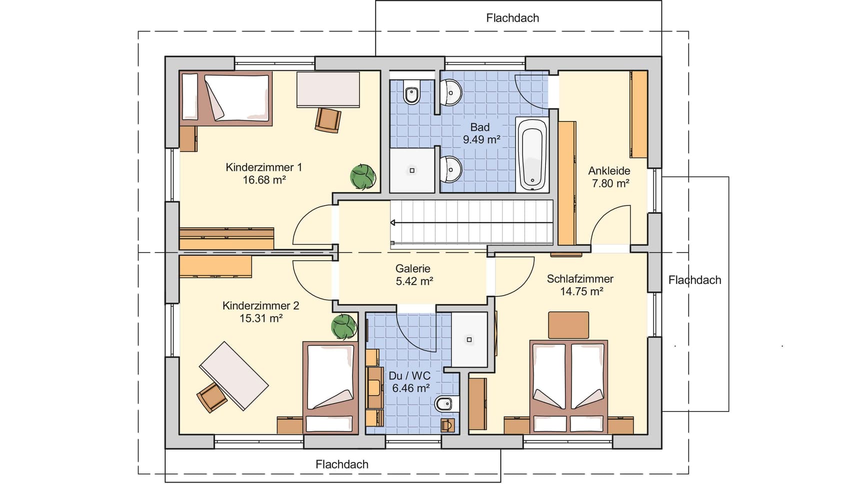
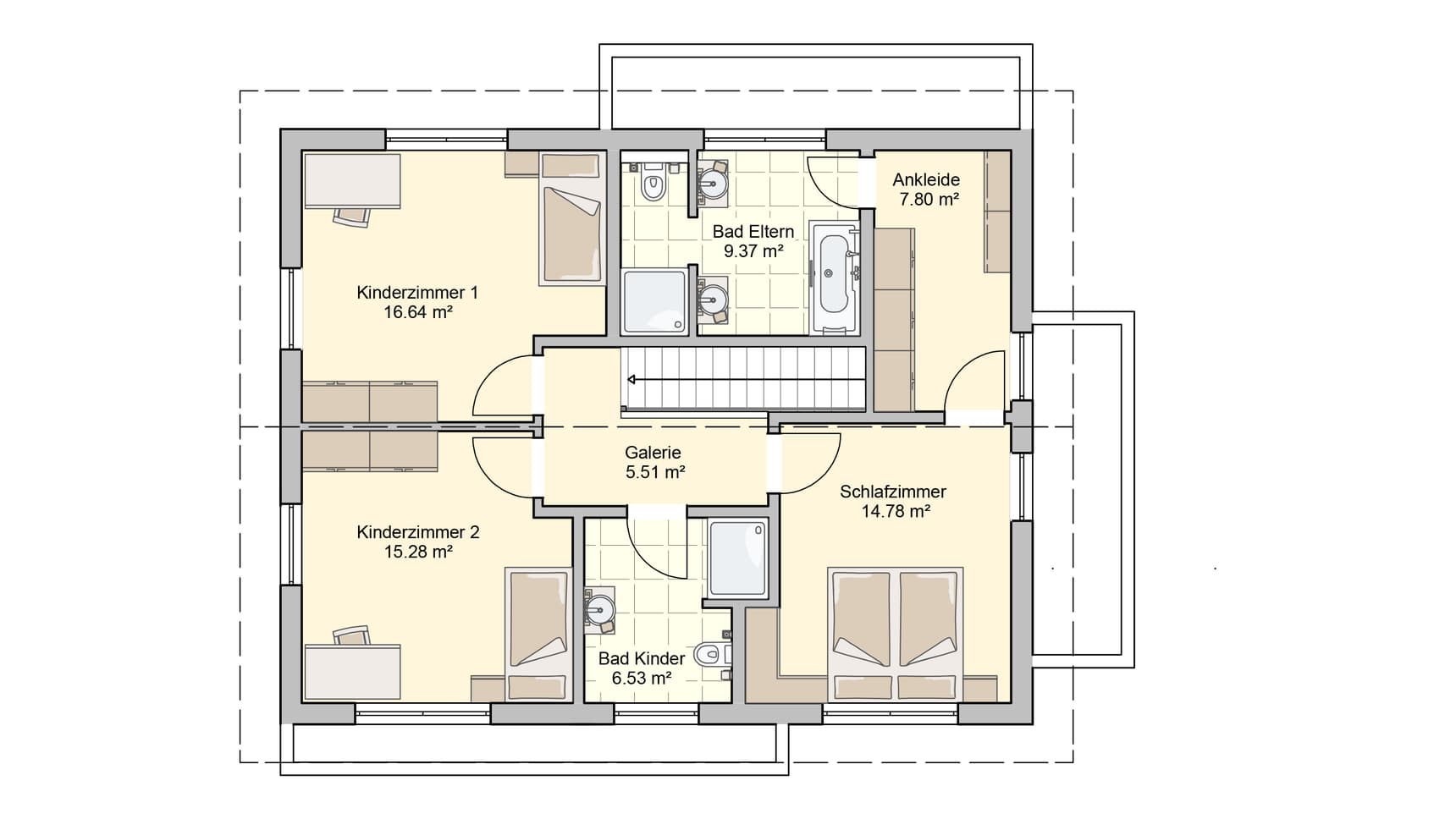
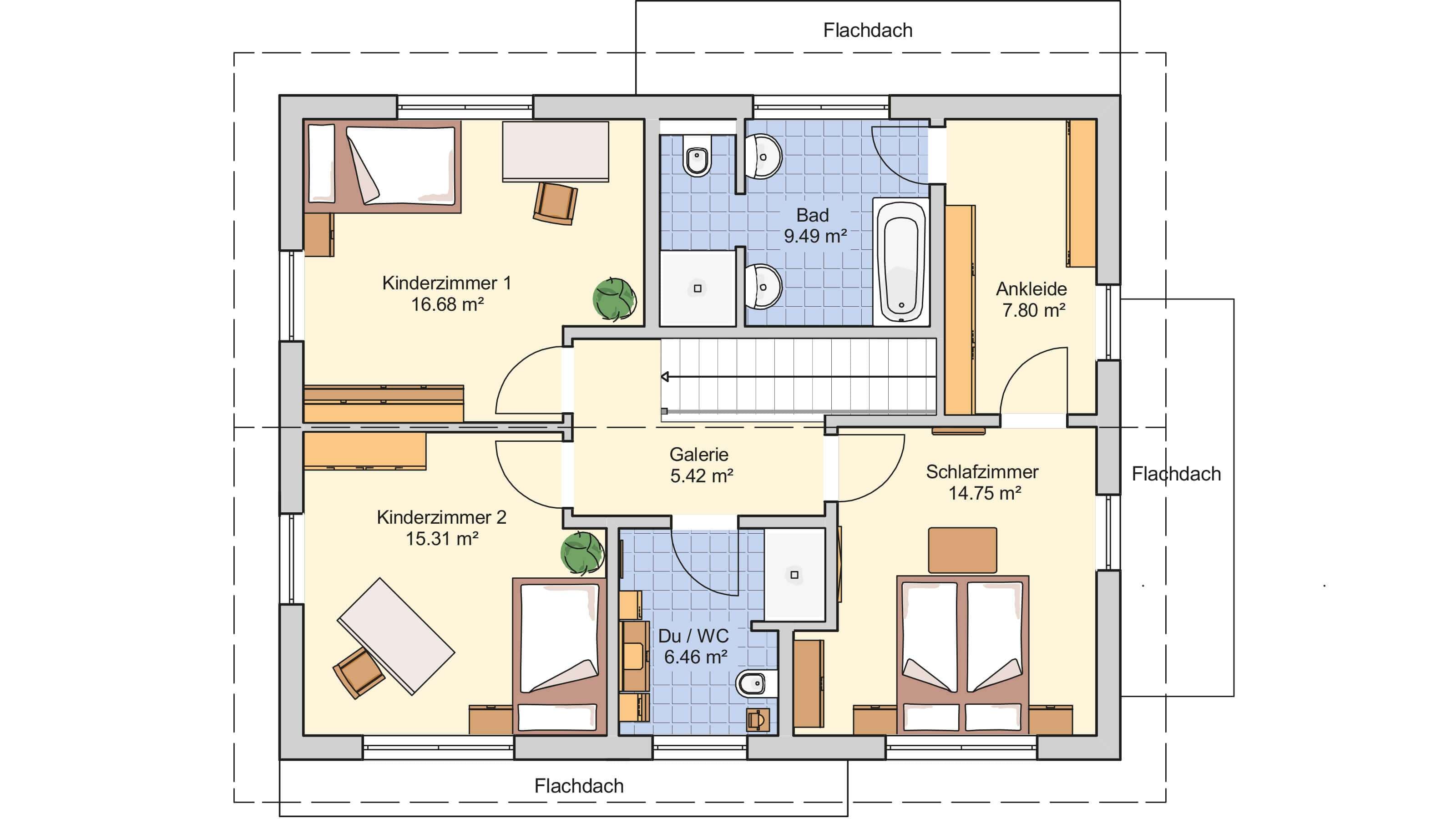
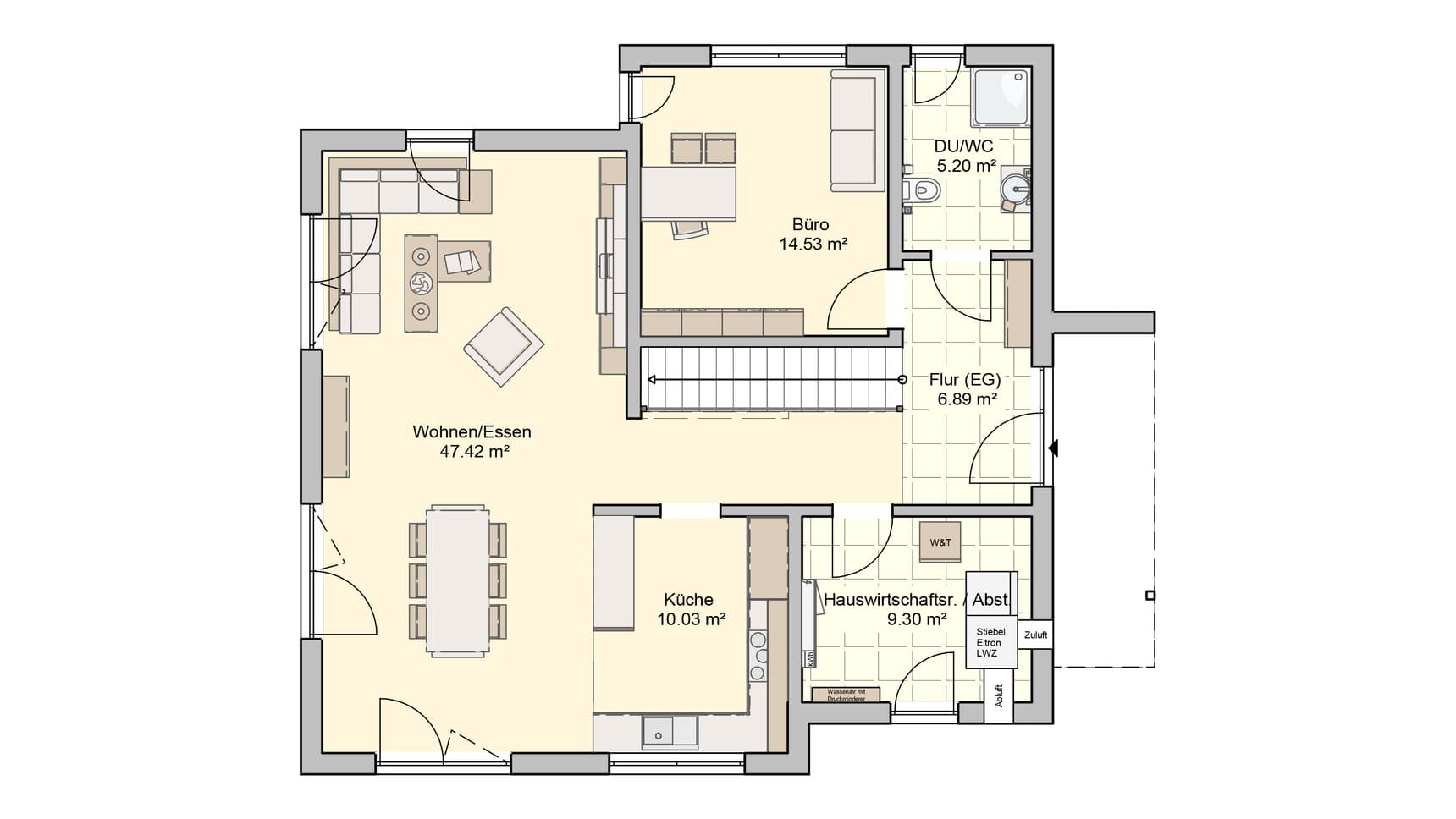
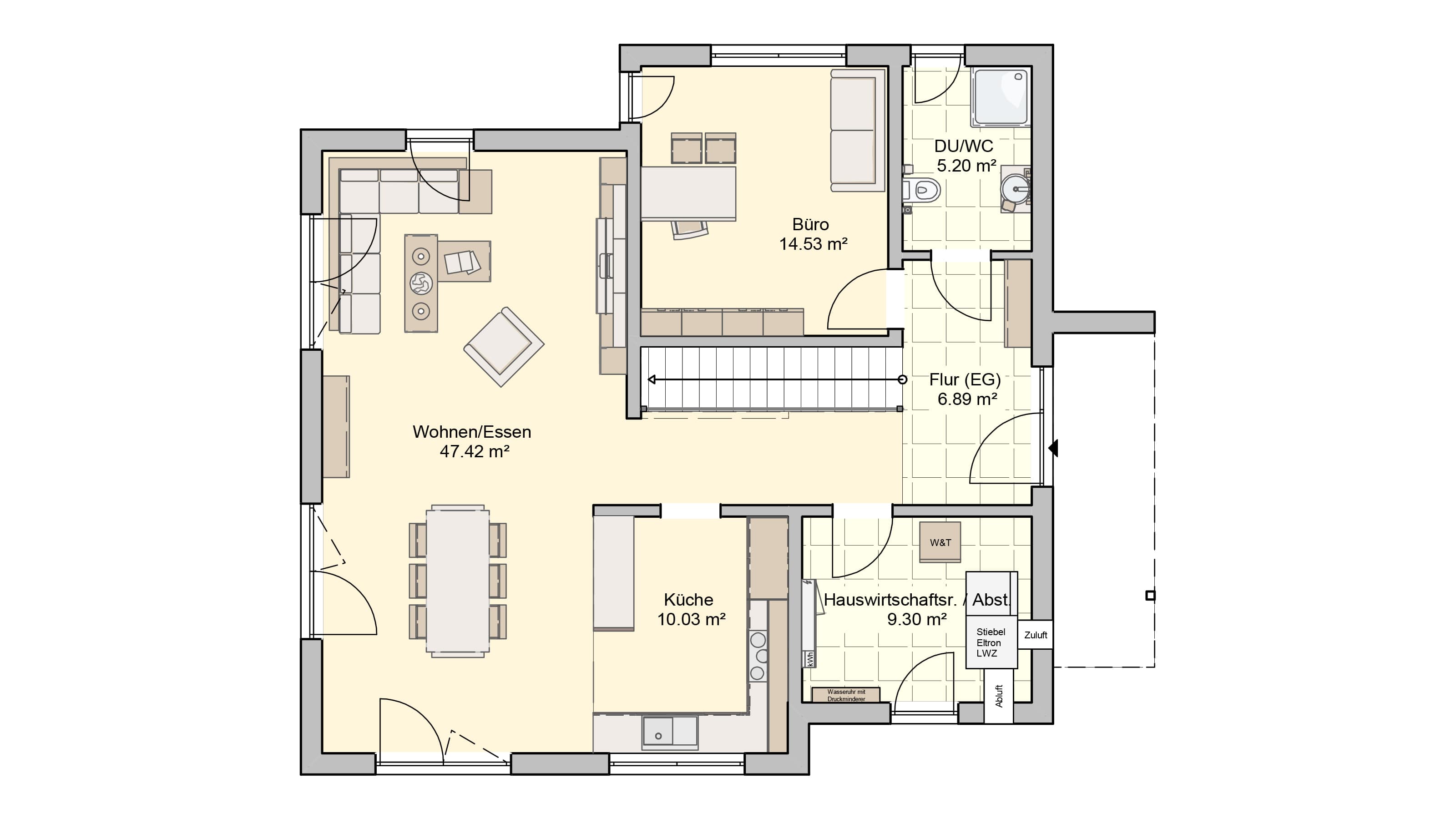
Ökologie und Ökonomie unter einem Dach vereint - auf 166 m² erfüllt das Musterhaus Mannheim alle Wünsche in Sachen nachhaltiges und gemütliches Wohnen. Das ganzheitliche Dämmsystem sorgt für einen optimalen Schall- und Wärmeschutz, sowie Diffusionsoptimierung und vieles mehr. Zudem ist in das das Konzept unseres Musterhauses ein Eiswasserspeichersystem integriert. So wird Erd- und Luftwärme kombiniert und die solare Einstrahlung kann zusätzlich als Wärmequelle genutzt werden. Die dadurch entstehende Energie wird durch eine Pumpe in das Haus abgegeben. Vor allem die drei Flachdachanbauten machen Exterieur des Hauses zu einem echten Hingucker. Doch nicht nur das - zusätzlich schaffen sie mehr Wohnraum. Der offene Wohn-, Koch- und Essbereich lädt zum Wohlfühlen und Genießen ein. Im Erdgeschoss sind außerdem der Hauswirtschaftsraum, das Büro und ein Gäste-WC mit Dusche untergebracht. Im Dachgeschoss befinden sich zwei Kinderzimmer mit einem Badezimmer, sowie das elterliche Schlafzimmer mit anschließender Ankleide und Badezimmer. Für ein Plus an Transparenz steht die große Galerie, die mit dem gewissen Etwas das Erdgeschoss mit dem Dachgeschoss verbindet. Somit ergibt sich ein Gefühl von Offenheit und Weite.


(öffnet Mittwoch um 12:00 Uhr)