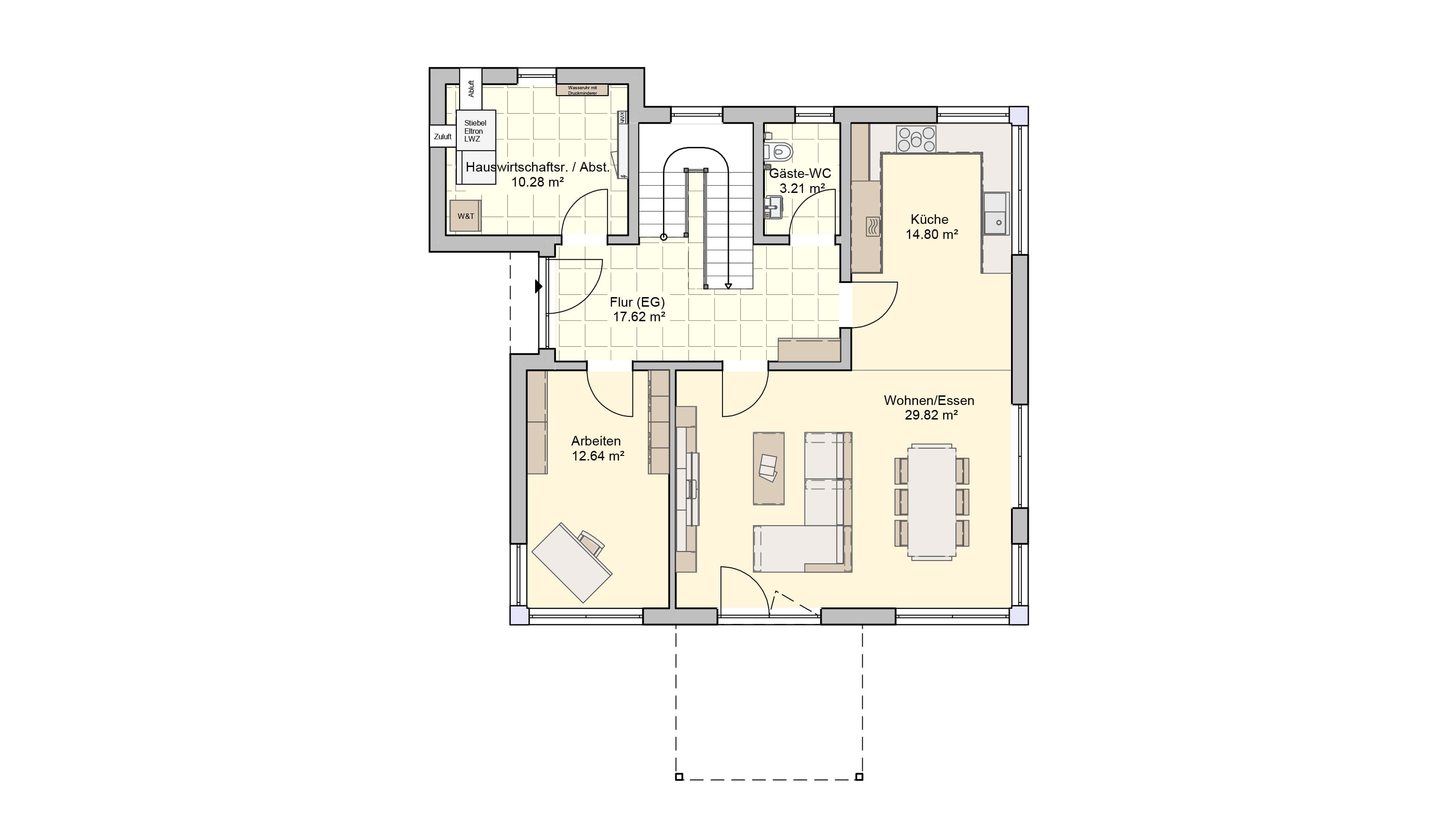
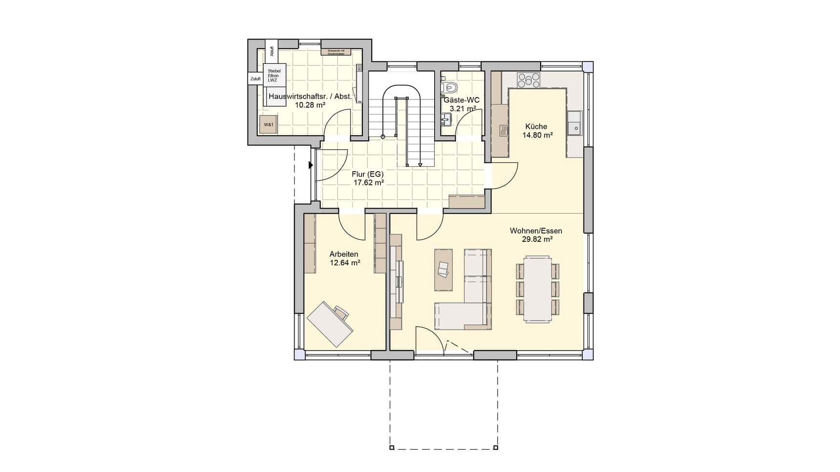
Innerhalb der zwei Vollgeschosse können sich die Bewohner des Hauses voll entfalten. Der große Wohn-, Ess- und Kochbereich mit großen, bodentiefen Fenstern und einem Eckfenster begeistert durch die offene Raumaufteilung. Außerdem befinden sich im Erdgeschoss der Hauswirtschaftraum und das Gäste-WC.
Im Obergeschoss ist Platz für zwei Kinderzimmer, welche alternativ natürlich auch als Büro oder Gäste Zimmer genutzt werden können, und ein Elternschlafzimmer. Zusätzlich zu einem großen Badezimmer mit angrenzender Ankleide, welches an das Schlafzimmer angrenzt, ist im Dachgeschoss Platz für ein weiteres Badezimmer.
Von außen besticht das Haus durch die Eckfenster und den Balkon, welcher geschickt den Eingangsbereich des Hauses überdacht. Die Stadtvilla mit Zeltdach birgt viel Platz für ausreichende Rückzugsmöglichkeiten und gleichzeitig gemeinsame Stunden mit der gesamten Familie und Freunden. Die Architektur des Hauses verspricht klare Formen, modernes Ambiente und qualitative Ausführungen.


(öffnet Samstag um 13:00 Uhr)