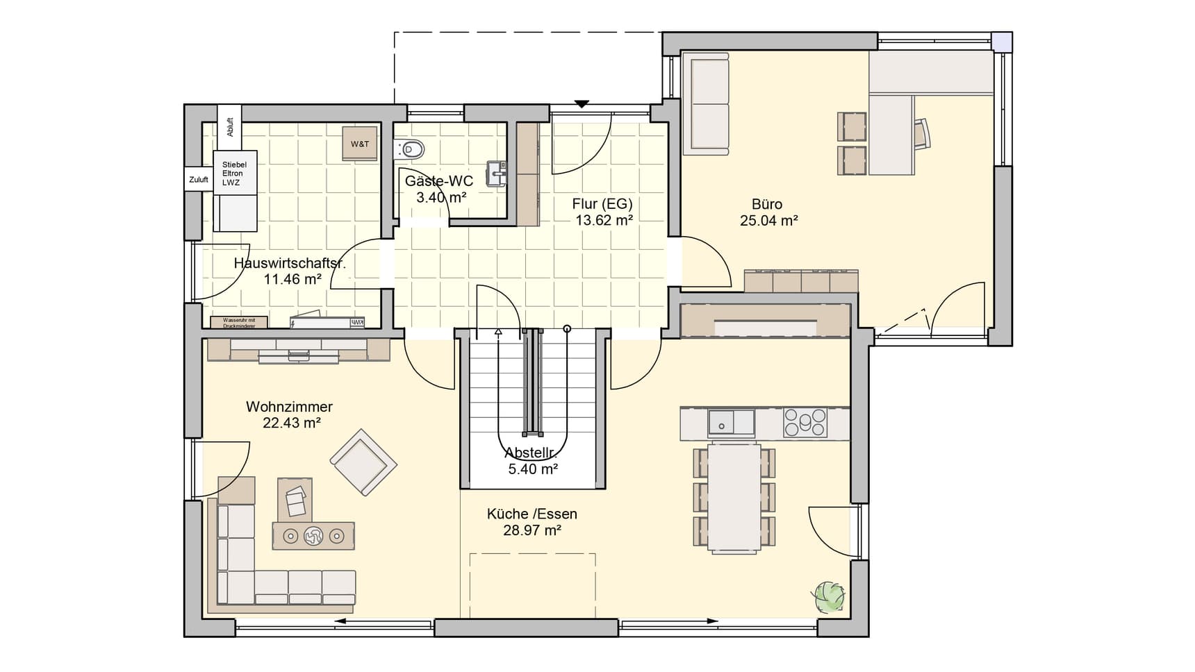
Unser Musterhaus Koblenz - variabel gestaltbar, offen, puristisch und dennoch traditionell. Das Exterieur des Satteldachhauses wirkt durch den farblich abgesetzten Kubus-Anbau modern und extravagant. Dies spiegelt sich auch im Inneren des Hauses wieder. Im Erdgeschoss befindet sich neben einem großen Büro, dem Hauswirtschaftsraum und einem Gäste-WC der Wohn- und Essbereich. Der zusätzliche Raum des Flachdachanbaus kann beispielsweise als zusätzliches Kinderzimmer oder separater Bürobereich genutzt werden. Die freitragende Eingangsüberdachung, die als Flachdachverlängerung aus dem Kubus entspringt, bildet das einladende Entree. Die Besonderheit des Grundrisses ist der Luftraum zwischen Wohn- und Esszimmer, wodurch Gäste durch ein hell gestaltetes Raumprogramm empfangen werden. Die Podest-Treppe separiert Wohn- und Essbereich geschickt.
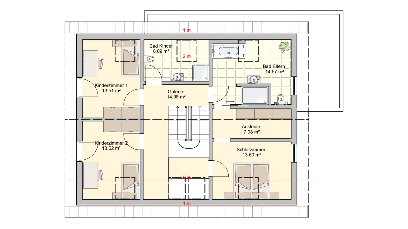
Das Dachgeschoss verbindet das elterliche Schlafzimmer mit den Kinderzimmern durch eine hochmoderne Glasbrücke. Diese ist auch von Erdgeschoss aus zu sehen und gibt dem gesamten Haus noch einmal einen besonders hochwertigen und ausgefallenen Look. Außerdem findet sich hier ein großes Badezimmer mit direktem Zugang zur Ankleide des Schlafzimmers, sowie ein zusätzliches Badezimmer für die Kinder.
Durch die Photovoltaikanlage und eine hochwärmedämmende Gebäudehülle, unterschreitet unser Haus Koblenz die Förderkriterien zum KfW- Effizienzhaus 55 deutlich. Zusätzlichen Komfort bietet das Haus durch die intelligente Haussteuerungsanlage, welche problemlos Heizung, Rollläden und Musik sowie die Programmierung von Lichtszenarien und Gebäudeüberwachung.


(öffnet Mittwoch um 13:00 Uhr)