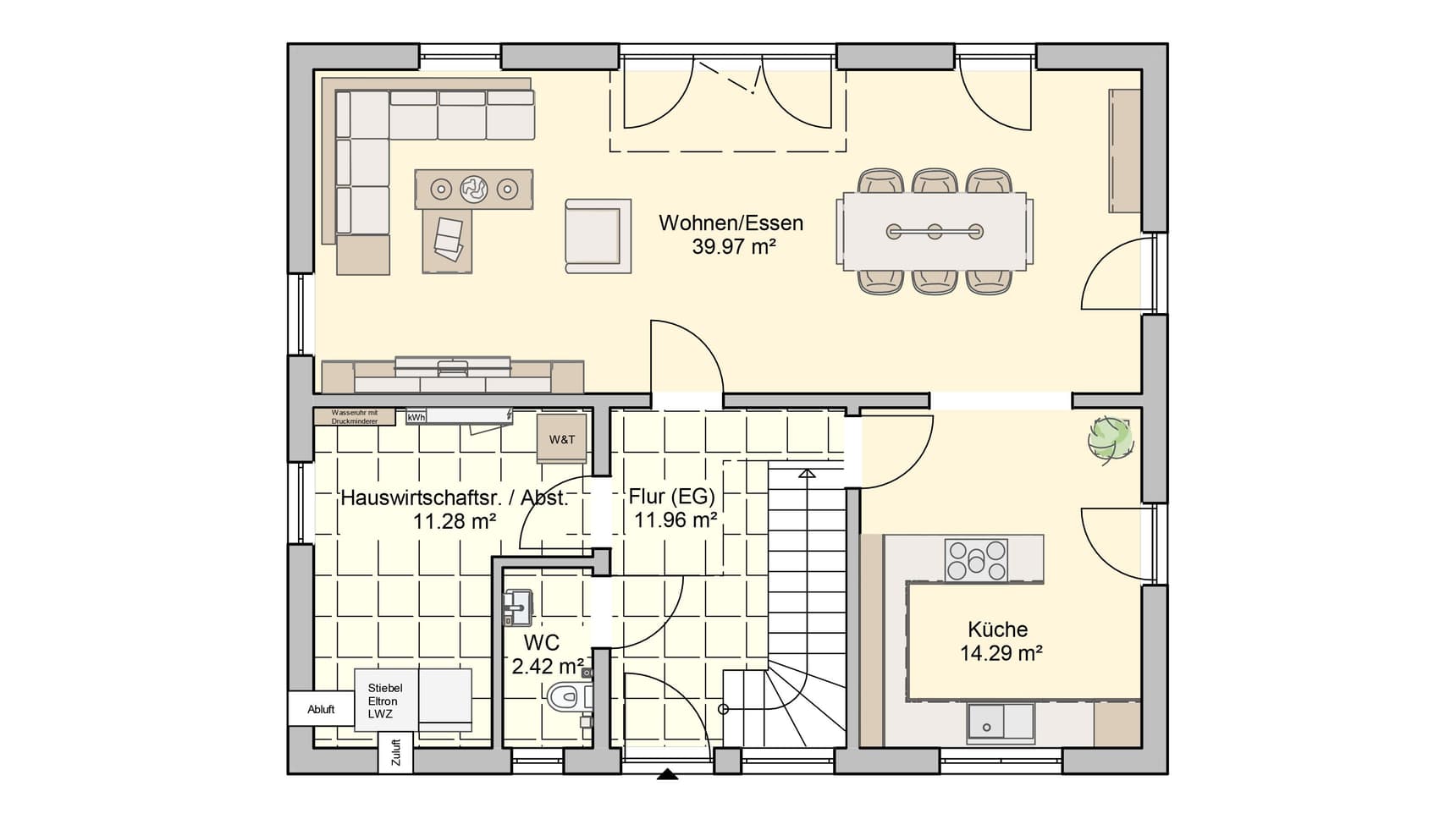
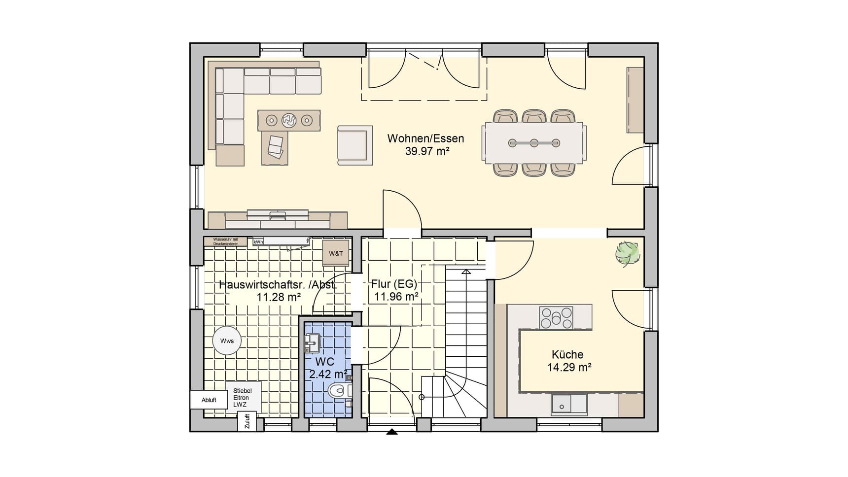
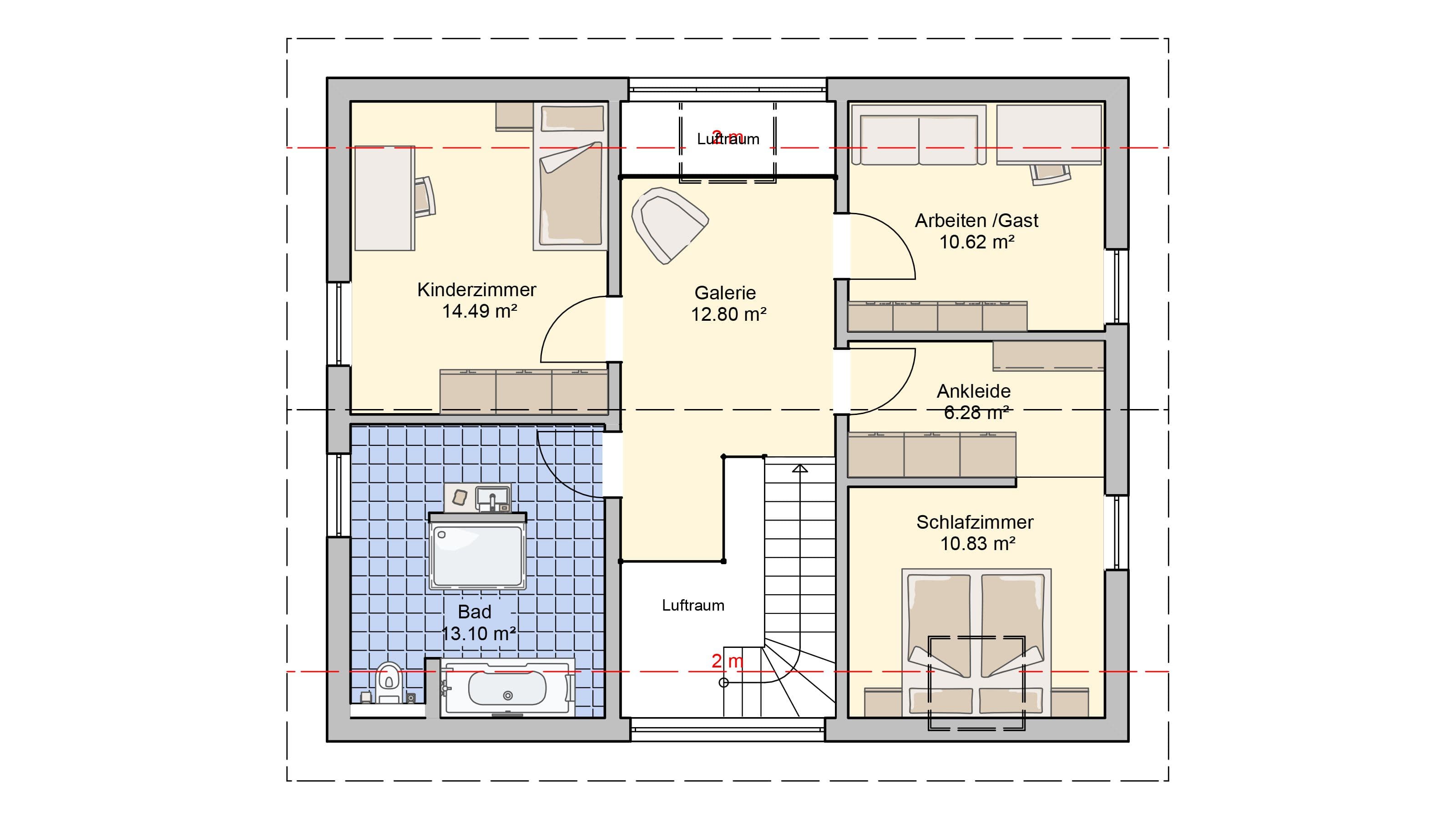
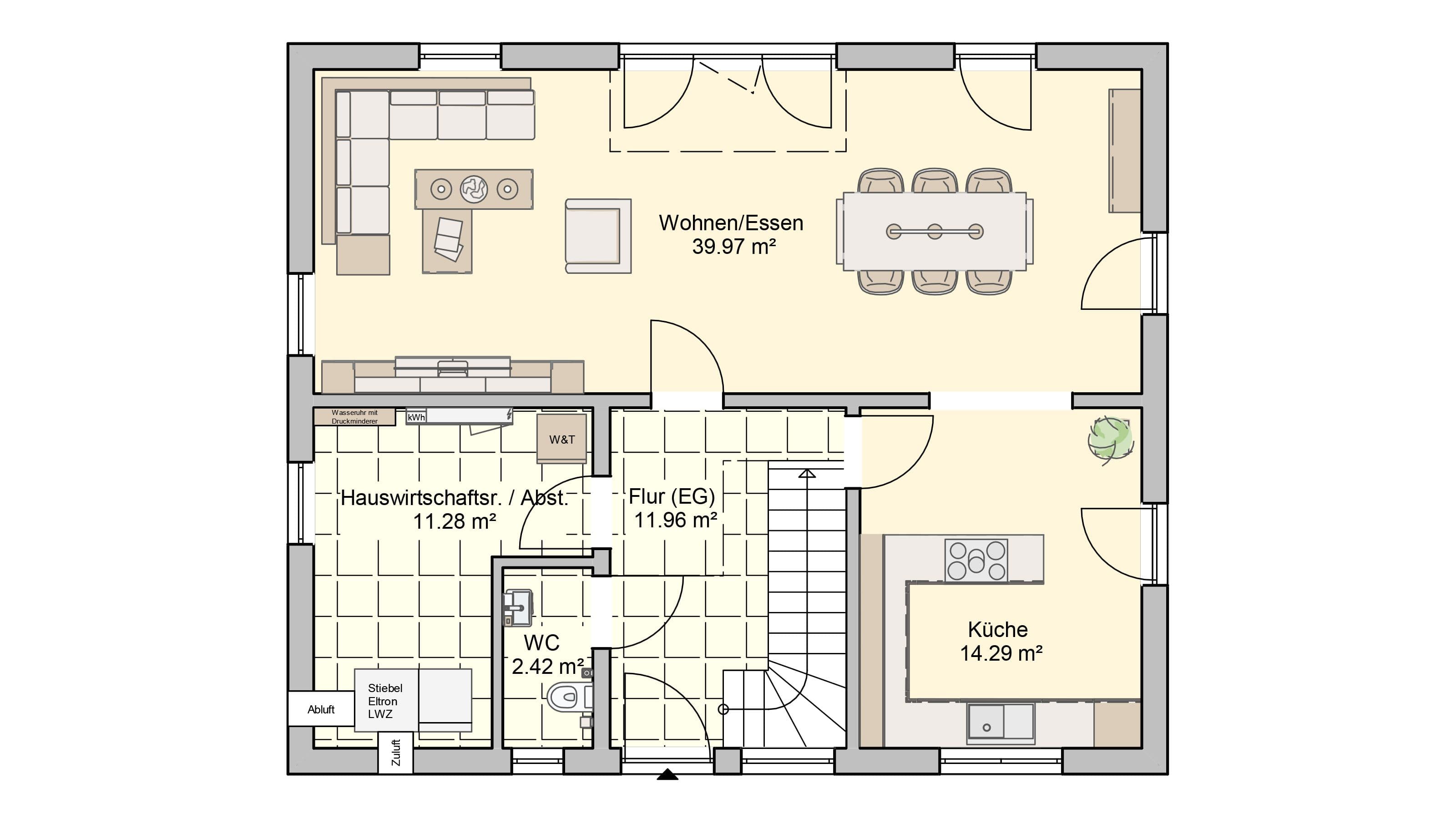
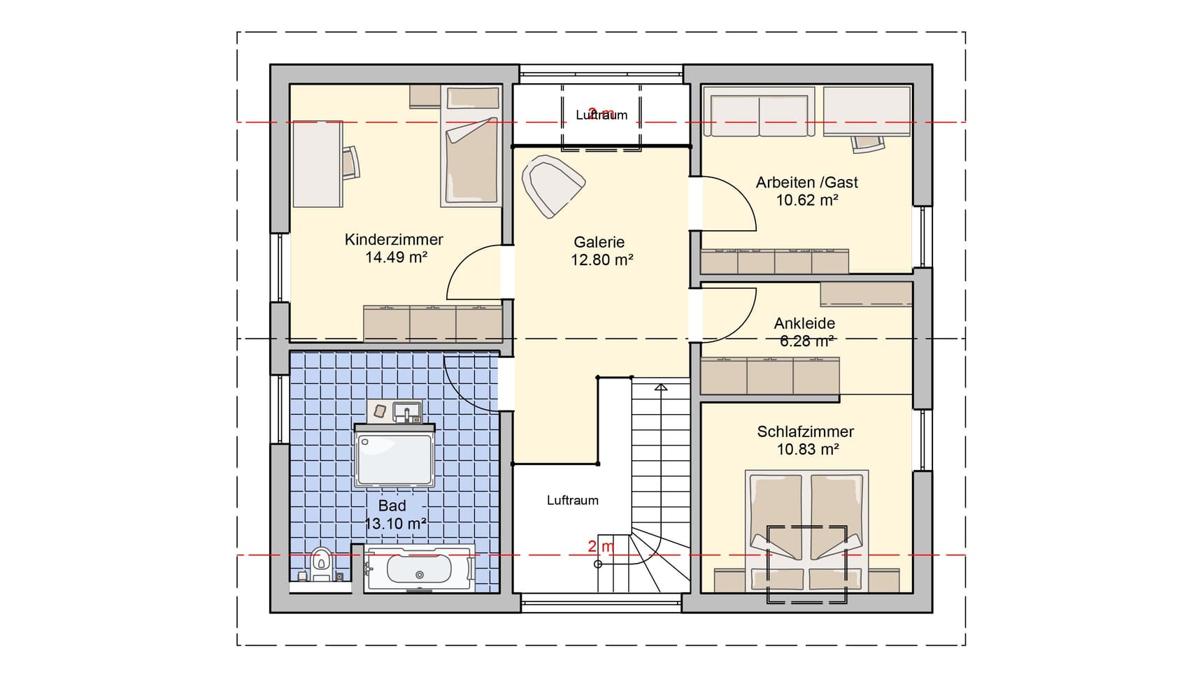
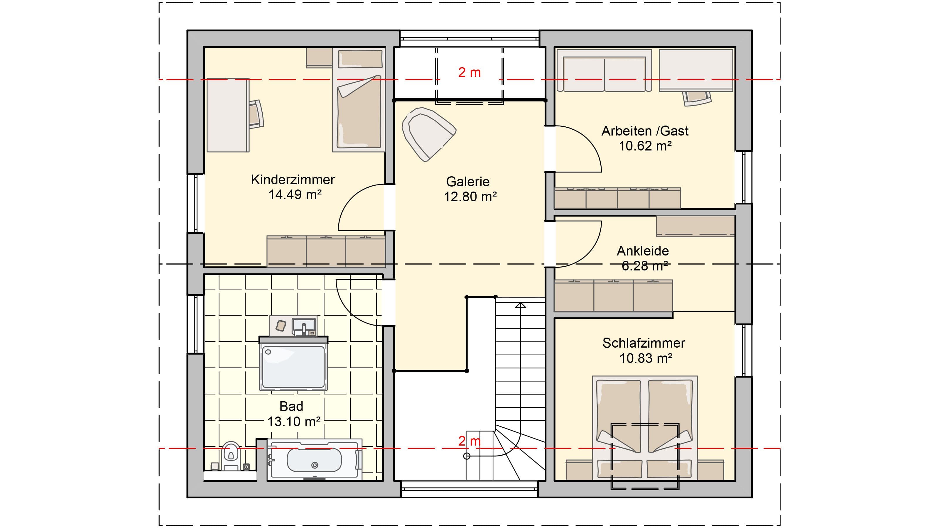
Ein wahres Domizil verbirgt sich hinter „Wien“, dem Fingerhut Modell für alle Bewohner, die Wert auf einen geräumigen und gleichzeitig durchdachten Grundriss legen. Der besondere Eingangsbereich führt in das große Herzstück, welches Wohnen und Essen miteinander verbindet. Dieses ist dank bodentiefer Fenster und direktem Zugang zur Terrasse hell und lichtdurchfluet. Auch die Küche ist offen konzipiert und bietet neben Backofen und Co. noch Platz für eine kommunikative Theke. Die luftige Galerie sorgt auf der zweiten Etage für eine extra Portion Helligkeit. Im Elternschlafzimmer mit integrierter Ankleide sowie dem Kinder- und Gästezimmer kann man herrlich abschalten und den Alltag hinter sich lassen. Außergewöhnlich ist das große Bad mit Dusche und Wanne: Ein Wellnesstempel in den eigenen vier Wänden!

