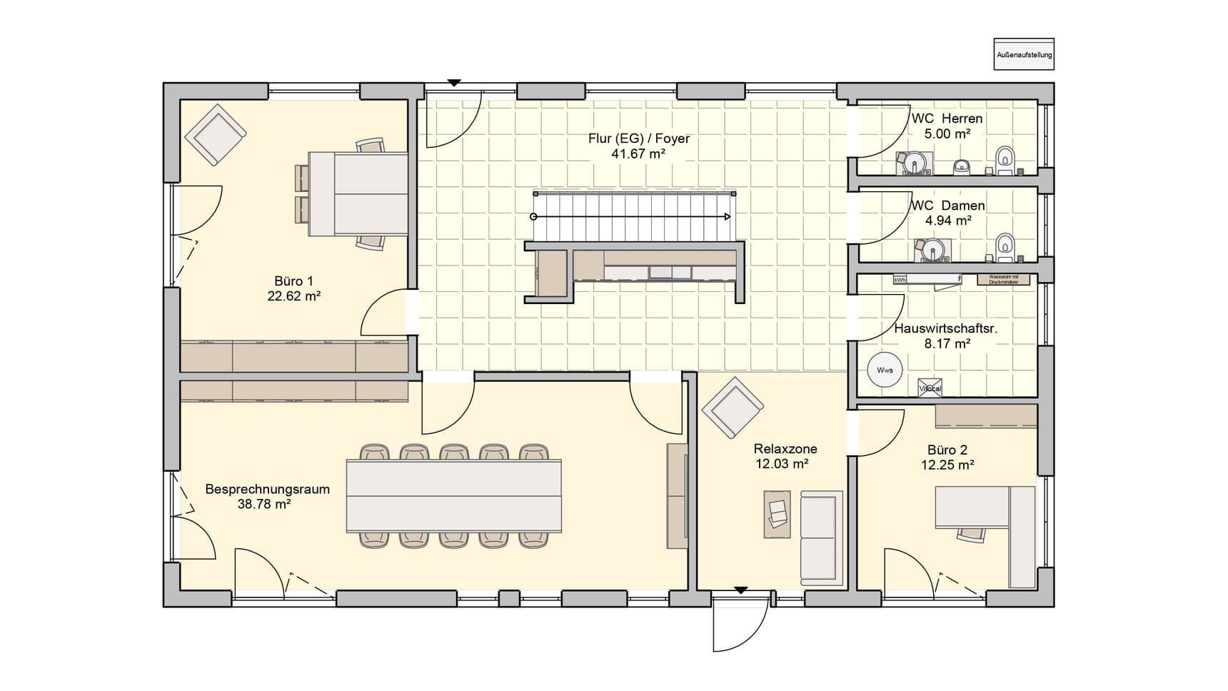
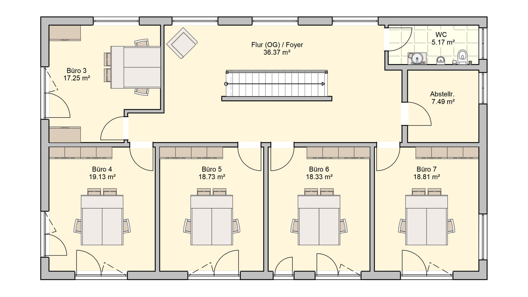
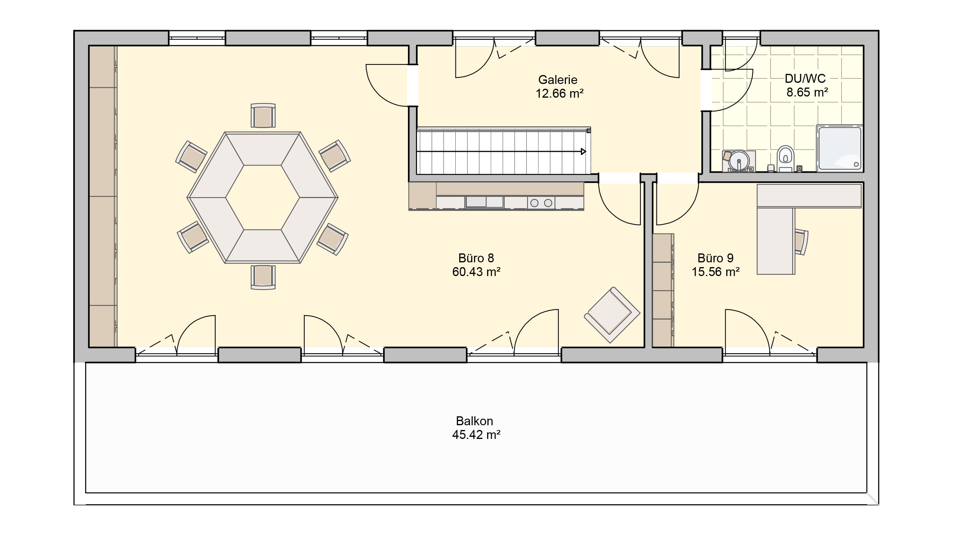
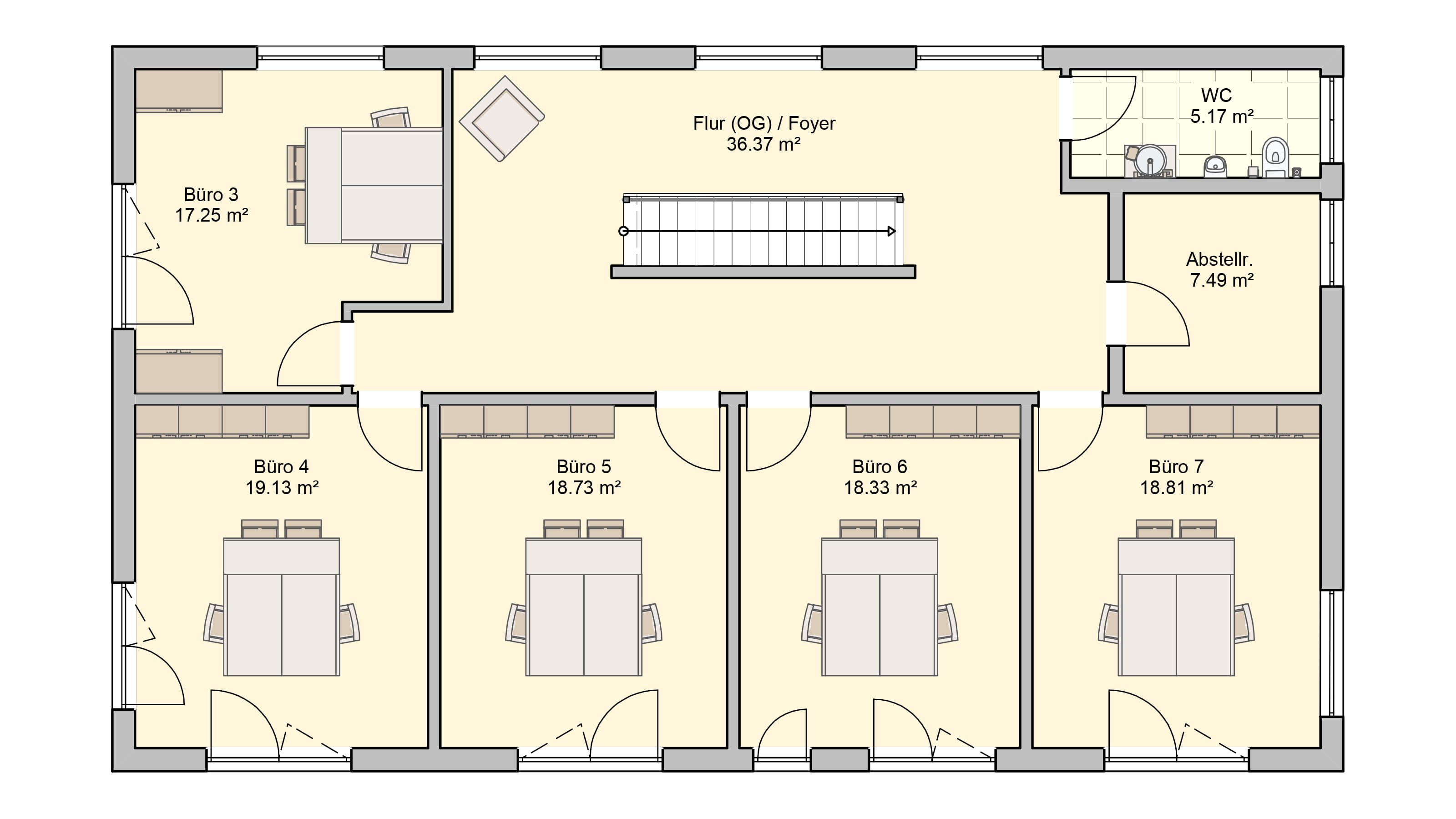
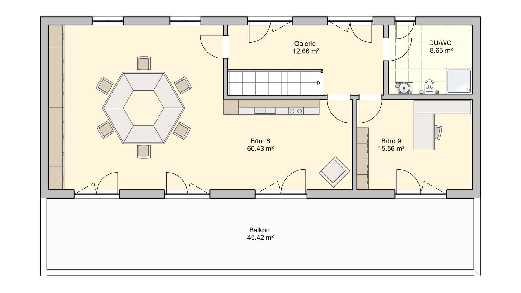
Unser Haus Tasko wurde für ein Unternehmen geplant - das macht deutlich: Individuell wie ein Fingerabdruck. Das Pultdachhaus erstreckt sich über 3 Etagen. Im Erdgeschoss wurden ein großer Empfangsbereich und eine Küche untergebracht. Des Weiteren finden hier zwei Einzelbüros, ein Konferenzraum, sowie eine 'Relaxzone' und die Toiletten ihren Platz. In der zweiten Etage wurden fünf Einzel-Büros eingeplant. Ebenso eine Abstellkammer und ein weiteres WC. Das Dachgeschoss ist wie gemacht für einen Gemeinschaftsraum mit Küche oder einen weiteren Konferenzraum. Ebenso finden wir hier ein großes Badezimmer mit Dusche und ein weiteres Büro. Das Highlight des hochmodernen Bürogebäudes findet sich im Dachgeschoss. Hier können die Mitarbeiter Ihre Pause gemütlich in einer Lounge verbringen. Gemeinschaftliche After-Work Partys können hier schön stattfinden. Gerade an den warmen Sommer-Tagen bietet sich der Balkon für ein solches Event gut an. Die bodentiefen Fenster sorgen für lichtdurchflutete Räume und eine angenehme Atmosphäre.


