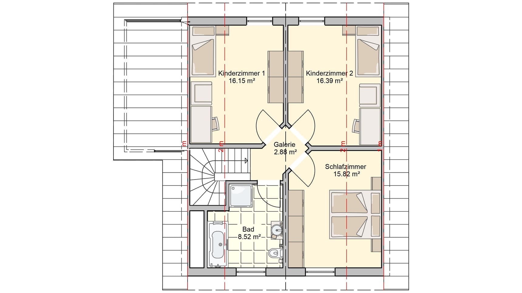
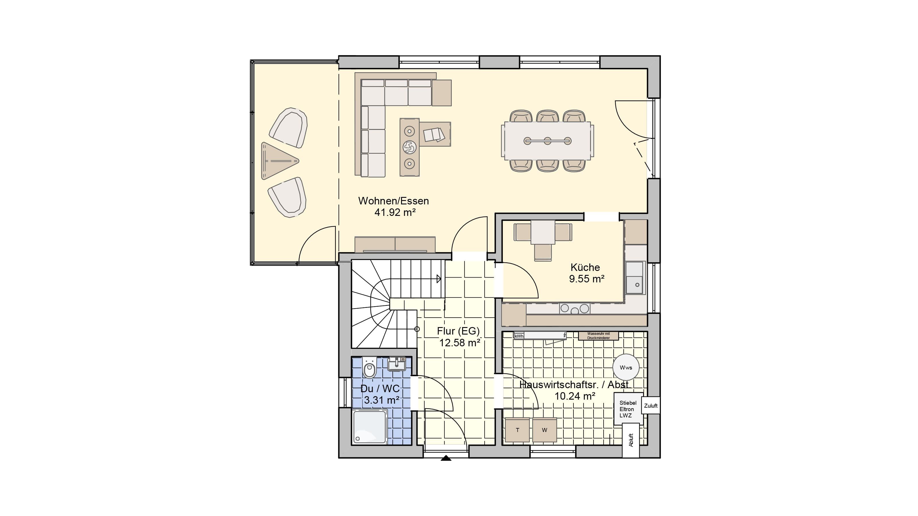
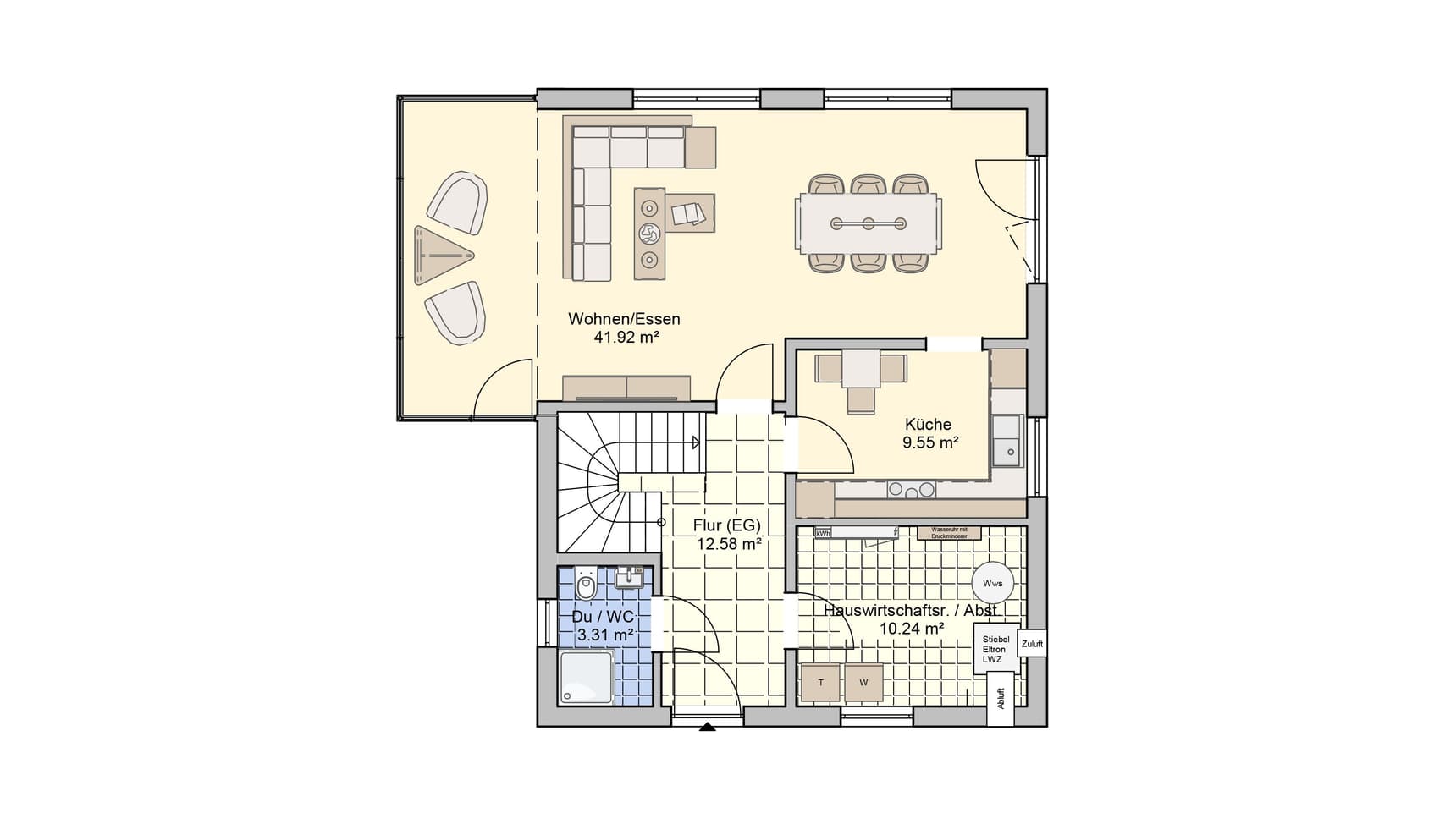
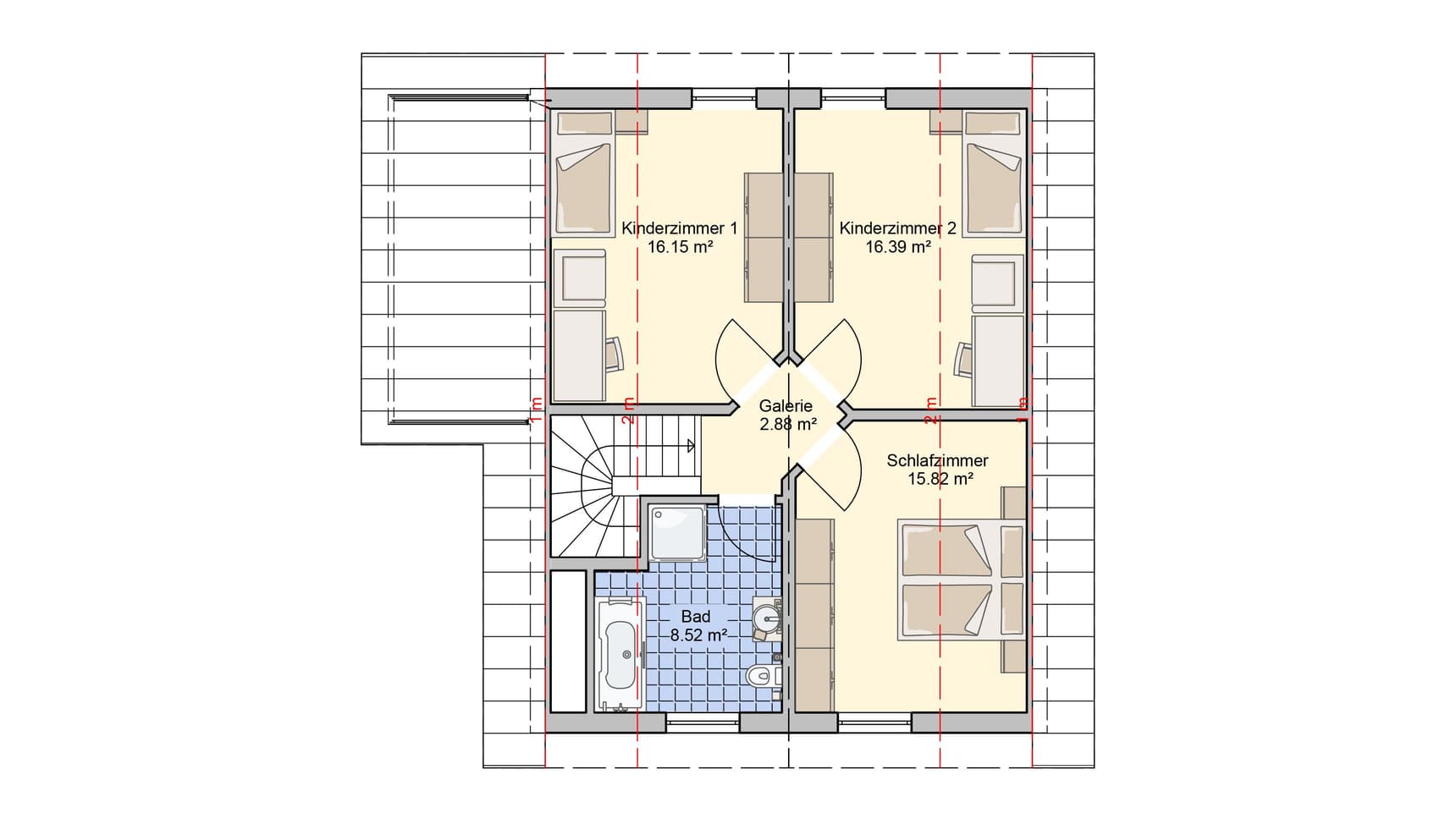
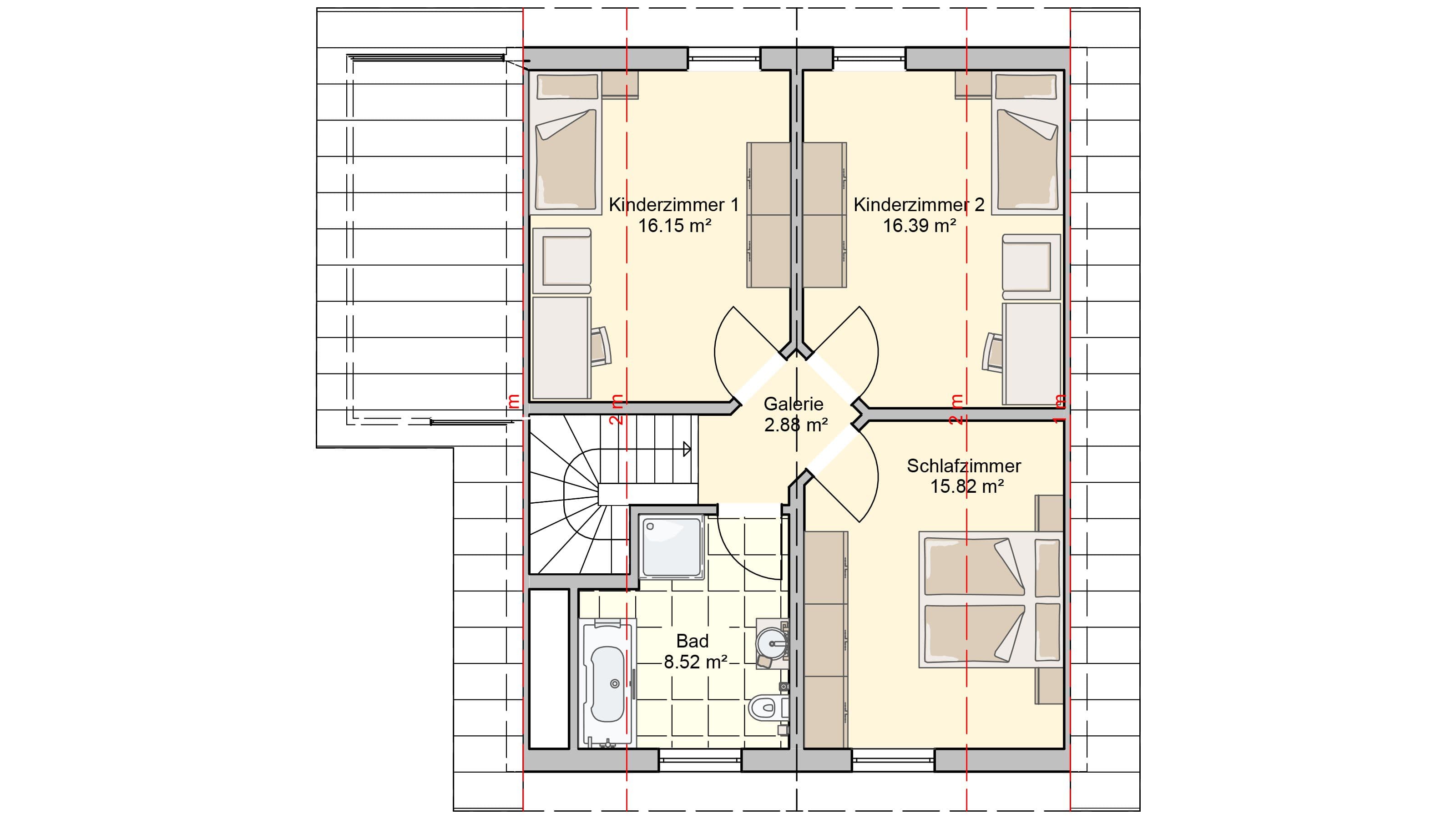
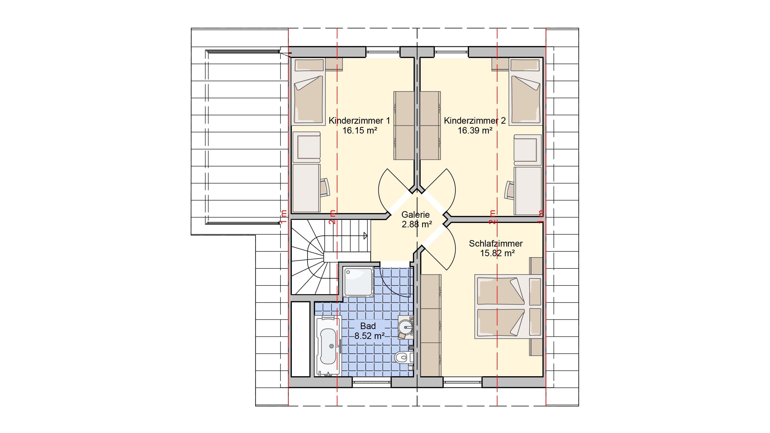
Modell „Stockholm“ bietet auf zwei Etagen allen Familienmitgliedern jede Menge Platz, um sich zuhause zu fühlen. Durch den traufseitig platzierten Eingangsbereich eignet sich das Haus auch für schmale Grundstücke und kann sich den Bedürfnissen und Ansprüchen seiner Bewohner so optimal anpassen. Absolutes Highlight des Hauses ist der in den Wohnbereich integrierte Wintergarten. Dieser spendet viel Licht und Wärme und ist von außen wie von innen ein wahrer Blickfang. In der zentral im Erdgeschoss platzierten Küche lassen sich kreative Rezepte mit Leichtigkeit umsetzen. Auf der oberen Etage erreicht man über den kompakten Flur die beiden Kinderzimmer mit Blick auf den Garten sowie das großzügige Elternschlafzimmer. Unten wohnen, oben schlafen – Lebensqualität auf zwei Etagen!

