Die Vorteile des Stadtlebens und das Wohnen am Land - von beidem das Beste. Gerade in Außenbezirken der Städte ist unser Hausmodell Plata mit 193m² Wohnfläche perfekt und wird durch das hochmoderne Erscheinungsbild noch einmal unterstrichen. Der große Garten bietet ebenso viel Platz zur Entfaltung und Privatsphäre. Direkt angrenzend an das Wohnhaus, fügt sich eine Garage ein, welche perfekt in das Gesamtkonstrukt des Hauses passt.
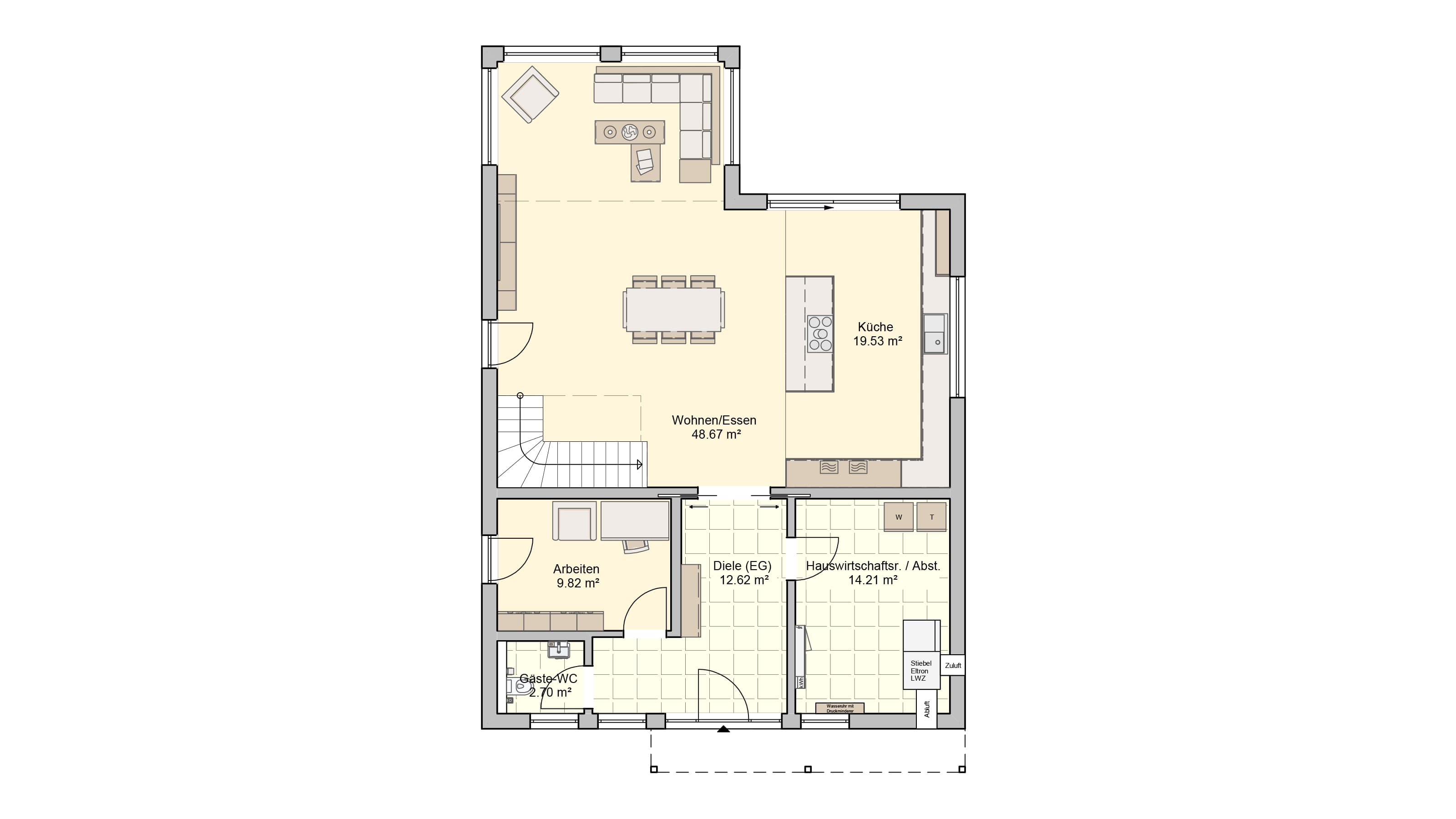
Durch den einladenden Entree gelangen Bewohner und Besucher in den offenen Wohn-/ und Essbereich. Die nahtlose Verbindung zur Küche und die nach oben hin offene Galerie im Wohnzimmer machen das Haus noch offener und durchfluten den großen Raum mit viel Licht. Ebenso befinden sich im Erdgeschoss der Flur, ein Hauswirtschafts- und Abstellraum, sowie ein Gäste-WC und die Möglichkeit für ein Arbeitszimmer.
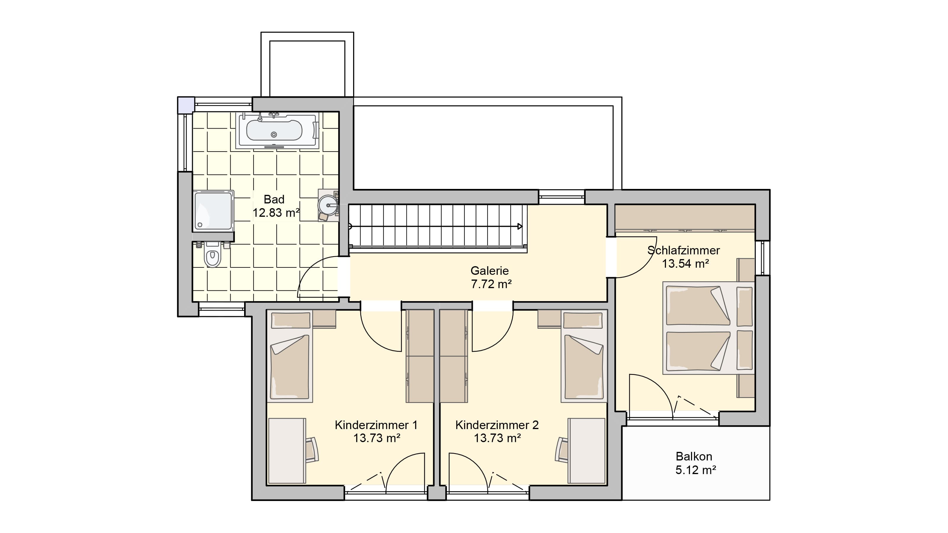
Im Dachgeschoss ist genug Platz für ein Schlafzimmer mit anschließender Ankleide und einem Eltern-Bad. Von der Galerie aus sind außerdem beide Kinderzimmer, welche durch ein Badezimmer verbunden sind, zu erreichen.
Das Haus wurde von Fingerhut Haus in nachhaltiger Holzrahmenbauweise und mit der ganzheitlichen, thermischen Gebäudeaußenhülle ThermLiving von Fingerhut Haus errichtet. So werden alle Wohlfühl- und Energiesparaspekte erfüllt.

