1. AnbieterArrow Icon
  2. Fingerhut Haus GmbH & Co. KGArrow Icon
  3. PIco 10
Slide 1
Slide 2
no description
Fingerhut Haus GmbH & Co. KGPIco 10
homeKlassische Familienhäuser
livingArea112 m²
energyStandardEffizienzhaus 55
Preis anfragen
Katalog bestellen

PIco 10

Aus der Hausreihe 'Pico'

Unten grau, oben weiß – mit diesem optischen Highlight präsentiert sich das zweifarbige moderne Satteldachhaus von außen. Innen bietet es auf rund 112 m² Platz für eine Familie mit zwei Kindern, die sich im Dachgeschoss entfalten können. Raum für Geselligkeit findet sich unter anderem im ca. 31 m² großen Wohn- und Essbereich.

Hausdaten

Hausart Icon
HausartEinfamilienhaus
Bauweise Icon
BauweiseHolz-Tafelbau
Anzahl Räume Icon
Anzahl Räume3
Baustil Icon
BaustilKlassische Familienhäuser
Fassade Icon
FassadePutz
Außenmaße Icon
Außenmaße880 m x 8.75 m
Wohnfläche Icon
Wohnfläche112.43 m²
Dachform Icon
DachformSattel-/Giebeldach
Energiestandard Icon
EnergiestandardEffizienzhaus 55
Immobilientyp Icon
ImmobilientypPlanungsidee
Dachneigung Icon
Dachneigung25°
Hauseigenschaften Icon
HauseigenschaftenGästezimmer
Hausdämmstoff Icon
HausdämmstoffMineralfaser (Glaswolle, Steinwolle)
Heizungsart Icon
HeizungsartWärmepumpe (Luft, Wasser, oder beides)
Pfeil nach unten linksWir schaffen Platz für Ihre Träume

Grundriss

no description
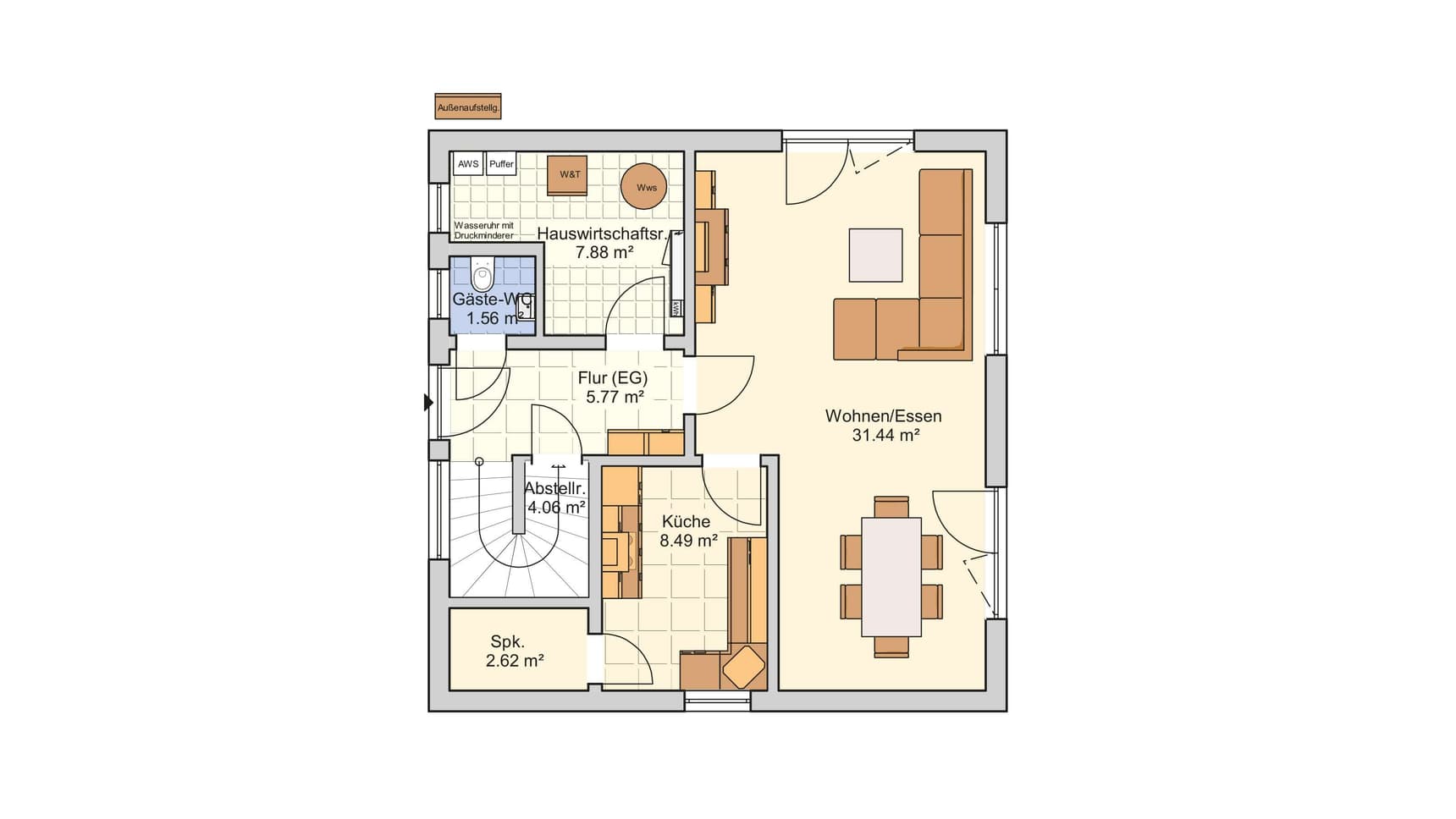
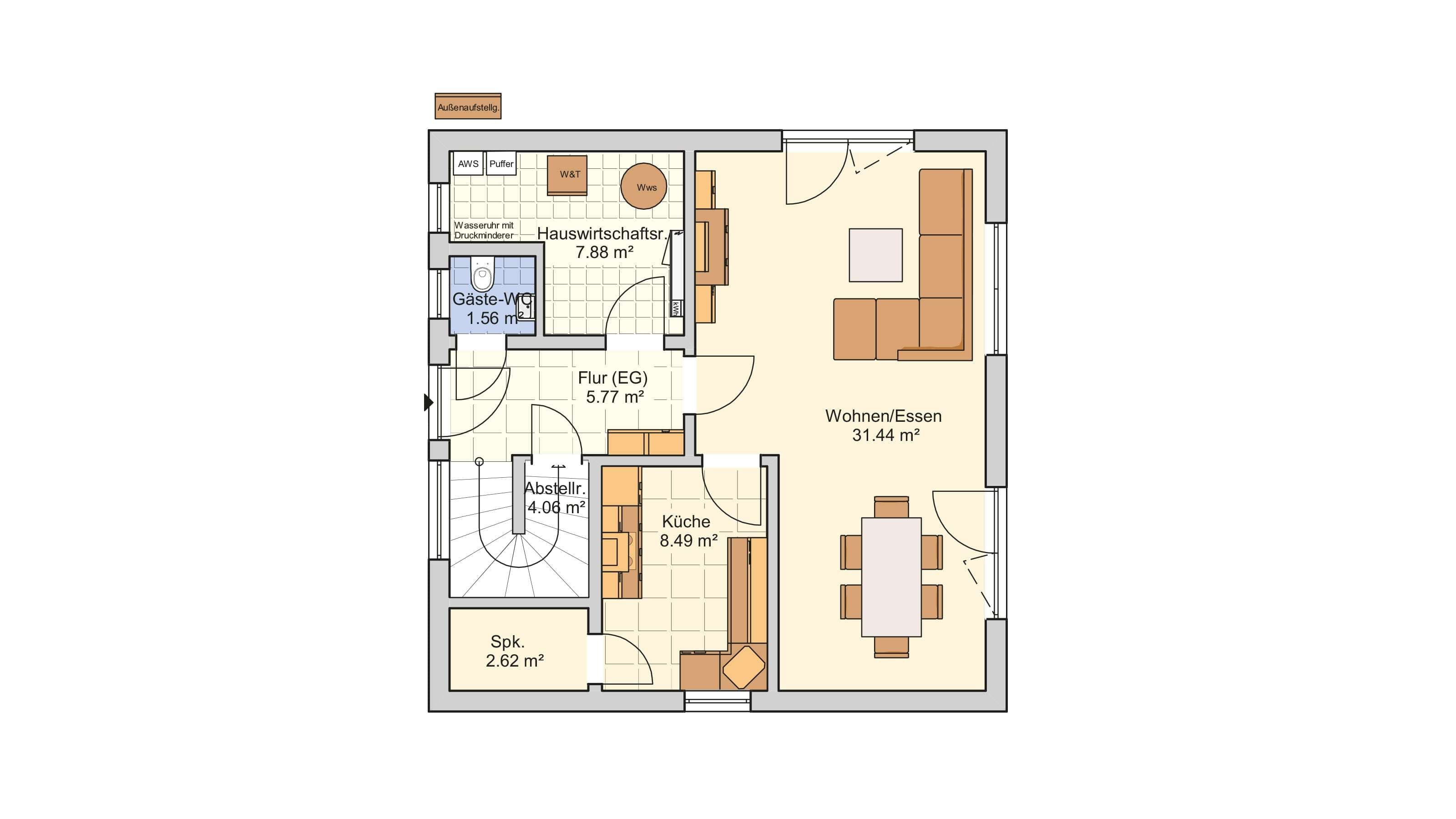
PIco 10 Grundriss (EG)Wohnfläche EG: 59,9 m²
no description
PIco 10 Grundriss (DG)Wohnfläche DG: 52,53 m²

Kataloge

Fingerhut Haus: Hauskatalog
Fingerhut Haus GmbH & Co. KG

Fingerhut Haus: Hauskatalog


House and TreeParksHouse and PinMusterhausHouse on HandAnbieter