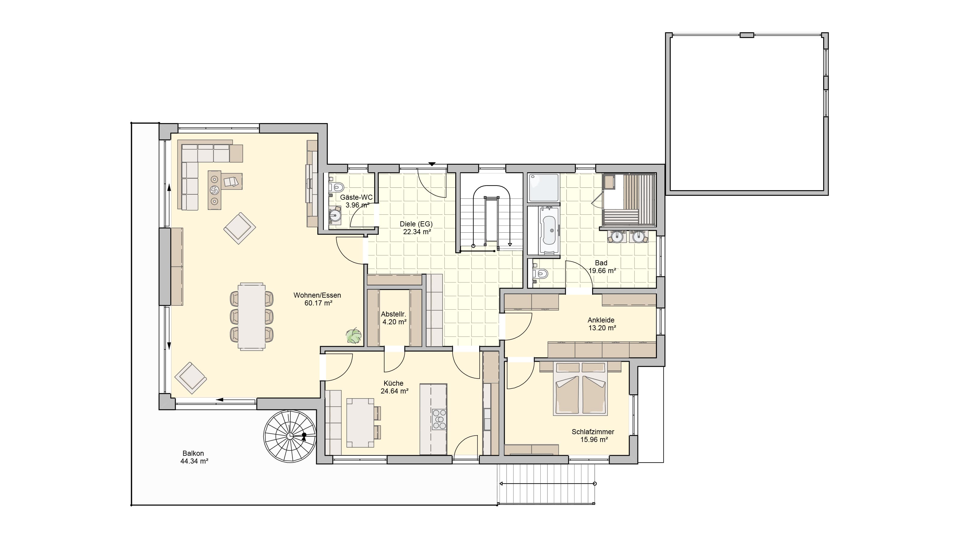
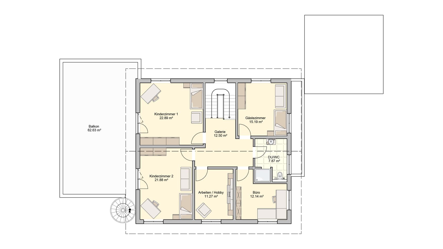
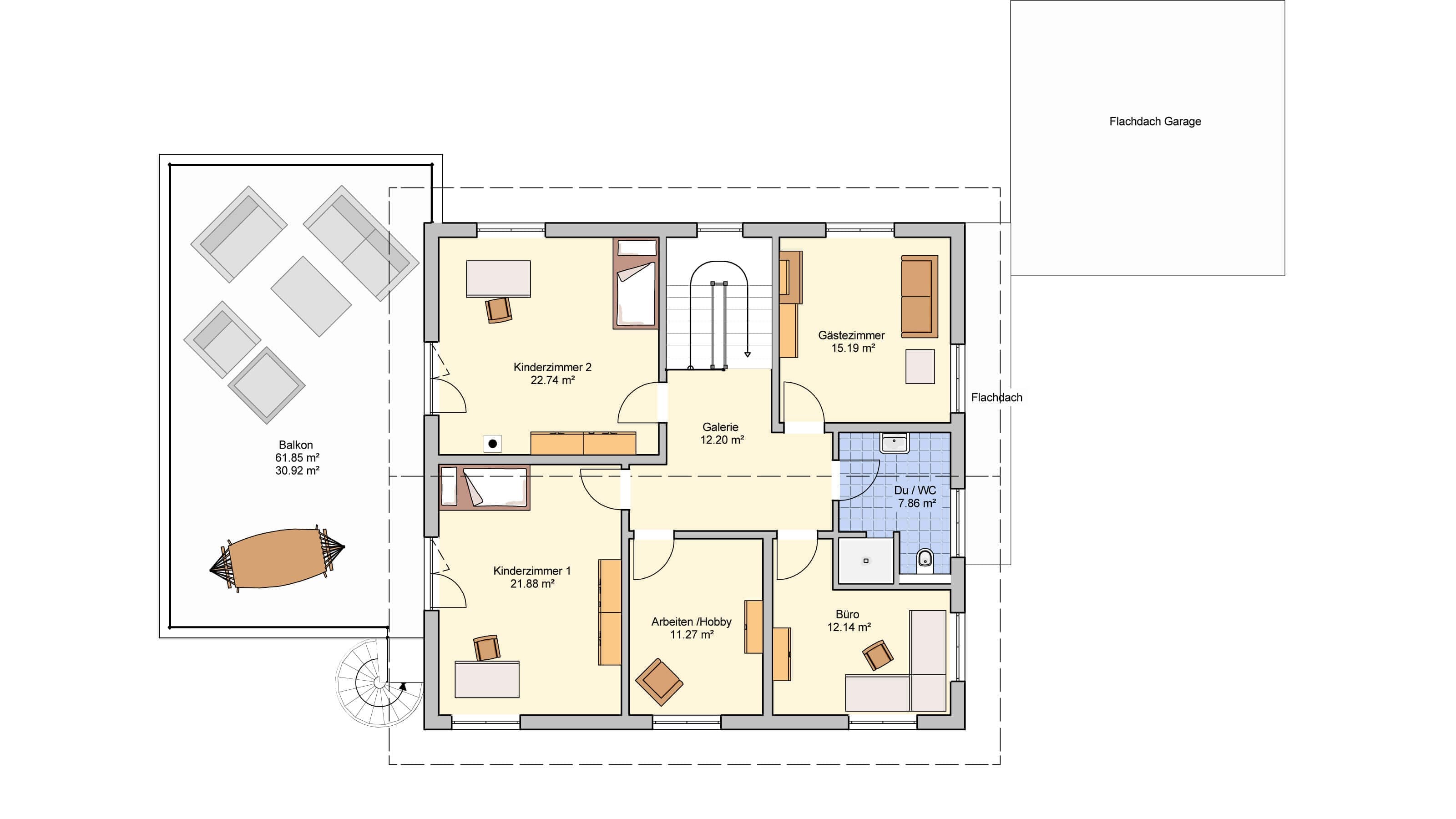
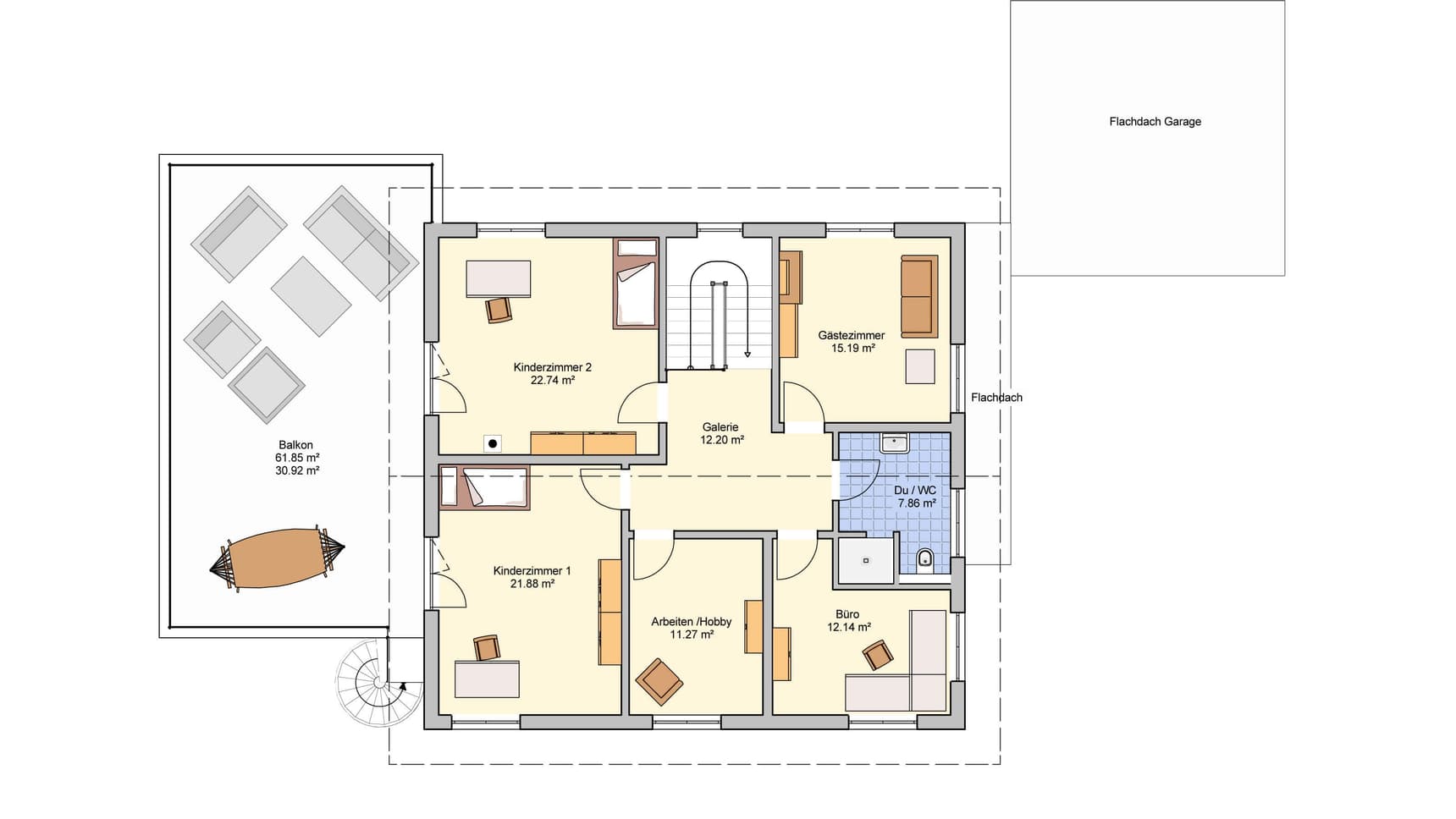
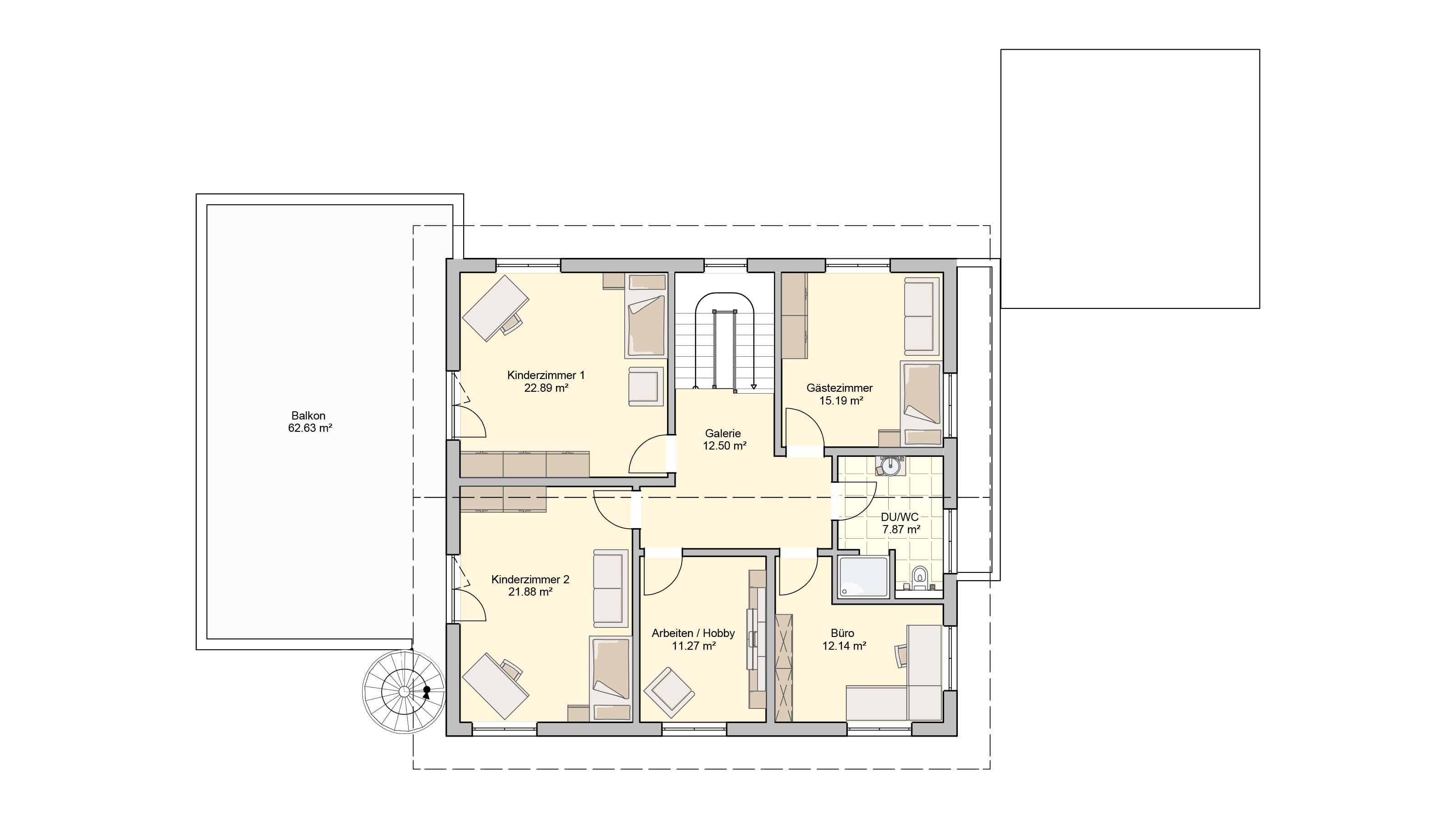
Auf dem Fundament eines Hauses aus den 60er Jahren, entstand dieses wunderschöne Satteldachhaus. Der Neubau, welcher alle architektonischen und ökologischen Ansprüche erfüllt wirkt beeindruckend. Der Kubus-Anbau, welcher über dem Garten zu schweben scheint, wird durch die Holzverschalung noch einmal besonders betont. Auf diesem Anbau wurde eine Dachterrasse eingeplant, welche von den Kinderzimmern und dem Balkon zu erreichen ist.
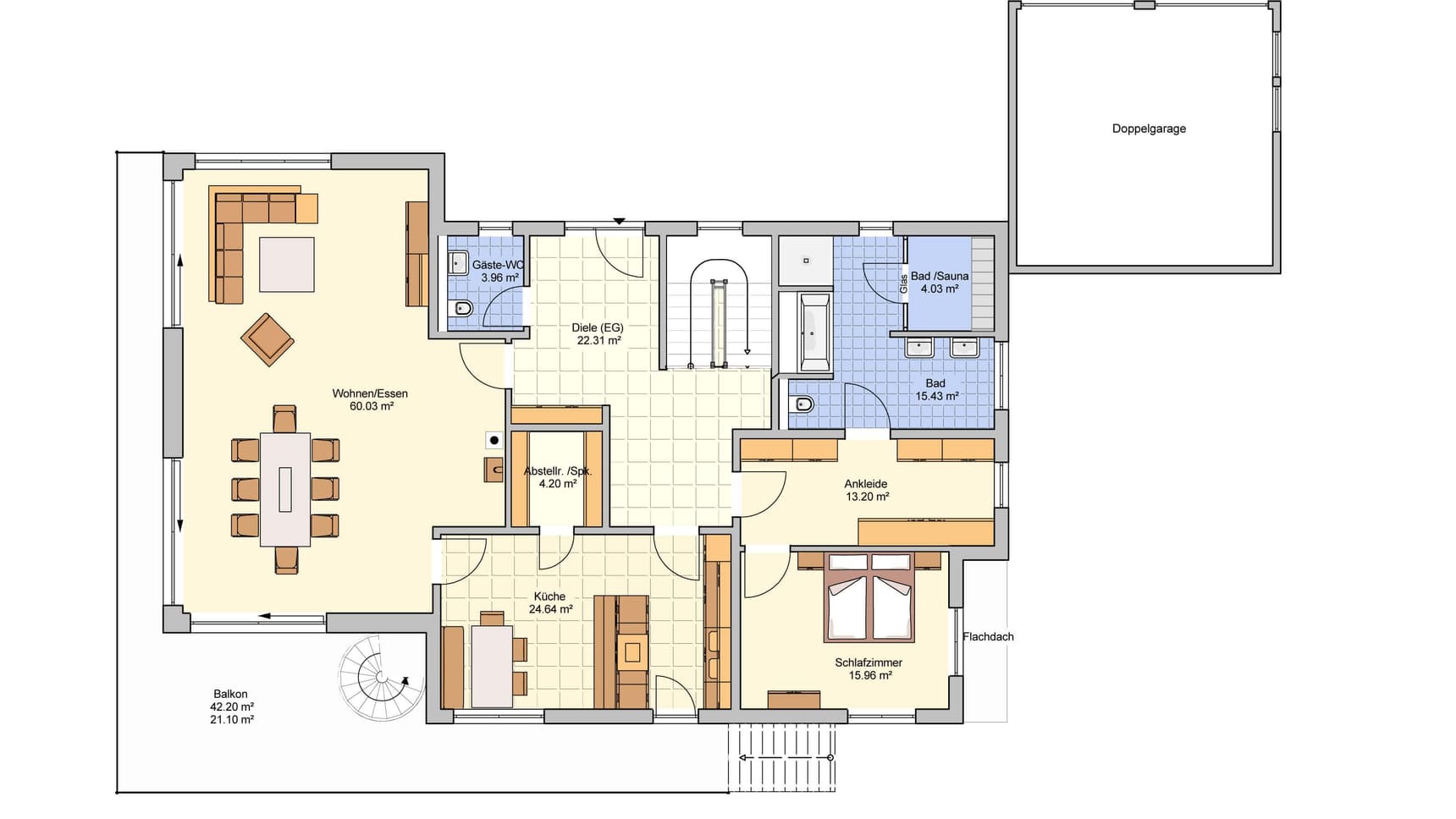
Die untypische Ausrichtung des Wohnbereiches nach Nordwesten eröffnet eine wunderschöne Aussicht über das Tal. Die großen Fenster sorgen für ein lichtdurchflutetes Haus.
Smarte Home-Technik macht das Haus zu einem absoluten Trend-Objekt. Rollläden, Licht, Sicherheitstechnik, Heizung und Warmwasserbereitung lassen sich einfach steuern und sorgen somit zusätzlich für angenehmes Wohnen.
Auch an sehr warmen Tagen ist dieses Objekt ein angenehm temperiertes Zuhause für alle Familienmitglieder.
Einzigartig geplant, für eine einzigartige Familie.


