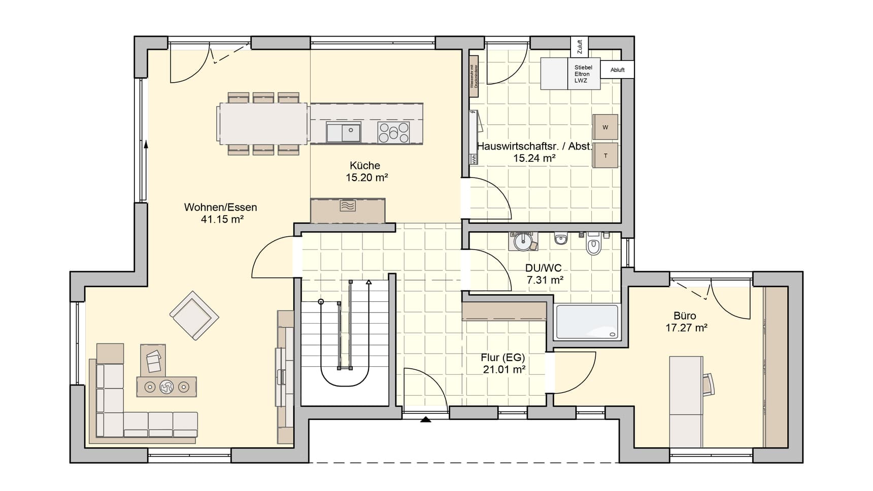
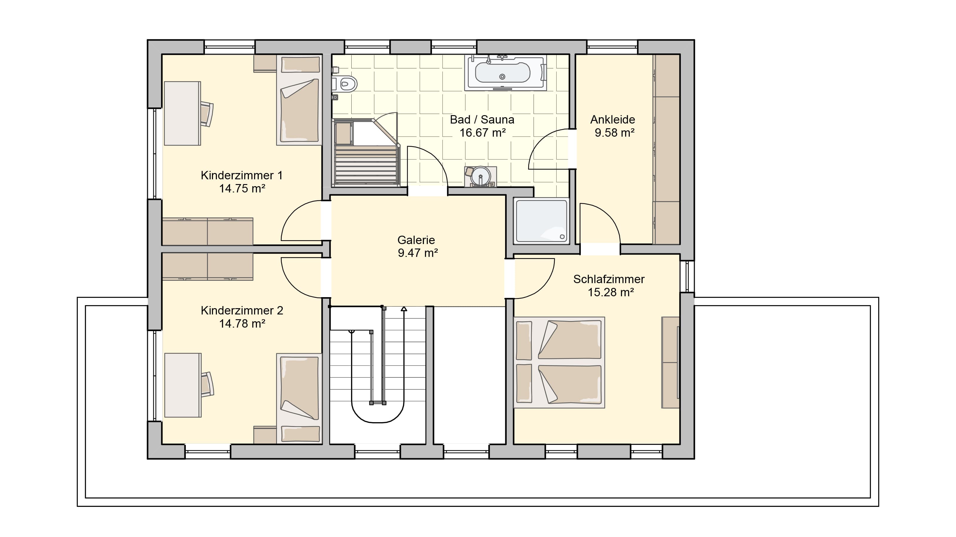
Gegensätze ziehen sich an. Purismus verbunden mit Holzelementen – das spiegelt das heutige Bedürfnis vieler Menschen nach Moderne und gleichzeitiger Wärme wider. Der Hausentwurf „Musterhaus Vilago Neunkhausen“ ist das Sinnbild des zeitlosen Bauhausstils, gepaart mit Behaglichkeit und Extravaganz. Die an der Fassade integrierten Holzelemente ziehen alle Blicke auf sich und interpretieren den knapp 194 m² großen Designklassiker in seiner modernsten und zugleich natürlichsten Form. Das Flachdachgebäude, das sich über zwei Etagen erstreckt, zeigt zum einen, wie unabhängig ein Bauhaus vom Baumaterial ist und zum anderen die große Wandelbarkeit. Ein individueller Mix der Strukturen und Elemente, der seinesgleichen sucht!


(öffnet Mittwoch um 10:00 Uhr)