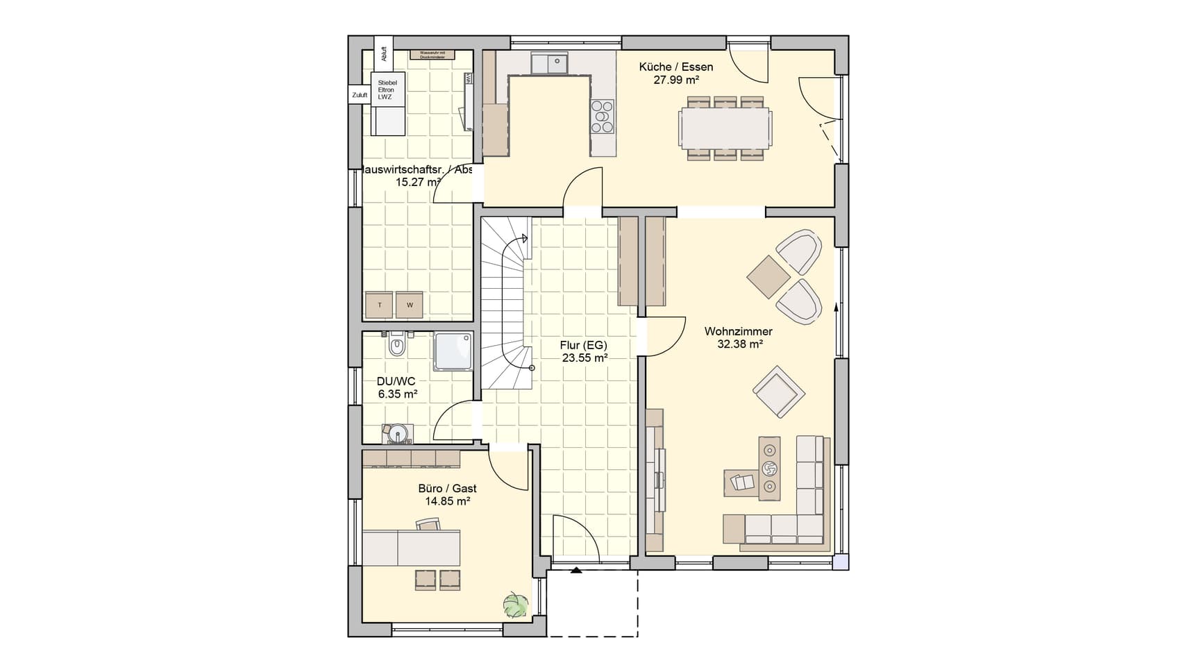
Beim Betreten des Musterhauses Stuttgart wird eines klar: hier können sich alle Bewohner frei entfalten und sich bei Bedarf gemütlich zurückziehen. Doch es steckt mehr in diesem Haus: ein intelligentes Dämmsystem und Energieeffizienz. Durch Photovoltaikanlage mit Batteriespeicher wird das Objekt zu einem Effizienzhaus 40 Plus. Somit wird ein großer Teil des Energiebedarfs vvom Gebäude erzeugt und gespeichert. Der großräumige Wohnbereich mit dem platzsparenden Schiebetüren-Element bietet direkten Zugang zur Terrasse. Außerdem kann von hier aus einfach der Ess- und Kochbereich betreten werden. Von hier aus wird geschickt der Hauswirtschaftsraum integriert, welcher sich somit komfortabel als Vorratsraum mitnutzen lässt. Außerdem ist vom Flur aus das Büro zu erreichen, sowie ein Badezimmer.
Im Dachgeschoss finden sich die 4 Schlafzimmer des Hauses. An dem elterlichen Schlafzimmer des Hauses schließt eine Ankleide an, welche anschließend in das große Badezimmer des Hauses mündet. Des Weiteren sind die restlichen drei Räume als Kinder-, Gästezimmer oder Hobbyraum nutzbar. Die Galerie in der Mitte der Etage verbindet alle Räume miteinander. Zwei Balkone eröffnen den Zugang zur Natur und werten die Zimmer noch einmal auf.
Wie wir finden, ist dieses Raumkonzept rundum gelungen.


(öffnet Donnerstag um 13:00 Uhr)